Property
Account |
| Property ID: | 16189 | Abbreviated Legal Description: | GARRISON CRK HGTS #2 PHASE 1 LOT 22 BLK 1 |
| Parcel Number: | 350736710122 | Agent Code: | |
| Type: | Real | | |
| Tax Area: | 77 - CP-250-F | Land Use Code | 11 |
| Open Space: | N | DFL | N |
| Historic Property: | N | Remodel Property: | N |
| Multi-Family Redevelopment: | N | | |
| Township: | 7 | Section: | 36 |
| Range: | 35 |
Location |
| Address: | 1015 SE SENTRY DR WA 99324 | Mapsco: | |
| Neighborhood: | G SFR | Map ID: | |
| Neighborhood CD: | 114011 |
Owner |
| Name: | AHMED MOHAMMED O | Owner ID: | 68112 |
| Mailing Address: | 1015 SE SENTRY DR COLLEGE PLACE, WA 99324 | % Ownership: | 100.0000000000% |
| | | Exemptions: | |
Taxes and Assessment Details
Values
| (+) Improvement Homesite Value: | + | $0 | |
| (+) Improvement Non-Homesite Value: | + | $484,510 | |
| (+) Land Homesite Value: | + | $0 | |
| (+) Land Non-Homesite Value: | + | $75,000 | |
| (+) Curr Use (HS): | + | $0 | $0 |
| (+) Curr Use (NHS): | + | $0 | $0 |
| | | -------------------------- | |
| (=) Market Value: | = | $559,510 | |
| (–) Productivity Loss: | – | $0 | |
| | | -------------------------- | |
| (=) Subtotal: | = | $559,510 | |
| (+) Senior Appraised Value: | + | $0 | |
| (+) Non-Senior Appraised Value: | + | $559,510 | |
| | | -------------------------- | |
| (=) Total Appraised Value: | = | $559,510 | |
| (–) Senior Exemption Loss: | – | $0 | |
| (–) Exemption Loss: | – | $0 | |
| | | -------------------------- | |
| (=) Taxable Value: | = | $559,510 | |
Taxing Jurisdiction
| Owner: | AHMED MOHAMMED O | | |
| % Ownership: | 100.0000000000% | | |
| Total Value: | $559,510 | | |
| Tax Area: | 77 - CP-250-F |
| CERFD | CURRENT EXPENSE REFUND 010 | 0.0000000000 | $559,510 | $559,510 | $0.00 | | |
| CURREXP | CURRENT EXPENSE 010 | 1.0175366760 | $559,510 | $559,510 | $569.32 | | |
| HUMNSERV | HUMAN SERVICES 119 | 0.0250000000 | $559,510 | $559,510 | $13.99 | | |
| SLDREL | SOLDIERS RELIEF 121 | 0.0155990005 | $559,510 | $559,510 | $8.73 | | |
| COLLPLBOND | C OF CP BOND 644 | 0.4374241808 | $559,510 | $559,510 | $244.74 | | |
| COLLPLGEN | CITY OF CP 632 | 1.4453819216 | $559,510 | $559,510 | $808.71 | | |
| EMERGSER | EMS 147 | 0.3792580840 | $559,510 | $559,510 | $212.20 | | |
| EMSRFD | EMS REFUND 147 | 0.0000000000 | $559,510 | $559,510 | $0.00 | | |
| RURALLIB | RURAL LIBRARY 623 | 0.3710609029 | $559,510 | $559,510 | $207.61 | | |
| PORTRFD | PORT REFUND 640 | 0.0000000000 | $559,510 | $559,510 | $0.00 | | |
| PORTWWGEN | PORT OF WW 640 | 0.2460186015 | $559,510 | $559,510 | $137.65 | | |
| SD250BOND | SD #250 BOND 773 | 1.4560608159 | $559,510 | $559,510 | $814.68 | | |
| SD250GEN | SD #250 GENERAL 770 | 2.3880724087 | $559,510 | $559,510 | $1,336.15 | | |
| ST2 | STATE SCHOOL PART 2 600 | 0.8131451643 | $559,510 | $559,510 | $454.96 | | |
| STATESCHL | STATE SCHOOL 600 | 1.5158548041 | $559,510 | $559,510 | $848.14 | | |
| STREFUND | STATE REFUND LEVY 603 | 0.0000000000 | $559,510 | $559,510 | $0.00 | | |
| | Total Tax Rate: | 10.1104125603 | | | | | |
| | | | | Taxes w/Current Exemptions: | $5,656.88 | | |
| | | | | Taxes w/o Exemptions: | $5,656.88 | | |
Improvement / Building
| Improvement #1: | RESIDENTIAL | State Code: | 11 | 2452.0 sqft | Value: | $484,510 |
| Exterior Wall: | PLYWOOD | Heating/Cooling: | REV-HEAT-PUMP-W/DUCT | | Number of Bathrooms: | 4 | Number of Bedrooms: | 3 | | Plumbing: | 15 | Roof Covering: | COMP SHINGLE |
|
| | Type | Description | Class CD | Sub Class CD | Year Built | Area |
| | MA | Main Area | 4 | 40 | 1994 | 2452.0 |
| | UPFL | Upper Floor (included in main area) | 4 | 40 | 1994 | 960.0 |
| | SI1 | SITE IMPROVEMENT | 4 | 40 | 1994 | 3.0 |
| | BASE | BASEMENT | 4 | 40 | 1994 | 1492.0 |
| | BPF | BASEMENT -PARTITIONED FINISH | 4 | 40 | 1994 | 746.0 |
| | ATG | Attached Garage | 4 | 40 | 1994 | 1060.0 |
| | BLW | WOOD BALCONIES | 4 | 40 | 1994 | 200.0 |
| | GFP | GAS FIREPLACE | 4 | 40 | 1994 | 1.0 |
| | RCD | WOOD DECK W/ROOF, CEILED | 4 | 40 | 1994 | 224.0 |
| | UTST | Utility Storage Shed | 4 | 40 | 1994 | 80.0 |
Sketch
Property Image
Land
| 1 | RES 1 | Converted: Residential | 0.2345 | 10215.00 | 0.00 | 0.00 | 1.00 | $75,000 | $0 |
Roll Value History
| 2026 | N/A | N/A | N/A | N/A | N/A |
| 2025 | $436,060 | $140,000 | $0 | $576,060 | $576,060 |
| 2024 | $484,510 | $75,000 | $0 | $559,510 | $559,510 |
| 2023 | $484,510 | $75,000 | $0 | $559,510 | $559,510 |
| 2022 | $484,510 | $75,000 | $0 | $559,510 | $559,510 |
| 2021 | $403,760 | $75,000 | $0 | $478,760 | $478,760 |
| 2020 | $288,400 | $75,000 | $0 | $363,400 | $363,400 |
| 2019 | $298,400 | $65,000 | $0 | $363,400 | $363,400 |
| 2018 | $298,400 | $65,000 | $0 | $363,400 | $363,400 |
| 2017 | $298,400 | $65,000 | $0 | $363,400 | $363,400 |
| 2016 | $298,400 | $65,000 | $0 | $363,400 | $363,400 |
| 2015 | $298,400 | $65,000 | $0 | $363,400 | $363,400 |
| 2014 | $298,400 | $65,000 | $0 | $363,400 | $363,400 |
| 2013 | $284,900 | $65,000 | $0 | $349,900 | $349,900 |
| 2012 | $284,900 | $65,000 | $0 | $0 | $0 |
| 2011 | $284,900 | $65,000 | $0 | $0 | $0 |
| 2010 | $284,900 | $65,000 | $0 | $0 | $0 |
| 2009 | $303,300 | $65,000 | $0 | $0 | $0 |
| 2008 | $213,400 | $40,000 | $0 | $0 | $0 |
| 2007 | $213,400 | $40,000 | $0 | $0 | $0 |
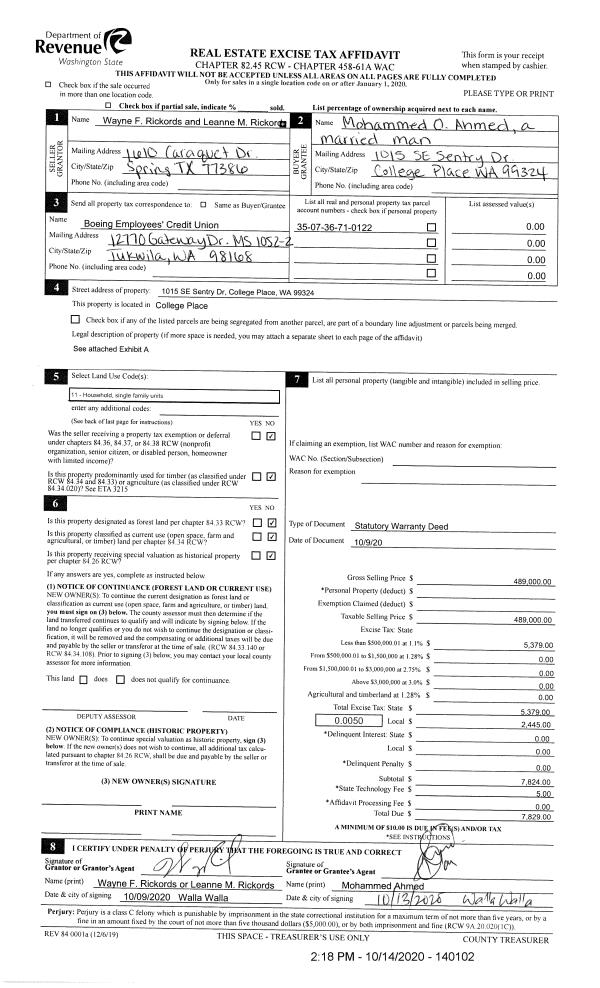
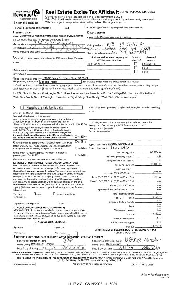
Deed and Sales History
| 1 | 02/14/2025 | SWD | STATUTORY WARRANTY DEED | AHMED MOHAMMED O | MORASCH BLAKE | | | $630,000.00 | 148924 | 2025-00776 |
| 2 | 10/14/2020 | SWD | STATUTORY WARRANTY DEED | RICKORDS WAYNE F & LEANNE M | AHMED MOHAMMED O | | | $489,000.00 | 140102 | 2020-10637 |
| 3 | 07/25/2006 | WARRANTY D | WARRANTY DEED | GERAUD, JOHN D & MARYLOU | RICKORDS, WAYNE F & LEANNE M | | | $365,000.00 | 110794 | 2006-08716 |
| 4 | 08/15/2003 | WARRANTY D | WARRANTY DEED | FLORES, JAIME G & H LISA | GERAUD, JOHN D & MARYLOU | | | $284,950.00 | 102807 | 2003-12290 |
| 5 | 02/12/2002 | WARRANTY D | WARRANTY DEED | | | | | $225,000.00 | 98912 | 3280-201739 |
Payout Agreement
| No payout information available.. |