Property
Account |
| Property ID: | 16182 | Abbreviated Legal Description: | SUNSET PARK LT 1 BLK 1 |
| Parcel Number: | 360732620101 | Agent Code: | |
| Type: | Real | | |
| Tax Area: | 1 - OL-140-F | Land Use Code | 11 |
| Open Space: | N | DFL | N |
| Historic Property: | N | Remodel Property: | N |
| Multi-Family Redevelopment: | N | | |
| Township: | 7 | Section: | 32 |
| Range: | 36 |
Location |
| Address: | 205 W TIETAN ST WA 99362 | Mapsco: | |
| Neighborhood: | A Res | Map ID: | |
| Neighborhood CD: | 613011 |
Owner |
| Name: | SANCHEZ MARIANO ALVARADO & NORMA JIMENEZ | Owner ID: | 63648 |
| Mailing Address: | 205 W TIETAN ST WALLA WALLA, WA 99362 | % Ownership: | 100.0000000000% |
| | | Exemptions: | |
Taxes and Assessment Details
Values
| (+) Improvement Homesite Value: | + | $0 | |
| (+) Improvement Non-Homesite Value: | + | $290,680 | |
| (+) Land Homesite Value: | + | $0 | |
| (+) Land Non-Homesite Value: | + | $70,200 | |
| (+) Curr Use (HS): | + | $0 | $0 |
| (+) Curr Use (NHS): | + | $0 | $0 |
| | | -------------------------- | |
| (=) Market Value: | = | $360,880 | |
| (–) Productivity Loss: | – | $0 | |
| | | -------------------------- | |
| (=) Subtotal: | = | $360,880 | |
| (+) Senior Appraised Value: | + | $0 | |
| (+) Non-Senior Appraised Value: | + | $360,880 | |
| | | -------------------------- | |
| (=) Total Appraised Value: | = | $360,880 | |
| (–) Senior Exemption Loss: | – | $0 | |
| (–) Exemption Loss: | – | $0 | |
| | | -------------------------- | |
| (=) Taxable Value: | = | $360,880 | |
Taxing Jurisdiction
| Owner: | SANCHEZ MARIANO ALVARADO & NORMA JIMENEZ | | |
| % Ownership: | 100.0000000000% | | |
| Total Value: | $360,880 | | |
| Tax Area: | 1 - OL-140-F |
| CERFD | CURRENT EXPENSE REFUND 010 | 0.0000000000 | $360,880 | $360,880 | $0.00 | | |
| CURREXP | CURRENT EXPENSE 010 | 1.0175366760 | $360,880 | $360,880 | $367.21 | | |
| HUMNSERV | HUMAN SERVICES 119 | 0.0250000000 | $360,880 | $360,880 | $9.02 | | |
| SLDREL | SOLDIERS RELIEF 121 | 0.0155990005 | $360,880 | $360,880 | $5.63 | | |
| EMERGSER | EMS 147 | 0.3792580840 | $360,880 | $360,880 | $136.87 | | |
| EMSRFD | EMS REFUND 147 | 0.0000000000 | $360,880 | $360,880 | $0.00 | | |
| PORTRFD | PORT REFUND 640 | 0.0000000000 | $360,880 | $360,880 | $0.00 | | |
| PORTWWGEN | PORT OF WW 640 | 0.2460186015 | $360,880 | $360,880 | $88.78 | | |
| SD140BOND | SD #140 BOND 764 | 0.8342371393 | $360,880 | $360,880 | $301.06 | | |
| SD140GEN | SD #140 GENERAL 760 | 2.0646500647 | $360,880 | $360,880 | $745.09 | | |
| ST2 | STATE SCHOOL PART 2 600 | 0.8131451643 | $360,880 | $360,880 | $293.45 | | |
| STATESCHL | STATE SCHOOL 600 | 1.5158548041 | $360,880 | $360,880 | $547.04 | | |
| STREFUND | STATE REFUND LEVY 603 | 0.0000000000 | $360,880 | $360,880 | $0.00 | | |
| CWWBOND | C OF WW BOND 643 | 0.2760494372 | $360,880 | $360,880 | $99.62 | | |
| CWWGEN | CITY OF WW 631 | 1.6100204973 | $360,880 | $360,880 | $581.02 | | |
| CWWRFD | CITY OF WALLA WALLA REFUND 631 | 0.0000000000 | $360,880 | $360,880 | $0.00 | | |
| | Total Tax Rate: | 8.7973694689 | | | | | |
| | | | | Taxes w/Current Exemptions: | $3,174.79 | | |
| | | | | Taxes w/o Exemptions: | $3,174.79 | | |
Improvement / Building
| Improvement #1: | RESIDENTIAL | State Code: | 11 | 1125.0 sqft | Value: | $290,680 |
| Exterior Wall: | SIDING | Heating/Cooling: | WARM & COOLED AIR | | Number of Bathrooms: | 2 | Number of Bedrooms: | 4 | | Plumbing: | 10 | Roof Covering: | COMP SHINGLE |
|
| | Type | Description | Class CD | Sub Class CD | Year Built | Area |
| | MA | Main Area | 1 | 30 | 1955 | 1125.0 |
| | SI1 | SITE IMPROVEMENT | 1 | 30 | 1955 | 1.5 |
| | BASE | BASEMENT | 1 | 30 | 1955 | 1125.0 |
| | BRF | BASEMENT - REC FINISH | 1 | 30 | 1955 | 562.0 |
| | DTG | Detached Garage | 1 | 30 | 1955 | 325.0 |
| | S1F | Single One Story Fireplace | 1 | 30 | 1955 | 1.0 |
| | CPC | COVERED CARPORT/PATIO | 1 | 30 | 1955 | 128.0 |
| | CPCS | CARPORT/SHED OR FLAT ROOF | 1 | 30 | 1955 | 300.0 |
Sketch
Property Image
Land
| 1 | RES 1 | Converted: Residential | 0.1791 | 7800.00 | 0.00 | 0.00 | 1.00 | $70,200 | $0 |
Roll Value History
| 2026 | N/A | N/A | N/A | N/A | N/A |
| 2025 | $278,320 | $85,800 | $0 | $364,120 | $364,120 |
| 2024 | $290,680 | $70,200 | $0 | $360,880 | $360,880 |
| 2023 | $290,680 | $70,200 | $0 | $360,880 | $360,880 |
| 2022 | $276,840 | $48,800 | $0 | $325,640 | $325,640 |
| 2021 | $205,070 | $48,800 | $0 | $253,870 | $253,870 |
| 2020 | $151,900 | $48,800 | $0 | $200,700 | $200,700 |
| 2019 | $151,900 | $48,800 | $0 | $200,700 | $200,700 |
| 2018 | $150,720 | $45,300 | $0 | $196,020 | $196,020 |
| 2017 | $125,600 | $45,300 | $0 | $170,900 | $170,900 |
| 2016 | $125,600 | $45,300 | $0 | $170,900 | $170,900 |
| 2015 | $125,600 | $45,300 | $0 | $170,900 | $170,900 |
| 2014 | $125,600 | $45,300 | $0 | $170,900 | $170,900 |
| 2013 | $125,600 | $45,300 | $0 | $170,900 | $170,900 |
| 2012 | $125,600 | $45,300 | $0 | $0 | $0 |
| 2011 | $125,600 | $45,300 | $0 | $0 | $0 |
| 2010 | $117,500 | $45,300 | $0 | $0 | $0 |
| 2009 | $135,600 | $45,300 | $0 | $0 | $0 |
| 2008 | $135,600 | $45,300 | $0 | $0 | $0 |
| 2007 | $103,200 | $22,800 | $0 | $0 | $0 |
Deed and Sales History
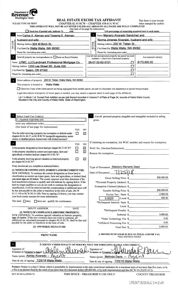
| 1 | 08/03/2018 | SWD | STATUTORY WARRANTY DEED | ALEMAN CARLOS A & YESENIA E | SANCHEZ MARIANO ALVARADO & NORMA JIMENEZ | | | $200,000.00 | 135267 | 2018-06357 |
| 2 | 08/18/2014 | SWD | STATUTORY WARRANTY DEED | PEARSON KATHY M | ALEMAN CARLOS A & YESENIA E | | | $165,000.00 | 126478 | 2014-05977 |
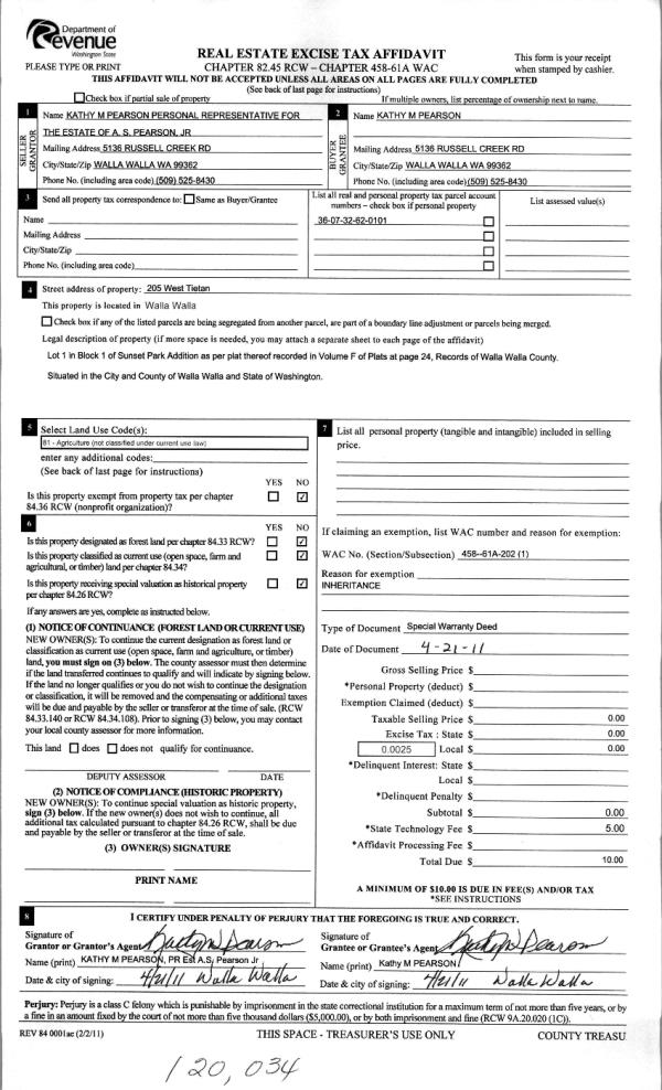
| 3 | 04/21/2011 | WARRANTY D | WARRANTY DEED | PEARSON, A S JR ESTATE OF | PEARSON, KATHY M | | | | 120034 | 2011-03257 |
| 4 | 06/13/2006 | QCD | QUIT CLAIM DEED | ORTHMANN, KATHY M | PEARSON, ALFRED S & KATHY M | | | | 110493 | 2006-06831 |
| 5 | 10/30/2002 | WARRANTY D | WARRANTY DEED | ANDERSON, DOROTHY H | ORTHMANN, KATHY M | | | $129,500.00 | 100705 | 2002-12320 |
| 6 | 03/01/1965 | WARRANTY D | WARRANTY DEED | | | | | $16,700.00 | 0 | 3130-465019 |
Payout Agreement
| No payout information available.. |