Property
Account |
| Property ID: | 16154 | Abbreviated Legal Description: | 28-7-36 LOT 8 OF S/P NLY PTN TAX 64 WITHIN NE1/4SW1/4 |
| Parcel Number: | 360728310044 | Agent Code: | |
| Type: | Real | | |
| Tax Area: | 1 - OL-140-F | Land Use Code | 11 |
| Open Space: | N | DFL | N |
| Historic Property: | N | Remodel Property: | N |
| Multi-Family Redevelopment: | N | | |
| Township: | 7 | Section: | 28 |
| Range: | 36 |
Location |
| Address: | 1602 BEACON DR WA 99362 | Mapsco: | |
| Neighborhood: | VG Res | Map ID: | |
| Neighborhood CD: | 615011 |
Owner |
| Name: | ERIK BJORN BENSON GST TRUST | Owner ID: | 54423 |
| Mailing Address: | ROBERT S BENSON TRUSTEE 1436 SHAVENO COURT EVERGREEN, CO 80439 | % Ownership: | 100.0000000000% |
| | | Exemptions: | |
Taxes and Assessment Details
Values
| (+) Improvement Homesite Value: | + | $0 | |
| (+) Improvement Non-Homesite Value: | + | $615,090 | |
| (+) Land Homesite Value: | + | $0 | |
| (+) Land Non-Homesite Value: | + | $149,630 | |
| (+) Curr Use (HS): | + | $0 | $0 |
| (+) Curr Use (NHS): | + | $0 | $0 |
| | | -------------------------- | |
| (=) Market Value: | = | $764,720 | |
| (–) Productivity Loss: | – | $0 | |
| | | -------------------------- | |
| (=) Subtotal: | = | $764,720 | |
| (+) Senior Appraised Value: | + | $0 | |
| (+) Non-Senior Appraised Value: | + | $764,720 | |
| | | -------------------------- | |
| (=) Total Appraised Value: | = | $764,720 | |
| (–) Senior Exemption Loss: | – | $0 | |
| (–) Exemption Loss: | – | $0 | |
| | | -------------------------- | |
| (=) Taxable Value: | = | $764,720 | |
Taxing Jurisdiction
| Owner: | ERIK BJORN BENSON GST TRUST | | |
| % Ownership: | 100.0000000000% | | |
| Total Value: | $764,720 | | |
| Tax Area: | 1 - OL-140-F |
| CERFD | CURRENT EXPENSE REFUND 010 | 0.0000000000 | $764,720 | $764,720 | $0.00 | | |
| CURREXP | CURRENT EXPENSE 010 | 1.0175366760 | $764,720 | $764,720 | $778.13 | | |
| HUMNSERV | HUMAN SERVICES 119 | 0.0250000000 | $764,720 | $764,720 | $19.12 | | |
| SLDREL | SOLDIERS RELIEF 121 | 0.0155990005 | $764,720 | $764,720 | $11.93 | | |
| EMERGSER | EMS 147 | 0.3792580840 | $764,720 | $764,720 | $290.03 | | |
| EMSRFD | EMS REFUND 147 | 0.0000000000 | $764,720 | $764,720 | $0.00 | | |
| PORTRFD | PORT REFUND 640 | 0.0000000000 | $764,720 | $764,720 | $0.00 | | |
| PORTWWGEN | PORT OF WW 640 | 0.2460186015 | $764,720 | $764,720 | $188.14 | | |
| SD140BOND | SD #140 BOND 764 | 0.8342371393 | $764,720 | $764,720 | $637.96 | | |
| SD140GEN | SD #140 GENERAL 760 | 2.0646500647 | $764,720 | $764,720 | $1,578.88 | | |
| ST2 | STATE SCHOOL PART 2 600 | 0.8131451643 | $764,720 | $764,720 | $621.83 | | |
| STATESCHL | STATE SCHOOL 600 | 1.5158548041 | $764,720 | $764,720 | $1,159.20 | | |
| STREFUND | STATE REFUND LEVY 603 | 0.0000000000 | $764,720 | $764,720 | $0.00 | | |
| CWWBOND | C OF WW BOND 643 | 0.2760494372 | $764,720 | $764,720 | $211.10 | | |
| CWWGEN | CITY OF WW 631 | 1.6100204973 | $764,720 | $764,720 | $1,231.21 | | |
| CWWRFD | CITY OF WALLA WALLA REFUND 631 | 0.0000000000 | $764,720 | $764,720 | $0.00 | | |
| | Total Tax Rate: | 8.7973694689 | | | | | |
| | | | | Taxes w/Current Exemptions: | $6,727.53 | | |
| | | | | Taxes w/o Exemptions: | $6,727.53 | | |
Improvement / Building
| Improvement #1: | RESIDENTIAL | State Code: | 11 | 3335.0 sqft | Value: | $615,090 |
| Exterior Wall: | SIDING | Heating/Cooling: | WARM & COOLED AIR | | Number of Bathrooms: | 4 | Number of Bedrooms: | 3 | | Plumbing: | 14 | Roof Covering: | WOOD SHAKE |
|
| | Type | Description | Class CD | Sub Class CD | Year Built | Area |
| | MA | Main Area | 1 | 45 | 1979 | 3335.0 |
| | SI1 | SITE IMPROVEMENT | 1 | 45 | 0 | 6.5 |
| | SMP | SWIMMING POOL | 1 | 45 | 0 | 1.0 |
| | BASE | BASEMENT | 1 | 45 | 1979 | 1951.0 |
| | BPF | BASEMENT -PARTITIONED FINISH | 1 | 45 | 1979 | 500.0 |
| | ATG | Attached Garage | 1 | 45 | 1979 | 625.0 |
| | OSP | Open | 1 | 45 | 1979 | 77.0 |
| | WOD | Wood Deck | 1 | 45 | 1979 | 286.0 |
| | S1F | Single One Story Fireplace | 1 | 45 | 1979 | 1.0 |
| | TOOL | TOOL SHED | 1 | 45 | 1979 | 140.0 |
Sketch
Property Image
Land
| 1 | RES 1 | Converted: Residential | 0.9871 | 42998.08 | 0.00 | 0.00 | 1.00 | $149,630 | $0 |
Roll Value History
| 2026 | N/A | N/A | N/A | N/A | N/A |
| 2025 | $582,750 | $199,510 | $0 | $782,260 | $782,260 |
| 2024 | $615,090 | $149,630 | $0 | $764,720 | $764,720 |
| 2023 | $615,090 | $149,630 | $0 | $764,720 | $764,720 |
| 2022 | $585,800 | $119,540 | $0 | $705,340 | $705,340 |
| 2021 | $585,800 | $119,540 | $0 | $705,340 | $705,340 |
| 2020 | $488,170 | $119,540 | $0 | $607,710 | $607,710 |
| 2019 | $488,170 | $119,540 | $0 | $607,710 | $607,710 |
| 2018 | $493,240 | $75,200 | $0 | $568,440 | $568,440 |
| 2017 | $493,240 | $75,200 | $0 | $568,440 | $568,440 |
| 2016 | $469,750 | $75,200 | $0 | $544,950 | $544,950 |
| 2015 | $469,750 | $75,200 | $0 | $544,950 | $544,950 |
| 2014 | $375,800 | $75,200 | $0 | $451,000 | $451,000 |
| 2013 | $375,800 | $75,200 | $0 | $451,000 | $451,000 |
| 2012 | $384,100 | $75,200 | $0 | $0 | $0 |
| 2011 | $384,100 | $75,200 | $0 | $0 | $0 |
| 2010 | $362,200 | $75,200 | $0 | $0 | $0 |
| 2009 | $387,700 | $75,200 | $0 | $0 | $0 |
| 2008 | $387,700 | $75,200 | $0 | $0 | $0 |
| 2007 | $255,900 | $70,000 | $0 | $0 | $0 |
Deed and Sales History
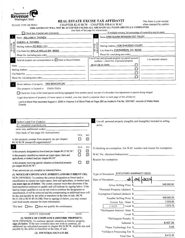
| 1 | 02/24/2014 | SWD | STATUTORY WARRANTY DEED | THYKEN WILLIAM H & CHERYL K | ERIK BJORN BENSON GST TRUST | | | $549,500.00 | 125464 | 2014-01287 |
| 2 | 06/26/2006 | WARRANTY D | WARRANTY DEED | BARGA, JACK L & MARY D | THYKEN, WILLIAM H & CHERYL K | | | $465,000.00 | 110605 | 2006-07502 |
Payout Agreement
| No payout information available.. |