Property
Account |
| Property ID: | 16151 | Abbreviated Legal Description: | 11-6-35 LOT 3 OF S/P (NELY PTN TAX 38 WITHIN SE1/4SW1/4) |
| Parcel Number: | 350611340064 | Agent Code: | |
| Type: | Real | | |
| Tax Area: | 311 - 250-4 | Land Use Code | 11 |
| Open Space: | N | DFL | N |
| Historic Property: | N | Remodel Property: | N |
| Multi-Family Redevelopment: | N | | |
| Township: | 6 | Section: | 11 |
| Range: | 35 |
Location |
| Address: | 502 COUNTY RD #448 WA 99324 | Mapsco: | |
| Neighborhood: | VG SFR RURAL | Map ID: | |
| Neighborhood CD: | 215013 |
Owner |
| Name: | EDWARDS SARA | Owner ID: | 68691 |
| Mailing Address: | 502 COUNTRY ROAD #448 WALLA WALLA, WA 99362 | % Ownership: | 100.0000000000% |
| | | Exemptions: | |
Taxes and Assessment Details
Property Tax Information as of
02/21/2026
Click on "Statement Details" to expand or collapse a tax statement.
* Please enter a valid date ** Please enter a valid date *
Statement Details |
| | TOTAL: | $0.00 | $0.00 | $0.00 | $0.00 | $0.00 | $0.00 |
|
| | $0.00 | $0.00 | $0.00 | $0.00 | $0.00 | $0.00 |
Values
| (+) Improvement Homesite Value: | + | $0 | |
| (+) Improvement Non-Homesite Value: | + | $402,620 | |
| (+) Land Homesite Value: | + | $0 | |
| (+) Land Non-Homesite Value: | + | $152,730 | |
| (+) Curr Use (HS): | + | $0 | $0 |
| (+) Curr Use (NHS): | + | $0 | $0 |
| | | -------------------------- | |
| (=) Market Value: | = | $555,350 | |
| (–) Productivity Loss: | – | $0 | |
| | | -------------------------- | |
| (=) Subtotal: | = | $555,350 | |
| (+) Senior Appraised Value: | + | $0 | |
| (+) Non-Senior Appraised Value: | + | $555,350 | |
| | | -------------------------- | |
| (=) Total Appraised Value: | = | $555,350 | |
| (–) Senior Exemption Loss: | – | $0 | |
| (–) Exemption Loss: | – | $0 | |
| | | -------------------------- | |
| (=) Taxable Value: | = | $555,350 | |
Taxing Jurisdiction
| Owner: | EDWARDS SARA | | |
| % Ownership: | 100.0000000000% | | |
| Total Value: | $555,350 | | |
| Tax Area: | 311 - 250-4 |
| CERFD | CURRENT EXPENSE REFUND 010 | 0.0000000000 | $555,350 | $555,350 | $0.00 | | |
| CURREXP | CURRENT EXPENSE 010 | 1.0175366760 | $555,350 | $555,350 | $565.09 | | |
| HUMNSERV | HUMAN SERVICES 119 | 0.0250000000 | $555,350 | $555,350 | $13.88 | | |
| SLDREL | SOLDIERS RELIEF 121 | 0.0155990005 | $555,350 | $555,350 | $8.66 | | |
| EMERGSER | EMS 147 | 0.3792580840 | $555,350 | $555,350 | $210.62 | | |
| EMSRFD | EMS REFUND 147 | 0.0000000000 | $555,350 | $555,350 | $0.00 | | |
| FD4EXP | FD #4 EXPENSE 686 | 0.8836993059 | $555,350 | $555,350 | $490.76 | | |
| RLBRFD | RURAL LIBRARY REFUND 623 | 0.0000000000 | $555,350 | $555,350 | $0.00 | | |
| RURALLIB | RURAL LIBRARY 623 | 0.3710609029 | $555,350 | $555,350 | $206.07 | | |
| PORTRFD | PORT REFUND 640 | 0.0000000000 | $555,350 | $555,350 | $0.00 | | |
| PORTWWGEN | PORT OF WW 640 | 0.2460186015 | $555,350 | $555,350 | $136.63 | | |
| SD250BOND | SD #250 BOND 773 | 1.4560608159 | $555,350 | $555,350 | $808.62 | | |
| SD250GEN | SD #250 GENERAL 770 | 2.3880724087 | $555,350 | $555,350 | $1,326.22 | | |
| ST2 | STATE SCHOOL PART 2 600 | 0.8131451643 | $555,350 | $555,350 | $451.58 | | |
| STATESCHL | STATE SCHOOL 600 | 1.5158548041 | $555,350 | $555,350 | $841.83 | | |
| STREFUND | STATE REFUND LEVY 603 | 0.0000000000 | $555,350 | $555,350 | $0.00 | | |
| COROAD | COUNTY ROAD 115 | 1.6549953990 | $555,350 | $555,350 | $919.10 | | |
| CRPRD | COUNTY ROAD REFUND 115 | 0.0000000000 | $555,350 | $555,350 | $0.00 | | |
| | Total Tax Rate: | 10.7663011628 | | | | | |
| | | | | Taxes w/Current Exemptions: | $5,979.06 | | |
| | | | | Taxes w/o Exemptions: | $5,979.06 | | |
Improvement / Building
| Improvement #1: | RESIDENTIAL | State Code: | 11 | 2442.0 sqft | Value: | $402,620 |
| Exterior Wall: | HARDBOARD | Heating/Cooling: | HEAT PUMP | | Number of Bathrooms: | 2 | Number of Bedrooms: | 4 | | Plumbing: | 12 | Roof Covering: | COMP SHINGLE |
|
| | Type | Description | Class CD | Sub Class CD | Year Built | Area |
| | MA | Main Area | 1 | 35 | 2007 | 2442.0 |
| | GFP | GAS FIREPLACE | 1 | 35 | 2007 | 1.0 |
| | SI1 | SITE IMPROVEMENT | 1 | 35 | 2007 | 5.0 |
| | RPO | OPEN PORCH W/ROOF | 1 | 35 | 2007 | 234.0 |
| | RPO | OPEN PORCH W/ROOF | 1 | 35 | 2007 | 396.0 |
| | ATG | Attached Garage | 1 | 35 | 2007 | 836.0 |
| | POLE | POLE UTILITY BUILDING | 1 | 30 | 2016 | 960.0 |
| | LNTD | LEAN TO DIRT FLOOR | 1 | 30 | 2016 | 400.0 |
| | LNTD | LEAN TO DIRT FLOOR | 1 | 30 | 2016 | 400.0 |
Sketch
Property Image
Land
| 1 | RES 1 | Converted: Residential | 1.1200 | 0.00 | 0.00 | 0.00 | 1.00 | $152,730 | $0 |
Roll Value History
| 2026 | N/A | N/A | N/A | N/A | N/A |
| 2025 | $503,280 | $152,730 | $0 | $656,010 | $656,010 |
| 2024 | $503,280 | $152,730 | $0 | $656,010 | $656,010 |
| 2023 | $402,620 | $152,730 | $0 | $555,350 | $555,350 |
| 2022 | $366,020 | $152,730 | $0 | $518,750 | $518,750 |
| 2021 | $318,280 | $152,730 | $0 | $471,010 | $471,010 |
| 2020 | $304,960 | $75,600 | $0 | $380,560 | $380,560 |
| 2019 | $304,960 | $75,600 | $0 | $380,560 | $380,560 |
| 2018 | $277,230 | $75,600 | $0 | $352,830 | $352,830 |
| 2017 | $264,030 | $75,600 | $0 | $339,630 | $339,630 |
| 2016 | $203,100 | $75,600 | $0 | $278,700 | $278,700 |
| 2015 | $203,100 | $75,600 | $0 | $278,700 | $278,700 |
| 2014 | $203,100 | $75,600 | $0 | $278,700 | $278,700 |
| 2013 | $203,100 | $75,600 | $0 | $278,700 | $278,700 |
| 2012 | $203,100 | $75,600 | $0 | $0 | $0 |
| 2011 | $203,100 | $75,600 | $0 | $0 | $0 |
| 2010 | $203,100 | $75,600 | $0 | $0 | $0 |
| 2009 | $240,900 | $45,500 | $0 | $0 | $0 |
| 2008 | $240,900 | $45,500 | $0 | $0 | $0 |
| 2007 | $0 | $45,500 | $0 | $0 | $0 |
Deed and Sales History
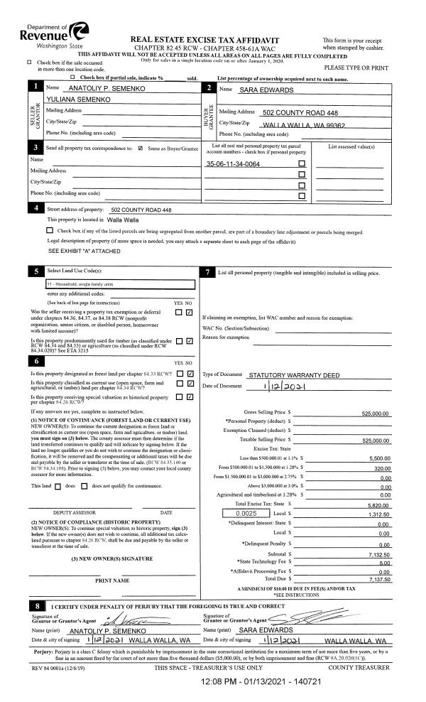
| 1 | 01/13/2021 | SWD | STATUTORY WARRANTY DEED | SEMENKO ANATOLIY P & YULIANA | EDWARDS SARA | | | $525,000.00 | 140721 | 2021-00516 |
| 2 | 07/19/2006 | WARRANTY D | WARRANTY DEED | LINEBAUGH, PAUL & SHERRIE | HITT, LINDA | | | | 86328 | 2006-08422 |
| 3 | 06/26/2006 | QCD | QUIT CLAIM DEED | SEMENKO, ANATOLIY | SEMENKO, ANATOLIY P & YULIANA | | | | 110603 | 2006-07486 |
| 4 | 06/19/1996 | WARRANTY D | WARRANTY DEED | | | | | $35,000.00 | 86328 | 2429-606127 |
Payout Agreement
| No payout information available.. |