Property
Account |
| Property ID: | 16149 | Abbreviated Legal Description: | PARK ST GARDENS LT 7 BLK 1 |
| Parcel Number: | 360728650107 | Agent Code: | |
| Type: | Real | | |
| Tax Area: | 1 - OL-140-F | Land Use Code | 11 |
| Open Space: | N | DFL | N |
| Historic Property: | N | Remodel Property: | N |
| Multi-Family Redevelopment: | N | | |
| Township: | 7 | Section: | 28 |
| Range: | 36 |
Location |
| Address: | 631 E CHESTNUT ST WA 99362 | Mapsco: | |
| Neighborhood: | A Res | Map ID: | |
| Neighborhood CD: | 613011 |
Owner |
| Name: | LANDL SHARLEEN D & ERIC A | Owner ID: | 69841 |
| Mailing Address: | 631 E CHESTNUT ST WALLA WALLA, WA 99362 | % Ownership: | 100.0000000000% |
| | | Exemptions: | |
Taxes and Assessment Details
Property Tax Information as of
02/21/2026
Click on "Statement Details" to expand or collapse a tax statement.
* Please enter a valid date ** Please enter a valid date *
Statement Details |
| | TOTAL: | $0.00 | $0.00 | $0.00 | $0.00 | $0.00 | $0.00 |
|
| | $0.00 | $0.00 | $0.00 | $0.00 | $0.00 | $0.00 |
Values
| (+) Improvement Homesite Value: | + | $0 | |
| (+) Improvement Non-Homesite Value: | + | $267,150 | |
| (+) Land Homesite Value: | + | $0 | |
| (+) Land Non-Homesite Value: | + | $70,000 | |
| (+) Curr Use (HS): | + | $0 | $0 |
| (+) Curr Use (NHS): | + | $0 | $0 |
| | | -------------------------- | |
| (=) Market Value: | = | $337,150 | |
| (–) Productivity Loss: | – | $0 | |
| | | -------------------------- | |
| (=) Subtotal: | = | $337,150 | |
| (+) Senior Appraised Value: | + | $0 | |
| (+) Non-Senior Appraised Value: | + | $337,150 | |
| | | -------------------------- | |
| (=) Total Appraised Value: | = | $337,150 | |
| (–) Senior Exemption Loss: | – | $0 | |
| (–) Exemption Loss: | – | $0 | |
| | | -------------------------- | |
| (=) Taxable Value: | = | $337,150 | |
Taxing Jurisdiction
| Owner: | LANDL SHARLEEN D & ERIC A | | |
| % Ownership: | 100.0000000000% | | |
| Total Value: | $337,150 | | |
| Tax Area: | 1 - OL-140-F |
| CERFD | CURRENT EXPENSE REFUND 010 | 0.0000000000 | $337,150 | $337,150 | $0.00 | | |
| CURREXP | CURRENT EXPENSE 010 | 1.0175366760 | $337,150 | $337,150 | $343.06 | | |
| HUMNSERV | HUMAN SERVICES 119 | 0.0250000000 | $337,150 | $337,150 | $8.43 | | |
| SLDREL | SOLDIERS RELIEF 121 | 0.0155990005 | $337,150 | $337,150 | $5.26 | | |
| EMERGSER | EMS 147 | 0.3792580840 | $337,150 | $337,150 | $127.87 | | |
| EMSRFD | EMS REFUND 147 | 0.0000000000 | $337,150 | $337,150 | $0.00 | | |
| PORTRFD | PORT REFUND 640 | 0.0000000000 | $337,150 | $337,150 | $0.00 | | |
| PORTWWGEN | PORT OF WW 640 | 0.2460186015 | $337,150 | $337,150 | $82.95 | | |
| SD140BOND | SD #140 BOND 764 | 0.8342371393 | $337,150 | $337,150 | $281.26 | | |
| SD140GEN | SD #140 GENERAL 760 | 2.0646500647 | $337,150 | $337,150 | $696.10 | | |
| ST2 | STATE SCHOOL PART 2 600 | 0.8131451643 | $337,150 | $337,150 | $274.15 | | |
| STATESCHL | STATE SCHOOL 600 | 1.5158548041 | $337,150 | $337,150 | $511.07 | | |
| STREFUND | STATE REFUND LEVY 603 | 0.0000000000 | $337,150 | $337,150 | $0.00 | | |
| CWWBOND | C OF WW BOND 643 | 0.2760494372 | $337,150 | $337,150 | $93.07 | | |
| CWWGEN | CITY OF WW 631 | 1.6100204973 | $337,150 | $337,150 | $542.82 | | |
| CWWRFD | CITY OF WALLA WALLA REFUND 631 | 0.0000000000 | $337,150 | $337,150 | $0.00 | | |
| | Total Tax Rate: | 8.7973694689 | | | | | |
| | | | | Taxes w/Current Exemptions: | $2,966.04 | | |
| | | | | Taxes w/o Exemptions: | $2,966.04 | | |
Improvement / Building
| Improvement #1: | RESIDENTIAL | State Code: | 11 | 690.0 sqft | Value: | $267,150 |
| Exterior Wall: | SHINGLE | Heating/Cooling: | FORCED AIR | | Number of Bathrooms: | 1 | Number of Bedrooms: | 2 | | Plumbing: | 7 | Roof Covering: | COMP SHINGLE |
|
| | Type | Description | Class CD | Sub Class CD | Year Built | Area |
| | MA | Main Area | 1 | 30 | 1937 | 690.0 |
| | SI1 | SITE IMPROVEMENT | 1 | 30 | 1937 | 3.0 |
| | BASE | BASEMENT | 1 | 30 | 1937 | 517.0 |
| | RPO | OPEN PORCH W/ROOF | 1 | 30 | 2018 | 20.0 |
| | OPS | OPEN PORCH W/STEPS | 1 | 30 | 2018 | 64.0 |
| | DTG | Detached Garage | 1 | 30 | 1937 | 324.0 |
Sketch
Property Image
Land
| 1 | RES 1 | Converted: Residential | 0.1377 | 6000.00 | 0.00 | 0.00 | 1.00 | $70,000 | $0 |
Roll Value History
| 2026 | N/A | N/A | N/A | N/A | N/A |
| 2025 | $243,420 | $66,000 | $0 | $309,420 | $309,420 |
| 2024 | $267,150 | $70,000 | $0 | $337,150 | $337,150 |
| 2023 | $267,150 | $70,000 | $0 | $337,150 | $337,150 |
| 2022 | $267,150 | $55,000 | $0 | $322,150 | $322,150 |
| 2021 | $127,210 | $55,000 | $0 | $182,210 | $182,210 |
| 2020 | $110,620 | $55,000 | $0 | $165,620 | $165,620 |
| 2019 | $110,620 | $55,000 | $0 | $165,620 | $165,620 |
| 2018 | $102,080 | $36,000 | $0 | $138,080 | $138,080 |
| 2017 | $92,800 | $36,000 | $0 | $128,800 | $128,800 |
| 2016 | $77,330 | $36,000 | $0 | $113,330 | $113,330 |
| 2015 | $70,300 | $36,000 | $0 | $106,300 | $106,300 |
| 2014 | $70,300 | $36,000 | $0 | $106,300 | $106,300 |
| 2013 | $70,300 | $36,000 | $0 | $106,300 | $106,300 |
| 2012 | $72,500 | $36,000 | $0 | $0 | $0 |
| 2011 | $72,500 | $36,000 | $0 | $0 | $0 |
| 2010 | $72,500 | $36,000 | $0 | $0 | $0 |
| 2009 | $84,600 | $36,000 | $0 | $0 | $0 |
| 2008 | $84,600 | $36,000 | $0 | $0 | $0 |
| 2007 | $38,200 | $18,000 | $0 | $0 | $0 |
Deed and Sales History
| 1 | 10/04/2024 | SWD | STATUTORY WARRANTY DEED | LANDL SHARLEEN D & ERIC A | WASHBURN JODY E | | | $329,900.00 | 148318 | 2024-05781 |
| 2 | 07/16/2021 | SWD | STATUTORY WARRANTY DEED | NIDEROST TARAH | LANDL SHARLEEN D & ERIC A | | | $385,000.00 | 142059 | 2021-08687 |
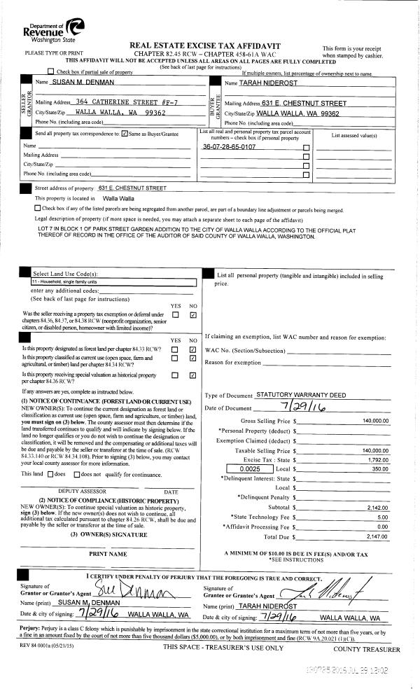
| 3 | 07/29/2016 | SWD | STATUTORY WARRANTY DEED | DENMAN SUSAN M | NIDEROST TARAH | | | $140,000.00 | 130725 | 2016-05954 |
| 4 | 06/27/2006 | WARRANTY D | WARRANTY DEED | STODOLA, SHANE | DENMAN, SUSAN M | | | $120,000.00 | 110610 | 2006-07543 |
| 5 | 01/20/2004 | WARRANTY D | WARRANTY DEED | BASLEE, SCOTT D | STODOLA, SHANE | | | $79,900.00 | 103945 | 2004-00602 |
| 6 | 11/19/2002 | WARRANTY D | WARRANTY DEED | BUNDY, BETTINA | BASLEE, SCOTT D | | | | 94579 | 2002-13166 |
| 7 | 11/13/2002 | QCD | QUIT CLAIM DEED | BASLEE, PENNY G | BASLEE, SCOTT D | | | | 100794 | 2002-12929 |
| 8 | 02/24/2000 | WARRANTY D | WARRANTY DEED | | | | | $51,000.00 | 94579 | 2950-001783 |
Payout Agreement
| No payout information available.. |