Property
Account |
| Property ID: | 16138 | Abbreviated Legal Description: | SPRING BRANCH SUBD LOT 2 LESS PTN IN NW CORNER FOR RD PURPOSES |
| Parcel Number: | 360606530002 | Agent Code: | |
| Type: | Real | | |
| Tax Area: | 101 - 140-4 | Land Use Code | 83 |
| Open Space: | Y | DFL | N |
| Historic Property: | N | Remodel Property: | N |
| Multi-Family Redevelopment: | N | | |
| Township: | 6 | Section: | 6 |
| Range: | 36 |
Location |
| Address: | WA 99362 | Mapsco: | |
| Neighborhood: | 0 Farm | Map ID: | |
| Neighborhood CD: | 4240 |
Owner |
| Name: | BUTTICE ERNEST & BARBARA TRUST | Owner ID: | 74066 |
| Mailing Address: | C/O ERNEST LEROY & BARBARA MARY BUTTICE 3526 BUTTICE LANE WALLA WALLA, WA 99362 | % Ownership: | 100.0000000000% |
| | | Exemptions: | |
Taxes and Assessment Details
Values
| (+) Improvement Homesite Value: | + | N/A | |
| (+) Improvement Non-Homesite Value: | + | N/A | |
| (+) Land Homesite Value: | + | N/A | |
| (+) Land Non-Homesite Value: | + | N/A | Ag / Timber Use Value |
| (+) Curr Use (HS): | + | N/A | N/A |
| (+) Curr Use (NHS): | + | N/A | N/A |
| | | -------------------------- | |
| (=) Market Value: | = | N/A | |
| (–) Productivity Loss: | – | N/A | |
| | | -------------------------- | |
| (=) Subtotal: | = | N/A | |
| (+) Senior Appraised Value: | + | N/A | |
| (+) Non-Senior Appraised Value: | + | N/A | |
| | | -------------------------- | |
| (=) Total Appraised Value: | = | N/A | |
| (–) Senior Exemption Loss: | – | N/A | |
| (–) Exemption Loss: | – | N/A | |
| | | -------------------------- | |
| (=) Taxable Value: | = | N/A | |
Taxing Jurisdiction
| Owner: | BUTTICE ERNEST & BARBARA TRUST | | |
| % Ownership: | 100.0000000000% | | |
| Total Value: | N/A | | |
| Tax Area: | 101 - 140-4 |
| CERFD | CURRENT EXPENSE REFUND 010 | N/A | N/A | N/A | N/A | | |
| CURREXP | CURRENT EXPENSE 010 | N/A | N/A | N/A | N/A | | |
| HUMNSERV | HUMAN SERVICES 119 | N/A | N/A | N/A | N/A | | |
| SLDREL | SOLDIERS RELIEF 121 | N/A | N/A | N/A | N/A | | |
| EMERGSER | EMS 147 | N/A | N/A | N/A | N/A | | |
| EMSRFD | EMS REFUND 147 | N/A | N/A | N/A | N/A | | |
| FD4EXP | FD #4 EXPENSE 686 | N/A | N/A | N/A | N/A | | |
| RLBRFD | RURAL LIBRARY REFUND 623 | N/A | N/A | N/A | N/A | | |
| RURALLIB | RURAL LIBRARY 623 | N/A | N/A | N/A | N/A | | |
| PORTRFD | PORT REFUND 640 | N/A | N/A | N/A | N/A | | |
| PORTWWGEN | PORT OF WW 640 | N/A | N/A | N/A | N/A | | |
| SD140BOND | SD #140 BOND 764 | N/A | N/A | N/A | N/A | | |
| SD140GEN | SD #140 GENERAL 760 | N/A | N/A | N/A | N/A | | |
| ST2 | STATE SCHOOL PART 2 600 | N/A | N/A | N/A | N/A | | |
| STATESCHL | STATE SCHOOL 600 | N/A | N/A | N/A | N/A | | |
| STREFUND | STATE REFUND LEVY 603 | N/A | N/A | N/A | N/A | | |
| COROAD | COUNTY ROAD 115 | N/A | N/A | N/A | N/A | | |
| CRPRD | COUNTY ROAD REFUND 115 | N/A | N/A | N/A | N/A | | |
| | Total Tax Rate: | N/A | | | | | |
| | | | | Taxes w/Current Exemptions: | N/A | | |
| | | | | Taxes w/o Exemptions: | N/A | | |
Improvement / Building
Sketch
| No sketches available for this property. |
Property Image
Land
| 1 | 8000-C1-I | Class 1 irrigated | 5.7200 | 0.00 | 0.00 | 0.00 | 1.00 | N/A | N/A |
Roll Value History
| 2026 | N/A | N/A | N/A | N/A | N/A |
| 2025 | $0 | $45,760 | $7,110 | $7,110 | $7,110 |
| 2024 | $0 | $45,760 | $7,240 | $7,240 | $7,240 |
| 2023 | $0 | $45,760 | $7,210 | $7,210 | $7,210 |
| 2022 | $0 | $45,760 | $7,090 | $7,090 | $7,090 |
| 2021 | $0 | $45,760 | $7,090 | $7,090 | $7,090 |
| 2020 | $0 | $45,760 | $7,240 | $7,240 | $7,240 |
| 2019 | $0 | $45,760 | $7,460 | $7,460 | $7,460 |
| 2018 | $0 | $45,760 | $7,600 | $7,600 | $7,600 |
| 2017 | $0 | $45,760 | $7,840 | $7,840 | $7,840 |
| 2016 | $0 | $45,760 | $7,870 | $7,870 | $7,870 |
| 2015 | $0 | $45,760 | $7,170 | $7,170 | $7,170 |
| 2014 | $0 | $45,760 | $7,170 | $7,170 | $7,170 |
| 2013 | $0 | $45,800 | $6,100 | $6,100 | $6,100 |
| 2012 | $0 | $4,900 | $0 | $0 | $0 |
| 2011 | $0 | $4,700 | $0 | $0 | $0 |
| 2010 | $0 | $4,800 | $0 | $0 | $0 |
| 2009 | $0 | $4,800 | $0 | $0 | $0 |
| 2008 | $0 | $5,800 | $0 | $0 | $0 |
| 2007 | $0 | $6,300 | $0 | $0 | $0 |
Deed and Sales History
| 1 | 12/04/2023 | WARRANTY D | WARRANTY DEED | BUTTICE ERNEST LEROY | BUTTICE ERNEST & BARBARA TRUST | | | | 146555 | 2023-05724 |
| 2 | 06/09/2017 | QCD | QUIT CLAIM DEED | BUTTICE ERNEST & PATRICIA LIFE ESTATE | BUTTICE ERNEST LEROY | | | $0.00 | 132576 | 2017-04430 |
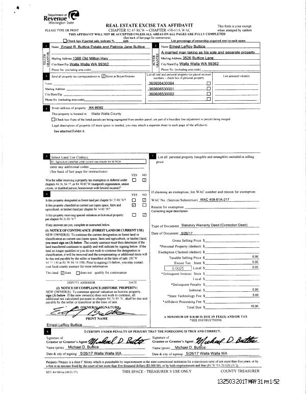
| 3 | 05/26/2017 | SWD | STATUTORY WARRANTY DEED | BUTTICE ERNEST L | BUTTICE ERNEST & PATRICIA LIFE ESTATE | | | $0.00 | 132503 | 2017-04136 |
| 4 | 06/21/2006 | WARRANTY D | WARRANTY DEED | BUTTICE, ERNEST R & PATRICIA J | BUTTICE ERNEST & PATRICIA LIFE ESTATE | | | | 110558 | 2006-07272 |
| 5 | 04/04/1974 | WARRANTY D | WARRANTY DEED | | | | | $17,500.00 | 0 | 1405-94000 |
|   | |
Payout Agreement
| No payout information available.. |