Property
Account |
| Property ID: | 16125 | Abbreviated Legal Description: | VALLEY MKTING LT 6 & 8 LESS W 50 ' BLK 1 (A) |
| Parcel Number: | 350725570106 | Agent Code: | |
| Type: | Real | | |
| Tax Area: | 75 - CP 250 | Land Use Code | 11 |
| Open Space: | N | DFL | N |
| Historic Property: | N | Remodel Property: | N |
| Multi-Family Redevelopment: | N | | |
| Township: | 7 | Section: | 25 |
| Range: | 35 |
Location |
| Address: | 117 NE ASH AVE WA 99324 | Mapsco: | |
| Neighborhood: | A SFR | Map ID: | |
| Neighborhood CD: | 113011 |
Owner |
| Name: | DAGOSTINO MARK | Owner ID: | 67732 |
| Mailing Address: | 117 NE ASH AVE COLLEGE PLACE, WA 99324 | % Ownership: | 100.0000000000% |
| | | Exemptions: | |
Taxes and Assessment Details
Values
| (+) Improvement Homesite Value: | + | $0 | |
| (+) Improvement Non-Homesite Value: | + | $297,530 | |
| (+) Land Homesite Value: | + | $0 | |
| (+) Land Non-Homesite Value: | + | $58,320 | |
| (+) Curr Use (HS): | + | $0 | $0 |
| (+) Curr Use (NHS): | + | $0 | $0 |
| | | -------------------------- | |
| (=) Market Value: | = | $355,850 | |
| (–) Productivity Loss: | – | $0 | |
| | | -------------------------- | |
| (=) Subtotal: | = | $355,850 | |
| (+) Senior Appraised Value: | + | $0 | |
| (+) Non-Senior Appraised Value: | + | $355,850 | |
| | | -------------------------- | |
| (=) Total Appraised Value: | = | $355,850 | |
| (–) Senior Exemption Loss: | – | $0 | |
| (–) Exemption Loss: | – | $0 | |
| | | -------------------------- | |
| (=) Taxable Value: | = | $355,850 | |
Taxing Jurisdiction
| Owner: | DAGOSTINO MARK | | |
| % Ownership: | 100.0000000000% | | |
| Total Value: | $355,850 | | |
| Tax Area: | 75 - CP 250 |
| CERFD | CURRENT EXPENSE REFUND 010 | 0.0000000000 | $355,850 | $355,850 | $0.00 | | |
| CURREXP | CURRENT EXPENSE 010 | 1.0175366760 | $355,850 | $355,850 | $362.09 | | |
| HUMNSERV | HUMAN SERVICES 119 | 0.0250000000 | $355,850 | $355,850 | $8.90 | | |
| SLDREL | SOLDIERS RELIEF 121 | 0.0155990005 | $355,850 | $355,850 | $5.55 | | |
| COLLPLBOND | C OF CP BOND 644 | 0.4374241808 | $355,850 | $355,850 | $155.66 | | |
| COLLPLGEN | CITY OF CP 632 | 1.4453819216 | $355,850 | $355,850 | $514.34 | | |
| EMERGSER | EMS 147 | 0.3792580840 | $355,850 | $355,850 | $134.96 | | |
| EMSRFD | EMS REFUND 147 | 0.0000000000 | $355,850 | $355,850 | $0.00 | | |
| RURALLIB | RURAL LIBRARY 623 | 0.3710609029 | $355,850 | $355,850 | $132.04 | | |
| PORTRFD | PORT REFUND 640 | 0.0000000000 | $355,850 | $355,850 | $0.00 | | |
| PORTWWGEN | PORT OF WW 640 | 0.2460186015 | $355,850 | $355,850 | $87.55 | | |
| SD250BOND | SD #250 BOND 773 | 1.4560608159 | $355,850 | $355,850 | $518.14 | | |
| SD250GEN | SD #250 GENERAL 770 | 2.3880724087 | $355,850 | $355,850 | $849.80 | | |
| ST2 | STATE SCHOOL PART 2 600 | 0.8131451643 | $355,850 | $355,850 | $289.36 | | |
| STATESCHL | STATE SCHOOL 600 | 1.5158548041 | $355,850 | $355,850 | $539.42 | | |
| STREFUND | STATE REFUND LEVY 603 | 0.0000000000 | $355,850 | $355,850 | $0.00 | | |
| | Total Tax Rate: | 10.1104125603 | | | | | |
| | | | | Taxes w/Current Exemptions: | $3,597.81 | | |
| | | | | Taxes w/o Exemptions: | $3,597.81 | | |
Improvement / Building
| Improvement #1: | RESIDENTIAL | State Code: | 11 | 2468.0 sqft | Value: | $297,530 |
| Exterior Wall: | VINYL | Heating/Cooling: | HEAT PUMP | | Number of Bathrooms: | 3 | Number of Bedrooms: | 7 | | Plumbing: | 12 | Roof Covering: | COMP SHINGLE |
|
| | Type | Description | Class CD | Sub Class CD | Year Built | Area |
| | MA | Main Area | 4 | 30 | 1950 | 2468.0 |
| | SI1 | SITE IMPROVEMENT | 4 | 30 | 1950 | 1.5 |
| | UPFL | Upper Floor (included in main area) | 4 | 30 | 1950 | 769.0 |
| | BIG | Built In Garage | 4 | 30 | 1950 | 609.0 |
| | RPC | OPEN PORCH W/ROOF , CEILED | 4 | 30 | 1950 | 128.0 |
| | S1F | Single One Story Fireplace | 4 | 30 | 1950 | 1.0 |
| | UTST | Utility Storage Shed | 4 | 30 | 1950 | 108.0 |
Sketch
Property Image
Land
| 1 | RES 1 | Converted: Residential | 0.1983 | 8640.00 | 0.00 | 0.00 | 1.00 | $58,320 | $0 |
Roll Value History
| 2026 | N/A | N/A | N/A | N/A | N/A |
| 2025 | $267,780 | $86,400 | $0 | $354,180 | $354,180 |
| 2024 | $297,530 | $58,320 | $0 | $355,850 | $355,850 |
| 2023 | $297,530 | $58,320 | $0 | $355,850 | $355,850 |
| 2022 | $297,530 | $58,320 | $0 | $355,850 | $355,850 |
| 2021 | $297,530 | $58,320 | $0 | $355,850 | $355,850 |
| 2020 | $212,520 | $58,320 | $0 | $270,840 | $270,840 |
| 2019 | $224,840 | $46,000 | $0 | $270,840 | $270,840 |
| 2018 | $160,600 | $46,000 | $0 | $206,600 | $206,600 |
| 2017 | $160,600 | $46,000 | $0 | $206,600 | $206,600 |
| 2016 | $146,000 | $46,000 | $0 | $192,000 | $192,000 |
| 2015 | $146,000 | $46,000 | $0 | $192,000 | $192,000 |
| 2014 | $146,000 | $46,000 | $0 | $192,000 | $192,000 |
| 2013 | $146,000 | $46,000 | $0 | $192,000 | $192,000 |
| 2012 | $146,000 | $46,000 | $0 | $0 | $0 |
| 2011 | $146,000 | $46,000 | $0 | $0 | $0 |
| 2010 | $128,500 | $46,000 | $0 | $0 | $0 |
| 2009 | $147,900 | $46,000 | $0 | $0 | $0 |
| 2008 | $108,400 | $23,500 | $0 | $0 | $0 |
| 2007 | $108,400 | $23,500 | $0 | $0 | $0 |
Deed and Sales History
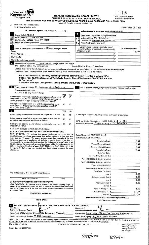
| 1 | 08/28/2020 | QCD | QUIT CLAIM DEED | ELELETH 10 LLC | DAGOSTINO MARK | | | | 139797 | 2020-08687 |
| 2 | 02/04/2019 | QCD | QUIT CLAIM DEED | NW TRUST 318 | ELELETH 10 LLC | | | $0.00 | 136395 | 2019-01011 |
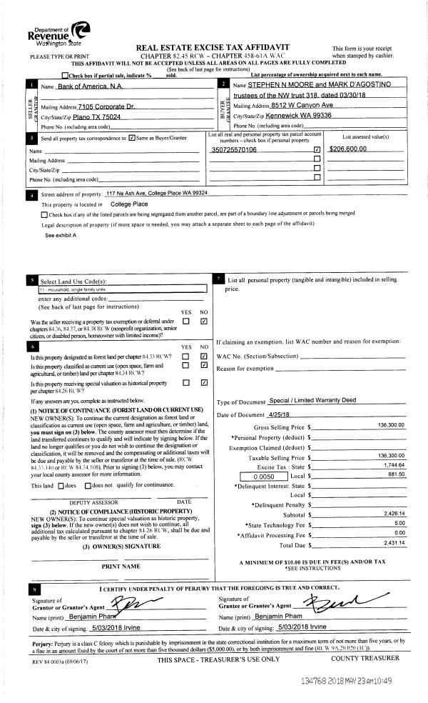
| 3 | 05/23/2018 | SWP | Special Warranty Deed | BANK OF AMERICA | NW TRUST 318 | | | $136,300.00 | 134768 | 2018-04063 |
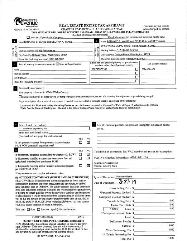
| 4 | 02/22/2018 | TRUSTEES D | TRUSTEE'S DEED | YANKE LIVING TRUST | BANK OF AMERICA | | | $151,200.00 | 134192 | 2018-01471 |
| 5 | 04/11/2014 | WARRANTY D | WARRANTY DEED | YANKE BERNARD B & DELPHIA A | YANKE LIVING TRUST | | | $0.00 | 125709 | 2014-02468 |
| 6 | 10/10/2002 | QCD | QUIT CLAIM DEED | YANKE, BERNARD | YANKE, BERNARD | | | | 100557 | 2002-11438 |
| 7 | 10/24/1968 | WARRANTY D | WARRANTY DEED | | | | | $18,500.00 | 0 | 1268-100486 |
Payout Agreement
| No payout information available.. |