Property
Account |
| Property ID: | 16123 | Abbreviated Legal Description: | VALLEY MARKETING LOT 5 BLK E |
| Parcel Number: | 350725570505 | Agent Code: | |
| Type: | Real | | |
| Tax Area: | 75 - CP 250 | Land Use Code | 11 |
| Open Space: | N | DFL | N |
| Historic Property: | N | Remodel Property: | N |
| Multi-Family Redevelopment: | N | | |
| Township: | 7 | Section: | 25 |
| Range: | 35 |
Location |
| Address: | 50 NE ASH AVE WA 99324 | Mapsco: | |
| Neighborhood: | A SFR | Map ID: | |
| Neighborhood CD: | 113011 |
Owner |
| Name: | LONG JOSH S & SASHA S | Owner ID: | 67345 |
| Mailing Address: | 50 NE ASH AVE COLLEGE PLACE, WA 99324 | % Ownership: | 100.0000000000% |
| | | Exemptions: | |
Taxes and Assessment Details
Values
| (+) Improvement Homesite Value: | + | $0 | |
| (+) Improvement Non-Homesite Value: | + | $303,020 | |
| (+) Land Homesite Value: | + | $0 | |
| (+) Land Non-Homesite Value: | + | $57,510 | |
| (+) Curr Use (HS): | + | $0 | $0 |
| (+) Curr Use (NHS): | + | $0 | $0 |
| | | -------------------------- | |
| (=) Market Value: | = | $360,530 | |
| (–) Productivity Loss: | – | $0 | |
| | | -------------------------- | |
| (=) Subtotal: | = | $360,530 | |
| (+) Senior Appraised Value: | + | $0 | |
| (+) Non-Senior Appraised Value: | + | $360,530 | |
| | | -------------------------- | |
| (=) Total Appraised Value: | = | $360,530 | |
| (–) Senior Exemption Loss: | – | $0 | |
| (–) Exemption Loss: | – | $0 | |
| | | -------------------------- | |
| (=) Taxable Value: | = | $360,530 | |
Taxing Jurisdiction
| Owner: | LONG JOSH S & SASHA S | | |
| % Ownership: | 100.0000000000% | | |
| Total Value: | $360,530 | | |
| Tax Area: | 75 - CP 250 |
| CERFD | CURRENT EXPENSE REFUND 010 | 0.0000000000 | $360,530 | $360,530 | $0.00 | | |
| CURREXP | CURRENT EXPENSE 010 | 1.0175366760 | $360,530 | $360,530 | $366.85 | | |
| HUMNSERV | HUMAN SERVICES 119 | 0.0250000000 | $360,530 | $360,530 | $9.01 | | |
| SLDREL | SOLDIERS RELIEF 121 | 0.0155990005 | $360,530 | $360,530 | $5.62 | | |
| COLLPLBOND | C OF CP BOND 644 | 0.4374241808 | $360,530 | $360,530 | $157.70 | | |
| COLLPLGEN | CITY OF CP 632 | 1.4453819216 | $360,530 | $360,530 | $521.10 | | |
| EMERGSER | EMS 147 | 0.3792580840 | $360,530 | $360,530 | $136.73 | | |
| EMSRFD | EMS REFUND 147 | 0.0000000000 | $360,530 | $360,530 | $0.00 | | |
| RURALLIB | RURAL LIBRARY 623 | 0.3710609029 | $360,530 | $360,530 | $133.78 | | |
| PORTRFD | PORT REFUND 640 | 0.0000000000 | $360,530 | $360,530 | $0.00 | | |
| PORTWWGEN | PORT OF WW 640 | 0.2460186015 | $360,530 | $360,530 | $88.70 | | |
| SD250BOND | SD #250 BOND 773 | 1.4560608159 | $360,530 | $360,530 | $524.95 | | |
| SD250GEN | SD #250 GENERAL 770 | 2.3880724087 | $360,530 | $360,530 | $860.97 | | |
| ST2 | STATE SCHOOL PART 2 600 | 0.8131451643 | $360,530 | $360,530 | $293.16 | | |
| STATESCHL | STATE SCHOOL 600 | 1.5158548041 | $360,530 | $360,530 | $546.51 | | |
| STREFUND | STATE REFUND LEVY 603 | 0.0000000000 | $360,530 | $360,530 | $0.00 | | |
| | Total Tax Rate: | 10.1104125603 | | | | | |
| | | | | Taxes w/Current Exemptions: | $3,645.08 | | |
| | | | | Taxes w/o Exemptions: | $3,645.08 | | |
Improvement / Building
| Improvement #1: | RESIDENTIAL | State Code: | 11 | 1018.0 sqft | Value: | $303,020 |
| Exterior Wall: | SIDING | Heating/Cooling: | FORCED AIR | | Number of Bathrooms: | 2 | Number of Bedrooms: | 2 | | Plumbing: | 9 | Roof Covering: | COMP SHINGLE |
|
| | Type | Description | Class CD | Sub Class CD | Year Built | Area |
| | MA | Main Area | 1 | 30 | 1948 | 1018.0 |
| | SI1 | SITE IMPROVEMENT | 1 | 30 | 1948 | 1.0 |
| | BASE | BASEMENT | 1 | 30 | 1948 | 1018.0 |
| | BPF | BASEMENT -PARTITIONED FINISH | 1 | 30 | 1948 | 1018.0 |
| | ATG | Attached Garage | 1 | 30 | 1948 | 330.0 |
| | RPS | PORCH W/STEPS,ROOF | 1 | 30 | 1948 | 114.0 |
| | S1F | Single One Story Fireplace | 1 | 30 | 1948 | 1.0 |
| | TOOL | TOOL SHED | 1 | 30 | 1948 | 130.0 |
Sketch
Property Image
Land
| 1 | RES 1 | Converted: Residential | 0.1956 | 8520.00 | 0.00 | 0.00 | 1.00 | $57,510 | $0 |
Roll Value History
| 2026 | N/A | N/A | N/A | N/A | N/A |
| 2025 | $287,860 | $85,200 | $0 | $373,060 | $373,060 |
| 2024 | $303,020 | $57,510 | $0 | $360,530 | $360,530 |
| 2023 | $303,020 | $57,510 | $0 | $360,530 | $360,530 |
| 2022 | $275,470 | $57,510 | $0 | $332,980 | $332,980 |
| 2021 | $204,050 | $57,510 | $0 | $261,560 | $261,560 |
| 2020 | $145,750 | $57,510 | $0 | $203,260 | $203,260 |
| 2019 | $157,360 | $45,900 | $0 | $203,260 | $203,260 |
| 2018 | $157,360 | $45,900 | $0 | $203,260 | $203,260 |
| 2017 | $131,140 | $45,900 | $0 | $177,040 | $177,040 |
| 2016 | $114,030 | $45,900 | $0 | $159,930 | $159,930 |
| 2015 | $108,600 | $45,900 | $0 | $154,500 | $154,500 |
| 2014 | $108,600 | $45,900 | $0 | $154,500 | $154,500 |
| 2013 | $108,600 | $45,900 | $0 | $154,500 | $154,500 |
| 2012 | $108,600 | $45,900 | $0 | $0 | $0 |
| 2011 | $108,600 | $45,900 | $0 | $0 | $0 |
| 2010 | $101,200 | $45,900 | $0 | $0 | $0 |
| 2009 | $117,500 | $45,900 | $0 | $0 | $0 |
| 2008 | $82,200 | $23,400 | $0 | $0 | $0 |
| 2007 | $82,200 | $23,400 | $0 | $0 | $0 |
Deed and Sales History
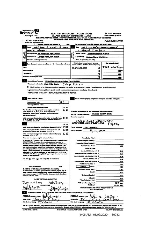
| 1 | 05/29/2020 | QCD | QUIT CLAIM DEED | LONG JOSH S | LONG JOSH S & SASHA S | | | $0.00 | 139242 | 2020-05147 |
| 2 | 03/22/2007 | WARRANTY D | WARRANTY DEED | WALLA WALLA COLLEGE | LONG, JOSH S | | | $172,900.00 | 112444 | 2007-03158 |
| 3 | 03/19/1992 | WARRANTY D | WARRANTY DEED | | | | | $40,919.00 | 76504 | 1959-202380 |
Payout Agreement
| No payout information available.. |