| 1 | 10/06/2021 | QCD | QUIT CLAIM DEED | HANSEN ZACHARY & RACHEL | HANSEN ZACHARY LOGAN & RACHEL RENEE | | | $0.00 | 142620 | 2021-12202 |
| 2 | 01/08/2021 | SWD | STATUTORY WARRANTY DEED | MARTIN JOHN M | HANSEN ZACHARY & RACHEL | | | $239,900.00 | 140696 | 2021-00306 |
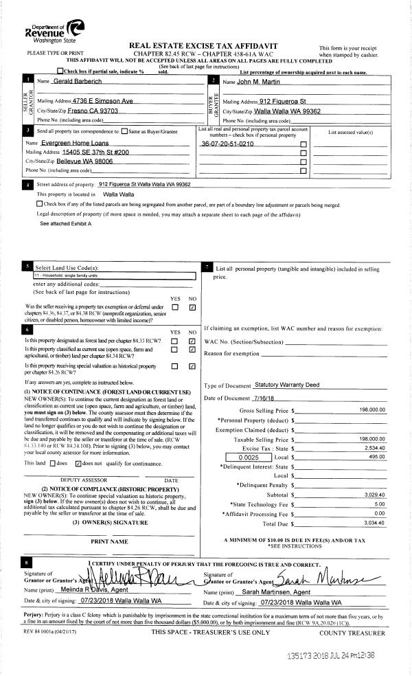
| 3 | 07/24/2018 | SWD | STATUTORY WARRANTY DEED | BARBERICH GERALD B | MARTIN JOHN M | | | $198,000.00 | 135173 | 2018-05969 |
| 4 | 07/24/2018 | LOPA | LACK OF PROBATE AFFIDAVIT | BARBERICH GERALD B & KATHLEEN E | BARBERICH GERALD B | | | $0.00 | 135172 | 2018-05968 |
| 5 | 05/15/2006 | WARRANTY D | WARRANTY DEED | BARBERICH, BRENT G & MARCIE | BARBERICH, GERALD B & KATHLEEN | | | $165,000.00 | 110255 | 2006-05573 |
| 6 | 12/29/2005 | QCD | QUIT CLAIM DEED | BARBERICH, BRENT G & MARCIE | BARBERICH, BRENT G & MARCIE | | | | 109349 | 2005-16241 |
| 7 | 12/09/2002 | WARRANTY D | WARRANTY DEED | PENNINGTON, JEAN | BARBERICH, BRENT G & MARCIE | | | $111,000.00 | 100975 | 2002-13973 |
| 8 | 10/15/1999 | WARRANTY D | WARRANTY DEED | | | | | $92,500.00 | 93847 | 2909-911953 |