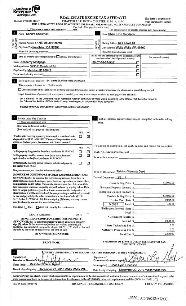
Property
Account |
| Property ID: | 16064 | Abbreviated Legal Description: | WENTSCHS LOT 1 BLK 1 |
| Parcel Number: | 360716570101 | Agent Code: | |
| Type: | Real | | |
| Tax Area: | 5 - OL-140 | Land Use Code | 11 |
| Open Space: | N | DFL | N |
| Historic Property: | N | Remodel Property: | N |
| Multi-Family Redevelopment: | N | | |
| Township: | 7 | Section: | 16 |
| Range: | 36 |
Location |
| Address: | 641 LEWIS ST WA 99362 | Mapsco: | |
| Neighborhood: | A-SFR | Map ID: | |
| Neighborhood CD: | 513011 |
Owner |
| Name: | GOODSON SHARI LYNN | Owner ID: | 62326 |
| Mailing Address: | 641 LEWIS ST WALLA WALLA, WA 99362 | % Ownership: | 100.0000000000% |
| | | Exemptions: | |
Taxes and Assessment Details
Values
| (+) Improvement Homesite Value: | + | $0 | |
| (+) Improvement Non-Homesite Value: | + | $269,390 | |
| (+) Land Homesite Value: | + | $0 | |
| (+) Land Non-Homesite Value: | + | $37,500 | |
| (+) Curr Use (HS): | + | $0 | $0 |
| (+) Curr Use (NHS): | + | $0 | $0 |
| | | -------------------------- | |
| (=) Market Value: | = | $306,890 | |
| (–) Productivity Loss: | – | $0 | |
| | | -------------------------- | |
| (=) Subtotal: | = | $306,890 | |
| (+) Senior Appraised Value: | + | $0 | |
| (+) Non-Senior Appraised Value: | + | $306,890 | |
| | | -------------------------- | |
| (=) Total Appraised Value: | = | $306,890 | |
| (–) Senior Exemption Loss: | – | $0 | |
| (–) Exemption Loss: | – | $0 | |
| | | -------------------------- | |
| (=) Taxable Value: | = | $306,890 | |
Taxing Jurisdiction
| Owner: | GOODSON SHARI LYNN | | |
| % Ownership: | 100.0000000000% | | |
| Total Value: | $306,890 | | |
| Tax Area: | 5 - OL-140 |
| CERFD | CURRENT EXPENSE REFUND 010 | 0.0000000000 | $306,890 | $306,890 | $0.00 | | |
| CURREXP | CURRENT EXPENSE 010 | 1.0175366760 | $306,890 | $306,890 | $312.27 | | |
| HUMNSERV | HUMAN SERVICES 119 | 0.0250000000 | $306,890 | $306,890 | $7.67 | | |
| SLDREL | SOLDIERS RELIEF 121 | 0.0155990005 | $306,890 | $306,890 | $4.79 | | |
| EMERGSER | EMS 147 | 0.3792580840 | $306,890 | $306,890 | $116.39 | | |
| EMSRFD | EMS REFUND 147 | 0.0000000000 | $306,890 | $306,890 | $0.00 | | |
| PORTRFD | PORT REFUND 640 | 0.0000000000 | $306,890 | $306,890 | $0.00 | | |
| PORTWWGEN | PORT OF WW 640 | 0.2460186015 | $306,890 | $306,890 | $75.50 | | |
| SD140BOND | SD #140 BOND 764 | 0.8342371393 | $306,890 | $306,890 | $256.02 | | |
| SD140GEN | SD #140 GENERAL 760 | 2.0646500647 | $306,890 | $306,890 | $633.62 | | |
| ST2 | STATE SCHOOL PART 2 600 | 0.8131451643 | $306,890 | $306,890 | $249.55 | | |
| STATESCHL | STATE SCHOOL 600 | 1.5158548041 | $306,890 | $306,890 | $465.20 | | |
| STREFUND | STATE REFUND LEVY 603 | 0.0000000000 | $306,890 | $306,890 | $0.00 | | |
| CWWBOND | C OF WW BOND 643 | 0.2760494372 | $306,890 | $306,890 | $84.72 | | |
| CWWGEN | CITY OF WW 631 | 1.6100204973 | $306,890 | $306,890 | $494.10 | | |
| CWWRFD | CITY OF WALLA WALLA REFUND 631 | 0.0000000000 | $306,890 | $306,890 | $0.00 | | |
| | Total Tax Rate: | 8.7973694689 | | | | | |
| | | | | Taxes w/Current Exemptions: | $2,699.83 | | |
| | | | | Taxes w/o Exemptions: | $2,699.83 | | |
Improvement / Building
| Improvement #1: | RESIDENTIAL | State Code: | 11 | 858.0 sqft | Value: | $269,390 |
| Exterior Wall: | SIDING | Heating/Cooling: | WARM & COOLED AIR | | Number of Bathrooms: | 2 | Number of Bedrooms: | 2 | | Plumbing: | 9 | Roof Covering: | COMP SHINGLE |
|
| | Type | Description | Class CD | Sub Class CD | Year Built | Area |
| | MA | Main Area | 1 | 30 | 1950 | 858.0 |
| | CPC | COVERED CARPORT/PATIO | 1 | 30 | 0 | 60.0 |
| | SI1 | SITE IMPROVEMENT | 1 | 30 | 0 | 1.5 |
| | BASE | BASEMENT | 1 | 30 | 1950 | 858.0 |
| | BPF | BASEMENT -PARTITIONED FINISH | 1 | 30 | 1950 | 858.0 |
| | RPS | PORCH W/STEPS,ROOF | 1 | 30 | 1950 | 28.0 |
| | TOOL | TOOL SHED | 1 | 30 | 1950 | 30.0 |
Sketch
Property Image
Land
| 1 | RES 1 | Converted: Residential | 0.1377 | 6000.00 | 0.00 | 0.00 | 1.00 | $37,500 | $0 |
Roll Value History
| 2026 | N/A | N/A | N/A | N/A | N/A |
| 2025 | $287,850 | $60,000 | $0 | $347,850 | $347,850 |
| 2024 | $287,850 | $60,000 | $0 | $347,850 | $347,850 |
| 2023 | $269,390 | $37,500 | $0 | $306,890 | $306,890 |
| 2022 | $234,260 | $37,500 | $0 | $271,760 | $271,760 |
| 2021 | $167,330 | $37,500 | $0 | $204,830 | $204,830 |
| 2020 | $145,500 | $37,500 | $0 | $183,000 | $183,000 |
| 2019 | $145,500 | $37,500 | $0 | $183,000 | $183,000 |
| 2018 | $145,500 | $37,500 | $0 | $183,000 | $183,000 |
| 2017 | $129,970 | $24,000 | $0 | $153,970 | $153,970 |
| 2016 | $118,160 | $24,000 | $0 | $142,160 | $142,160 |
| 2015 | $112,530 | $24,000 | $0 | $136,530 | $136,530 |
| 2014 | $102,300 | $24,000 | $0 | $126,300 | $126,300 |
| 2013 | $102,300 | $24,000 | $0 | $126,300 | $126,300 |
| 2012 | $102,300 | $24,000 | $0 | $0 | $0 |
| 2011 | $102,300 | $24,000 | $0 | $0 | $0 |
| 2010 | $96,300 | $24,000 | $0 | $0 | $0 |
| 2009 | $109,700 | $24,000 | $0 | $0 | $0 |
| 2008 | $103,300 | $24,000 | $0 | $0 | $0 |
| 2007 | $103,300 | $24,000 | $0 | $0 | $0 |
Deed and Sales History
| 1 | 12/22/2017 | SWD | STATUTORY WARRANTY DEED | CHAPMAN SANDRA E | GOODSON SHARI LYNN | | | $172,000.00 | 133861 | 2017-10326 |
| 2 | 10/08/2007 | WARRANTY D | WARRANTY DEED | SILVA, KEITH & LINDA | CHAPMAN, SANDRA | | | | 113835 | 2007-11717 |
| 3 | 10/04/2007 | WARRANTY D | WARRANTY DEED | SILVA, KEITH W & LINDA K | CHAPMAN, SANDRA | | | $137,000.00 | 113825 | 2007-11630 |
| 4 | 06/06/2006 | WARRANTY D | WARRANTY DEED | LYNCH, MARSHALL | SILVA, KEITH W & LINDA K | | | $130,000.00 | 110453 | 2006-06565 |
| 5 | 11/17/2005 | QCD | QUIT CLAIM DEED | LYNCH, MARSHALL & MI D | LYNCH, MARSHALL | | | | 109058 | 2005-14520 |
| 6 | 09/03/2003 | WARRANTY D | WARRANTY DEED | BECKEL, TROY D & LEEANNE | LYNCH, MARSHALL | | | $113,000.00 | 102923 | 2003-13374 |
| 7 | 07/15/1996 | WARRANTY D | WARRANTY DEED | | | | | $74,900.00 | 86490 | 2429-607015 |
Payout Agreement
| No payout information available.. |