Property
Account |
| Property ID: | 16040 | Abbreviated Legal Description: | CRISCOLA'S ADDITION SUBDIVISION LOT 6 |
| Parcel Number: | 350726690006 | Agent Code: | |
| Type: | Real | | |
| Tax Area: | 311 - 250-4 | Land Use Code | 11 |
| Open Space: | N | DFL | N |
| Historic Property: | N | Remodel Property: | N |
| Multi-Family Redevelopment: | N | | |
| Township: | 7 | Section: | 26 |
| Range: | 35 |
Location |
| Address: | 85 PRIMROSE LN WA 99324 | Mapsco: | |
| Neighborhood: | GOOD SFR Rural/City Inf | Map ID: | |
| Neighborhood CD: | 314012 |
Owner |
| Name: | NELSON EDWARD J & DONNA M | Owner ID: | 60230 |
| Mailing Address: | 85 PRIMROSE LN WALLA WALLA, WA 99362 | % Ownership: | 100.0000000000% |
| | | Exemptions: | |
Taxes and Assessment Details
Property Tax Information as of
02/21/2026
Click on "Statement Details" to expand or collapse a tax statement.
* Please enter a valid date ** Please enter a valid date *
Statement Details |
| | TOTAL: | $0.00 | $0.00 | $0.00 | $0.00 | $0.00 | $0.00 |
|
| | $0.00 | $0.00 | $0.00 | $0.00 | $0.00 | $0.00 |
Values
| (+) Improvement Homesite Value: | + | N/A | |
| (+) Improvement Non-Homesite Value: | + | N/A | |
| (+) Land Homesite Value: | + | N/A | |
| (+) Land Non-Homesite Value: | + | N/A | Ag / Timber Use Value |
| (+) Curr Use (HS): | + | N/A | N/A |
| (+) Curr Use (NHS): | + | N/A | N/A |
| | | -------------------------- | |
| (=) Market Value: | = | N/A | |
| (–) Productivity Loss: | – | N/A | |
| | | -------------------------- | |
| (=) Subtotal: | = | N/A | |
| (+) Senior Appraised Value: | + | N/A | |
| (+) Non-Senior Appraised Value: | + | N/A | |
| | | -------------------------- | |
| (=) Total Appraised Value: | = | N/A | |
| (–) Senior Exemption Loss: | – | N/A | |
| (–) Exemption Loss: | – | N/A | |
| | | -------------------------- | |
| (=) Taxable Value: | = | N/A | |
Taxing Jurisdiction
| Owner: | NELSON EDWARD J & DONNA M | | |
| % Ownership: | 100.0000000000% | | |
| Total Value: | N/A | | |
| Tax Area: | 311 - 250-4 |
| CERFD | CURRENT EXPENSE REFUND 010 | N/A | N/A | N/A | N/A | | |
| CURREXP | CURRENT EXPENSE 010 | N/A | N/A | N/A | N/A | | |
| HUMNSERV | HUMAN SERVICES 119 | N/A | N/A | N/A | N/A | | |
| SLDREL | SOLDIERS RELIEF 121 | N/A | N/A | N/A | N/A | | |
| EMERGSER | EMS 147 | N/A | N/A | N/A | N/A | | |
| EMSRFD | EMS REFUND 147 | N/A | N/A | N/A | N/A | | |
| FD4EXP | FD #4 EXPENSE 686 | N/A | N/A | N/A | N/A | | |
| RLBRFD | RURAL LIBRARY REFUND 623 | N/A | N/A | N/A | N/A | | |
| RURALLIB | RURAL LIBRARY 623 | N/A | N/A | N/A | N/A | | |
| PORTRFD | PORT REFUND 640 | N/A | N/A | N/A | N/A | | |
| PORTWWGEN | PORT OF WW 640 | N/A | N/A | N/A | N/A | | |
| SD250BOND | SD #250 BOND 773 | N/A | N/A | N/A | N/A | | |
| SD250GEN | SD #250 GENERAL 770 | N/A | N/A | N/A | N/A | | |
| ST2 | STATE SCHOOL PART 2 600 | N/A | N/A | N/A | N/A | | |
| STATESCHL | STATE SCHOOL 600 | N/A | N/A | N/A | N/A | | |
| STREFUND | STATE REFUND LEVY 603 | N/A | N/A | N/A | N/A | | |
| COROAD | COUNTY ROAD 115 | N/A | N/A | N/A | N/A | | |
| CRPRD | COUNTY ROAD REFUND 115 | N/A | N/A | N/A | N/A | | |
| | Total Tax Rate: | N/A | | | | | |
| | | | | Taxes w/Current Exemptions: | N/A | | |
| | | | | Taxes w/o Exemptions: | N/A | | |
Improvement / Building
| Improvement #1: | RESIDENTIAL | State Code: | 11 | 2356.0 sqft | Value: | N/A |
| Exterior Wall: | STUCCO | Heating/Cooling: | WARM & COOLED AIR | | Number of Bathrooms: | 2 | Number of Bedrooms: | 3 | | Plumbing: | 11 | Roof Covering: | COMP SHINGLE |
|
| | Type | Description | Class CD | Sub Class CD | Year Built | Area |
| | MA | Main Area | 1 | 45 | 2006 | 2356.0 |
| | CPC | COVERED CARPORT/PATIO | 1 | 45 | 0 | 96.0 |
| | GFP | GAS FIREPLACE | 1 | 45 | 0 | 1.0 |
| | POL2 | POLE BUILDING-CONCRETE | 1 | 45 | 2006 | 1440.0 |
| | RPC | OPEN PORCH W/ROOF , CEILED | 1 | 45 | 0 | 57.0 |
| | RPC | OPEN PORCH W/ROOF , CEILED | 1 | 45 | 0 | 321.0 |
| | SI1 | SITE IMPROVEMENT | 1 | 45 | 0 | 4.0 |
| | ATG | Attached Garage | 1 | 45 | 2006 | 750.0 |
Sketch
Property Image
Land
| 1 | RES 1 | Converted: Residential | 0.0000 | 0.00 | 0.00 | 0.00 | 1.00 | N/A | N/A |
Roll Value History
| 2026 | N/A | N/A | N/A | N/A | N/A |
| 2025 | $586,800 | $150,000 | $0 | $736,800 | $736,800 |
| 2024 | $586,800 | $150,000 | $0 | $736,800 | $736,800 |
| 2023 | $510,260 | $150,000 | $0 | $660,260 | $660,260 |
| 2022 | $463,870 | $150,000 | $0 | $613,870 | $613,870 |
| 2021 | $389,830 | $75,000 | $0 | $464,830 | $464,830 |
| 2020 | $354,390 | $75,000 | $0 | $429,390 | $429,390 |
| 2019 | $354,390 | $75,000 | $0 | $429,390 | $429,390 |
| 2018 | $337,510 | $75,000 | $0 | $412,510 | $412,510 |
| 2017 | $337,510 | $75,000 | $0 | $412,510 | $412,510 |
| 2016 | $337,510 | $75,000 | $0 | $412,510 | $412,510 |
| 2015 | $319,000 | $75,000 | $0 | $394,000 | $394,000 |
| 2014 | $319,000 | $75,000 | $0 | $394,000 | $394,000 |
| 2013 | $319,000 | $75,000 | $0 | $394,000 | $394,000 |
| 2012 | $283,200 | $75,000 | $0 | $0 | $0 |
| 2011 | $283,200 | $75,000 | $0 | $0 | $0 |
| 2010 | $262,300 | $75,000 | $0 | $0 | $0 |
| 2009 | $299,800 | $75,000 | $0 | $0 | $0 |
| 2008 | $308,500 | $75,000 | $0 | $0 | $0 |
| 2007 | $76,600 | $75,000 | $0 | $0 | $0 |
Deed and Sales History
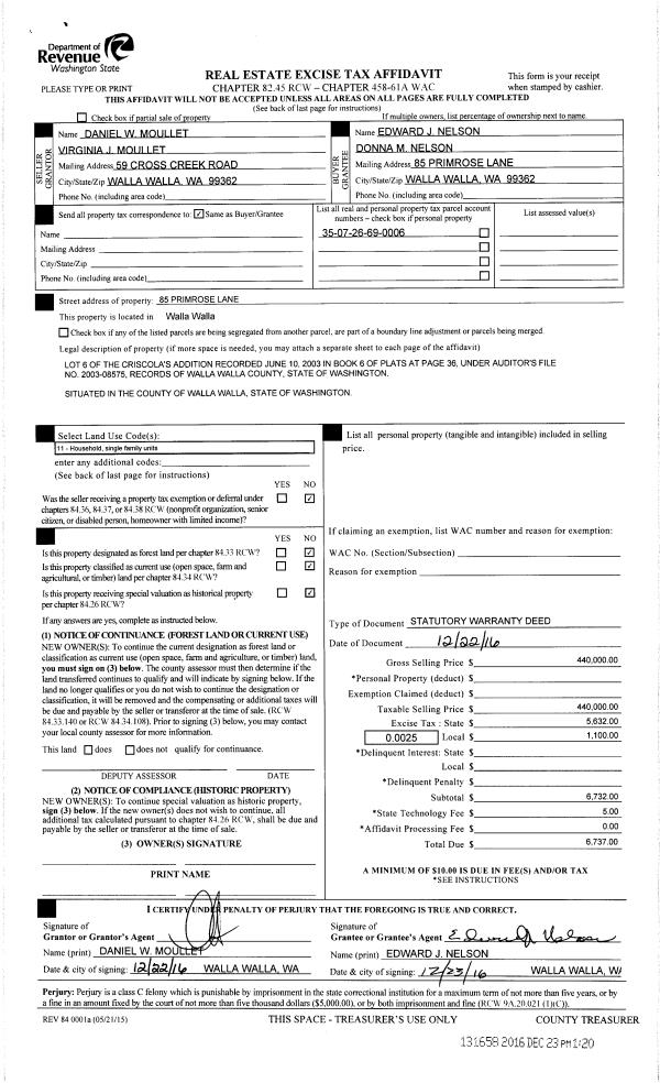
| 1 | 12/23/2016 | SWD | STATUTORY WARRANTY DEED | MOULLET DANIEL W | NELSON EDWARD J & DONNA M | | | $440,000.00 | 131658 | 2016-10570 |
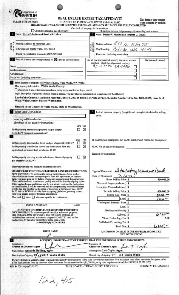
| 2 | 07/31/2012 | WARRANTY D | WARRANTY DEED | LEHAN, TERRY E & SANDRA K | MOULLET, DANIEL W | | | $400,000.00 | 122415 | 2012-06497 |
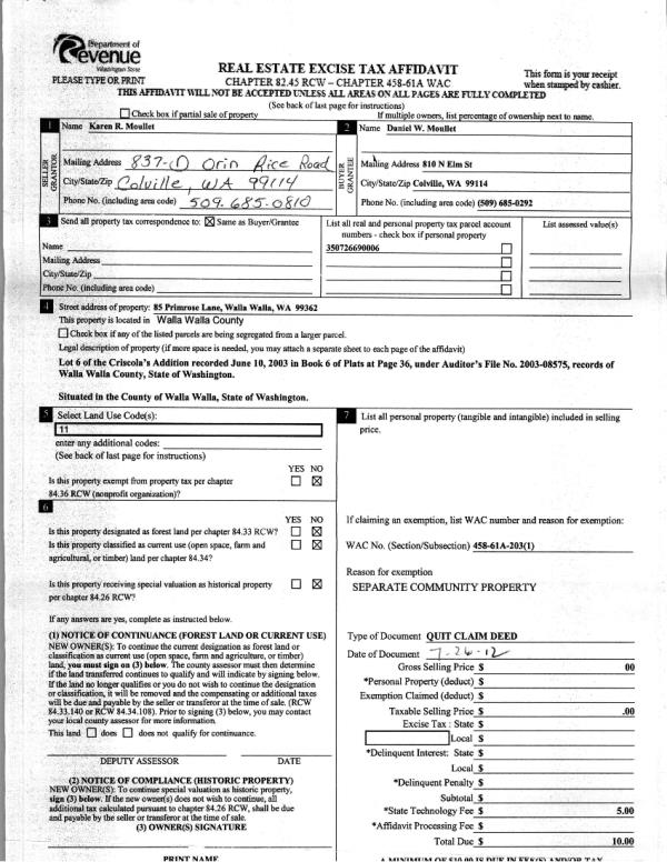
| 3 | 07/31/2012 | QCD | QUIT CLAIM DEED | MOULLET, KAREN R | MOULLET, DANIEL W | | | $0.00 | 122416 | 2012-06496 |
| 4 | 05/16/2006 | WARRANTY D | WARRANTY DEED | PREAS, DAN D & MARVA | LEHAN, TERRY E & SANDRA K | | | $75,000.00 | 110260 | 2006-05611 |
| 5 | 08/09/2005 | WARRANTY D | WARRANTY DEED | CRISCOLA, VIRGIL E | PREAS DAN D & MARVA | | | $320,000.00 | 108181 | 2005-09789 |
|   | |
Payout Agreement
| No payout information available.. |