Property
Account |
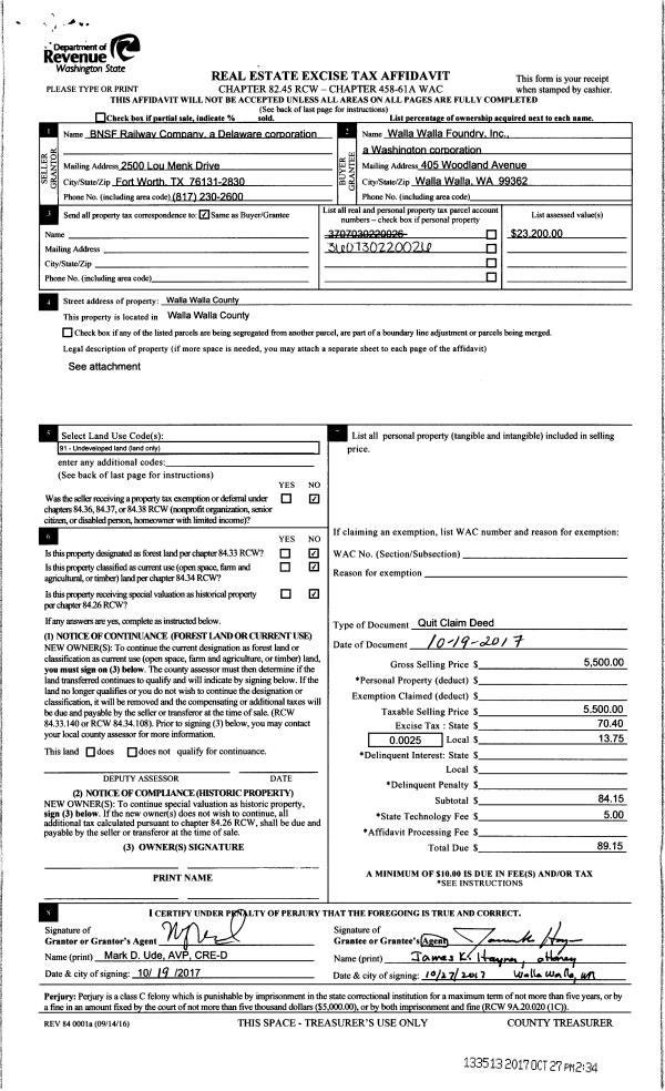
| Property ID: | 15999 | Abbreviated Legal Description: | 30-7-36 ABAND RR WITHIN NW1/4NW1/4 LESS SLY PTNS ALONG TAX 35B &40A & 45 & 35A & 35C & 35 |
| Parcel Number: | 360730220026 | Agent Code: | |
| Type: | Real | | |
| Tax Area: | 105 - 140-F-4 | Land Use Code | 91 |
| Open Space: | N | DFL | N |
| Historic Property: | N | Remodel Property: | N |
| Multi-Family Redevelopment: | N | | |
| Township: | 7 | Section: | 30 |
| Range: | 36 |
Location |
| Address: | WA 99362 | Mapsco: | |
| Neighborhood: | | Map ID: | |
| Neighborhood CD: | 3320 |
Owner |
| Name: | WALLA WALLA FOUNDRY INC | Owner ID: | 6702 |
| Mailing Address: | 405 WOODLAND AVE WALLA WALLA, WA 99362 | % Ownership: | 100.0000000000% |
| | | Exemptions: | |
Taxes and Assessment Details
Property Tax Information as of
02/21/2026
Click on "Statement Details" to expand or collapse a tax statement.
* Please enter a valid date ** Please enter a valid date *
Statement Details |
| | TOTAL: | $0.00 | $0.00 | $0.00 | $0.00 | $0.00 | $0.00 |
|
| | $0.00 | $0.00 | $0.00 | $0.00 | $0.00 | $0.00 |
Values
| (+) Improvement Homesite Value: | + | $0 | |
| (+) Improvement Non-Homesite Value: | + | $0 | |
| (+) Land Homesite Value: | + | $0 | |
| (+) Land Non-Homesite Value: | + | $37,900 | |
| (+) Curr Use (HS): | + | $0 | $0 |
| (+) Curr Use (NHS): | + | $0 | $0 |
| | | -------------------------- | |
| (=) Market Value: | = | $37,900 | |
| (–) Productivity Loss: | – | $0 | |
| | | -------------------------- | |
| (=) Subtotal: | = | $37,900 | |
| (+) Senior Appraised Value: | + | $0 | |
| (+) Non-Senior Appraised Value: | + | $37,900 | |
| | | -------------------------- | |
| (=) Total Appraised Value: | = | $37,900 | |
| (–) Senior Exemption Loss: | – | $0 | |
| (–) Exemption Loss: | – | $0 | |
| | | -------------------------- | |
| (=) Taxable Value: | = | $37,900 | |
Taxing Jurisdiction
| Owner: | WALLA WALLA FOUNDRY INC | | |
| % Ownership: | 100.0000000000% | | |
| Total Value: | $37,900 | | |
| Tax Area: | 105 - 140-F-4 |
| CERFD | CURRENT EXPENSE REFUND 010 | 0.0000000000 | $37,900 | $37,900 | $0.00 | | |
| CURREXP | CURRENT EXPENSE 010 | 1.0175366760 | $37,900 | $37,900 | $38.56 | | |
| HUMNSERV | HUMAN SERVICES 119 | 0.0250000000 | $37,900 | $37,900 | $0.95 | | |
| SLDREL | SOLDIERS RELIEF 121 | 0.0155990005 | $37,900 | $37,900 | $0.59 | | |
| EMERGSER | EMS 147 | 0.3792580840 | $37,900 | $37,900 | $14.37 | | |
| EMSRFD | EMS REFUND 147 | 0.0000000000 | $37,900 | $37,900 | $0.00 | | |
| FD4EXP | FD #4 EXPENSE 686 | 0.8836993059 | $37,900 | $37,900 | $33.49 | | |
| RLBRFD | RURAL LIBRARY REFUND 623 | 0.0000000000 | $37,900 | $37,900 | $0.00 | | |
| RURALLIB | RURAL LIBRARY 623 | 0.3710609029 | $37,900 | $37,900 | $14.06 | | |
| PORTRFD | PORT REFUND 640 | 0.0000000000 | $37,900 | $37,900 | $0.00 | | |
| PORTWWGEN | PORT OF WW 640 | 0.2460186015 | $37,900 | $37,900 | $9.32 | | |
| SD140BOND | SD #140 BOND 764 | 0.8342371393 | $37,900 | $37,900 | $31.62 | | |
| SD140GEN | SD #140 GENERAL 760 | 2.0646500647 | $37,900 | $37,900 | $78.25 | | |
| ST2 | STATE SCHOOL PART 2 600 | 0.8131451643 | $37,900 | $37,900 | $30.82 | | |
| STATESCHL | STATE SCHOOL 600 | 1.5158548041 | $37,900 | $37,900 | $57.45 | | |
| STREFUND | STATE REFUND LEVY 603 | 0.0000000000 | $37,900 | $37,900 | $0.00 | | |
| COROAD | COUNTY ROAD 115 | 1.6549953990 | $37,900 | $37,900 | $62.72 | | |
| CRPRD | COUNTY ROAD REFUND 115 | 0.0000000000 | $37,900 | $37,900 | $0.00 | | |
| | Total Tax Rate: | 9.8210551422 | | | | | |
| | | | | Taxes w/Current Exemptions: | $372.20 | | |
| | | | | Taxes w/o Exemptions: | $372.20 | | |
Improvement / Building
Sketch
| No sketches available for this property. |
Property Image
Land
| 1 | COM 1 | Converted: Commercial | 0.5800 | 25264.80 | 0.00 | 0.00 | 1.00 | $37,900 | $0 |
Roll Value History
| 2026 | N/A | N/A | N/A | N/A | N/A |
| 2025 | $0 | $37,900 | $0 | $37,900 | $37,900 |
| 2024 | $0 | $37,900 | $0 | $37,900 | $37,900 |
| 2023 | $0 | $37,900 | $0 | $37,900 | $37,900 |
| 2022 | $0 | $37,900 | $0 | $37,900 | $37,900 |
| 2021 | $0 | $23,200 | $0 | $23,200 | $23,200 |
| 2020 | $0 | $23,200 | $0 | $23,200 | $23,200 |
| 2019 | $0 | $23,200 | $0 | $23,200 | $23,200 |
| 2018 | $0 | $23,200 | $0 | $23,200 | $23,200 |
| 2017 | $0 | $23,200 | $0 | $23,200 | $23,200 |
| 2016 | $0 | $23,200 | $0 | $23,200 | $23,200 |
| 2015 | $0 | $2,300 | $0 | $2,300 | $2,300 |
| 2014 | $0 | $2,300 | $0 | $2,300 | $2,300 |
| 2013 | $0 | $2,300 | $0 | $2,300 | $2,300 |
| 2012 | $0 | $2,300 | $0 | $0 | $0 |
| 2011 | $0 | $2,300 | $0 | $0 | $0 |
| 2010 | $0 | $1,200 | $0 | $0 | $0 |
| 2009 | $0 | $1,200 | $0 | $0 | $0 |
| 2008 | $0 | $1,200 | $0 | $0 | $0 |
| 2007 | $0 | $1,200 | $0 | $0 | $0 |
Deed and Sales History
| 1 | 03/03/2021 | SURVEY | SURVEY | | | 13 | 270 | | 0 | 2021-02470 |
| 2 | 10/27/2017 | QCD | QUIT CLAIM DEED | BNSF RAILWAY COMPANY | WALLA WALLA FOUNDRY INC | | | $5,500.00 | 133513 | 2017-08632 |
Payout Agreement
| No payout information available.. |