Property
Account |
| Property ID: | 15998 | Abbreviated Legal Description: | EAGLE WINGS CONDOS UNIT #767 |
| Parcel Number: | 350736500002 | Agent Code: | |
| Type: | Real | | |
| Tax Area: | 75 - CP 250 | Land Use Code | 14 |
| Open Space: | N | DFL | N |
| Historic Property: | N | Remodel Property: | N |
| Multi-Family Redevelopment: | N | | |
| Township: | 7 | Section: | 36 |
| Range: | 35 |
Location |
| Address: | 767 SE MAGNONI DR WA 99324 | Mapsco: | |
| Neighborhood: | G Condo | Map ID: | |
| Neighborhood CD: | 114041 |
Owner |
| Name: | HAY ROBERT MICHAEL & LINDA DARLENE | Owner ID: | 62525 |
| Mailing Address: | 767 SE MAGNONI DR COLLEGE PLACE, WA 99324 | % Ownership: | 100.0000000000% |
| | | Exemptions: | |
Taxes and Assessment Details
Property Tax Information as of
02/21/2026
Click on "Statement Details" to expand or collapse a tax statement.
* Please enter a valid date ** Please enter a valid date *
Statement Details |
| | TOTAL: | $0.00 | $0.00 | $0.00 | $0.00 | $0.00 | $0.00 |
|
| | $0.00 | $0.00 | $0.00 | $0.00 | $0.00 | $0.00 |
Values
| (+) Improvement Homesite Value: | + | $0 | |
| (+) Improvement Non-Homesite Value: | + | $339,350 | |
| (+) Land Homesite Value: | + | $0 | |
| (+) Land Non-Homesite Value: | + | $0 | |
| (+) Curr Use (HS): | + | $0 | $0 |
| (+) Curr Use (NHS): | + | $0 | $0 |
| | | -------------------------- | |
| (=) Market Value: | = | $339,350 | |
| (–) Productivity Loss: | – | $0 | |
| | | -------------------------- | |
| (=) Subtotal: | = | $339,350 | |
| (+) Senior Appraised Value: | + | $0 | |
| (+) Non-Senior Appraised Value: | + | $339,350 | |
| | | -------------------------- | |
| (=) Total Appraised Value: | = | $339,350 | |
| (–) Senior Exemption Loss: | – | $0 | |
| (–) Exemption Loss: | – | $0 | |
| | | -------------------------- | |
| (=) Taxable Value: | = | $339,350 | |
Taxing Jurisdiction
| Owner: | HAY ROBERT MICHAEL & LINDA DARLENE | | |
| % Ownership: | 100.0000000000% | | |
| Total Value: | $339,350 | | |
| Tax Area: | 75 - CP 250 |
| CERFD | CURRENT EXPENSE REFUND 010 | 0.0000000000 | $339,350 | $339,350 | $0.00 | | |
| CURREXP | CURRENT EXPENSE 010 | 1.0175366760 | $339,350 | $339,350 | $345.30 | | |
| HUMNSERV | HUMAN SERVICES 119 | 0.0250000000 | $339,350 | $339,350 | $8.48 | | |
| SLDREL | SOLDIERS RELIEF 121 | 0.0155990005 | $339,350 | $339,350 | $5.29 | | |
| COLLPLBOND | C OF CP BOND 644 | 0.4374241808 | $339,350 | $339,350 | $148.44 | | |
| COLLPLGEN | CITY OF CP 632 | 1.4453819216 | $339,350 | $339,350 | $490.49 | | |
| EMERGSER | EMS 147 | 0.3792580840 | $339,350 | $339,350 | $128.70 | | |
| EMSRFD | EMS REFUND 147 | 0.0000000000 | $339,350 | $339,350 | $0.00 | | |
| RURALLIB | RURAL LIBRARY 623 | 0.3710609029 | $339,350 | $339,350 | $125.92 | | |
| PORTRFD | PORT REFUND 640 | 0.0000000000 | $339,350 | $339,350 | $0.00 | | |
| PORTWWGEN | PORT OF WW 640 | 0.2460186015 | $339,350 | $339,350 | $83.49 | | |
| SD250BOND | SD #250 BOND 773 | 1.4560608159 | $339,350 | $339,350 | $494.11 | | |
| SD250GEN | SD #250 GENERAL 770 | 2.3880724087 | $339,350 | $339,350 | $810.39 | | |
| ST2 | STATE SCHOOL PART 2 600 | 0.8131451643 | $339,350 | $339,350 | $275.94 | | |
| STATESCHL | STATE SCHOOL 600 | 1.5158548041 | $339,350 | $339,350 | $514.41 | | |
| STREFUND | STATE REFUND LEVY 603 | 0.0000000000 | $339,350 | $339,350 | $0.00 | | |
| | Total Tax Rate: | 10.1104125603 | | | | | |
| | | | | Taxes w/Current Exemptions: | $3,430.96 | | |
| | | | | Taxes w/o Exemptions: | $3,430.96 | | |
Improvement / Building
| Improvement #1: | RESIDENTIAL | State Code: | 14 | 1746.0 sqft | Value: | $339,350 |
| Exterior Wall: | PLYWOOD | Heating/Cooling: | WARM & COOLED AIR | | Number of Bathrooms: | 2 | Number of Bedrooms: | 3 | | Plumbing: | 9 | Roof Covering: | COMP SHINGLE |
|
| | Type | Description | Class CD | Sub Class CD | Year Built | Area |
| | MA | Main Area | 1 | 35 | 2004 | 1746.0 |
| | SI1 | SITE IMPROVEMENT | 1 | 35 | 2004 | 8.0 |
| | ATG | Attached Garage | 1 | 35 | 2004 | 380.0 |
| | PRC | PORCH W STEPS, ROOF,CEILED | 1 | 35 | 2004 | 126.0 |
| | GFP | GAS FIREPLACE | 1 | 35 | 2004 | 1.0 |
Sketch
Property Image
Land
No land segments exist for this property.
Roll Value History
| 2026 | N/A | N/A | N/A | N/A | N/A |
| 2025 | $339,350 | $0 | $0 | $339,350 | $339,350 |
| 2024 | $339,350 | $0 | $0 | $339,350 | $339,350 |
| 2023 | $339,350 | $0 | $0 | $339,350 | $339,350 |
| 2022 | $308,500 | $0 | $0 | $308,500 | $308,500 |
| 2021 | $228,520 | $0 | $0 | $228,520 | $228,520 |
| 2020 | $207,750 | $0 | $0 | $207,750 | $207,750 |
| 2019 | $207,750 | $0 | $0 | $207,750 | $207,750 |
| 2018 | $197,850 | $0 | $0 | $197,850 | $197,850 |
| 2017 | $179,870 | $0 | $0 | $179,870 | $179,870 |
| 2016 | $171,300 | $0 | $0 | $171,300 | $171,300 |
| 2015 | $171,300 | $0 | $0 | $171,300 | $171,300 |
| 2014 | $171,300 | $0 | $0 | $171,300 | $171,300 |
| 2013 | $171,300 | $0 | $0 | $171,300 | $171,300 |
| 2012 | $171,300 | $0 | $0 | $0 | $0 |
| 2011 | $171,300 | $0 | $0 | $0 | $0 |
| 2010 | $180,300 | $0 | $0 | $0 | $0 |
| 2009 | $189,800 | $0 | $0 | $0 | $0 |
| 2008 | $126,400 | $0 | $0 | $0 | $0 |
| 2007 | $126,400 | $0 | $0 | $0 | $0 |
Deed and Sales History
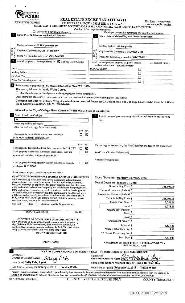
| 1 | 02/02/2018 | SWD | STATUTORY WARRANTY DEED | MIRONOV PETER N & LARISA P | HAY ROBERT MICHAEL & LINDA DARLENE | | | $215,000.00 | 134096 | 2018-00934 |
Payout Agreement
| No payout information available.. |