Property
Account |
| Property ID: | 15994 | Abbreviated Legal Description: | 33-7-36 ELY PTN TAX 55B WITHIN NE1/4NE1/4SE1/4 |
| Parcel Number: | 360733410054 | Agent Code: | |
| Type: | Real | | |
| Tax Area: | 101 - 140-4 | Land Use Code | 11 |
| Open Space: | N | DFL | N |
| Historic Property: | N | Remodel Property: | N |
| Multi-Family Redevelopment: | N | | |
| Township: | 7 | Section: | 33 |
| Range: | 36 |
Location |
| Address: | 1250 RESER RD WA 99362 | Mapsco: | |
| Neighborhood: | VG Res Rural/City Inf | Map ID: | |
| Neighborhood CD: | 415012 |
Owner |
| Name: | MCNULTY WHEELER FAMILY 2019 REVOCABLE TRUST | Owner ID: | 67696 |
| Mailing Address: | 75 CLIPPER ST SAN FRANCISCO, CA 94114 | % Ownership: | 100.0000000000% |
| | | Exemptions: | |
Taxes and Assessment Details
Property Tax Information as of
02/21/2026
Click on "Statement Details" to expand or collapse a tax statement.
* Please enter a valid date ** Please enter a valid date *
Statement Details |
| | TOTAL: | $0.00 | $0.00 | $0.00 | $0.00 | $0.00 | $0.00 |
|
| | $0.00 | $0.00 | $0.00 | $0.00 | $0.00 | $0.00 |
Values
| (+) Improvement Homesite Value: | + | $0 | |
| (+) Improvement Non-Homesite Value: | + | $863,800 | |
| (+) Land Homesite Value: | + | $0 | |
| (+) Land Non-Homesite Value: | + | $170,000 | |
| (+) Curr Use (HS): | + | $0 | $0 |
| (+) Curr Use (NHS): | + | $0 | $0 |
| | | -------------------------- | |
| (=) Market Value: | = | $1,033,800 | |
| (–) Productivity Loss: | – | $0 | |
| | | -------------------------- | |
| (=) Subtotal: | = | $1,033,800 | |
| (+) Senior Appraised Value: | + | $0 | |
| (+) Non-Senior Appraised Value: | + | $1,033,800 | |
| | | -------------------------- | |
| (=) Total Appraised Value: | = | $1,033,800 | |
| (–) Senior Exemption Loss: | – | $0 | |
| (–) Exemption Loss: | – | $0 | |
| | | -------------------------- | |
| (=) Taxable Value: | = | $1,033,800 | |
Taxing Jurisdiction
| Owner: | MCNULTY WHEELER FAMILY 2019 REVOCABLE TRUST | | |
| % Ownership: | 100.0000000000% | | |
| Total Value: | $1,033,800 | | |
| Tax Area: | 101 - 140-4 |
| CERFD | CURRENT EXPENSE REFUND 010 | 0.0000000000 | $1,033,800 | $1,033,800 | $0.00 | | |
| CURREXP | CURRENT EXPENSE 010 | 1.0175366760 | $1,033,800 | $1,033,800 | $1,051.93 | | |
| HUMNSERV | HUMAN SERVICES 119 | 0.0250000000 | $1,033,800 | $1,033,800 | $25.85 | | |
| SLDREL | SOLDIERS RELIEF 121 | 0.0155990005 | $1,033,800 | $1,033,800 | $16.13 | | |
| EMERGSER | EMS 147 | 0.3792580840 | $1,033,800 | $1,033,800 | $392.08 | | |
| EMSRFD | EMS REFUND 147 | 0.0000000000 | $1,033,800 | $1,033,800 | $0.00 | | |
| FD4EXP | FD #4 EXPENSE 686 | 0.8836993059 | $1,033,800 | $1,033,800 | $913.57 | | |
| RLBRFD | RURAL LIBRARY REFUND 623 | 0.0000000000 | $1,033,800 | $1,033,800 | $0.00 | | |
| RURALLIB | RURAL LIBRARY 623 | 0.3710609029 | $1,033,800 | $1,033,800 | $383.60 | | |
| PORTRFD | PORT REFUND 640 | 0.0000000000 | $1,033,800 | $1,033,800 | $0.00 | | |
| PORTWWGEN | PORT OF WW 640 | 0.2460186015 | $1,033,800 | $1,033,800 | $254.33 | | |
| SD140BOND | SD #140 BOND 764 | 0.8342371393 | $1,033,800 | $1,033,800 | $862.43 | | |
| SD140GEN | SD #140 GENERAL 760 | 2.0646500647 | $1,033,800 | $1,033,800 | $2,134.44 | | |
| ST2 | STATE SCHOOL PART 2 600 | 0.8131451643 | $1,033,800 | $1,033,800 | $840.63 | | |
| STATESCHL | STATE SCHOOL 600 | 1.5158548041 | $1,033,800 | $1,033,800 | $1,567.09 | | |
| STREFUND | STATE REFUND LEVY 603 | 0.0000000000 | $1,033,800 | $1,033,800 | $0.00 | | |
| COROAD | COUNTY ROAD 115 | 1.6549953990 | $1,033,800 | $1,033,800 | $1,710.93 | | |
| CRPRD | COUNTY ROAD REFUND 115 | 0.0000000000 | $1,033,800 | $1,033,800 | $0.00 | | |
| | Total Tax Rate: | 9.8210551422 | | | | | |
| | | | | Taxes w/Current Exemptions: | $10,153.01 | | |
| | | | | Taxes w/o Exemptions: | $10,153.01 | | |
Improvement / Building
| Improvement #1: | RESIDENTIAL | State Code: | 11 | 3604.0 sqft | Value: | $863,800 |
| Exterior Wall: | STUCCO ON BLOCK | Heating/Cooling: | FLOOR RADIANT | | Number of Bathrooms: | 3 | Number of Bedrooms: | 5 | | Plumbing: | 15 | Roof Covering: | GALVANIZED METAL |
|
| | Type | Description | Class CD | Sub Class CD | Year Built | Area |
| | MA | Main Area | 4 | 60 | 2007 | 3604.0 |
| | UPFL | Upper Floor (included in main area) | 4 | 60 | 2007 | 1113.0 |
| | SI1 | SITE IMPROVEMENT | 4 | 60 | 2007 | 9.0 |
| | SMP | SWIMMING POOL | 4 | 60 | 2021 | 1.0 |
| | ATG | Attached Garage | 4 | 60 | 2007 | 625.0 |
| | TOOL | TOOL SHED | 4 | 60 | 2021 | 112.0 |
| | TOOL | TOOL SHED | 4 | 60 | 2021 | 120.0 |
Sketch
Property Image
Land
| 1 | RES 1 | Converted: Residential | 1.0000 | 0.00 | 0.00 | 0.00 | 1.00 | $170,000 | $0 |
Roll Value History
| 2026 | N/A | N/A | N/A | N/A | N/A |
| 2025 | $863,800 | $170,000 | $0 | $1,033,800 | $1,033,800 |
| 2024 | $863,800 | $170,000 | $0 | $1,033,800 | $1,033,800 |
| 2023 | $863,800 | $170,000 | $0 | $1,033,800 | $1,033,800 |
| 2022 | $909,260 | $75,000 | $0 | $984,260 | $984,260 |
| 2021 | $826,600 | $75,000 | $0 | $901,600 | $901,600 |
| 2020 | $690,540 | $75,000 | $0 | $765,540 | $765,540 |
| 2019 | $690,540 | $75,000 | $0 | $765,540 | $765,540 |
| 2018 | $657,650 | $75,000 | $0 | $732,650 | $732,650 |
| 2017 | $657,650 | $75,000 | $0 | $732,650 | $732,650 |
| 2016 | $657,650 | $75,000 | $0 | $732,650 | $732,650 |
| 2015 | $657,650 | $75,000 | $0 | $732,650 | $732,650 |
| 2014 | $187,900 | $75,000 | $0 | $262,900 | $262,900 |
| 2013 | $187,900 | $75,000 | $0 | $262,900 | $262,900 |
| 2012 | $187,900 | $75,000 | $0 | $0 | $0 |
| 2011 | $188,600 | $75,000 | $0 | $0 | $0 |
| 2010 | $188,600 | $75,000 | $0 | $0 | $0 |
| 2009 | $217,900 | $75,000 | $0 | $0 | $0 |
| 2008 | $100,100 | $75,000 | $0 | $0 | $0 |
| 2007 | $15,200 | $44,000 | $0 | $0 | $0 |
Deed and Sales History
| 1 | 08/19/2020 | SWD | STATUTORY WARRANTY DEED | AEC EAT LLC | MCNULTY WHEELER FAMILY 2019 REVOCABLE TRUST | | | $0.00 | 139743 | 2020-08324 |
| 2 | 03/10/2020 | SWD | STATUTORY WARRANTY DEED | LORD BRYCE C | AEC EAT LLC | | | $925,000.00 | 138770 | 2020-02206 |
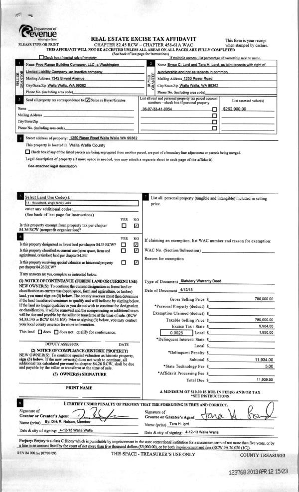
| 3 | 04/12/2013 | WARRANTY D | WARRANTY DEED | FREE RANGE BUILDING COMPANY LL | LORD, BRYCE C | | | $780,000.00 | 123768 | 2013-03524 |
| 4 | 12/15/2011 | WARRANTY D | WARRANTY DEED | NELSON, KATHLEEN | NELSON, DIRK | | | | 0 | CC #10-3--00375-9 |
| 5 | 04/12/2006 | WARRANTY D | WARRANTY DEED | NELSON, BARTON R | FREE RANGE BUILDING COMPANY LL | | | $143,000.00 | 110020 | 2006-04141 |
Payout Agreement
| No payout information available.. |