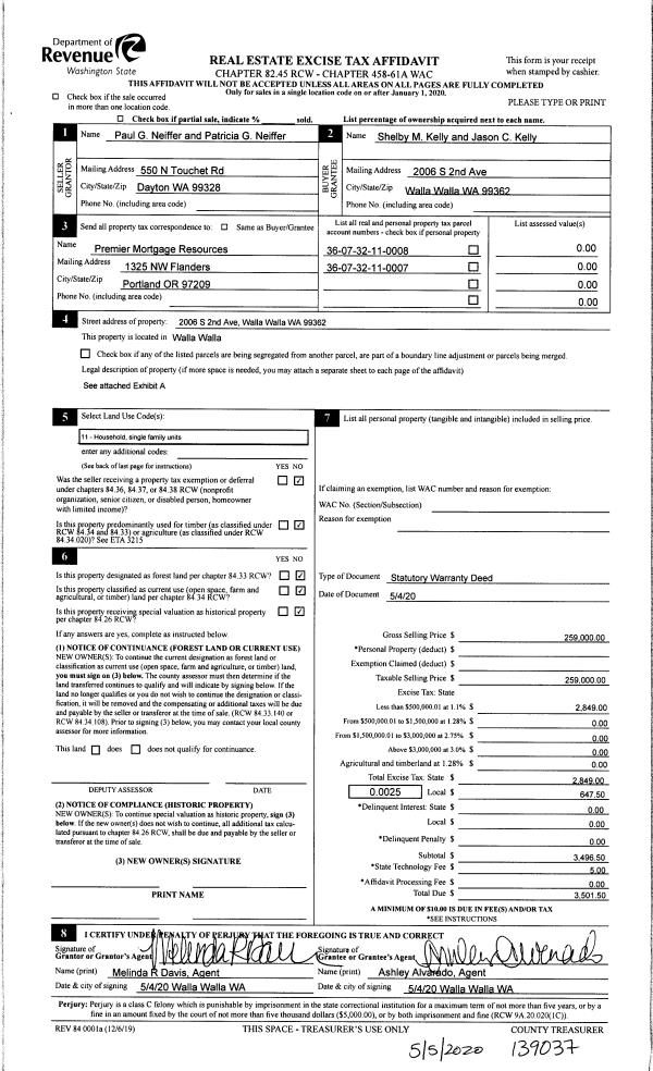
| 1 | 05/05/2020 | SWD | STATUTORY WARRANTY DEED | NEIFFER PAUL G & PATRICIA G | KELLY SHELBY M & JASON C | | 2-PARCLES | $259,000.00 | 139037 | 2020-03868 |
|   | |
| 2 | 05/05/2020 | QCD | QUIT CLAIM DEED | STILES JAMES R | NEIFFER PAUL G & PATRICIA G | | 2-PARCELS | | 139035 | 2020-03866 |
| 3 | 05/05/2020 | LOPA | LACK OF PROBATE AFFIDAVIT | STILES GRANT M | NEIFFER PAUL G & PATRICIA G | | 2-PARCELS | | 139034 | 2020-03864 |
| 4 | 05/05/2020 | QCD | QUIT CLAIM DEED | | NEIFFER PAUL G & PATRICIA G | | 2-PARCLES | $0.00 | 139036 | 2020-03867 |
| 5 | 05/05/2020 | QCD | QUIT CLAIM DEED | | NEIFFER PAUL G & PATRICIA G | | 2-PARCLES | $0.00 | 139032 | 2020-03865 |
| 6 | 08/29/2018 | QCD | QUIT CLAIM DEED | STILES MICHAEL ARTHUR | NEIFFER PAUL G & PATRICIA G | 2 PARCELS | | $0.00 | 135456 | 2018-07218 |
| 7 | 04/13/2006 | QCD | QUIT CLAIM DEED | STILES, GRANT M & MEDA L | STILES, MICHAEL ARTHUR | | | | 110025 | 2006-04192 |
| 8 | 01/01/1954 | WARRANTY D | WARRANTY DEED | | | | | $0.00 | 0 | 2700-373816 |