Property
Account |
| Property ID: | 15988 | Abbreviated Legal Description: | ROBERTS LT 2 BLK 26 & NLY 16' LT 3 BLK 26 |
| Parcel Number: | 360729872602 | Agent Code: | |
| Type: | Real | | |
| Tax Area: | 1 - OL-140-F | Land Use Code | 11 |
| Open Space: | N | DFL | N |
| Historic Property: | N | Remodel Property: | N |
| Multi-Family Redevelopment: | N | | |
| Township: | 7 | Section: | 29 |
| Range: | 36 |
Location |
| Address: | 707 S PARK ST WA 99362 | Mapsco: | |
| Neighborhood: | G-SFR | Map ID: | |
| Neighborhood CD: | 514011 |
Owner |
| Name: | SCHECK KATY & MATT | Owner ID: | 71938 |
| Mailing Address: | 2765 OLD MILTON HWY WALLA WALLA, WA 99362 | % Ownership: | 100.0000000000% |
| | | Exemptions: | |
Taxes and Assessment Details
Values
| (+) Improvement Homesite Value: | + | $0 | |
| (+) Improvement Non-Homesite Value: | + | $188,990 | |
| (+) Land Homesite Value: | + | $0 | |
| (+) Land Non-Homesite Value: | + | $35,240 | |
| (+) Curr Use (HS): | + | $0 | $0 |
| (+) Curr Use (NHS): | + | $0 | $0 |
| | | -------------------------- | |
| (=) Market Value: | = | $224,230 | |
| (–) Productivity Loss: | – | $0 | |
| | | -------------------------- | |
| (=) Subtotal: | = | $224,230 | |
| (+) Senior Appraised Value: | + | $0 | |
| (+) Non-Senior Appraised Value: | + | $224,230 | |
| | | -------------------------- | |
| (=) Total Appraised Value: | = | $224,230 | |
| (–) Senior Exemption Loss: | – | $0 | |
| (–) Exemption Loss: | – | $0 | |
| | | -------------------------- | |
| (=) Taxable Value: | = | $224,230 | |
Taxing Jurisdiction
| Owner: | SCHECK KATY & MATT | | |
| % Ownership: | 100.0000000000% | | |
| Total Value: | $224,230 | | |
| Tax Area: | 1 - OL-140-F |
| CERFD | CURRENT EXPENSE REFUND 010 | 0.0000000000 | $224,230 | $224,230 | $0.00 | | |
| CURREXP | CURRENT EXPENSE 010 | 1.0175366760 | $224,230 | $224,230 | $228.16 | | |
| HUMNSERV | HUMAN SERVICES 119 | 0.0250000000 | $224,230 | $224,230 | $5.61 | | |
| SLDREL | SOLDIERS RELIEF 121 | 0.0155990005 | $224,230 | $224,230 | $3.50 | | |
| EMERGSER | EMS 147 | 0.3792580840 | $224,230 | $224,230 | $85.04 | | |
| EMSRFD | EMS REFUND 147 | 0.0000000000 | $224,230 | $224,230 | $0.00 | | |
| PORTRFD | PORT REFUND 640 | 0.0000000000 | $224,230 | $224,230 | $0.00 | | |
| PORTWWGEN | PORT OF WW 640 | 0.2460186015 | $224,230 | $224,230 | $55.16 | | |
| SD140BOND | SD #140 BOND 764 | 0.8342371393 | $224,230 | $224,230 | $187.06 | | |
| SD140GEN | SD #140 GENERAL 760 | 2.0646500647 | $224,230 | $224,230 | $462.96 | | |
| ST2 | STATE SCHOOL PART 2 600 | 0.8131451643 | $224,230 | $224,230 | $182.33 | | |
| STATESCHL | STATE SCHOOL 600 | 1.5158548041 | $224,230 | $224,230 | $339.90 | | |
| STREFUND | STATE REFUND LEVY 603 | 0.0000000000 | $224,230 | $224,230 | $0.00 | | |
| CWWBOND | C OF WW BOND 643 | 0.2760494372 | $224,230 | $224,230 | $61.90 | | |
| CWWGEN | CITY OF WW 631 | 1.6100204973 | $224,230 | $224,230 | $361.01 | | |
| CWWRFD | CITY OF WALLA WALLA REFUND 631 | 0.0000000000 | $224,230 | $224,230 | $0.00 | | |
| | Total Tax Rate: | 8.7973694689 | | | | | |
| | | | | Taxes w/Current Exemptions: | $1,972.63 | | |
| | | | | Taxes w/o Exemptions: | $1,972.63 | | |
Improvement / Building
| Improvement #1: | RESIDENTIAL | State Code: | 11 | 938.0 sqft | Value: | $188,990 |
| Exterior Wall: | SIDING | Heating/Cooling: | BASEBOARD ELECTRIC | | Number of Bathrooms: | 1 | Number of Bedrooms: | 2 | | Plumbing: | 7 | Roof Covering: | COMP SHINGLE |
|
| | Type | Description | Class CD | Sub Class CD | Year Built | Area |
| | MA | Main Area | 1 | 30 | 1920 | 938.0 |
| | SI1 | SITE IMPROVEMENT | 1 | 30 | 1920 | 1.0 |
| | RCD | WOOD DECK W/ROOF, CEILED | 1 | 30 | 1920 | 78.0 |
| | SWP | Solid Wall Porch | 1 | 30 | 1920 | 120.0 |
Sketch
Property Image
Land
| 1 | RES 1 | Converted: Residential | 0.1116 | 4860.00 | 0.00 | 0.00 | 1.00 | $35,240 | $0 |
Roll Value History
| 2026 | N/A | N/A | N/A | N/A | N/A |
| 2025 | $274,850 | $53,460 | $0 | $328,310 | $328,310 |
| 2024 | $274,850 | $53,460 | $0 | $328,310 | $328,310 |
| 2023 | $188,990 | $35,240 | $0 | $224,230 | $224,230 |
| 2022 | $188,990 | $35,240 | $0 | $224,230 | $224,230 |
| 2021 | $164,340 | $35,240 | $0 | $199,580 | $199,580 |
| 2020 | $131,470 | $35,240 | $0 | $166,710 | $166,710 |
| 2019 | $131,470 | $35,240 | $0 | $166,710 | $166,710 |
| 2018 | $114,320 | $35,240 | $0 | $149,560 | $149,560 |
| 2017 | $116,160 | $21,900 | $0 | $138,060 | $138,060 |
| 2016 | $89,360 | $21,900 | $0 | $111,260 | $111,260 |
| 2015 | $89,360 | $21,900 | $0 | $111,260 | $111,260 |
| 2014 | $85,100 | $21,900 | $0 | $107,000 | $107,000 |
| 2013 | $85,100 | $21,900 | $0 | $107,000 | $107,000 |
| 2012 | $85,100 | $21,900 | $0 | $0 | $0 |
| 2011 | $85,100 | $21,900 | $0 | $0 | $0 |
| 2010 | $80,000 | $21,900 | $0 | $0 | $0 |
| 2009 | $91,300 | $21,900 | $0 | $0 | $0 |
| 2008 | $91,300 | $21,900 | $0 | $0 | $0 |
| 2007 | $91,300 | $21,900 | $0 | $0 | $0 |
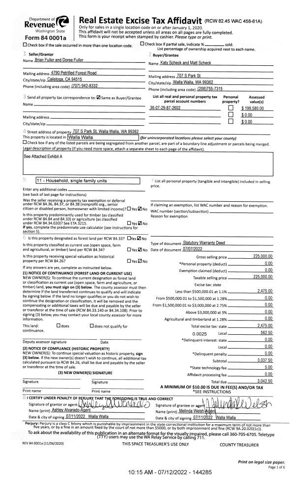
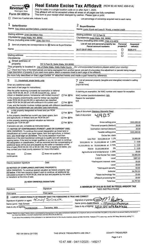
Deed and Sales History
| 1 | 04/11/2025 | SWD | STATUTORY WARRANTY DEED | SCHECK KATY & MATT | WOODS AUSTIN & LAURA B | | | $355,000.00 | 149217 | 2025-01917 |
| 2 | 07/12/2022 | SWD | STATUTORY WARRANTY DEED | FULLER BRIAN & DOREE | SCHECK KATY & MATT | | | $225,000.00 | 144285 | 2022-05891 |
| 3 | 04/10/2006 | WARRANTY D | WARRANTY DEED | HEIKKENEN, LAURIE L | FULLER, BRIAN & DOREE | | | $118,500.00 | 110002 | 2006-04070 |
| 4 | 05/29/1987 | WARRANTY D | WARRANTY DEED | | | | | $37,000.00 | 0 | 1648-704103 |
Payout Agreement
| No payout information available.. |