Property
Account |
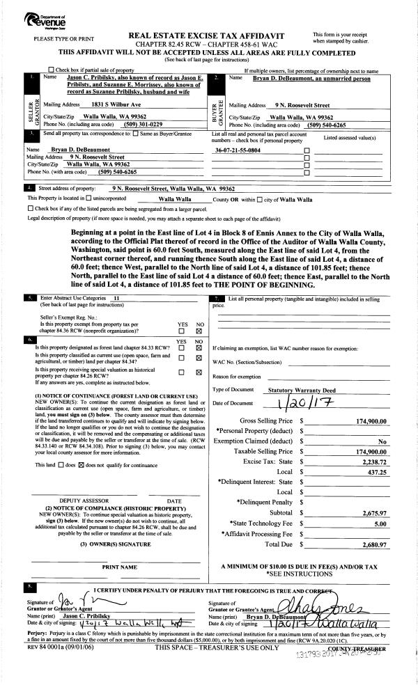
| Property ID: | 15983 | Abbreviated Legal Description: | ENNIS ANNEX TAX 6 LOT 4 BLK 8 |
| Parcel Number: | 360721550804 | Agent Code: | |
| Type: | Real | | |
| Tax Area: | 1 - OL-140-F | Land Use Code | 11 |
| Open Space: | N | DFL | N |
| Historic Property: | N | Remodel Property: | N |
| Multi-Family Redevelopment: | N | | |
| Township: | 7 | Section: | 21 |
| Range: | 36 |
Location |
| Address: | 9 N ROOSEVELT ST WA 99362 | Mapsco: | |
| Neighborhood: | A-SFR | Map ID: | |
| Neighborhood CD: | 513011 |
Owner |
| Name: | DE BEAUMONT BRYAN D | Owner ID: | 52248 |
| Mailing Address: | 9 N ROOSEVELT ST WALLA WALLA, WA 99362 | % Ownership: | 100.0000000000% |
| | | Exemptions: | |
Taxes and Assessment Details
Property Tax Information as of
02/21/2026
Click on "Statement Details" to expand or collapse a tax statement.
* Please enter a valid date ** Please enter a valid date *
Statement Details |
| | TOTAL: | $0.00 | $0.00 | $0.00 | $0.00 | $0.00 | $0.00 |
|
| | $0.00 | $0.00 | $0.00 | $0.00 | $0.00 | $0.00 |
Values
| (+) Improvement Homesite Value: | + | $0 | |
| (+) Improvement Non-Homesite Value: | + | $276,870 | |
| (+) Land Homesite Value: | + | $0 | |
| (+) Land Non-Homesite Value: | + | $37,880 | |
| (+) Curr Use (HS): | + | $0 | $0 |
| (+) Curr Use (NHS): | + | $0 | $0 |
| | | -------------------------- | |
| (=) Market Value: | = | $314,750 | |
| (–) Productivity Loss: | – | $0 | |
| | | -------------------------- | |
| (=) Subtotal: | = | $314,750 | |
| (+) Senior Appraised Value: | + | $0 | |
| (+) Non-Senior Appraised Value: | + | $314,750 | |
| | | -------------------------- | |
| (=) Total Appraised Value: | = | $314,750 | |
| (–) Senior Exemption Loss: | – | $0 | |
| (–) Exemption Loss: | – | $0 | |
| | | -------------------------- | |
| (=) Taxable Value: | = | $314,750 | |
Taxing Jurisdiction
| Owner: | DE BEAUMONT BRYAN D | | |
| % Ownership: | 100.0000000000% | | |
| Total Value: | $314,750 | | |
| Tax Area: | 1 - OL-140-F |
| CERFD | CURRENT EXPENSE REFUND 010 | 0.0000000000 | $314,750 | $314,750 | $0.00 | | |
| CURREXP | CURRENT EXPENSE 010 | 1.0175366760 | $314,750 | $314,750 | $320.27 | | |
| HUMNSERV | HUMAN SERVICES 119 | 0.0250000000 | $314,750 | $314,750 | $7.87 | | |
| SLDREL | SOLDIERS RELIEF 121 | 0.0155990005 | $314,750 | $314,750 | $4.91 | | |
| EMERGSER | EMS 147 | 0.3792580840 | $314,750 | $314,750 | $119.37 | | |
| EMSRFD | EMS REFUND 147 | 0.0000000000 | $314,750 | $314,750 | $0.00 | | |
| PORTRFD | PORT REFUND 640 | 0.0000000000 | $314,750 | $314,750 | $0.00 | | |
| PORTWWGEN | PORT OF WW 640 | 0.2460186015 | $314,750 | $314,750 | $77.43 | | |
| SD140BOND | SD #140 BOND 764 | 0.8342371393 | $314,750 | $314,750 | $262.58 | | |
| SD140GEN | SD #140 GENERAL 760 | 2.0646500647 | $314,750 | $314,750 | $649.85 | | |
| ST2 | STATE SCHOOL PART 2 600 | 0.8131451643 | $314,750 | $314,750 | $255.94 | | |
| STATESCHL | STATE SCHOOL 600 | 1.5158548041 | $314,750 | $314,750 | $477.12 | | |
| STREFUND | STATE REFUND LEVY 603 | 0.0000000000 | $314,750 | $314,750 | $0.00 | | |
| CWWBOND | C OF WW BOND 643 | 0.2760494372 | $314,750 | $314,750 | $86.89 | | |
| CWWGEN | CITY OF WW 631 | 1.6100204973 | $314,750 | $314,750 | $506.75 | | |
| CWWRFD | CITY OF WALLA WALLA REFUND 631 | 0.0000000000 | $314,750 | $314,750 | $0.00 | | |
| | Total Tax Rate: | 8.7973694689 | | | | | |
| | | | | Taxes w/Current Exemptions: | $2,768.98 | | |
| | | | | Taxes w/o Exemptions: | $2,768.98 | | |
Improvement / Building
| Improvement #1: | RESIDENTIAL | State Code: | 11 | 1032.0 sqft | Value: | $276,870 |
| Exterior Wall: | SIDING | Heating/Cooling: | WARM & COOLED AIR | | Number of Bathrooms: | 2 | Number of Bedrooms: | 3 | | Plumbing: | 9 | Roof Covering: | COMP SHINGLE |
|
| | Type | Description | Class CD | Sub Class CD | Year Built | Area |
| | MA | Main Area | 1 | 30 | 1947 | 1032.0 |
| | SI1 | SITE IMPROVEMENT | 1 | 30 | 1947 | 1.5 |
| | BASE | BASEMENT | 1 | 30 | 1947 | 1032.0 |
| | BPF | BASEMENT -PARTITIONED FINISH | 1 | 30 | 1947 | 1032.0 |
| | DTG | Detached Garage | 1 | 30 | 1947 | 240.0 |
| | RPS | PORCH W/STEPS,ROOF | 1 | 30 | 1947 | 30.0 |
| | CPC | COVERED CARPORT/PATIO | 1 | 30 | 1947 | 90.0 |
Sketch
Property Image
Land
| 1 | RES 1 | Converted: Residential | 0.1391 | 6060.00 | 0.00 | 0.00 | 1.00 | $37,880 | $0 |
Roll Value History
| 2026 | N/A | N/A | N/A | N/A | N/A |
| 2025 | $260,090 | $60,600 | $0 | $320,690 | $320,690 |
| 2024 | $260,090 | $60,600 | $0 | $320,690 | $320,690 |
| 2023 | $276,870 | $37,880 | $0 | $314,750 | $314,750 |
| 2022 | $276,870 | $37,880 | $0 | $314,750 | $314,750 |
| 2021 | $205,090 | $37,880 | $0 | $242,970 | $242,970 |
| 2020 | $151,920 | $37,880 | $0 | $189,800 | $189,800 |
| 2019 | $151,920 | $37,880 | $0 | $189,800 | $189,800 |
| 2018 | $132,100 | $37,880 | $0 | $169,980 | $169,980 |
| 2017 | $151,310 | $24,200 | $0 | $175,510 | $175,510 |
| 2016 | $137,550 | $24,200 | $0 | $161,750 | $161,750 |
| 2015 | $137,550 | $24,200 | $0 | $161,750 | $161,750 |
| 2014 | $131,000 | $24,200 | $0 | $155,200 | $155,200 |
| 2013 | $131,000 | $24,200 | $0 | $155,200 | $155,200 |
| 2012 | $136,500 | $24,200 | $0 | $0 | $0 |
| 2011 | $136,500 | $24,200 | $0 | $0 | $0 |
| 2010 | $128,800 | $24,200 | $0 | $0 | $0 |
| 2009 | $145,800 | $24,200 | $0 | $0 | $0 |
| 2008 | $145,800 | $24,200 | $0 | $0 | $0 |
| 2007 | $145,800 | $24,200 | $0 | $0 | $0 |
Deed and Sales History
| 1 | 01/20/2017 | SWD | STATUTORY WARRANTY DEED | PRIBILSTY JASON E | DE BEAUMONT BRYAN D | | | $174,900.00 | 131793 | 2017-00530 |
| 2 | 06/15/2012 | QCD | QUIT CLAIM DEED | PRIBILSKY, JASON C & SUZANNE E | PRIBILSTY, JASON E | | | | 122181 | 2012-05004 |
| 3 | 04/21/2006 | WARRANTY D | WARRANTY DEED | PERSONS, DANA M | PRIBILSKY, JASON C & SUZANNE E | | | $175,500.00 | 110078 | 2006-04513 |
| 4 | 03/30/2000 | WARRANTY D | WARRANTY DEED | | | | | $89,900.00 | 94796 | 2960-003081 |
Payout Agreement
| No payout information available.. |