| 1 | 01/23/2024 | SWD | STATUTORY WARRANTY DEED | MARTIN DENISE L | BAFFNEY KEVIN & KATY | | 2-PARCLES | $850,000.00 | 147099 | 2024-00532 |
|   | |
| 2 | 07/12/2019 | QCD | QUIT CLAIM DEED | MARTIN DENISE | MARTIN DENISE L | | | $0.00 | 137327 | 2019-05345 |
| 3 | 03/22/2019 | QCD | QUIT CLAIM DEED | MARTIN DENISE | MARTIN DENISE | | | $0.00 | 136562 | 2019-01874 |
| 4 | 01/11/2018 | SWD | STATUTORY WARRANTY DEED | BOER DENNIS WAYNE LIVING TRUST | MARTIN DENISE | | 2-PARCELS | $615,000.00 | 133982 | 2018-00324 |
|   | |
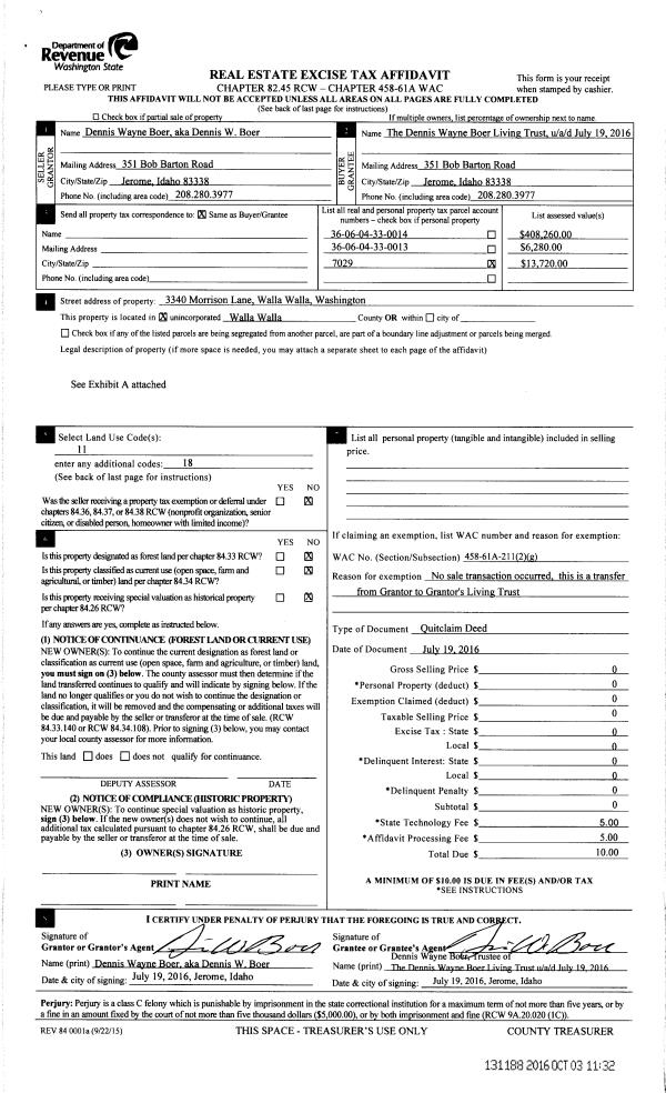
| 5 | 07/19/2016 | QCD | QUIT CLAIM DEED | BOER DENNIS WAYNE | BOER DENNIS WAYNE LIVING TRUST | | | $0.00 | 131188 | 2016-08152 |
| 6 | 05/30/2008 | WARRANTY D | WARRANTY DEED | STREELMAN A JAMES & E MAE TRUSTEES OF THE | BOER DENNIS WAYNE | | | $500,000.00 | 115107 | 2008-05507 |
|   | |
| 7 | 04/28/2006 | WARRANTY D | WARRANTY DEED | AGUIAR JANE | STREELMAN A JAMES & E MAE TRUSTEES OF THE | | | $499,900.00 | 110145 | 2006-04829 |
|   | |
| 8 | 08/05/2004 | QCD | QUIT CLAIM DEED | AGUIAR, MARVIN | AGUIAR, JANE | | | | 105426 | 2004-08944 |
| 9 | 03/01/1993 | WARRANTY D | WARRANTY DEED | | | | | $140,000.00 | 78632 | 2059-303074 |