Property
Account |
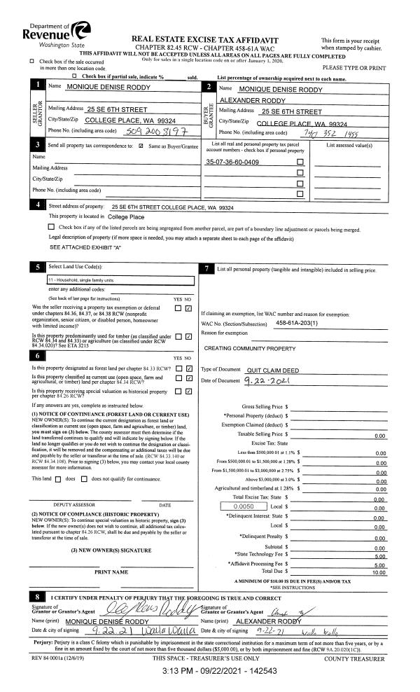
| Property ID: | 15957 | Abbreviated Legal Description: | CP #2 E 80' OF S1/2 OF LOT 3 BLK 4 LESS ST |
| Parcel Number: | 350736600409 | Agent Code: | |
| Type: | Real | | |
| Tax Area: | 75 - CP 250 | Land Use Code | 11 |
| Open Space: | N | DFL | N |
| Historic Property: | N | Remodel Property: | N |
| Multi-Family Redevelopment: | N | | |
| Township: | 7 | Section: | 36 |
| Range: | 35 |
Location |
| Address: | 25 SE 6TH ST WA 99324 | Mapsco: | |
| Neighborhood: | A SFR | Map ID: | |
| Neighborhood CD: | 113011 |
Owner |
| Name: | RODDY MONIQUE DENISE & ALEXANDER | Owner ID: | 70303 |
| Mailing Address: | 25 SE 6TH ST COLLEGE PLACE, WA 99324 | % Ownership: | 100.0000000000% |
| | | Exemptions: | |
Taxes and Assessment Details
Values
| (+) Improvement Homesite Value: | + | $0 | |
| (+) Improvement Non-Homesite Value: | + | $230,550 | |
| (+) Land Homesite Value: | + | $0 | |
| (+) Land Non-Homesite Value: | + | $62,740 | |
| (+) Curr Use (HS): | + | $0 | $0 |
| (+) Curr Use (NHS): | + | $0 | $0 |
| | | -------------------------- | |
| (=) Market Value: | = | $293,290 | |
| (–) Productivity Loss: | – | $0 | |
| | | -------------------------- | |
| (=) Subtotal: | = | $293,290 | |
| (+) Senior Appraised Value: | + | $0 | |
| (+) Non-Senior Appraised Value: | + | $293,290 | |
| | | -------------------------- | |
| (=) Total Appraised Value: | = | $293,290 | |
| (–) Senior Exemption Loss: | – | $0 | |
| (–) Exemption Loss: | – | $0 | |
| | | -------------------------- | |
| (=) Taxable Value: | = | $293,290 | |
Taxing Jurisdiction
| Owner: | RODDY MONIQUE DENISE & ALEXANDER | | |
| % Ownership: | 100.0000000000% | | |
| Total Value: | $293,290 | | |
| Tax Area: | 75 - CP 250 |
| CERFD | CURRENT EXPENSE REFUND 010 | 0.0000000000 | $293,290 | $293,290 | $0.00 | | |
| CURREXP | CURRENT EXPENSE 010 | 1.0175366760 | $293,290 | $293,290 | $298.43 | | |
| HUMNSERV | HUMAN SERVICES 119 | 0.0250000000 | $293,290 | $293,290 | $7.33 | | |
| SLDREL | SOLDIERS RELIEF 121 | 0.0155990005 | $293,290 | $293,290 | $4.58 | | |
| COLLPLBOND | C OF CP BOND 644 | 0.4374241808 | $293,290 | $293,290 | $128.29 | | |
| COLLPLGEN | CITY OF CP 632 | 1.4453819216 | $293,290 | $293,290 | $423.92 | | |
| EMERGSER | EMS 147 | 0.3792580840 | $293,290 | $293,290 | $111.23 | | |
| EMSRFD | EMS REFUND 147 | 0.0000000000 | $293,290 | $293,290 | $0.00 | | |
| RURALLIB | RURAL LIBRARY 623 | 0.3710609029 | $293,290 | $293,290 | $108.83 | | |
| PORTRFD | PORT REFUND 640 | 0.0000000000 | $293,290 | $293,290 | $0.00 | | |
| PORTWWGEN | PORT OF WW 640 | 0.2460186015 | $293,290 | $293,290 | $72.15 | | |
| SD250BOND | SD #250 BOND 773 | 1.4560608159 | $293,290 | $293,290 | $427.05 | | |
| SD250GEN | SD #250 GENERAL 770 | 2.3880724087 | $293,290 | $293,290 | $700.40 | | |
| ST2 | STATE SCHOOL PART 2 600 | 0.8131451643 | $293,290 | $293,290 | $238.49 | | |
| STATESCHL | STATE SCHOOL 600 | 1.5158548041 | $293,290 | $293,290 | $444.59 | | |
| STREFUND | STATE REFUND LEVY 603 | 0.0000000000 | $293,290 | $293,290 | $0.00 | | |
| | Total Tax Rate: | 10.1104125603 | | | | | |
| | | | | Taxes w/Current Exemptions: | $2,965.29 | | |
| | | | | Taxes w/o Exemptions: | $2,965.29 | | |
Improvement / Building
| Improvement #1: | RESIDENTIAL | State Code: | 11 | 1432.0 sqft | Value: | $230,550 |
| Exterior Wall: | SIDING | Heating/Cooling: | FORCED AIR | | Number of Bathrooms: | 1 | Number of Bedrooms: | 3 | | Plumbing: | 6 | Roof Covering: | COMP SHINGLE |
|
| | Type | Description | Class CD | Sub Class CD | Year Built | Area |
| | MA | Main Area | 4 | 30 | 1910 | 1432.0 |
| | SI1 | SITE IMPROVEMENT | 4 | 30 | 1910 | 1.0 |
| | UPFL | Upper Floor (included in main area) | 4 | 30 | 1910 | 400.0 |
| | WDR | WOOD DECK W/ROOF | 4 | 30 | 1910 | 152.0 |
| | DTG | Detached Garage | 4 | 30 | 1910 | 396.0 |
Sketch
Property Image
Land
| 1 | RES 1 | Converted: Residential | 0.2847 | 12400.00 | 0.00 | 0.00 | 1.00 | $62,740 | $0 |
Roll Value History
| 2026 | N/A | N/A | N/A | N/A | N/A |
| 2025 | $195,960 | $93,870 | $0 | $289,830 | $289,830 |
| 2024 | $230,550 | $62,740 | $0 | $293,290 | $293,290 |
| 2023 | $230,550 | $62,740 | $0 | $293,290 | $293,290 |
| 2022 | $230,550 | $62,740 | $0 | $293,290 | $293,290 |
| 2021 | $200,480 | $62,740 | $0 | $263,220 | $263,220 |
| 2020 | $133,650 | $62,740 | $0 | $196,390 | $196,390 |
| 2019 | $147,190 | $49,200 | $0 | $196,390 | $196,390 |
| 2018 | $133,810 | $49,200 | $0 | $183,010 | $183,010 |
| 2017 | $111,500 | $49,200 | $0 | $160,700 | $160,700 |
| 2016 | $92,920 | $49,200 | $0 | $142,120 | $142,120 |
| 2015 | $80,800 | $49,200 | $0 | $130,000 | $130,000 |
| 2014 | $80,800 | $49,200 | $0 | $130,000 | $130,000 |
| 2013 | $80,800 | $49,200 | $0 | $130,000 | $130,000 |
| 2012 | $80,800 | $49,200 | $0 | $0 | $0 |
| 2011 | $80,800 | $49,200 | $0 | $0 | $0 |
| 2010 | $69,000 | $49,200 | $0 | $0 | $0 |
| 2009 | $82,100 | $49,200 | $0 | $0 | $0 |
| 2008 | $77,900 | $26,900 | $0 | $0 | $0 |
| 2007 | $77,900 | $26,900 | $0 | $0 | $0 |
Deed and Sales History
| 1 | 09/22/2021 | QCD | QUIT CLAIM DEED | VINCENT MONIQUE DENISE | RODDY MONIQUE DENISE & ALEXANDER | | | $0.00 | 142543 | 2021-11643 |
| 2 | 08/23/2019 | SWD | STATUTORY WARRANTY DEED | STEVEN ALLEN DAVIS & JANICE MARIE DAVIS DECLARATION OF TRUST | VINCENT MONIQUE DENISE | | | $228,000.00 | 137548 | 2019-06513 |
| 3 | 09/09/2014 | SWD | STATUTORY WARRANTY DEED | DAVIS STEVEN A & JANICE M | STEVEN ALLEN DAVIS & JANICE MARIE DAVIS DECLARATION OF TRUST | | | $0.00 | 126657 | 2014-06808 |
| 4 | 04/20/2006 | WARRANTY D | WARRANTY DEED | EDWARDS, LILLIAN M ESTATE OF | DAVIS, STEVEN A & JANICE M | | | $112,500.00 | 110068 | 2006-04456 |
| 5 | 01/01/1975 | WARRANTY D | WARRANTY DEED | | | | | $21,000.00 | 0 | 2304-41000 |
Payout Agreement
| No payout information available.. |