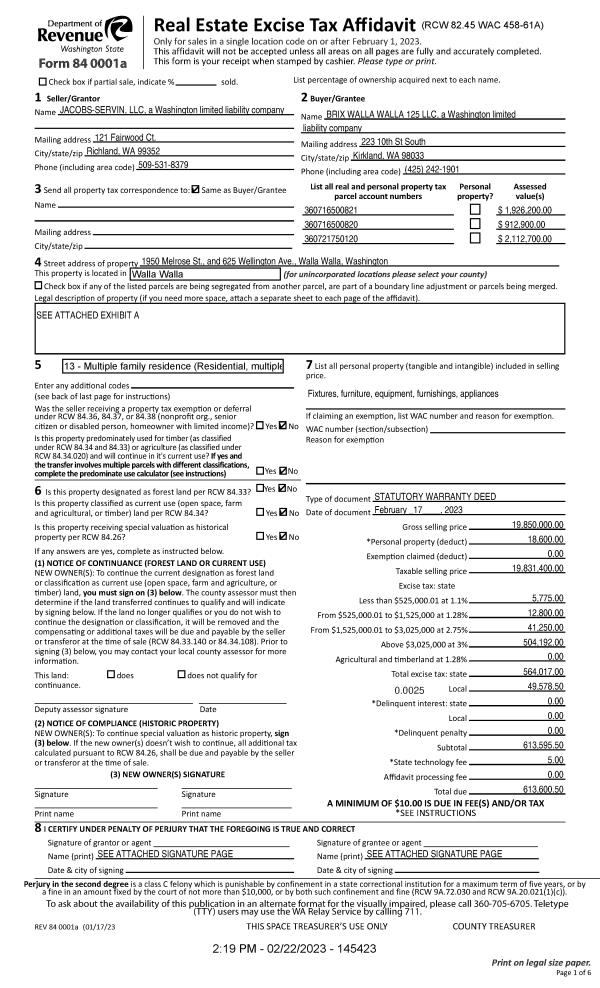
Property
Account |
| Property ID: | 15940 | Abbreviated Legal Description: | FRANKLAND PARCEL 20 BLK 8 AND VAC ALLEY |
| Parcel Number: | 360716500820 | Agent Code: | |
| Type: | Real | | |
| Tax Area: | 5 - OL-140 | Land Use Code | 13 |
| Open Space: | N | DFL | N |
| Historic Property: | N | Remodel Property: | N |
| Multi-Family Redevelopment: | N | | |
| Township: | 7 | Section: | 16 |
| Range: | 36 |
Location |
| Address: | 1955 MELROSE ST WA 99362 | Mapsco: | |
| Neighborhood: | WW Downtown Core area #3 | Map ID: | |
| Neighborhood CD: | 5343 |
Owner |
| Name: | BRIX WALLA WALLA 125 LLC | Owner ID: | 73170 |
| Mailing Address: | 223 10TH ST SOUTH KIRKLAND, WA 98033 | % Ownership: | 100.0000000000% |
| | | Exemptions: | |
Taxes and Assessment Details
Property Tax Information as of
02/21/2026
Click on "Statement Details" to expand or collapse a tax statement.
* Please enter a valid date ** Please enter a valid date *
Statement Details |
| | TOTAL: | $0.00 | $0.00 | $0.00 | $0.00 | $0.00 | $0.00 |
|
| | $0.00 | $0.00 | $0.00 | $0.00 | $0.00 | $0.00 |
Values
| (+) Improvement Homesite Value: | + | $0 | |
| (+) Improvement Non-Homesite Value: | + | $1,873,000 | |
| (+) Land Homesite Value: | + | $0 | |
| (+) Land Non-Homesite Value: | + | $208,100 | |
| (+) Curr Use (HS): | + | $0 | $0 |
| (+) Curr Use (NHS): | + | $0 | $0 |
| | | -------------------------- | |
| (=) Market Value: | = | $2,081,100 | |
| (–) Productivity Loss: | – | $0 | |
| | | -------------------------- | |
| (=) Subtotal: | = | $2,081,100 | |
| (+) Senior Appraised Value: | + | $0 | |
| (+) Non-Senior Appraised Value: | + | $2,081,100 | |
| | | -------------------------- | |
| (=) Total Appraised Value: | = | $2,081,100 | |
| (–) Senior Exemption Loss: | – | $0 | |
| (–) Exemption Loss: | – | $0 | |
| | | -------------------------- | |
| (=) Taxable Value: | = | $2,081,100 | |
Taxing Jurisdiction
| Owner: | BRIX WALLA WALLA 125 LLC | | |
| % Ownership: | 100.0000000000% | | |
| Total Value: | $2,081,100 | | |
| Tax Area: | 5 - OL-140 |
| CERFD | CURRENT EXPENSE REFUND 010 | 0.0000000000 | $2,081,100 | $2,081,100 | $0.00 | | |
| CURREXP | CURRENT EXPENSE 010 | 1.0175366760 | $2,081,100 | $2,081,100 | $2,117.60 | | |
| HUMNSERV | HUMAN SERVICES 119 | 0.0250000000 | $2,081,100 | $2,081,100 | $52.03 | | |
| SLDREL | SOLDIERS RELIEF 121 | 0.0155990005 | $2,081,100 | $2,081,100 | $32.46 | | |
| EMERGSER | EMS 147 | 0.3792580840 | $2,081,100 | $2,081,100 | $789.27 | | |
| EMSRFD | EMS REFUND 147 | 0.0000000000 | $2,081,100 | $2,081,100 | $0.00 | | |
| PORTRFD | PORT REFUND 640 | 0.0000000000 | $2,081,100 | $2,081,100 | $0.00 | | |
| PORTWWGEN | PORT OF WW 640 | 0.2460186015 | $2,081,100 | $2,081,100 | $511.99 | | |
| SD140BOND | SD #140 BOND 764 | 0.8342371393 | $2,081,100 | $2,081,100 | $1,736.13 | | |
| SD140GEN | SD #140 GENERAL 760 | 2.0646500647 | $2,081,100 | $2,081,100 | $4,296.74 | | |
| ST2 | STATE SCHOOL PART 2 600 | 0.8131451643 | $2,081,100 | $2,081,100 | $1,692.24 | | |
| STATESCHL | STATE SCHOOL 600 | 1.5158548041 | $2,081,100 | $2,081,100 | $3,154.65 | | |
| STREFUND | STATE REFUND LEVY 603 | 0.0000000000 | $2,081,100 | $2,081,100 | $0.00 | | |
| CWWBOND | C OF WW BOND 643 | 0.2760494372 | $2,081,100 | $2,081,100 | $574.49 | | |
| CWWGEN | CITY OF WW 631 | 1.6100204973 | $2,081,100 | $2,081,100 | $3,350.61 | | |
| CWWRFD | CITY OF WALLA WALLA REFUND 631 | 0.0000000000 | $2,081,100 | $2,081,100 | $0.00 | | |
| | Total Tax Rate: | 8.7973694689 | | | | | |
| | | | | Taxes w/Current Exemptions: | $18,308.21 | | |
| | | | | Taxes w/o Exemptions: | $18,308.21 | | |
Improvement / Building
| Improvement #1: | COMMERCIAL | State Code: | 13 | 31220.0 sqft | Value: | $1,873,000 |
| | Type | Description | Class CD | Sub Class CD | Year Built | Area |
| | MA | Main Area | D | * | 1980 | 31220.0 |
| | SI1 | SITE IMPROVEMENT | D | * | 1980 | 24.0 |
| | CPCS | CARPORT/SHED OR FLAT ROOF | D | * | 1980 | 1800.0 |
| | CPCS | CARPORT/SHED OR FLAT ROOF | D | * | 1980 | 2728.0 |
| | EWS | EXT WOOD STAIRS | D | * | 1980 | 5.0 |
| | BLW | WOOD BALCONIES | D | * | 1980 | 750.0 |
| | RPC | OPEN PORCH W/ROOF , CEILED | D | * | 1980 | 750.0 |
| | PRKSTLA | PARK STALL AVERAGE | D | * | 1980 | 17.0 |
Sketch
Property Image
Land
| 1 | COM 1 | Converted: Commercial | 0.9082 | 39560.00 | 0.00 | 0.00 | 1.00 | $208,100 | $0 |
Roll Value History
| 2026 | N/A | N/A | N/A | N/A | N/A |
| 2025 | $3,742,800 | $208,100 | $0 | $3,950,900 | $3,950,900 |
| 2024 | $3,538,300 | $208,100 | $0 | $3,746,400 | $3,746,400 |
| 2023 | $1,873,000 | $208,100 | $0 | $2,081,100 | $2,081,100 |
| 2022 | $704,800 | $208,100 | $0 | $912,900 | $912,900 |
| 2021 | $704,800 | $208,100 | $0 | $912,900 | $912,900 |
| 2020 | $704,800 | $208,100 | $0 | $912,900 | $912,900 |
| 2019 | $704,800 | $208,100 | $0 | $912,900 | $912,900 |
| 2018 | $704,800 | $208,100 | $0 | $912,900 | $912,900 |
| 2017 | $668,700 | $207,900 | $0 | $876,600 | $876,600 |
| 2016 | $668,700 | $207,900 | $0 | $876,600 | $876,600 |
| 2015 | $668,700 | $207,900 | $0 | $876,600 | $876,600 |
| 2014 | $668,700 | $207,900 | $0 | $876,600 | $876,600 |
| 2013 | $668,700 | $207,900 | $0 | $876,600 | $876,600 |
| 2012 | $704,000 | $98,900 | $0 | $0 | $0 |
| 2011 | $704,000 | $98,900 | $0 | $0 | $0 |
| 2010 | $704,000 | $98,900 | $0 | $0 | $0 |
| 2009 | $704,000 | $98,900 | $0 | $0 | $0 |
| 2008 | $704,000 | $98,900 | $0 | $0 | $0 |
| 2007 | $704,000 | $98,900 | $0 | $0 | $0 |
Deed and Sales History
| 1 | 02/17/2023 | SWD | STATUTORY WARRANTY DEED | JACOBS-SERVIN LLC | BRIX WALLA WALLA 125 LLC | | 3-PARCELS | $19,831,400.00 | 145423 | 2023-00879 |
|   | |
| 2 | 01/05/2015 | QCD | QUIT CLAIM DEED | JACOBS ROBERT W & MARY H | JACOBS-SERVIN LLC | | 3-PARCELS | | 127216 | 2015-00026 |
| 3 | 10/30/2014 | SWD | STATUTORY WARRANTY DEED | JACOBS ROBERT ETAL | JACOBS ROBERT W & MARY H | | 3-PARCELS | $0.00 | 126872 | 2014-08000 |
| 4 | 06/28/2011 | WARRANTY D | WARRANTY DEED | "BROOME, LESLIE C &~MARDELL J" | | | | | 120319 | 2011-05003 |
| 5 | 12/30/2005 | WARRANTY D | WARRANTY DEED | "SERVIN, STEVEN H TRUST" | | | | | 109364 | 2005-16339 |
| 6 | 03/12/2003 | WARRANTY D | WARRANTY DEED | "JACOBS, RICHARD" | | | | | 101568 | 2003-03305 |
| 7 | 12/16/1997 | WARRANTY D | WARRANTY DEED | | | | | | 89537 | 2609-712291 |
Payout Agreement
| No payout information available.. |