| 1 | 11/28/2017 | SWD | STATUTORY WARRANTY DEED | KUYKENDALL BUDDY | OLIVAREZ JESUS | | 2-PARCELS | $70,000.00 | 133693 | 2017-09539 |
|   | |
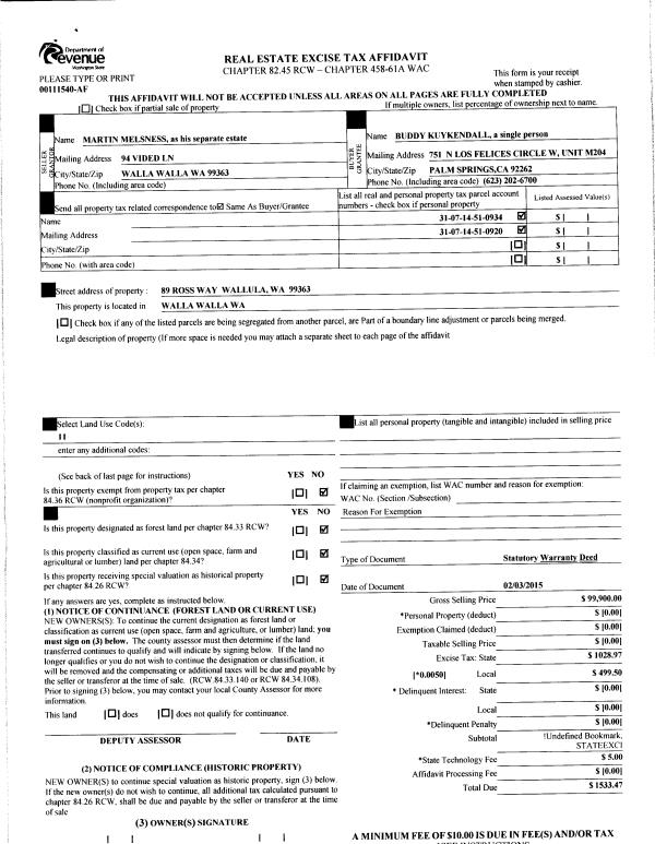
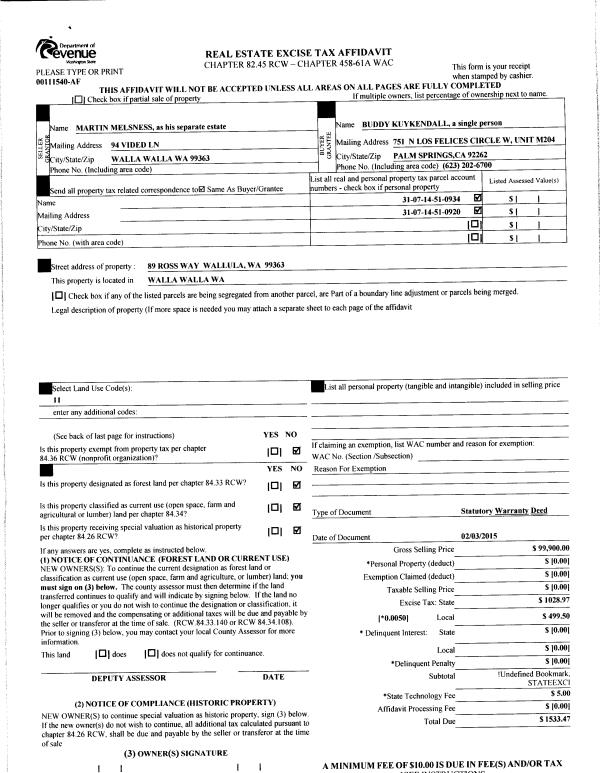
| 2 | 02/09/2015 | SWD | STATUTORY WARRANTY DEED | MELSNESS MARTIN W | KUYKENDALL BUDDY | | 2-PARCELS | $99,900.00 | 127411 | 2015-01286 |
|   | |
| 3 | 04/11/2011 | WARRANTY D | WARRANTY DEED | BISHOP, DOUGLAS M LIFE ESTATE | MELSNESS MARTIN W | | | $89,400.00 | 119994 | 2011-03004 |
|   | |
| 4 | 04/27/2006 | QCD | QUIT CLAIM DEED | HOUSTON, ZOLA M ESTATE OF | BISHOP, DOUGLAS M LIFE ESTATE | | | | 110120 | 2006-04715 |
| 5 | 09/03/2003 | QCD | QUIT CLAIM DEED | HOUSTON, ZOLA M ESTATE | BISHOP DOUGLAS M LIFE ESTATE | | | | 102924 | 2003-13384 |
| 6 | 06/01/1983 | WARRANTY D | WARRANTY DEED | | | | | $1,200.00 | 0 | 1388-303809 |