Property
Account |
| Property ID: | 15932 | Abbreviated Legal Description: | WALLULA TOWNSITE LOTS 20 & 21 BLK 9 |
| Parcel Number: | 310714510920 | Agent Code: | |
| Type: | Real | | |
| Tax Area: | 327 - 400-5-WI-C-M | Land Use Code | 11 |
| Open Space: | N | DFL | N |
| Historic Property: | N | Remodel Property: | N |
| Multi-Family Redevelopment: | N | | |
| Township: | 7 | Section: | 14 |
| Range: | 31 |
Location |
| Address: | 89 ROSS WAY WA 99323 | Mapsco: | |
| Neighborhood: | Wallula A SFR | Map ID: | |
| Neighborhood CD: | 213811 |
Owner |
| Name: | OLIVAREZ JESUS | Owner ID: | 62230 |
| Mailing Address: | ORION OLIVAREZ PO BOX 102 WALLULA, WA 99363 | % Ownership: | 100.0000000000% |
| | | Exemptions: | |
Taxes and Assessment Details
Values
| (+) Improvement Homesite Value: | + | $0 | |
| (+) Improvement Non-Homesite Value: | + | $120,920 | |
| (+) Land Homesite Value: | + | $0 | |
| (+) Land Non-Homesite Value: | + | $19,560 | |
| (+) Curr Use (HS): | + | $0 | $0 |
| (+) Curr Use (NHS): | + | $0 | $0 |
| | | -------------------------- | |
| (=) Market Value: | = | $140,480 | |
| (–) Productivity Loss: | – | $0 | |
| | | -------------------------- | |
| (=) Subtotal: | = | $140,480 | |
| (+) Senior Appraised Value: | + | $0 | |
| (+) Non-Senior Appraised Value: | + | $140,480 | |
| | | -------------------------- | |
| (=) Total Appraised Value: | = | $140,480 | |
| (–) Senior Exemption Loss: | – | $0 | |
| (–) Exemption Loss: | – | $0 | |
| | | -------------------------- | |
| (=) Taxable Value: | = | $140,480 | |
Taxing Jurisdiction
| Owner: | OLIVAREZ JESUS | | |
| % Ownership: | 100.0000000000% | | |
| Total Value: | $140,480 | | |
| Tax Area: | 327 - 400-5-WI-C-M |
| CERFD | CURRENT EXPENSE REFUND 010 | 0.0000000000 | $140,480 | $140,480 | $0.00 | | |
| CURREXP | CURRENT EXPENSE 010 | 1.0175366760 | $140,480 | $140,480 | $142.94 | | |
| HUMNSERV | HUMAN SERVICES 119 | 0.0250000000 | $140,480 | $140,480 | $3.51 | | |
| SLDREL | SOLDIERS RELIEF 121 | 0.0155990005 | $140,480 | $140,480 | $2.19 | | |
| EMERGSER | EMS 147 | 0.3792580840 | $140,480 | $140,480 | $53.28 | | |
| EMSRFD | EMS REFUND 147 | 0.0000000000 | $140,480 | $140,480 | $0.00 | | |
| FD5EXP | FD #5 EXPENSE 689 | 1.2045331840 | $140,480 | $140,480 | $169.21 | | |
| RLBRFD | RURAL LIBRARY REFUND 623 | 0.0000000000 | $140,480 | $140,480 | $0.00 | | |
| RURALLIB | RURAL LIBRARY 623 | 0.3710609029 | $140,480 | $140,480 | $52.13 | | |
| PORTRFD | PORT REFUND 640 | 0.0000000000 | $140,480 | $140,480 | $0.00 | | |
| PORTWWGEN | PORT OF WW 640 | 0.2460186015 | $140,480 | $140,480 | $34.56 | | |
| SD400BOND | SD #400 BOND 793 | 0.0000000000 | $140,480 | $140,480 | $0.00 | | |
| SD400CAP | SD #400 CP 792 | 0.3443722657 | $140,480 | $140,480 | $48.38 | | |
| SD400GEN | SD #400 GENERAL 790 | 1.9278469916 | $140,480 | $140,480 | $270.82 | | |
| ST2 | STATE SCHOOL PART 2 600 | 0.8131451643 | $140,480 | $140,480 | $114.23 | | |
| STATESCHL | STATE SCHOOL 600 | 1.5158548041 | $140,480 | $140,480 | $212.95 | | |
| STREFUND | STATE REFUND LEVY 603 | 0.0000000000 | $140,480 | $140,480 | $0.00 | | |
| COROAD | COUNTY ROAD 115 | 1.6549953990 | $140,480 | $140,480 | $232.49 | | |
| CRPRD | COUNTY ROAD REFUND 115 | 0.0000000000 | $140,480 | $140,480 | $0.00 | | |
| | Total Tax Rate: | 9.5152210736 | | | | | |
| | | | | Taxes w/Current Exemptions: | $1,336.69 | | |
| | | | | Taxes w/o Exemptions: | $1,336.69 | | |
Improvement / Building
| Improvement #1: | RESIDENTIAL | State Code: | 11 | 1112.0 sqft | Value: | $120,920 |
| Exterior Wall: | PLYWOOD | Foundation: | SLAB | | Heating/Cooling: | WALL FURNACE | Number of Bathrooms: | 1 | | Number of Bedrooms: | 2 | Plumbing: | 7 | | Roof Covering: | COMP SHINGLE |   |   |
|
| | Type | Description | Class CD | Sub Class CD | Year Built | Area |
| | MA | Main Area | 1 | 30 | 1960 | 1112.0 |
| | SI1 | SITE IMPROVEMENT | 1 | 30 | 1960 | 1.0 |
| | WOD | Wood Deck | 1 | 30 | 1960 | 352.0 |
| | CPC | COVERED CARPORT/PATIO | 1 | 30 | 1960 | 168.0 |
Sketch
Property Image
Land
| 1 | RES 1 | Converted: Residential | 0.2169 | 9450.00 | 0.00 | 0.00 | 1.00 | $19,560 | $0 |
Roll Value History
| 2026 | N/A | N/A | N/A | N/A | N/A |
| 2025 | $133,010 | $19,560 | $0 | $152,570 | $152,570 |
| 2024 | $133,010 | $19,560 | $0 | $152,570 | $152,570 |
| 2023 | $120,920 | $19,560 | $0 | $140,480 | $140,480 |
| 2022 | $105,140 | $19,560 | $0 | $124,700 | $124,700 |
| 2021 | $87,620 | $19,560 | $0 | $107,180 | $107,180 |
| 2020 | $90,550 | $6,500 | $0 | $97,050 | $97,050 |
| 2019 | $90,550 | $6,500 | $0 | $97,050 | $97,050 |
| 2018 | $64,680 | $6,500 | $0 | $71,180 | $71,180 |
| 2017 | $92,400 | $6,500 | $0 | $98,900 | $98,900 |
| 2016 | $92,400 | $6,500 | $0 | $98,900 | $98,900 |
| 2015 | $84,000 | $6,500 | $0 | $90,500 | $90,500 |
| 2014 | $67,200 | $6,500 | $0 | $73,700 | $73,700 |
| 2013 | $67,200 | $6,500 | $0 | $73,700 | $73,700 |
| 2012 | $67,200 | $6,500 | $0 | $0 | $0 |
| 2011 | $48,800 | $6,500 | $0 | $0 | $0 |
| 2010 | $48,800 | $6,500 | $0 | $0 | $0 |
| 2009 | $49,800 | $5,700 | $0 | $0 | $0 |
| 2008 | $49,800 | $5,700 | $0 | $0 | $0 |
| 2007 | $49,800 | $5,700 | $0 | $0 | $0 |
Deed and Sales History
| 1 | 11/28/2017 | SWD | STATUTORY WARRANTY DEED | KUYKENDALL BUDDY | OLIVAREZ JESUS | | 2-PARCELS | $70,000.00 | 133693 | 2017-09539 |
|   | |
| 2 | 02/09/2015 | SWD | STATUTORY WARRANTY DEED | MELSNESS MARTIN W | KUYKENDALL BUDDY | | 2-PARCELS | $99,900.00 | 127411 | 2015-01286 |
|   | |
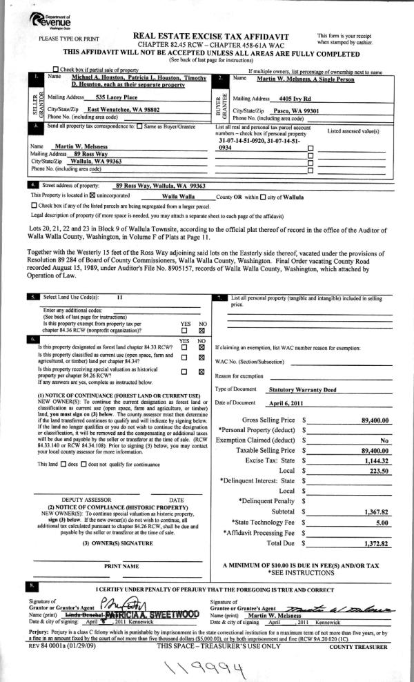
| 3 | 04/11/2011 | WARRANTY D | WARRANTY DEED | BISHOP DOUGLAS M LIFE ESTATE | MELSNESS MARTIN W | | | $89,400.00 | 119994 | 2011-03004 |
|   | |
| 4 | 04/27/2006 | QCD | QUIT CLAIM DEED | HOUSTON, ZOLA M ESTATE OF | BISHOP, DOUGLAS M LIFE ESTATE | | | | 110120 | 2006-04715 |
| 5 | 09/03/2003 | QCD | QUIT CLAIM DEED | HOUSTON BARNEY | BISHOP DOUGLAS M LIFE ESTATE | | | | 102924 | 2003-13384 |
| 6 | 03/01/1967 | QCD | QUIT CLAIM DEED | | | | | $1,000.00 | 0 | 3210-483571 |
Payout Agreement
| No payout information available.. |