Property
Account |
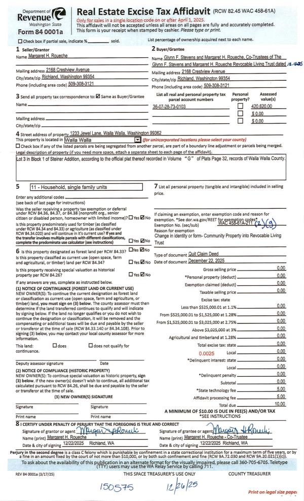
| Property ID: | 15906 | Abbreviated Legal Description: | STEINER ADDN LOT 3 BLK 1 |
| Parcel Number: | 360728730103 | Agent Code: | |
| Type: | Real | | |
| Tax Area: | 1 - OL-140-F | Land Use Code | 11 |
| Open Space: | N | DFL | N |
| Historic Property: | N | Remodel Property: | N |
| Multi-Family Redevelopment: | N | | |
| Township: | 7 | Section: | 28 |
| Range: | 36 |
Location |
| Address: | 1233 JEWEL LN WA 99362 | Mapsco: | |
| Neighborhood: | G Res | Map ID: | |
| Neighborhood CD: | 614011 |
Owner |
| Name: | SANCHEZ JOANNE | Owner ID: | 63801 |
| Mailing Address: | MARGARET HALLING ROUECHE 2168 CRESTVIEW AVE RICHLAND, WA 99354 | % Ownership: | 100.0000000000% |
| | | Exemptions: | |
Taxes and Assessment Details
Values
| (+) Improvement Homesite Value: | + | $331,010 | |
| (+) Improvement Non-Homesite Value: | + | $0 | |
| (+) Land Homesite Value: | + | $91,350 | |
| (+) Land Non-Homesite Value: | + | $0 | |
| (+) Curr Use (HS): | + | $0 | $0 |
| (+) Curr Use (NHS): | + | $0 | $0 |
| | | -------------------------- | |
| (=) Market Value: | = | $422,360 | |
| (–) Productivity Loss: | – | $0 | |
| | | -------------------------- | |
| (=) Subtotal: | = | $422,360 | |
| (+) Senior Appraised Value: | + | $0 | |
| (+) Non-Senior Appraised Value: | + | $422,360 | |
| | | -------------------------- | |
| (=) Total Appraised Value: | = | $422,360 | |
| (–) Senior Exemption Loss: | – | $0 | |
| (–) Exemption Loss: | – | $0 | |
| | | -------------------------- | |
| (=) Taxable Value: | = | $422,360 | |
Taxing Jurisdiction
| Owner: | SANCHEZ JOANNE | | |
| % Ownership: | 100.0000000000% | | |
| Total Value: | $422,360 | | |
| Tax Area: | 1 - OL-140-F |
| CERFD | CURRENT EXPENSE REFUND 010 | 0.0000000000 | $422,360 | $422,360 | $0.00 | | |
| CURREXP | CURRENT EXPENSE 010 | 1.0175366760 | $422,360 | $422,360 | $429.77 | | |
| HUMNSERV | HUMAN SERVICES 119 | 0.0250000000 | $422,360 | $422,360 | $10.56 | | |
| SLDREL | SOLDIERS RELIEF 121 | 0.0155990005 | $422,360 | $422,360 | $6.59 | | |
| EMERGSER | EMS 147 | 0.3792580840 | $422,360 | $422,360 | $160.18 | | |
| EMSRFD | EMS REFUND 147 | 0.0000000000 | $422,360 | $422,360 | $0.00 | | |
| PORTRFD | PORT REFUND 640 | 0.0000000000 | $422,360 | $422,360 | $0.00 | | |
| PORTWWGEN | PORT OF WW 640 | 0.2460186015 | $422,360 | $422,360 | $103.91 | | |
| SD140BOND | SD #140 BOND 764 | 0.8342371393 | $422,360 | $422,360 | $352.35 | | |
| SD140GEN | SD #140 GENERAL 760 | 2.0646500647 | $422,360 | $422,360 | $872.03 | | |
| ST2 | STATE SCHOOL PART 2 600 | 0.8131451643 | $422,360 | $422,360 | $343.44 | | |
| STATESCHL | STATE SCHOOL 600 | 1.5158548041 | $422,360 | $422,360 | $640.24 | | |
| STREFUND | STATE REFUND LEVY 603 | 0.0000000000 | $422,360 | $422,360 | $0.00 | | |
| CWWBOND | C OF WW BOND 643 | 0.2760494372 | $422,360 | $422,360 | $116.59 | | |
| CWWGEN | CITY OF WW 631 | 1.6100204973 | $422,360 | $422,360 | $680.01 | | |
| CWWRFD | CITY OF WALLA WALLA REFUND 631 | 0.0000000000 | $422,360 | $422,360 | $0.00 | | |
| | Total Tax Rate: | 8.7973694689 | | | | | |
| | | | | Taxes w/Current Exemptions: | $3,715.67 | | |
| | | | | Taxes w/o Exemptions: | $3,715.67 | | |
Improvement / Building
| Improvement #1: | RESIDENTIAL | State Code: | 11 | 1902.0 sqft | Value: | $331,010 |
| Exterior Wall: | VINYL | Heating/Cooling: | WARM & COOLED AIR | | Number of Bathrooms: | 2 | Number of Bedrooms: | 3 | | Plumbing: | 9 | Roof Covering: | COMP SHINGLE |
|
| | Type | Description | Class CD | Sub Class CD | Year Built | Area |
| | MA | Main Area | 1 | 30 | 1969 | 1902.0 |
| | SI1 | SITE IMPROVEMENT | 1 | 30 | 1969 | 3.0 |
| | ATG | Attached Garage | 1 | 30 | 1969 | 441.0 |
| | S1F | Single One Story Fireplace | 1 | 30 | 1969 | 1.0 |
| | CPC | COVERED CARPORT/PATIO | 1 | 30 | 1969 | 216.0 |
| | RPC | OPEN PORCH W/ROOF , CEILED | 1 | 30 | 1969 | 110.0 |
Sketch
Property Image
Land
| 1 | RES 1 | Converted: Residential | 0.2097 | 9135.00 | 0.00 | 0.00 | 1.00 | $91,350 | $0 |
Roll Value History
| 2026 | N/A | N/A | N/A | N/A | N/A |
| 2025 | $311,000 | $109,620 | $0 | $420,620 | $420,620 |
| 2024 | $331,010 | $91,350 | $0 | $422,360 | $422,360 |
| 2023 | $331,010 | $91,350 | $0 | $422,360 | $422,360 |
| 2022 | $300,920 | $75,360 | $0 | $376,280 | $376,280 |
| 2021 | $214,940 | $75,360 | $0 | $290,300 | $290,300 |
| 2020 | $179,120 | $75,360 | $0 | $254,480 | $254,480 |
| 2019 | $179,120 | $75,360 | $0 | $254,480 | $254,480 |
| 2018 | $178,330 | $46,400 | $0 | $224,730 | $224,730 |
| 2017 | $162,120 | $46,400 | $0 | $208,520 | $80,320 |
| 2016 | $154,400 | $46,400 | $0 | $200,800 | $80,320 |
| 2015 | $154,400 | $46,400 | $0 | $200,800 | $80,320 |
| 2014 | $154,400 | $46,400 | $0 | $200,800 | $80,320 |
| 2013 | $154,400 | $46,400 | $0 | $200,800 | $80,320 |
| 2012 | $164,900 | $46,400 | $0 | $211,300 | $80,320 |
| 2011 | $168,300 | $46,400 | $0 | $214,700 | $130,800 |
| 2010 | $136,100 | $46,400 | $0 | $0 | $0 |
| 2009 | $156,400 | $46,400 | $0 | $0 | $0 |
| 2008 | $156,400 | $46,400 | $0 | $0 | $0 |
| 2007 | $141,900 | $23,900 | $0 | $0 | $0 |
Deed and Sales History
| 1 | 12/26/2025 | QCD | QUIT CLAIM DEED | SANCHEZ JOANNE | SANCHEZ JOANNE & | | | | 150575 | 2025-07948 |
| 2 | 08/24/2018 | QCD | QUIT CLAIM DEED | SANCHEZ JOANNE ETAL | SANCHEZ JOANNE | | | $80,000.00 | 135405 | 2018-07011 |
| 3 | 08/02/2018 | DPR | DEED OF PERSONAL REPRESENTATIVE | HALLING MARGARET B | SANCHEZ JOANNE ETAL | | | $0.00 | 135265 | 2018-06349 |
| 4 | 07/30/2002 | WARRANTY D | WARRANTY DEED | | | | | $166,000.00 | 56 | 2002-0008583 |
Payout Agreement
| No payout information available.. |