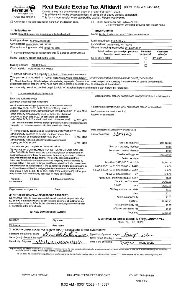
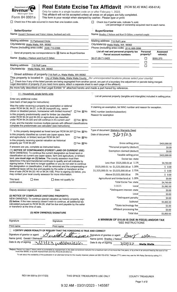
Property
Account |
| Property ID: | 15876 | Abbreviated Legal Description: | SPRING GROVE #1 LOT 1 OF SHORT PLAT (WLY 75' OF TAX 7) BLOCK 4 |
| Parcel Number: | 360728710423 | Agent Code: | |
| Type: | Real | | |
| Tax Area: | 6 - OL-140-F-FB | Land Use Code | 11 |
| Open Space: | N | DFL | N |
| Historic Property: | N | Remodel Property: | N |
| Multi-Family Redevelopment: | N | | |
| Township: | 7 | Section: | 28 |
| Range: | 36 |
Location |
| Address: | 718 ROFF LN WA 99362 | Mapsco: | |
| Neighborhood: | A Res | Map ID: | |
| Neighborhood CD: | 613011 |
Owner |
| Name: | NELSON BRADLEY J & KURT D GILLEN | Owner ID: | 73359 |
| Mailing Address: | 718 ROFF LN WALLA WALLA, WA 99362 | % Ownership: | 100.0000000000% |
| | | Exemptions: | |
Taxes and Assessment Details
Property Tax Information as of
02/21/2026
Click on "Statement Details" to expand or collapse a tax statement.
* Please enter a valid date ** Please enter a valid date *
Statement Details |
| | TOTAL: | $0.00 | $0.00 | $0.00 | $0.00 | $0.00 | $0.00 |
|
| | $0.00 | $0.00 | $0.00 | $0.00 | $0.00 | $0.00 |
Values
| (+) Improvement Homesite Value: | + | $328,540 | |
| (+) Improvement Non-Homesite Value: | + | $0 | |
| (+) Land Homesite Value: | + | $99,370 | |
| (+) Land Non-Homesite Value: | + | $0 | |
| (+) Curr Use (HS): | + | $0 | $0 |
| (+) Curr Use (NHS): | + | $0 | $0 |
| | | -------------------------- | |
| (=) Market Value: | = | $427,910 | |
| (–) Productivity Loss: | – | $0 | |
| | | -------------------------- | |
| (=) Subtotal: | = | $427,910 | |
| (+) Senior Appraised Value: | + | $0 | |
| (+) Non-Senior Appraised Value: | + | $427,910 | |
| | | -------------------------- | |
| (=) Total Appraised Value: | = | $427,910 | |
| (–) Senior Exemption Loss: | – | $0 | |
| (–) Exemption Loss: | – | $0 | |
| | | -------------------------- | |
| (=) Taxable Value: | = | $427,910 | |
Taxing Jurisdiction
| Owner: | NELSON BRADLEY J & KURT D GILLEN | | |
| % Ownership: | 100.0000000000% | | |
| Total Value: | $427,910 | | |
| Tax Area: | 6 - OL-140-F-FB |
| CERFD | CURRENT EXPENSE REFUND 010 | 0.0000000000 | $427,910 | $427,910 | $0.00 | | |
| CURREXP | CURRENT EXPENSE 010 | 0.9851088983 | $427,910 | $427,910 | $421.54 | | |
| HUMNSERV | HUMAN SERVICES 119 | 0.0250000000 | $427,910 | $427,910 | $10.70 | | |
| SLDREL | SOLDIERS RELIEF 121 | 0.0155990000 | $427,910 | $427,910 | $6.67 | | |
| EMERGSER | EMS 147 | 0.3676811629 | $427,910 | $427,910 | $157.33 | | |
| EMSRFD | EMS REFUND 147 | 0.0000000000 | $427,910 | $427,910 | $0.00 | | |
| PORTRFD | PORT REFUND 640 | 0.0000000000 | $427,910 | $427,910 | $0.00 | | |
| PORTWWGEN | PORT OF WW 640 | 0.2344301070 | $427,910 | $427,910 | $100.31 | | |
| SD140BOND | SD #140 BOND 764 | 0.8032434458 | $427,910 | $427,910 | $343.72 | | |
| SD140CAP | SD #140 CAP 762 | 0.3840034221 | $427,910 | $427,910 | $164.32 | | |
| SD140GEN | SD #140 GENERAL 760 | 2.4999999996 | $427,910 | $427,910 | $1,069.78 | | |
| ST2 | STATE SCHOOL PART 2 600 | 0.8853714103 | $427,910 | $427,910 | $378.86 | | |
| STATESCHL | STATE SCHOOL 600 | 1.6424571473 | $427,910 | $427,910 | $702.82 | | |
| STREFUND | STATE REFUND LEVY 603 | 0.0000000000 | $427,910 | $427,910 | $0.00 | | |
| CWWBOND | C OF WW BOND 643 | 0.2642134255 | $427,910 | $427,910 | $113.06 | | |
| CWWGEN | CITY OF WW 631 | 1.6110494978 | $427,910 | $427,910 | $689.38 | | |
| CWWRFD | CITY OF WALLA WALLA REFUND 631 | 0.0000000000 | $427,910 | $427,910 | $0.00 | | |
| | Total Tax Rate: | 9.7181575166 | | | | | |
| | | | | Taxes w/Current Exemptions: | $4,158.49 | | |
| | | | | Taxes w/o Exemptions: | $4,158.49 | | |
Improvement / Building
| Improvement #1: | RESIDENTIAL | State Code: | 11 | 1593.0 sqft | Value: | $328,540 |
| Exterior Wall: | SIDING | Heating/Cooling: | HEAT PUMP | | Number of Bathrooms: | 2 | Number of Bedrooms: | 3 | | Plumbing: | 12 | Roof Covering: | COMP SHINGLE |
|
| | Type | Description | Class CD | Sub Class CD | Year Built | Area |
| | MA | Main Area | 1 | 30 | 2005 | 1593.0 |
| | SI1 | SITE IMPROVEMENT | 1 | 30 | 2005 | 4.0 |
| | OSP | Open | 1 | 30 | 2005 | 32.0 |
| | CPC | COVERED CARPORT/PATIO | 1 | 30 | 2009 | 180.0 |
| | ATG | Attached Garage | 1 | 30 | 2005 | 400.0 |
Sketch
Property Image
Land
| 1 | RES 1 | Converted: Residential | 0.2074 | 9034.00 | 0.00 | 0.00 | 1.00 | $99,370 | $0 |
Roll Value History
| 2026 | N/A | N/A | N/A | N/A | N/A |
| 2025 | $328,540 | $99,370 | $0 | $427,910 | $427,910 |
| 2024 | $333,350 | $81,310 | $0 | $414,660 | $414,660 |
| 2023 | $333,350 | $81,310 | $0 | $414,660 | $414,660 |
| 2022 | $289,870 | $65,500 | $0 | $355,370 | $355,370 |
| 2021 | $241,560 | $65,500 | $0 | $307,060 | $307,060 |
| 2020 | $172,540 | $65,500 | $0 | $238,040 | $238,040 |
| 2019 | $172,540 | $65,500 | $0 | $238,040 | $238,040 |
| 2018 | $153,500 | $60,000 | $0 | $213,500 | $213,500 |
| 2017 | $153,500 | $60,000 | $0 | $213,500 | $213,500 |
| 2016 | $153,500 | $60,000 | $0 | $213,500 | $213,500 |
| 2015 | $153,500 | $60,000 | $0 | $213,500 | $213,500 |
| 2014 | $153,500 | $60,000 | $0 | $213,500 | $213,500 |
| 2013 | $153,500 | $60,000 | $0 | $213,500 | $213,500 |
| 2012 | $155,600 | $60,000 | $0 | $0 | $0 |
| 2011 | $155,600 | $60,000 | $0 | $0 | $0 |
| 2010 | $155,600 | $60,000 | $0 | $0 | $0 |
| 2009 | $179,600 | $60,000 | $0 | $0 | $0 |
| 2008 | $179,600 | $60,000 | $0 | $0 | $0 |
| 2007 | $183,900 | $23,800 | $0 | $0 | $0 |
Deed and Sales History
| 1 | 03/31/2023 | SWD | STATUTORY WARRANTY DEED | STEINAUER GERALD I | NELSON BRADLEY J & KURT D GILLEN | | | $433,000.00 | 145587 | 2023-01631 |
| 2 | 12/05/2016 | SWD | STATUTORY WARRANTY DEED | CHRISTENSEN NEAL D & LU JEAN | STEINAUER GERALD I | | | $225,000.00 | 131540 | 2016-09924 |
| 3 | 04/20/2005 | WARRANTY D | WARRANTY DEED | ROFF HOMES INC | CHRISTENSEN, NEAL D & LU JEAN | | | $209,900.00 | 107280 | 2005-04470 |
| 4 | 09/09/2004 | WARRANTY D | WARRANTY DEED | GALL GARY F & TERRI | ROFF HOMES INC | | | $190,000.00 | 105672 | 2004-10399 |
|   | |
Payout Agreement
| No payout information available.. |