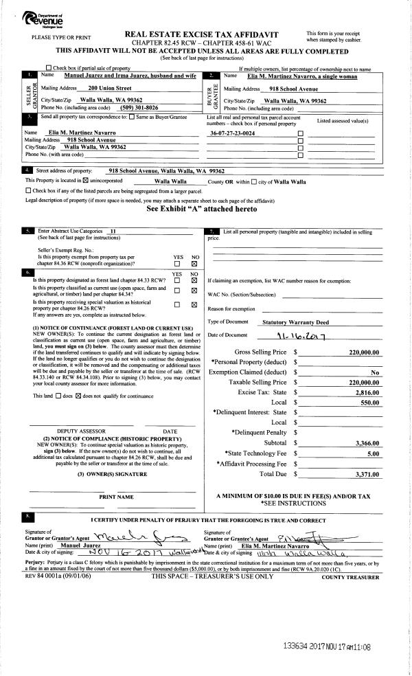
Property
Account |
| Property ID: | 15875 | Abbreviated Legal Description: | 27-7-36 TAX 33A |
| Parcel Number: | 360727230024 | Agent Code: | |
| Type: | Real | | |
| Tax Area: | 105 - 140-F-4 | Land Use Code | 11 |
| Open Space: | N | DFL | N |
| Historic Property: | N | Remodel Property: | N |
| Multi-Family Redevelopment: | N | | |
| Township: | 7 | Section: | 27 |
| Range: | 36 |
Location |
| Address: | 918 SCHOOL AVE WA 99362 | Mapsco: | |
| Neighborhood: | A Res | Map ID: | |
| Neighborhood CD: | 613011 |
Owner |
| Name: | NAVARRO ELIA M MARTINEZ | Owner ID: | 62138 |
| Mailing Address: | 918 SCHOOL AVE WALLA WALLA, WA 99362 | % Ownership: | 100.0000000000% |
| | | Exemptions: | |
Taxes and Assessment Details
Values
| (+) Improvement Homesite Value: | + | $0 | |
| (+) Improvement Non-Homesite Value: | + | $290,450 | |
| (+) Land Homesite Value: | + | $0 | |
| (+) Land Non-Homesite Value: | + | $90,060 | |
| (+) Curr Use (HS): | + | $0 | $0 |
| (+) Curr Use (NHS): | + | $0 | $0 |
| | | -------------------------- | |
| (=) Market Value: | = | $380,510 | |
| (–) Productivity Loss: | – | $0 | |
| | | -------------------------- | |
| (=) Subtotal: | = | $380,510 | |
| (+) Senior Appraised Value: | + | $0 | |
| (+) Non-Senior Appraised Value: | + | $380,510 | |
| | | -------------------------- | |
| (=) Total Appraised Value: | = | $380,510 | |
| (–) Senior Exemption Loss: | – | $0 | |
| (–) Exemption Loss: | – | $0 | |
| | | -------------------------- | |
| (=) Taxable Value: | = | $380,510 | |
Taxing Jurisdiction
| Owner: | NAVARRO ELIA M MARTINEZ | | |
| % Ownership: | 100.0000000000% | | |
| Total Value: | $380,510 | | |
| Tax Area: | 105 - 140-F-4 |
| CERFD | CURRENT EXPENSE REFUND 010 | 0.0000000000 | $380,510 | $380,510 | $0.00 | | |
| CURREXP | CURRENT EXPENSE 010 | 1.0175366760 | $380,510 | $380,510 | $387.18 | | |
| HUMNSERV | HUMAN SERVICES 119 | 0.0250000000 | $380,510 | $380,510 | $9.51 | | |
| SLDREL | SOLDIERS RELIEF 121 | 0.0155990005 | $380,510 | $380,510 | $5.94 | | |
| EMERGSER | EMS 147 | 0.3792580840 | $380,510 | $380,510 | $144.31 | | |
| EMSRFD | EMS REFUND 147 | 0.0000000000 | $380,510 | $380,510 | $0.00 | | |
| FD4EXP | FD #4 EXPENSE 686 | 0.8836993059 | $380,510 | $380,510 | $336.26 | | |
| RLBRFD | RURAL LIBRARY REFUND 623 | 0.0000000000 | $380,510 | $380,510 | $0.00 | | |
| RURALLIB | RURAL LIBRARY 623 | 0.3710609029 | $380,510 | $380,510 | $141.19 | | |
| PORTRFD | PORT REFUND 640 | 0.0000000000 | $380,510 | $380,510 | $0.00 | | |
| PORTWWGEN | PORT OF WW 640 | 0.2460186015 | $380,510 | $380,510 | $93.61 | | |
| SD140BOND | SD #140 BOND 764 | 0.8342371393 | $380,510 | $380,510 | $317.44 | | |
| SD140GEN | SD #140 GENERAL 760 | 2.0646500647 | $380,510 | $380,510 | $785.62 | | |
| ST2 | STATE SCHOOL PART 2 600 | 0.8131451643 | $380,510 | $380,510 | $309.41 | | |
| STATESCHL | STATE SCHOOL 600 | 1.5158548041 | $380,510 | $380,510 | $576.80 | | |
| STREFUND | STATE REFUND LEVY 603 | 0.0000000000 | $380,510 | $380,510 | $0.00 | | |
| COROAD | COUNTY ROAD 115 | 1.6549953990 | $380,510 | $380,510 | $629.74 | | |
| CRPRD | COUNTY ROAD REFUND 115 | 0.0000000000 | $380,510 | $380,510 | $0.00 | | |
| | Total Tax Rate: | 9.8210551422 | | | | | |
| | | | | Taxes w/Current Exemptions: | $3,737.01 | | |
| | | | | Taxes w/o Exemptions: | $3,737.01 | | |
Improvement / Building
| Improvement #1: | RESIDENTIAL | State Code: | 11 | 1499.0 sqft | Value: | $290,450 |
| Exterior Wall: | SIDING | Heating/Cooling: | BASEBOARD ELECTRIC | | Number of Bathrooms: | 2 | Number of Bedrooms: | 3 | | Plumbing: | 10 | Roof Covering: | COMP SHINGLE |
|
| | Type | Description | Class CD | Sub Class CD | Year Built | Area |
| | MA | Main Area | 1 | 30 | 1948 | 1499.0 |
| | SI1 | SITE IMPROVEMENT | 1 | 30 | 1948 | 1.5 |
| | RPO | OPEN PORCH W/ROOF | 1 | 30 | 1948 | 108.0 |
| | CPC | COVERED CARPORT/PATIO | 1 | 30 | 1948 | 308.0 |
| | CAB | REC CABIN | 1 | 30 | 1948 | 588.0 |
Sketch
Property Image
Land
| 1 | RES 1 | Converted: Residential | 0.2300 | 10018.00 | 0.00 | 0.00 | 1.00 | $90,060 | $0 |
Roll Value History
| 2026 | N/A | N/A | N/A | N/A | N/A |
| 2025 | $280,010 | $110,000 | $0 | $390,010 | $390,010 |
| 2024 | $290,450 | $90,060 | $0 | $380,510 | $380,510 |
| 2023 | $290,450 | $90,060 | $0 | $380,510 | $380,510 |
| 2022 | $276,620 | $72,530 | $0 | $349,150 | $349,150 |
| 2021 | $230,520 | $72,530 | $0 | $303,050 | $303,050 |
| 2020 | $148,720 | $72,530 | $0 | $221,250 | $221,250 |
| 2019 | $148,720 | $72,530 | $0 | $221,250 | $221,250 |
| 2018 | $143,720 | $47,100 | $0 | $190,820 | $190,820 |
| 2017 | $130,650 | $47,100 | $0 | $177,750 | $177,750 |
| 2016 | $113,610 | $47,100 | $0 | $160,710 | $160,710 |
| 2015 | $108,200 | $47,100 | $0 | $155,300 | $155,300 |
| 2014 | $108,200 | $47,100 | $0 | $155,300 | $155,300 |
| 2013 | $108,200 | $47,100 | $0 | $155,300 | $155,300 |
| 2012 | $99,500 | $47,100 | $0 | $0 | $0 |
| 2011 | $99,500 | $47,100 | $0 | $0 | $0 |
| 2010 | $87,400 | $47,100 | $0 | $0 | $0 |
| 2009 | $102,300 | $47,100 | $0 | $0 | $0 |
| 2008 | $102,300 | $47,100 | $0 | $0 | $0 |
| 2007 | $69,300 | $24,600 | $0 | $0 | $0 |
Deed and Sales History
| 1 | 11/17/2017 | SWD | STATUTORY WARRANTY DEED | JUAREZ MANUEL & IRMA | NAVARRO ELIA M MARTINEZ | | | $220,000.00 | 133634 | 2017-09270 |
| 2 | 12/08/2008 | WARRANTY D | WARRANTY DEED | MEZA, ALIM LAMEIRO | JUAREZ, MANUEL & IRMA | | | $181,000.00 | 116059 | 2008-12122 |
| 3 | 10/26/2006 | WARRANTY D | WARRANTY DEED | DUDENKOV, VYACHESLAV & LYUBOV | MEZA, ALIM LAMEIRO | | | $150,000.00 | 111535 | 2006-12902 |
| 4 | 09/13/2000 | WARRANTY D | WARRANTY DEED | | | | | $75,000.00 | 95803 | 3020-008682 |
Payout Agreement
| No payout information available.. |