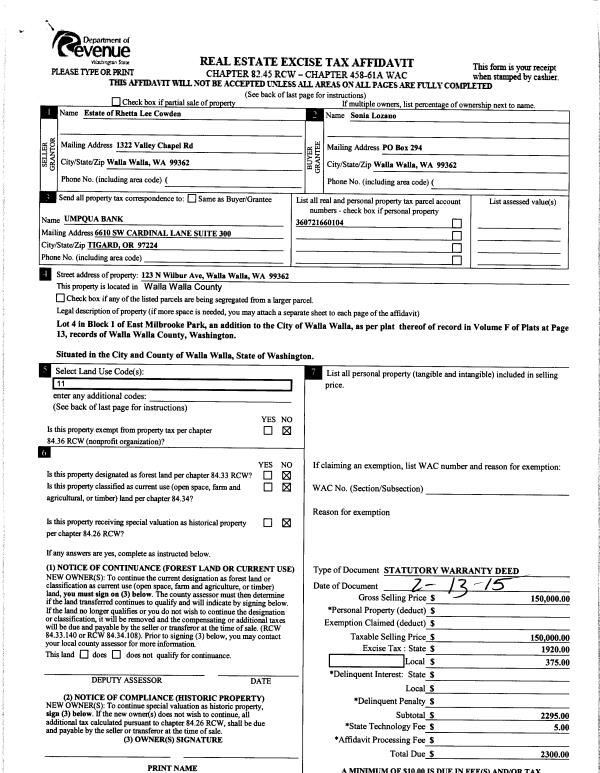
Property
Account |
| Property ID: | 15873 | Abbreviated Legal Description: | EAST MILBROOKE PARK LOT 4 BLK 1 |
| Parcel Number: | 360721660104 | Agent Code: | |
| Type: | Real | | |
| Tax Area: | 1 - OL-140-F | Land Use Code | 11 |
| Open Space: | N | DFL | N |
| Historic Property: | N | Remodel Property: | N |
| Multi-Family Redevelopment: | N | | |
| Township: | 7 | Section: | 21 |
| Range: | 36 |
Location |
| Address: | 123 N WILBUR AVE WA 99362 | Mapsco: | |
| Neighborhood: | A-Superior SFR | Map ID: | |
| Neighborhood CD: | 513211 |
Owner |
| Name: | LOZANO SONIA | Owner ID: | 56123 |
| Mailing Address: | PO BOX 294 WALLA WALLA, WA 99362 | % Ownership: | 100.0000000000% |
| | | Exemptions: | |
Taxes and Assessment Details
Values
| (+) Improvement Homesite Value: | + | $0 | |
| (+) Improvement Non-Homesite Value: | + | $278,350 | |
| (+) Land Homesite Value: | + | $0 | |
| (+) Land Non-Homesite Value: | + | $42,630 | |
| (+) Curr Use (HS): | + | $0 | $0 |
| (+) Curr Use (NHS): | + | $0 | $0 |
| | | -------------------------- | |
| (=) Market Value: | = | $320,980 | |
| (–) Productivity Loss: | – | $0 | |
| | | -------------------------- | |
| (=) Subtotal: | = | $320,980 | |
| (+) Senior Appraised Value: | + | $0 | |
| (+) Non-Senior Appraised Value: | + | $320,980 | |
| | | -------------------------- | |
| (=) Total Appraised Value: | = | $320,980 | |
| (–) Senior Exemption Loss: | – | $0 | |
| (–) Exemption Loss: | – | $0 | |
| | | -------------------------- | |
| (=) Taxable Value: | = | $320,980 | |
Taxing Jurisdiction
| Owner: | LOZANO SONIA | | |
| % Ownership: | 100.0000000000% | | |
| Total Value: | $320,980 | | |
| Tax Area: | 1 - OL-140-F |
| CERFD | CURRENT EXPENSE REFUND 010 | 0.0000000000 | $320,980 | $320,980 | $0.00 | | |
| CURREXP | CURRENT EXPENSE 010 | 1.0175366760 | $320,980 | $320,980 | $326.61 | | |
| HUMNSERV | HUMAN SERVICES 119 | 0.0250000000 | $320,980 | $320,980 | $8.02 | | |
| SLDREL | SOLDIERS RELIEF 121 | 0.0155990005 | $320,980 | $320,980 | $5.01 | | |
| EMERGSER | EMS 147 | 0.3792580840 | $320,980 | $320,980 | $121.73 | | |
| EMSRFD | EMS REFUND 147 | 0.0000000000 | $320,980 | $320,980 | $0.00 | | |
| PORTRFD | PORT REFUND 640 | 0.0000000000 | $320,980 | $320,980 | $0.00 | | |
| PORTWWGEN | PORT OF WW 640 | 0.2460186015 | $320,980 | $320,980 | $78.97 | | |
| SD140BOND | SD #140 BOND 764 | 0.8342371393 | $320,980 | $320,980 | $267.77 | | |
| SD140GEN | SD #140 GENERAL 760 | 2.0646500647 | $320,980 | $320,980 | $662.71 | | |
| ST2 | STATE SCHOOL PART 2 600 | 0.8131451643 | $320,980 | $320,980 | $261.00 | | |
| STATESCHL | STATE SCHOOL 600 | 1.5158548041 | $320,980 | $320,980 | $486.56 | | |
| STREFUND | STATE REFUND LEVY 603 | 0.0000000000 | $320,980 | $320,980 | $0.00 | | |
| CWWBOND | C OF WW BOND 643 | 0.2760494372 | $320,980 | $320,980 | $88.61 | | |
| CWWGEN | CITY OF WW 631 | 1.6100204973 | $320,980 | $320,980 | $516.78 | | |
| CWWRFD | CITY OF WALLA WALLA REFUND 631 | 0.0000000000 | $320,980 | $320,980 | $0.00 | | |
| | Total Tax Rate: | 8.7973694689 | | | | | |
| | | | | Taxes w/Current Exemptions: | $2,823.77 | | |
| | | | | Taxes w/o Exemptions: | $2,823.77 | | |
Improvement / Building
| Improvement #1: | RESIDENTIAL | State Code: | 11 | 960.0 sqft | Value: | $278,350 |
| Exterior Wall: | VINYL | Heating/Cooling: | FORCED AIR | | Number of Bathrooms: | 2 | Number of Bedrooms: | 4 | | Plumbing: | 9 | Roof Covering: | COMP SHINGLE |
|
| | Type | Description | Class CD | Sub Class CD | Year Built | Area |
| | MA | Main Area | 1 | 30 | 1955 | 960.0 |
| | SI1 | SITE IMPROVEMENT | 1 | 30 | 1955 | 1.5 |
| | BASE | BASEMENT | 1 | 30 | 1955 | 960.0 |
| | BPF | BASEMENT -PARTITIONED FINISH | 1 | 30 | 1955 | 960.0 |
| | DTG | Detached Garage | 1 | 30 | 1955 | 336.0 |
| | OPS | OPEN PORCH W/STEPS | 1 | 30 | 1955 | 36.0 |
| | S1F | Single One Story Fireplace | 1 | 30 | 1955 | 1.0 |
| | CPC | COVERED CARPORT/PATIO | 1 | 30 | 1955 | 360.0 |
Sketch
Property Image
Land
| 1 | RES 1 | Converted: Residential | 0.1566 | 6820.00 | 0.00 | 0.00 | 1.00 | $42,630 | $0 |
Roll Value History
| 2026 | N/A | N/A | N/A | N/A | N/A |
| 2025 | $240,550 | $68,200 | $0 | $308,750 | $308,750 |
| 2024 | $240,550 | $68,200 | $0 | $308,750 | $308,750 |
| 2023 | $278,350 | $42,630 | $0 | $320,980 | $320,980 |
| 2022 | $253,040 | $42,630 | $0 | $295,670 | $295,670 |
| 2021 | $210,870 | $42,630 | $0 | $253,500 | $253,500 |
| 2020 | $156,200 | $42,630 | $0 | $198,830 | $198,830 |
| 2019 | $156,200 | $42,630 | $0 | $198,830 | $198,830 |
| 2018 | $142,000 | $42,630 | $0 | $184,630 | $184,630 |
| 2017 | $140,790 | $27,300 | $0 | $168,090 | $168,090 |
| 2016 | $117,330 | $27,300 | $0 | $144,630 | $144,630 |
| 2015 | $117,330 | $27,300 | $0 | $144,630 | $144,630 |
| 2014 | $123,500 | $27,300 | $0 | $150,800 | $150,800 |
| 2013 | $123,500 | $27,300 | $0 | $150,800 | $150,800 |
| 2012 | $131,000 | $27,300 | $0 | $0 | $0 |
| 2011 | $123,500 | $27,300 | $0 | $0 | $0 |
| 2010 | $116,300 | $27,300 | $0 | $0 | $0 |
| 2009 | $132,300 | $27,300 | $0 | $0 | $0 |
| 2008 | $105,700 | $27,300 | $0 | $0 | $0 |
| 2007 | $105,700 | $27,300 | $0 | $0 | $0 |
Deed and Sales History
| 1 | 02/17/2015 | SWD | STATUTORY WARRANTY DEED | COWDEN RHETTA L | LOZANO SONIA | | | $150,000.00 | 127438 | 2015-01426 |
| 2 | 04/09/1970 | WARRANTY D | WARRANTY DEED | | | | | $19,000.00 | 0 | 3350-507148 |
Payout Agreement
| No payout information available.. |