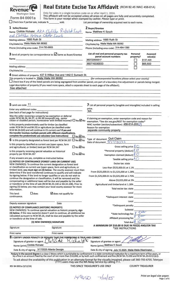
Property
Account |
| Property ID: | 15871 | Abbreviated Legal Description: | 16-7-36 PARCEL 33 |
| Parcel Number: | 360716330033 | Agent Code: | |
| Type: | Real | | |
| Tax Area: | 5 - OL-140 | Land Use Code | 91 |
| Open Space: | N | DFL | N |
| Historic Property: | N | Remodel Property: | N |
| Multi-Family Redevelopment: | N | | |
| Township: | 7 | Section: | 16 |
| Range: | 36 |
Location |
| Address: | 1442 E SUMACH ST WA 99362 | Mapsco: | |
| Neighborhood: | A Land Only | Map ID: | |
| Neighborhood CD: | 513091 |
Owner |
| Name: | SZUCH MATTHEW K & CLOTILDE RICHALET | Owner ID: | 58982 |
| Mailing Address: | 1685 RUTH ST WALLA WALLA, WA 99362 | % Ownership: | 100.0000000000% |
| | | Exemptions: | |
Taxes and Assessment Details
Values
| (+) Improvement Homesite Value: | + | $0 | |
| (+) Improvement Non-Homesite Value: | + | $0 | |
| (+) Land Homesite Value: | + | $0 | |
| (+) Land Non-Homesite Value: | + | $65,600 | |
| (+) Curr Use (HS): | + | $0 | $0 |
| (+) Curr Use (NHS): | + | $0 | $0 |
| | | -------------------------- | |
| (=) Market Value: | = | $65,600 | |
| (–) Productivity Loss: | – | $0 | |
| | | -------------------------- | |
| (=) Subtotal: | = | $65,600 | |
| (+) Senior Appraised Value: | + | $0 | |
| (+) Non-Senior Appraised Value: | + | $65,600 | |
| | | -------------------------- | |
| (=) Total Appraised Value: | = | $65,600 | |
| (–) Senior Exemption Loss: | – | $0 | |
| (–) Exemption Loss: | – | $0 | |
| | | -------------------------- | |
| (=) Taxable Value: | = | $65,600 | |
Taxing Jurisdiction
| Owner: | SZUCH MATTHEW K & CLOTILDE RICHALET | | |
| % Ownership: | 100.0000000000% | | |
| Total Value: | $65,600 | | |
| Tax Area: | 5 - OL-140 |
| CERFD | CURRENT EXPENSE REFUND 010 | 0.0000000000 | $65,600 | $65,600 | $0.00 | | |
| CURREXP | CURRENT EXPENSE 010 | 1.0175366760 | $65,600 | $65,600 | $66.75 | | |
| HUMNSERV | HUMAN SERVICES 119 | 0.0250000000 | $65,600 | $65,600 | $1.64 | | |
| SLDREL | SOLDIERS RELIEF 121 | 0.0155990005 | $65,600 | $65,600 | $1.02 | | |
| EMERGSER | EMS 147 | 0.3792580840 | $65,600 | $65,600 | $24.88 | | |
| EMSRFD | EMS REFUND 147 | 0.0000000000 | $65,600 | $65,600 | $0.00 | | |
| PORTRFD | PORT REFUND 640 | 0.0000000000 | $65,600 | $65,600 | $0.00 | | |
| PORTWWGEN | PORT OF WW 640 | 0.2460186015 | $65,600 | $65,600 | $16.14 | | |
| SD140BOND | SD #140 BOND 764 | 0.8342371393 | $65,600 | $65,600 | $54.73 | | |
| SD140GEN | SD #140 GENERAL 760 | 2.0646500647 | $65,600 | $65,600 | $135.44 | | |
| ST2 | STATE SCHOOL PART 2 600 | 0.8131451643 | $65,600 | $65,600 | $53.34 | | |
| STATESCHL | STATE SCHOOL 600 | 1.5158548041 | $65,600 | $65,600 | $99.44 | | |
| STREFUND | STATE REFUND LEVY 603 | 0.0000000000 | $65,600 | $65,600 | $0.00 | | |
| CWWBOND | C OF WW BOND 643 | 0.2760494372 | $65,600 | $65,600 | $18.11 | | |
| CWWGEN | CITY OF WW 631 | 1.6100204973 | $65,600 | $65,600 | $105.62 | | |
| CWWRFD | CITY OF WALLA WALLA REFUND 631 | 0.0000000000 | $65,600 | $65,600 | $0.00 | | |
| | Total Tax Rate: | 8.7973694689 | | | | | |
| | | | | Taxes w/Current Exemptions: | $577.11 | | |
| | | | | Taxes w/o Exemptions: | $577.11 | | |
Improvement / Building
Sketch
| No sketches available for this property. |
Property Image
Land
| 1 | RES 1 | Converted: Residential | 0.3700 | 16117.00 | 0.00 | 0.00 | 1.00 | $65,600 | $0 |
Roll Value History
| 2026 | N/A | N/A | N/A | N/A | N/A |
| 2025 | $0 | $104,600 | $0 | $104,600 | $104,600 |
| 2024 | $0 | $104,600 | $0 | $104,600 | $104,600 |
| 2023 | $0 | $65,600 | $0 | $65,600 | $65,600 |
| 2022 | $0 | $65,600 | $0 | $65,600 | $65,600 |
| 2021 | $0 | $65,600 | $0 | $65,600 | $65,600 |
| 2020 | $0 | $65,600 | $0 | $65,600 | $65,600 |
| 2019 | $51,200 | $65,600 | $0 | $116,800 | $116,800 |
| 2018 | $51,200 | $65,600 | $0 | $116,800 | $116,800 |
| 2017 | $46,300 | $44,600 | $0 | $90,900 | $90,900 |
| 2016 | $44,090 | $44,600 | $0 | $88,690 | $88,690 |
| 2015 | $41,990 | $44,600 | $0 | $86,590 | $86,590 |
| 2014 | $32,300 | $44,600 | $0 | $76,900 | $76,900 |
| 2013 | $32,300 | $44,600 | $0 | $76,900 | $76,900 |
| 2012 | $32,000 | $44,600 | $0 | $0 | $0 |
| 2011 | $32,000 | $44,600 | $0 | $0 | $0 |
| 2010 | $40,500 | $44,600 | $0 | $0 | $0 |
| 2009 | $50,000 | $44,600 | $0 | $0 | $0 |
| 2008 | $31,100 | $44,600 | $0 | $0 | $0 |
| 2007 | $31,100 | $44,600 | $0 | $0 | $0 |
Deed and Sales History
| 1 | 07/10/2025 | QCD | QUIT CLAIM DEED | SZUCH MATTHEW K & CLOTILDE RICHALET | SZUCH MATTHEW K | | | | 149650 | 2025-03927 |
| 2 | 06/17/2016 | QCD | QUIT CLAIM DEED | SZUCH MATTHEW K | SZUCH MATTHEW K & CLOTILDE RICHALET | | | $0.00 | 130456 | 2016-04718 |
| 3 | 02/19/2014 | SWD | STATUTORY WARRANTY DEED | STEIN AMANDA D | SZUCH MATTHEW K | | | $90,000.00 | 125450 | 2014-01232 |
| 4 | 12/08/2009 | WARRANTY D | WARRANTY DEED | WILLIAMS, MAE JEAN | STEIN, AMANDA D | | | | 117774 | 2009-11843 |
| 5 | 12/07/2009 | WARRANTY D | WARRANTY DEED | WILLIAMS, GERALD S & MAE | STEIN, AMANDA D | | | $80,000.00 | 117774 | 2009-11809 |
| 6 | 09/14/2006 | WARRANTY D | WARRANTY DEED | JOHNSON, FLORENCE L | WILLIAMS, GERALD S & MAE | | | | 111202 | 2006-11093 |
| 7 | 11/02/1983 | WARRANTY D | WARRANTY DEED | | | | | $28,800.00 | 0 | 1408-307923 |
Payout Agreement
| No payout information available.. |