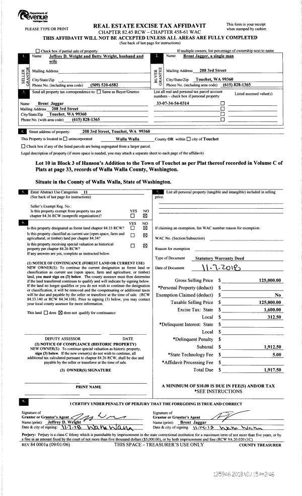
Property
Account |
| Property ID: | 15801 | Abbreviated Legal Description: | HANSON'S LT 10 BLK 3 |
| Parcel Number: | 330734540314 | Agent Code: | |
| Type: | Real | | |
| Tax Area: | 323 - 300-6-TM | Land Use Code | 11 |
| Open Space: | N | DFL | N |
| Historic Property: | N | Remodel Property: | N |
| Multi-Family Redevelopment: | N | | |
| Township: | 7 | Section: | 34 |
| Range: | 33 |
Location |
| Address: | 208 THIRD ST WA 99360 | Mapsco: | |
| Neighborhood: | A Touchet/Lowden SFR | Map ID: | |
| Neighborhood CD: | 213611 |
Owner |
| Name: | JAGGER BRENT | Owner ID: | 64276 |
| Mailing Address: | 208 THIRD ST TOUCHET, WA 99360 | % Ownership: | 100.0000000000% |
| | | Exemptions: | |
Taxes and Assessment Details
Values
| (+) Improvement Homesite Value: | + | $0 | |
| (+) Improvement Non-Homesite Value: | + | $142,430 | |
| (+) Land Homesite Value: | + | $0 | |
| (+) Land Non-Homesite Value: | + | $30,000 | |
| (+) Curr Use (HS): | + | $0 | $0 |
| (+) Curr Use (NHS): | + | $0 | $0 |
| | | -------------------------- | |
| (=) Market Value: | = | $172,430 | |
| (–) Productivity Loss: | – | $0 | |
| | | -------------------------- | |
| (=) Subtotal: | = | $172,430 | |
| (+) Senior Appraised Value: | + | $0 | |
| (+) Non-Senior Appraised Value: | + | $172,430 | |
| | | -------------------------- | |
| (=) Total Appraised Value: | = | $172,430 | |
| (–) Senior Exemption Loss: | – | $0 | |
| (–) Exemption Loss: | – | $0 | |
| | | -------------------------- | |
| (=) Taxable Value: | = | $172,430 | |
Taxing Jurisdiction
| Owner: | JAGGER BRENT | | |
| % Ownership: | 100.0000000000% | | |
| Total Value: | $172,430 | | |
| Tax Area: | 323 - 300-6-TM |
| CERFD | CURRENT EXPENSE REFUND 010 | 0.0000000000 | $172,430 | $172,430 | $0.00 | | |
| CURREXP | CURRENT EXPENSE 010 | 1.0175366760 | $172,430 | $172,430 | $175.45 | | |
| HUMNSERV | HUMAN SERVICES 119 | 0.0250000000 | $172,430 | $172,430 | $4.31 | | |
| SLDREL | SOLDIERS RELIEF 121 | 0.0155990005 | $172,430 | $172,430 | $2.69 | | |
| EMERGSER | EMS 147 | 0.3792580840 | $172,430 | $172,430 | $65.40 | | |
| EMSRFD | EMS REFUND 147 | 0.0000000000 | $172,430 | $172,430 | $0.00 | | |
| FD6EXP | FD #6 EXPENSE 693 | 0.6692985746 | $172,430 | $172,430 | $115.41 | | |
| RLBRFD | RURAL LIBRARY REFUND 623 | 0.0000000000 | $172,430 | $172,430 | $0.00 | | |
| RURALLIB | RURAL LIBRARY 623 | 0.3710609029 | $172,430 | $172,430 | $63.98 | | |
| PORTRFD | PORT REFUND 640 | 0.0000000000 | $172,430 | $172,430 | $0.00 | | |
| PORTWWGEN | PORT OF WW 640 | 0.2460186015 | $172,430 | $172,430 | $42.42 | | |
| SD300BOND | SD #300 BOND 783 | 1.8964951620 | $172,430 | $172,430 | $327.01 | | |
| SD300GEN | SD #300 GENERAL 780 | 2.1198322866 | $172,430 | $172,430 | $365.52 | | |
| ST2 | STATE SCHOOL PART 2 600 | 0.8131451643 | $172,430 | $172,430 | $140.21 | | |
| STATESCHL | STATE SCHOOL 600 | 1.5158548041 | $172,430 | $172,430 | $261.38 | | |
| STREFUND | STATE REFUND LEVY 603 | 0.0000000000 | $172,430 | $172,430 | $0.00 | | |
| COROAD | COUNTY ROAD 115 | 1.6549953990 | $172,430 | $172,430 | $285.37 | | |
| CRPRD | COUNTY ROAD REFUND 115 | 0.0000000000 | $172,430 | $172,430 | $0.00 | | |
| | Total Tax Rate: | 10.7240946555 | | | | | |
| | | | | Taxes w/Current Exemptions: | $1,849.15 | | |
| | | | | Taxes w/o Exemptions: | $1,849.15 | | |
Improvement / Building
| Improvement #1: | RESIDENTIAL | State Code: | 11 | 908.0 sqft | Value: | $142,430 |
| Exterior Wall: | HARDBOARD | Heating/Cooling: | REV-HEAT-PUMP-W/DUCT | | Number of Bathrooms: | 1 | Number of Bedrooms: | 2 | | Plumbing: | 6 | Roof Covering: | COMP SHINGLE |
|
| | Type | Description | Class CD | Sub Class CD | Year Built | Area |
| | MA | Main Area | 1 | 20 | 1910 | 908.0 |
| | SI1 | SITE IMPROVEMENT | 1 | 20 | 1910 | 1.0 |
| | BASE | BASEMENT | 1 | 20 | 1910 | 408.0 |
| | SWP | Solid Wall Porch | 1 | 20 | 1910 | 224.0 |
| | WOD | Wood Deck | 1 | 20 | 1910 | 240.0 |
Sketch
Property Image
Land
| 1 | RES 1 | Converted: Residential | 0.1148 | 5000.00 | 0.00 | 0.00 | 1.00 | $30,000 | $0 |
Roll Value History
| 2026 | N/A | N/A | N/A | N/A | N/A |
| 2025 | $172,340 | $30,000 | $0 | $202,340 | $202,340 |
| 2024 | $156,670 | $30,000 | $0 | $186,670 | $186,670 |
| 2023 | $142,430 | $30,000 | $0 | $172,430 | $172,430 |
| 2022 | $142,430 | $30,000 | $0 | $172,430 | $172,430 |
| 2021 | $109,560 | $30,000 | $0 | $139,560 | $139,560 |
| 2020 | $109,560 | $15,000 | $0 | $124,560 | $124,560 |
| 2019 | $109,560 | $15,000 | $0 | $124,560 | $124,560 |
| 2018 | $99,600 | $15,000 | $0 | $114,600 | $114,600 |
| 2017 | $66,400 | $15,000 | $0 | $81,400 | $81,400 |
| 2016 | $66,400 | $15,000 | $0 | $81,400 | $81,400 |
| 2015 | $66,400 | $15,000 | $0 | $81,400 | $81,400 |
| 2014 | $66,400 | $15,000 | $0 | $81,400 | $81,400 |
| 2013 | $66,400 | $15,000 | $0 | $81,400 | $81,400 |
| 2012 | $66,400 | $15,000 | $0 | $0 | $0 |
| 2011 | $66,400 | $15,000 | $0 | $0 | $0 |
| 2010 | $66,400 | $15,000 | $0 | $0 | $0 |
| 2009 | $93,100 | $7,500 | $0 | $0 | $0 |
| 2008 | $59,600 | $7,500 | $0 | $0 | $0 |
| 2007 | $59,600 | $7,500 | $0 | $0 | $0 |
Deed and Sales History
| 1 | 11/15/2018 | SWD | STATUTORY WARRANTY DEED | WRIGHT JEFFREY D | JAGGER BRENT | | | $125,000.00 | 135946 | 2018-09477 |
| 2 | 12/29/2009 | QCD | QUIT CLAIM DEED | WRIGHT, JEFFREY D | WRIGHT, JEFFREY D | | | | 117873 | 2009-12426 |
| 3 | 07/15/2005 | WARRANTY D | WARRANTY DEED | STODDARD, DANIEL J & LISA M | WRIGHT, JEFFREY D | | | $87,500.00 | 107977 | 2005-08612 |
| 4 | 03/05/2003 | WARRANTY D | WARRANTY DEED | CARLISLE, DAVID | STODDARD, DANIEL J & LISA M | | | $67,500.00 | 101523 | 2003-02924 |
| 5 | 11/25/2002 | QCD | QUIT CLAIM DEED | CARLISLE, DAVID | CARLISLE, DAVID | | | | 100887 | 2002-13388 |
| 6 | 09/29/2000 | WARRANTY D | WARRANTY DEED | | | | | $52,000.00 | 95883 | 3030-009266 |
Payout Agreement
| No payout information available.. |