Property
Account |
| Property ID: | 15783 | Abbreviated Legal Description: | EAST WALLA WALLA LOT 31 BLK 3 |
| Parcel Number: | 360727530331 | Agent Code: | |
| Type: | Real | | |
| Tax Area: | 1 - OL-140-F | Land Use Code | 11 |
| Open Space: | N | DFL | N |
| Historic Property: | N | Remodel Property: | N |
| Multi-Family Redevelopment: | N | | |
| Township: | 7 | Section: | 27 |
| Range: | 36 |
Location |
| Address: | 1857 CARL ST WA 99362 | Mapsco: | |
| Neighborhood: | A Inferior Res | Map ID: | |
| Neighborhood CD: | 413111 |
Owner |
| Name: | BAKER ERIC D | Owner ID: | 64628 |
| Mailing Address: | 1857 CARL ST WALLA WALLA, WA 99362 | % Ownership: | 100.0000000000% |
| | | Exemptions: | |
Taxes and Assessment Details
Property Tax Information as of
02/21/2026
Click on "Statement Details" to expand or collapse a tax statement.
* Please enter a valid date ** Please enter a valid date *
Statement Details |
| | TOTAL: | $0.00 | $0.00 | $0.00 | $0.00 | $0.00 | $0.00 |
|
| | $0.00 | $0.00 | $0.00 | $0.00 | $0.00 | $0.00 |
Values
| (+) Improvement Homesite Value: | + | $0 | |
| (+) Improvement Non-Homesite Value: | + | $302,250 | |
| (+) Land Homesite Value: | + | $0 | |
| (+) Land Non-Homesite Value: | + | $64,660 | |
| (+) Curr Use (HS): | + | $0 | $0 |
| (+) Curr Use (NHS): | + | $0 | $0 |
| | | -------------------------- | |
| (=) Market Value: | = | $366,910 | |
| (–) Productivity Loss: | – | $0 | |
| | | -------------------------- | |
| (=) Subtotal: | = | $366,910 | |
| (+) Senior Appraised Value: | + | $0 | |
| (+) Non-Senior Appraised Value: | + | $366,910 | |
| | | -------------------------- | |
| (=) Total Appraised Value: | = | $366,910 | |
| (–) Senior Exemption Loss: | – | $0 | |
| (–) Exemption Loss: | – | $0 | |
| | | -------------------------- | |
| (=) Taxable Value: | = | $366,910 | |
Taxing Jurisdiction
| Owner: | BAKER ERIC D | | |
| % Ownership: | 100.0000000000% | | |
| Total Value: | $366,910 | | |
| Tax Area: | 1 - OL-140-F |
| CERFD | CURRENT EXPENSE REFUND 010 | 0.0000000000 | $366,910 | $366,910 | $0.00 | | |
| CURREXP | CURRENT EXPENSE 010 | 1.0175366760 | $366,910 | $366,910 | $373.34 | | |
| HUMNSERV | HUMAN SERVICES 119 | 0.0250000000 | $366,910 | $366,910 | $9.17 | | |
| SLDREL | SOLDIERS RELIEF 121 | 0.0155990005 | $366,910 | $366,910 | $5.72 | | |
| EMERGSER | EMS 147 | 0.3792580840 | $366,910 | $366,910 | $139.15 | | |
| EMSRFD | EMS REFUND 147 | 0.0000000000 | $366,910 | $366,910 | $0.00 | | |
| PORTRFD | PORT REFUND 640 | 0.0000000000 | $366,910 | $366,910 | $0.00 | | |
| PORTWWGEN | PORT OF WW 640 | 0.2460186015 | $366,910 | $366,910 | $90.27 | | |
| SD140BOND | SD #140 BOND 764 | 0.8342371393 | $366,910 | $366,910 | $306.09 | | |
| SD140GEN | SD #140 GENERAL 760 | 2.0646500647 | $366,910 | $366,910 | $757.54 | | |
| ST2 | STATE SCHOOL PART 2 600 | 0.8131451643 | $366,910 | $366,910 | $298.35 | | |
| STATESCHL | STATE SCHOOL 600 | 1.5158548041 | $366,910 | $366,910 | $556.18 | | |
| STREFUND | STATE REFUND LEVY 603 | 0.0000000000 | $366,910 | $366,910 | $0.00 | | |
| CWWBOND | C OF WW BOND 643 | 0.2760494372 | $366,910 | $366,910 | $101.29 | | |
| CWWGEN | CITY OF WW 631 | 1.6100204973 | $366,910 | $366,910 | $590.73 | | |
| CWWRFD | CITY OF WALLA WALLA REFUND 631 | 0.0000000000 | $366,910 | $366,910 | $0.00 | | |
| | Total Tax Rate: | 8.7973694689 | | | | | |
| | | | | Taxes w/Current Exemptions: | $3,227.83 | | |
| | | | | Taxes w/o Exemptions: | $3,227.83 | | |
Improvement / Building
| Improvement #1: | RESIDENTIAL | State Code: | 11 | 1339.0 sqft | Value: | $302,250 |
| Exterior Wall: | SIDING | Heating/Cooling: | HEAT PUMP | | Number of Bathrooms: | 2 | Number of Bedrooms: | 3 | | Plumbing: | 9 | Roof Covering: | COMP SHINGLE |
|
| | Type | Description | Class CD | Sub Class CD | Year Built | Area |
| | MA | Main Area | 1 | 30 | 1951 | 1339.0 |
| | CPC | COVERED CARPORT/PATIO | 1 | 30 | 0 | 150.0 |
| | SI1 | SITE IMPROVEMENT | 1 | 30 | 0 | 3.0 |
| | BASE | BASEMENT | 1 | 30 | 1951 | 999.0 |
| | BPF | BASEMENT -PARTITIONED FINISH | 1 | 30 | 1951 | 999.0 |
| | ATG | Attached Garage | 1 | 30 | 1951 | 336.0 |
| | SWP | Solid Wall Porch | 1 | 30 | 1951 | 72.0 |
| | RPO | OPEN PORCH W/ROOF | 1 | 30 | 1951 | 121.0 |
Sketch
Property Image
Land
| 1 | RES 1 | Converted: Residential | 0.1855 | 8082.00 | 0.00 | 0.00 | 1.00 | $64,660 | $0 |
Roll Value History
| 2026 | N/A | N/A | N/A | N/A | N/A |
| 2025 | $317,360 | $64,660 | $0 | $382,020 | $382,020 |
| 2024 | $317,360 | $64,660 | $0 | $382,020 | $382,020 |
| 2023 | $302,250 | $64,660 | $0 | $366,910 | $366,910 |
| 2022 | $307,240 | $42,430 | $0 | $349,670 | $349,670 |
| 2021 | $204,830 | $42,430 | $0 | $247,260 | $247,260 |
| 2020 | $157,560 | $42,430 | $0 | $199,990 | $199,990 |
| 2019 | $157,560 | $42,430 | $0 | $199,990 | $199,990 |
| 2018 | $145,890 | $42,430 | $0 | $188,320 | $188,320 |
| 2017 | $126,860 | $42,430 | $0 | $169,290 | $169,290 |
| 2016 | $123,790 | $45,500 | $0 | $169,290 | $169,290 |
| 2015 | $137,540 | $45,500 | $0 | $183,040 | $183,040 |
| 2014 | $119,600 | $45,500 | $0 | $165,100 | $165,100 |
| 2013 | $119,600 | $45,500 | $0 | $165,100 | $165,100 |
| 2012 | $111,700 | $45,500 | $0 | $0 | $0 |
| 2011 | $116,100 | $45,500 | $0 | $0 | $0 |
| 2010 | $116,100 | $45,500 | $0 | $0 | $0 |
| 2009 | $134,000 | $45,500 | $0 | $0 | $0 |
| 2008 | $134,000 | $45,500 | $0 | $0 | $0 |
| 2007 | $88,400 | $23,000 | $0 | $0 | $0 |
Deed and Sales History
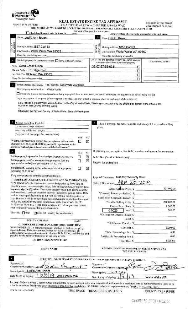
| 1 | 02/04/2019 | SWD | STATUTORY WARRANTY DEED | BRYANT LESLIE ANN | BAKER ERIC D | | | $202,000.00 | 136351 | 2019-00762 |
| 2 | 09/02/2015 | SWD | STATUTORY WARRANTY DEED | BAKER KATHRYN J | BRYANT LESLIE ANN | | | $169,000.00 | 128757 | 2015-07765 |
| 3 | 07/17/2007 | WARRANTY D | WARRANTY DEED | NELSON, PRESTON L & DAWN | BAKER, KATHRYN J | | | $181,500.00 | 113281 | 2007-08255 |
| 4 | 02/16/2006 | WARRANTY D | WARRANTY DEED | ROE, EVA M | NELSON, PRESTON L & DAWN | | | $111,400.00 | 109675 | 2006-01831 |
| 5 | 10/30/1995 | WARRANTY D | WARRANTY DEED | | | | | $98,900.00 | 84993 | 2359-510481 |
Payout Agreement
| No payout information available.. |