Property
Account |
| Property ID: | 15771 | Abbreviated Legal Description: | KENSINGTON ADDITION LOT 10 |
| Parcel Number: | 360728870010 | Agent Code: | |
| Type: | Real | | |
| Tax Area: | 105 - 140-F-4 | Land Use Code | 11 |
| Open Space: | N | DFL | N |
| Historic Property: | N | Remodel Property: | N |
| Multi-Family Redevelopment: | N | | |
| Township: | 7 | Section: | 28 |
| Range: | 36 |
Location |
| Address: | 87 KENSINGTON DR WA 99362 | Mapsco: | |
| Neighborhood: | VG Res | Map ID: | |
| Neighborhood CD: | 615011 |
Owner |
| Name: | FAUSTI TERESA MARIE | Owner ID: | 54478 |
| Mailing Address: | 87 KENSINGTON DR WALLA WALLA, WA 99362 | % Ownership: | 100.0000000000% |
| | | Exemptions: | |
Taxes and Assessment Details
Property Tax Information as of
04/19/2026
Click on "Statement Details" to expand or collapse a tax statement.
* Please enter a valid date ** Please enter a valid date *
Statement Details |
| | TOTAL: | $0.00 | $0.00 | $0.00 | $0.00 | $0.00 | $0.00 |
|
| | $0.00 | $0.00 | $0.00 | $0.00 | $0.00 | $0.00 |
Values
| (+) Improvement Homesite Value: | + | $0 | |
| (+) Improvement Non-Homesite Value: | + | $661,610 | |
| (+) Land Homesite Value: | + | $0 | |
| (+) Land Non-Homesite Value: | + | $120,000 | |
| (+) Curr Use (HS): | + | $0 | $0 |
| (+) Curr Use (NHS): | + | $0 | $0 |
| | | -------------------------- | |
| (=) Market Value: | = | $781,610 | |
| (–) Productivity Loss: | – | $0 | |
| | | -------------------------- | |
| (=) Subtotal: | = | $781,610 | |
| (+) Senior Appraised Value: | + | $0 | |
| (+) Non-Senior Appraised Value: | + | $781,610 | |
| | | -------------------------- | |
| (=) Total Appraised Value: | = | $781,610 | |
| (–) Senior Exemption Loss: | – | $0 | |
| (–) Exemption Loss: | – | $0 | |
| | | -------------------------- | |
| (=) Taxable Value: | = | $781,610 | |
Taxing Jurisdiction
| Owner: | FAUSTI TERESA MARIE | | |
| % Ownership: | 100.0000000000% | | |
| Total Value: | $781,610 | | |
| Tax Area: | 105 - 140-F-4 |
| CERFD | CURRENT EXPENSE REFUND 010 | 0.0000000000 | $781,610 | $781,610 | $0.00 | | |
| CURREXP | CURRENT EXPENSE 010 | 1.0175366760 | $781,610 | $781,610 | $795.32 | | |
| HUMNSERV | HUMAN SERVICES 119 | 0.0250000000 | $781,610 | $781,610 | $19.54 | | |
| SLDREL | SOLDIERS RELIEF 121 | 0.0155990005 | $781,610 | $781,610 | $12.19 | | |
| EMERGSER | EMS 147 | 0.3792580840 | $781,610 | $781,610 | $296.43 | | |
| EMSRFD | EMS REFUND 147 | 0.0000000000 | $781,610 | $781,610 | $0.00 | | |
| FD4EXP | FD #4 EXPENSE 686 | 0.8836993059 | $781,610 | $781,610 | $690.71 | | |
| RLBRFD | RURAL LIBRARY REFUND 623 | 0.0000000000 | $781,610 | $781,610 | $0.00 | | |
| RURALLIB | RURAL LIBRARY 623 | 0.3710609029 | $781,610 | $781,610 | $290.02 | | |
| PORTRFD | PORT REFUND 640 | 0.0000000000 | $781,610 | $781,610 | $0.00 | | |
| PORTWWGEN | PORT OF WW 640 | 0.2460186015 | $781,610 | $781,610 | $192.29 | | |
| SD140BOND | SD #140 BOND 764 | 0.8342371393 | $781,610 | $781,610 | $652.05 | | |
| SD140GEN | SD #140 GENERAL 760 | 2.0646500647 | $781,610 | $781,610 | $1,613.75 | | |
| ST2 | STATE SCHOOL PART 2 600 | 0.8131451643 | $781,610 | $781,610 | $635.56 | | |
| STATESCHL | STATE SCHOOL 600 | 1.5158548041 | $781,610 | $781,610 | $1,184.81 | | |
| STREFUND | STATE REFUND LEVY 603 | 0.0000000000 | $781,610 | $781,610 | $0.00 | | |
| COROAD | COUNTY ROAD 115 | 1.6549953990 | $781,610 | $781,610 | $1,293.56 | | |
| CRPRD | COUNTY ROAD REFUND 115 | 0.0000000000 | $781,610 | $781,610 | $0.00 | | |
| | Total Tax Rate: | 9.8210551422 | | | | | |
| | | | | Taxes w/Current Exemptions: | $7,676.23 | | |
| | | | | Taxes w/o Exemptions: | $7,676.23 | | |
Improvement / Building
| Improvement #1: | RESIDENTIAL | State Code: | 11 | 3934.0 sqft | Value: | $661,610 |
| Exterior Wall: | SIDING | Heating/Cooling: | WARM & COOLED AIR | | Number of Bathrooms: | 3.5 | Number of Bedrooms: | 4 | | Plumbing: | 18 | Roof Covering: | COMP SHINGLE |
|
| | Type | Description | Class CD | Sub Class CD | Year Built | Area |
| | MA | Main Area | 4 | 50 | 2006 | 3934.0 |
| | UPFL | Upper Floor (included in main area) | 4 | 50 | 2006 | 2032.0 |
| | SI1 | SITE IMPROVEMENT | 4 | 50 | 2006 | 5.5 |
| | GFP | GAS FIREPLACE | 4 | 50 | 2006 | 1.0 |
| | KWP | Knee Walla Porch w/Glass | 4 | 50 | 2006 | 78.0 |
| | OSP | Open | 4 | 50 | 2006 | 96.0 |
| | OPS | OPEN PORCH W/STEPS | 4 | 50 | 2006 | 184.0 |
| | BIG | Built In Garage | 4 | 50 | 2006 | 552.0 |
Sketch
Property Image
Land
| 1 | RES 1 | Converted: Residential | 0.1728 | 7528.00 | 0.00 | 0.00 | 1.00 | $120,000 | $0 |
Roll Value History
| 2026 | N/A | N/A | N/A | N/A | N/A |
| 2025 | $660,530 | $180,000 | $0 | $840,530 | $840,530 |
| 2024 | $694,690 | $120,000 | $0 | $814,690 | $814,690 |
| 2023 | $661,610 | $120,000 | $0 | $781,610 | $781,610 |
| 2022 | $661,610 | $95,000 | $0 | $756,610 | $756,610 |
| 2021 | $508,930 | $95,000 | $0 | $603,930 | $603,930 |
| 2020 | $442,550 | $95,000 | $0 | $537,550 | $537,550 |
| 2019 | $442,550 | $95,000 | $0 | $537,550 | $537,550 |
| 2018 | $411,400 | $75,000 | $0 | $486,400 | $486,400 |
| 2017 | $411,400 | $75,000 | $0 | $486,400 | $486,400 |
| 2016 | $374,000 | $75,000 | $0 | $449,000 | $449,000 |
| 2015 | $374,000 | $75,000 | $0 | $449,000 | $449,000 |
| 2014 | $374,000 | $75,000 | $0 | $449,000 | $449,000 |
| 2013 | $415,200 | $75,000 | $0 | $490,200 | $490,200 |
| 2012 | $469,700 | $75,000 | $0 | $0 | $0 |
| 2011 | $469,700 | $75,000 | $0 | $0 | $0 |
| 2010 | $469,700 | $75,000 | $0 | $0 | $0 |
| 2009 | $501,400 | $75,000 | $0 | $0 | $0 |
| 2008 | $501,400 | $75,000 | $0 | $0 | $0 |
| 2007 | $0 | $1,900 | $0 | $0 | $0 |
Deed and Sales History
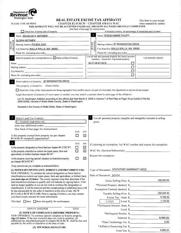
| 1 | 03/17/2014 | SWD | STATUTORY WARRANTY DEED | BOTIMER DOUGLAS A & GLORIA | FAUSTI TERESA MARIE | | | $450,000.00 | 125578 | 2014-01808 |
| 2 | 03/30/2007 | WARRANTY D | WARRANTY DEED | PROHASKA, LYNN J & NINA L | BOTIMER, DOUGLAS A & GLORIA | | | | 112507 | 2007-03594 |
Payout Agreement
| No payout information available.. |