Property
Account |
| Property ID: | 15770 | Abbreviated Legal Description: | KENSINGTON ADDITION LOT 9 |
| Parcel Number: | 360728870009 | Agent Code: | |
| Type: | Real | | |
| Tax Area: | 105 - 140-F-4 | Land Use Code | 11 |
| Open Space: | N | DFL | N |
| Historic Property: | N | Remodel Property: | N |
| Multi-Family Redevelopment: | N | | |
| Township: | 7 | Section: | 28 |
| Range: | 36 |
Location |
| Address: | 75 KENSINGTON DR WA 99362 | Mapsco: | |
| Neighborhood: | VG Res | Map ID: | |
| Neighborhood CD: | 615011 |
Owner |
| Name: | CYRUS ANDREA PRESCILLA | Owner ID: | 63693 |
| Mailing Address: | 75 KENSINGTON DR WALLA WALLA, WA 99362 | % Ownership: | 100.0000000000% |
| | | Exemptions: | |
Taxes and Assessment Details
Property Tax Information as of
02/21/2026
Click on "Statement Details" to expand or collapse a tax statement.
* Please enter a valid date ** Please enter a valid date *
Statement Details |
| | TOTAL: | $0.00 | $0.00 | $0.00 | $0.00 | $0.00 | $0.00 |
|
| | $0.00 | $0.00 | $0.00 | $0.00 | $0.00 | $0.00 |
Values
| (+) Improvement Homesite Value: | + | $0 | |
| (+) Improvement Non-Homesite Value: | + | $561,090 | |
| (+) Land Homesite Value: | + | $0 | |
| (+) Land Non-Homesite Value: | + | $120,000 | |
| (+) Curr Use (HS): | + | $0 | $0 |
| (+) Curr Use (NHS): | + | $0 | $0 |
| | | -------------------------- | |
| (=) Market Value: | = | $681,090 | |
| (–) Productivity Loss: | – | $0 | |
| | | -------------------------- | |
| (=) Subtotal: | = | $681,090 | |
| (+) Senior Appraised Value: | + | $0 | |
| (+) Non-Senior Appraised Value: | + | $681,090 | |
| | | -------------------------- | |
| (=) Total Appraised Value: | = | $681,090 | |
| (–) Senior Exemption Loss: | – | $0 | |
| (–) Exemption Loss: | – | $0 | |
| | | -------------------------- | |
| (=) Taxable Value: | = | $681,090 | |
Taxing Jurisdiction
| Owner: | CYRUS ANDREA PRESCILLA | | |
| % Ownership: | 100.0000000000% | | |
| Total Value: | $681,090 | | |
| Tax Area: | 105 - 140-F-4 |
| CERFD | CURRENT EXPENSE REFUND 010 | 0.0000000000 | $681,090 | $681,090 | $0.00 | | |
| CURREXP | CURRENT EXPENSE 010 | 1.0175366760 | $681,090 | $681,090 | $693.03 | | |
| HUMNSERV | HUMAN SERVICES 119 | 0.0250000000 | $681,090 | $681,090 | $17.03 | | |
| SLDREL | SOLDIERS RELIEF 121 | 0.0155990005 | $681,090 | $681,090 | $10.62 | | |
| EMERGSER | EMS 147 | 0.3792580840 | $681,090 | $681,090 | $258.31 | | |
| EMSRFD | EMS REFUND 147 | 0.0000000000 | $681,090 | $681,090 | $0.00 | | |
| FD4EXP | FD #4 EXPENSE 686 | 0.8836993059 | $681,090 | $681,090 | $601.88 | | |
| RLBRFD | RURAL LIBRARY REFUND 623 | 0.0000000000 | $681,090 | $681,090 | $0.00 | | |
| RURALLIB | RURAL LIBRARY 623 | 0.3710609029 | $681,090 | $681,090 | $252.73 | | |
| PORTRFD | PORT REFUND 640 | 0.0000000000 | $681,090 | $681,090 | $0.00 | | |
| PORTWWGEN | PORT OF WW 640 | 0.2460186015 | $681,090 | $681,090 | $167.56 | | |
| SD140BOND | SD #140 BOND 764 | 0.8342371393 | $681,090 | $681,090 | $568.19 | | |
| SD140GEN | SD #140 GENERAL 760 | 2.0646500647 | $681,090 | $681,090 | $1,406.21 | | |
| ST2 | STATE SCHOOL PART 2 600 | 0.8131451643 | $681,090 | $681,090 | $553.83 | | |
| STATESCHL | STATE SCHOOL 600 | 1.5158548041 | $681,090 | $681,090 | $1,032.43 | | |
| STREFUND | STATE REFUND LEVY 603 | 0.0000000000 | $681,090 | $681,090 | $0.00 | | |
| COROAD | COUNTY ROAD 115 | 1.6549953990 | $681,090 | $681,090 | $1,127.20 | | |
| CRPRD | COUNTY ROAD REFUND 115 | 0.0000000000 | $681,090 | $681,090 | $0.00 | | |
| | Total Tax Rate: | 9.8210551422 | | | | | |
| | | | | Taxes w/Current Exemptions: | $6,689.02 | | |
| | | | | Taxes w/o Exemptions: | $6,689.02 | | |
Improvement / Building
| Improvement #1: | RESIDENTIAL | State Code: | 11 | 2872.0 sqft | Value: | $561,090 |
| Exterior Wall: | SIDING | Heating/Cooling: | WARM & COOLED AIR | | Number of Bathrooms: | 3 | Number of Bedrooms: | 4 | | Plumbing: | 13 | Roof Covering: | COMP SHINGLE |
|
| | Type | Description | Class CD | Sub Class CD | Year Built | Area |
| | MA | Main Area | 4 | 45 | 2010 | 2872.0 |
| | UPFL | Upper Floor (included in main area) | 4 | 45 | 2010 | 1004.0 |
| | SI1 | SITE IMPROVEMENT | 4 | 45 | 2010 | 4.0 |
| | GFP | GAS FIREPLACE | 4 | 45 | 2010 | 1.0 |
| | PRC | PORCH W STEPS, ROOF,CEILED | 4 | 45 | 2010 | 144.0 |
| | BIG | Built In Garage | 4 | 45 | 2010 | 484.0 |
Sketch
Property Image
Land
| 1 | RES 1 | Converted: Residential | 0.1653 | 7200.00 | 0.00 | 0.00 | 1.00 | $120,000 | $0 |
Roll Value History
| 2026 | N/A | N/A | N/A | N/A | N/A |
| 2025 | $541,940 | $180,000 | $0 | $721,940 | $721,940 |
| 2024 | $589,140 | $120,000 | $0 | $709,140 | $709,140 |
| 2023 | $561,090 | $120,000 | $0 | $681,090 | $681,090 |
| 2022 | $561,090 | $95,000 | $0 | $656,090 | $656,090 |
| 2021 | $400,780 | $95,000 | $0 | $495,780 | $495,780 |
| 2020 | $348,500 | $95,000 | $0 | $443,500 | $443,500 |
| 2019 | $348,500 | $95,000 | $0 | $443,500 | $443,500 |
| 2018 | $364,930 | $75,000 | $0 | $439,930 | $439,930 |
| 2017 | $364,930 | $75,000 | $0 | $439,930 | $439,930 |
| 2016 | $347,550 | $75,000 | $0 | $422,550 | $422,550 |
| 2015 | $331,000 | $75,000 | $0 | $406,000 | $406,000 |
| 2014 | $331,000 | $75,000 | $0 | $406,000 | $406,000 |
| 2013 | $331,000 | $75,000 | $0 | $406,000 | $406,000 |
| 2012 | $335,300 | $75,000 | $0 | $0 | $0 |
| 2011 | $315,800 | $75,000 | $0 | $0 | $0 |
| 2010 | $0 | $75,000 | $0 | $0 | $0 |
| 2009 | $0 | $75,000 | $0 | $0 | $0 |
| 2008 | $0 | $75,000 | $0 | $0 | $0 |
| 2007 | $0 | $1,800 | $0 | $0 | $0 |
Deed and Sales History
| 1 | 08/03/2018 | QCD | QUIT CLAIM DEED | SNIDER KENDAL T | CYRUS ANDREA PRESCILLA | | | $0.00 | 135270 | 2018-06363 |
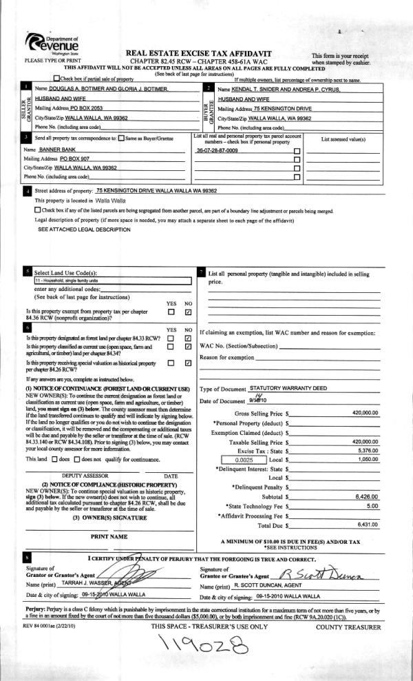
| 2 | 09/17/2010 | WARRANTY D | WARRANTY DEED | BOTIMER, DOUGLAS A & GLORIA | SNIDER, KENDAL T | | | $420,000.00 | 119028 | 2010-07360 |
| 3 | 04/04/2007 | WARRANTY D | WARRANTY DEED | "PROHASKA, LYNN J & NINA L" | BOTIMER DOUGLAS A & GLORIA | | | | 112551 | 2007-03741 |
Payout Agreement
| No payout information available.. |