Property
Account |
| Property ID: | 15769 | Abbreviated Legal Description: | KENSINGTON ADDITION LOT 7 |
| Parcel Number: | 360728870007 | Agent Code: | |
| Type: | Real | | |
| Tax Area: | 105 - 140-F-4 | Land Use Code | 11 |
| Open Space: | N | DFL | N |
| Historic Property: | N | Remodel Property: | N |
| Multi-Family Redevelopment: | N | | |
| Township: | 7 | Section: | 28 |
| Range: | 36 |
Location |
| Address: | 59 KENSINGTON DR WA 99362 | Mapsco: | |
| Neighborhood: | VG Res | Map ID: | |
| Neighborhood CD: | 615011 |
Owner |
| Name: | MANTLE STEVEN J & MERIHA L | Owner ID: | 73788 |
| Mailing Address: | 59 KENSINGTON DR WALLA WALLA, WA 99362 | % Ownership: | 100.0000000000% |
| | | Exemptions: | |
Taxes and Assessment Details
Values
| (+) Improvement Homesite Value: | + | $0 | |
| (+) Improvement Non-Homesite Value: | + | $560,000 | |
| (+) Land Homesite Value: | + | $0 | |
| (+) Land Non-Homesite Value: | + | $120,000 | |
| (+) Curr Use (HS): | + | $0 | $0 |
| (+) Curr Use (NHS): | + | $0 | $0 |
| | | -------------------------- | |
| (=) Market Value: | = | $680,000 | |
| (–) Productivity Loss: | – | $0 | |
| | | -------------------------- | |
| (=) Subtotal: | = | $680,000 | |
| (+) Senior Appraised Value: | + | $0 | |
| (+) Non-Senior Appraised Value: | + | $680,000 | |
| | | -------------------------- | |
| (=) Total Appraised Value: | = | $680,000 | |
| (–) Senior Exemption Loss: | – | $0 | |
| (–) Exemption Loss: | – | $0 | |
| | | -------------------------- | |
| (=) Taxable Value: | = | $680,000 | |
Taxing Jurisdiction
| Owner: | MANTLE STEVEN J & MERIHA L | | |
| % Ownership: | 100.0000000000% | | |
| Total Value: | $680,000 | | |
| Tax Area: | 105 - 140-F-4 |
| CERFD | CURRENT EXPENSE REFUND 010 | 0.0000000000 | $680,000 | $680,000 | $0.00 | | |
| CURREXP | CURRENT EXPENSE 010 | 1.0175366760 | $680,000 | $680,000 | $691.92 | | |
| HUMNSERV | HUMAN SERVICES 119 | 0.0250000000 | $680,000 | $680,000 | $17.00 | | |
| SLDREL | SOLDIERS RELIEF 121 | 0.0155990005 | $680,000 | $680,000 | $10.61 | | |
| EMERGSER | EMS 147 | 0.3792580840 | $680,000 | $680,000 | $257.90 | | |
| EMSRFD | EMS REFUND 147 | 0.0000000000 | $680,000 | $680,000 | $0.00 | | |
| FD4EXP | FD #4 EXPENSE 686 | 0.8836993059 | $680,000 | $680,000 | $600.92 | | |
| RLBRFD | RURAL LIBRARY REFUND 623 | 0.0000000000 | $680,000 | $680,000 | $0.00 | | |
| RURALLIB | RURAL LIBRARY 623 | 0.3710609029 | $680,000 | $680,000 | $252.32 | | |
| PORTRFD | PORT REFUND 640 | 0.0000000000 | $680,000 | $680,000 | $0.00 | | |
| PORTWWGEN | PORT OF WW 640 | 0.2460186015 | $680,000 | $680,000 | $167.29 | | |
| SD140BOND | SD #140 BOND 764 | 0.8342371393 | $680,000 | $680,000 | $567.28 | | |
| SD140GEN | SD #140 GENERAL 760 | 2.0646500647 | $680,000 | $680,000 | $1,403.96 | | |
| ST2 | STATE SCHOOL PART 2 600 | 0.8131451643 | $680,000 | $680,000 | $552.94 | | |
| STATESCHL | STATE SCHOOL 600 | 1.5158548041 | $680,000 | $680,000 | $1,030.78 | | |
| STREFUND | STATE REFUND LEVY 603 | 0.0000000000 | $680,000 | $680,000 | $0.00 | | |
| COROAD | COUNTY ROAD 115 | 1.6549953990 | $680,000 | $680,000 | $1,125.40 | | |
| CRPRD | COUNTY ROAD REFUND 115 | 0.0000000000 | $680,000 | $680,000 | $0.00 | | |
| | Total Tax Rate: | 9.8210551422 | | | | | |
| | | | | Taxes w/Current Exemptions: | $6,678.32 | | |
| | | | | Taxes w/o Exemptions: | $6,678.32 | | |
Improvement / Building
| Improvement #1: | RESIDENTIAL | State Code: | 11 | 2974.0 sqft | Value: | $560,000 |
| Exterior Wall: | SIDING | Heating/Cooling: | REV-HEAT-PUMP-W/DUCT | | Number of Bathrooms: | 3.5 | Number of Bedrooms: | 5 | | Plumbing: | 17 | Roof Covering: | COMP SHINGLE |
|
| | Type | Description | Class CD | Sub Class CD | Year Built | Area |
| | MA | Main Area | 4 | 45 | 2011 | 2974.0 |
| | UPFL | Upper Floor (included in main area) | 4 | 45 | 2011 | 1382.0 |
| | SI1 | SITE IMPROVEMENT | 4 | 45 | 2011 | 4.0 |
| | S2F | Single 2S Fireplace | 4 | 45 | 2011 | 1.0 |
| | RPC | OPEN PORCH W/ROOF , CEILED | 4 | 45 | 2011 | 107.0 |
| | ATG | Attached Garage | 4 | 45 | 2011 | 484.0 |
Sketch
Property Image
Land
| 1 | RES 1 | Converted: Residential | 0.1834 | 7991.00 | 0.00 | 0.00 | 1.00 | $120,000 | $0 |
Roll Value History
| 2026 | N/A | N/A | N/A | N/A | N/A |
| 2025 | $552,670 | $180,000 | $0 | $732,670 | $732,670 |
| 2024 | $588,000 | $120,000 | $0 | $708,000 | $708,000 |
| 2023 | $560,000 | $120,000 | $0 | $680,000 | $680,000 |
| 2022 | $560,000 | $95,000 | $0 | $655,000 | $655,000 |
| 2021 | $414,820 | $95,000 | $0 | $509,820 | $509,820 |
| 2020 | $360,710 | $95,000 | $0 | $455,710 | $455,710 |
| 2019 | $360,710 | $95,000 | $0 | $455,710 | $455,710 |
| 2018 | $369,290 | $75,000 | $0 | $444,290 | $444,290 |
| 2017 | $369,290 | $75,000 | $0 | $444,290 | $444,290 |
| 2016 | $351,700 | $75,000 | $0 | $426,700 | $426,700 |
| 2015 | $351,700 | $75,000 | $0 | $426,700 | $426,700 |
| 2014 | $351,700 | $75,000 | $0 | $426,700 | $426,700 |
| 2013 | $351,700 | $75,000 | $0 | $426,700 | $426,700 |
| 2012 | $0 | $75,000 | $0 | $0 | $0 |
| 2011 | $0 | $75,000 | $0 | $0 | $0 |
| 2010 | $0 | $75,000 | $0 | $0 | $0 |
| 2009 | $0 | $75,000 | $0 | $0 | $0 |
| 2008 | $0 | $75,000 | $0 | $0 | $0 |
| 2007 | $0 | $2,000 | $0 | $0 | $0 |
Deed and Sales History
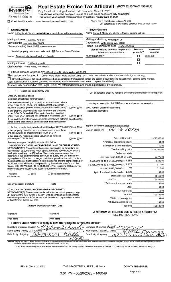
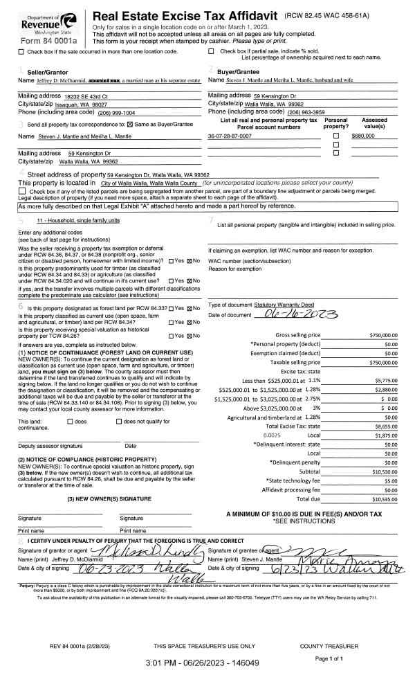
| 1 | 06/26/2023 | SWD | STATUTORY WARRANTY DEED | MCDIARMID JEFFREY D | MANTLE STEVEN J & MERIHA L | | | $750,000.00 | 146049 | 2023-03551 |
| 2 | 07/09/2015 | SWD | STATUTORY WARRANTY DEED | MC COLLAUGH BRYONY J | MCDIARMID JEFFREY D | | | $440,000.00 | 128359 | 2015-05871 |
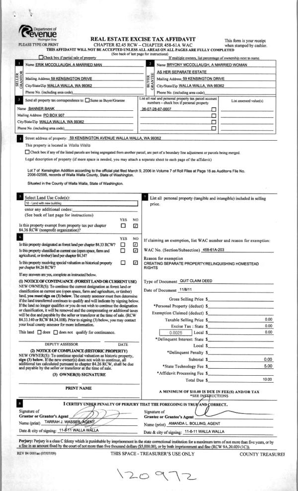
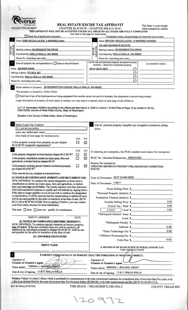
| 3 | 11/10/2011 | QCD | QUIT CLAIM DEED | ERIK MC COLLAUGH | MC COLLAUGH, BRYONY | | | $0.00 | 120972 | 2011-08881 |
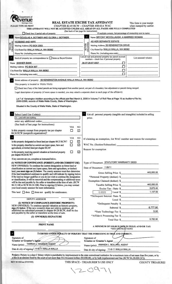
| 4 | 11/10/2011 | WARRANTY D | WARRANTY DEED | BOTIMER, DOUGLAS A & GLORIA | MC COLLAUGH, BRYONY | | | $443,000.00 | 120971 | 2011-08880 |
| 5 | 04/04/2007 | WARRANTY D | WARRANTY DEED | "PROHASKA, LYNN J & NINA L" | BOTIMER DOUGLAS A & GLORIA | | | | 112551 | 2007-03741 |
Payout Agreement
| No payout information available.. |