Property
Account |
| Property ID: | 1574 | Abbreviated Legal Description: | BURBANK LOTS 13 & 14 BLK 18 |
| Parcel Number: | 300802531813 | Agent Code: | |
| Type: | Real | | |
| Tax Area: | 328 - 400-M-5 | Land Use Code | 11 |
| Open Space: | N | DFL | N |
| Historic Property: | N | Remodel Property: | N |
| Multi-Family Redevelopment: | N | | |
| Township: | 8 | Section: | 2 |
| Range: | 30 |
Location |
| Address: | 60 ASH ST WA 99323 | Mapsco: | |
| Neighborhood: | Burbank F SFR | Map ID: | |
| Neighborhood CD: | 212711 |
Owner |
| Name: | RUBIO ANDREA HUEZO | Owner ID: | 69922 |
| Mailing Address: | MARTIN FLORES CASTILLO PO BOX 448 BURBANK, WA 99323 | % Ownership: | 100.0000000000% |
| | | Exemptions: | |
Taxes and Assessment Details
Values
| (+) Improvement Homesite Value: | + | $0 | |
| (+) Improvement Non-Homesite Value: | + | $244,960 | |
| (+) Land Homesite Value: | + | $0 | |
| (+) Land Non-Homesite Value: | + | $48,360 | |
| (+) Curr Use (HS): | + | $0 | $0 |
| (+) Curr Use (NHS): | + | $0 | $0 |
| | | -------------------------- | |
| (=) Market Value: | = | $293,320 | |
| (–) Productivity Loss: | – | $0 | |
| | | -------------------------- | |
| (=) Subtotal: | = | $293,320 | |
| (+) Senior Appraised Value: | + | $0 | |
| (+) Non-Senior Appraised Value: | + | $293,320 | |
| | | -------------------------- | |
| (=) Total Appraised Value: | = | $293,320 | |
| (–) Senior Exemption Loss: | – | $0 | |
| (–) Exemption Loss: | – | $0 | |
| | | -------------------------- | |
| (=) Taxable Value: | = | $293,320 | |
Taxing Jurisdiction
| Owner: | RUBIO ANDREA HUEZO | | |
| % Ownership: | 100.0000000000% | | |
| Total Value: | $293,320 | | |
| Tax Area: | 328 - 400-M-5 |
| CERFD | CURRENT EXPENSE REFUND 010 | 0.0000000000 | $293,320 | $293,320 | $0.00 | | |
| CURREXP | CURRENT EXPENSE 010 | 1.0175366760 | $293,320 | $293,320 | $298.46 | | |
| HUMNSERV | HUMAN SERVICES 119 | 0.0250000000 | $293,320 | $293,320 | $7.33 | | |
| SLDREL | SOLDIERS RELIEF 121 | 0.0155990005 | $293,320 | $293,320 | $4.58 | | |
| EMERGSER | EMS 147 | 0.3792580840 | $293,320 | $293,320 | $111.24 | | |
| EMSRFD | EMS REFUND 147 | 0.0000000000 | $293,320 | $293,320 | $0.00 | | |
| FD5EXP | FD #5 EXPENSE 689 | 1.2045331840 | $293,320 | $293,320 | $353.31 | | |
| RLBRFD | RURAL LIBRARY REFUND 623 | 0.0000000000 | $293,320 | $293,320 | $0.00 | | |
| RURALLIB | RURAL LIBRARY 623 | 0.3710609029 | $293,320 | $293,320 | $108.84 | | |
| PORTRFD | PORT REFUND 640 | 0.0000000000 | $293,320 | $293,320 | $0.00 | | |
| PORTWWGEN | PORT OF WW 640 | 0.2460186015 | $293,320 | $293,320 | $72.16 | | |
| SD400BOND | SD #400 BOND 793 | 0.0000000000 | $293,320 | $293,320 | $0.00 | | |
| SD400CAP | SD #400 CP 792 | 0.3443722657 | $293,320 | $293,320 | $101.01 | | |
| SD400GEN | SD #400 GENERAL 790 | 1.9278469916 | $293,320 | $293,320 | $565.48 | | |
| ST2 | STATE SCHOOL PART 2 600 | 0.8131451643 | $293,320 | $293,320 | $238.51 | | |
| STATESCHL | STATE SCHOOL 600 | 1.5158548041 | $293,320 | $293,320 | $444.63 | | |
| STREFUND | STATE REFUND LEVY 603 | 0.0000000000 | $293,320 | $293,320 | $0.00 | | |
| COROAD | COUNTY ROAD 115 | 1.6549953990 | $293,320 | $293,320 | $485.44 | | |
| CRPRD | COUNTY ROAD REFUND 115 | 0.0000000000 | $293,320 | $293,320 | $0.00 | | |
| | Total Tax Rate: | 9.5152210736 | | | | | |
| | | | | Taxes w/Current Exemptions: | $2,790.99 | | |
| | | | | Taxes w/o Exemptions: | $2,790.99 | | |
Improvement / Building
| Improvement #1: | RESIDENTIAL | State Code: | 11 | 1344.0 sqft | Value: | $244,960 |
| Exterior Wall: | VINYL | Heating/Cooling: | WARM & COOLED AIR | | Number of Bathrooms: | 1 | Number of Bedrooms: | 3 | | Plumbing: | 6 | Roof Covering: | COMP SHINGLE |
|
| | Type | Description | Class CD | Sub Class CD | Year Built | Area |
| | MA | Main Area | 1 | 30 | 1951 | 1344.0 |
| | SI1 | SITE IMPROVEMENT | 1 | 30 | 1951 | 1.0 |
| | OSP | Open | 1 | 30 | 1951 | 45.0 |
| | DTG | Detached Garage | 1 | 30 | 1951 | 600.0 |
Sketch
Property Image
Land
| 1 | RES 1 | Converted: Residential | 0.2755 | 12000.00 | 0.00 | 0.00 | 1.00 | $48,360 | $0 |
Roll Value History
| 2026 | N/A | N/A | N/A | N/A | N/A |
| 2025 | $244,960 | $48,360 | $0 | $293,320 | $293,320 |
| 2024 | $244,960 | $48,360 | $0 | $293,320 | $293,320 |
| 2023 | $244,960 | $48,360 | $0 | $293,320 | $293,320 |
| 2022 | $233,300 | $48,360 | $0 | $281,660 | $281,660 |
| 2021 | $166,640 | $48,360 | $0 | $215,000 | $215,000 |
| 2020 | $172,480 | $22,500 | $0 | $194,980 | $194,980 |
| 2019 | $172,480 | $22,500 | $0 | $194,980 | $194,980 |
| 2018 | $123,200 | $22,500 | $0 | $145,700 | $145,700 |
| 2017 | $123,200 | $22,500 | $0 | $145,700 | $145,700 |
| 2016 | $88,000 | $22,500 | $0 | $110,500 | $110,500 |
| 2015 | $88,000 | $22,500 | $0 | $110,500 | $110,500 |
| 2014 | $75,900 | $22,500 | $0 | $98,400 | $98,400 |
| 2013 | $75,900 | $22,500 | $0 | $98,400 | $98,400 |
| 2012 | $56,200 | $22,500 | $0 | $0 | $0 |
| 2011 | $56,200 | $22,500 | $0 | $0 | $0 |
| 2010 | $56,200 | $22,500 | $0 | $0 | $0 |
| 2009 | $61,600 | $18,000 | $0 | $0 | $0 |
| 2008 | $65,000 | $18,000 | $0 | $0 | $0 |
| 2007 | $65,000 | $18,000 | $0 | $0 | $0 |
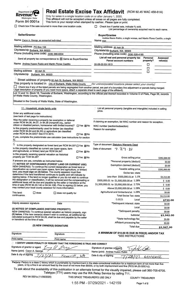
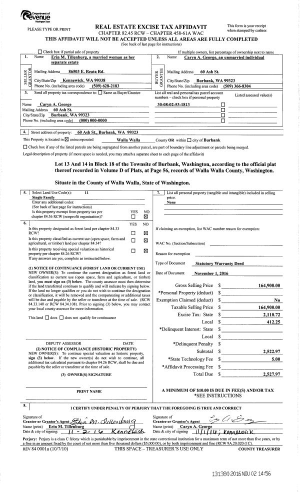
Deed and Sales History
| 1 | 07/29/2021 | SWD | STATUTORY WARRANTY DEED | GEORGE CARYN A | RUBIO ANDREA HUEZO | | | $292,000.00 | 142159 | 2021-09271 |
| 2 | 11/02/2016 | SWD | STATUTORY WARRANTY DEED | TILLENBURG ERIN | GEORGE CARYN A | | | $164,900.00 | 131380 | 2016-09110 |
| 3 | 03/03/1976 | WARRANTY D | WARRANTY DEED | | | | | $27,500.00 | 0 | 1478-500055 |
Payout Agreement
| No payout information available.. |