Property
Account |
| Property ID: | 15738 | Abbreviated Legal Description: | HILLTOP ACRES PHASE 1 LOT 12 BLK 2 |
| Parcel Number: | 350611510212 | Agent Code: | |
| Type: | Real | | |
| Tax Area: | 311 - 250-4 | Land Use Code | 11 |
| Open Space: | N | DFL | N |
| Historic Property: | N | Remodel Property: | N |
| Multi-Family Redevelopment: | N | | |
| Township: | 6 | Section: | 11 |
| Range: | 35 |
Location |
| Address: | 45 DONRITA CT WA 99324 | Mapsco: | |
| Neighborhood: | G SFR Rural | Map ID: | |
| Neighborhood CD: | 214013 |
Owner |
| Name: | FRANTZ FAMILY TRUST | Owner ID: | 56546 |
| Mailing Address: | 45 DONRITA CT WALLA WALLA, WA 99362 | % Ownership: | 100.0000000000% |
| | | Exemptions: | SNR/DSBL |
Taxes and Assessment Details
Property Tax Information as of
02/21/2026
Click on "Statement Details" to expand or collapse a tax statement.
* Please enter a valid date ** Please enter a valid date *
Statement Details |
| | TOTAL: | $0.00 | $0.00 | $0.00 | $0.00 | $0.00 | $0.00 |
|
| | $0.00 | $0.00 | $0.00 | $0.00 | $0.00 | $0.00 |
Values
| (+) Improvement Homesite Value: | + | $705,010 | |
| (+) Improvement Non-Homesite Value: | + | $0 | |
| (+) Land Homesite Value: | + | $125,880 | |
| (+) Land Non-Homesite Value: | + | $0 | |
| (+) Curr Use (HS): | + | $0 | $0 |
| (+) Curr Use (NHS): | + | $0 | $0 |
| | | -------------------------- | |
| (=) Market Value: | = | $830,890 | |
| (–) Productivity Loss: | – | $0 | |
| | | -------------------------- | |
| (=) Subtotal: | = | $830,890 | |
| (+) Senior Appraised Value: | + | $569,600 | |
| (+) Non-Senior Appraised Value: | + | $0 | |
| | | -------------------------- | |
| (=) Total Appraised Value: | = | $569,600 | |
| (–) Senior Exemption Loss: | – | $0 | |
| (–) Exemption Loss: | – | $0 | |
| | | -------------------------- | |
| (=) Taxable Value: | = | $569,600 | |
Taxing Jurisdiction
| Owner: | FRANTZ FAMILY TRUST | | |
| % Ownership: | 100.0000000000% | | |
| Total Value: | $830,890 | | |
| Tax Area: | 311 - 250-4 |
| CERFD | CURRENT EXPENSE REFUND 010 | 0.0000000000 | $830,890 | $569,600 | $0.00 | | |
| CURREXP | CURRENT EXPENSE 010 | 1.0175366760 | $830,890 | $569,600 | $579.59 | | |
| HUMNSERV | HUMAN SERVICES 119 | 0.0250000000 | $830,890 | $569,600 | $14.24 | | |
| SLDREL | SOLDIERS RELIEF 121 | 0.0155990005 | $830,890 | $569,600 | $8.89 | | |
| EMERGSER | EMS 147 | 0.3792580840 | $830,890 | $569,600 | $216.03 | | |
| EMSRFD | EMS REFUND 147 | 0.0000000000 | $830,890 | $569,600 | $0.00 | | |
| FD4EXP | FD #4 EXPENSE 686 | 0.8836993059 | $830,890 | $569,600 | $503.36 | | |
| RLBRFD | RURAL LIBRARY REFUND 623 | 0.0000000000 | $830,890 | $569,600 | $0.00 | | |
| RURALLIB | RURAL LIBRARY 623 | 0.3710609029 | $830,890 | $569,600 | $211.36 | | |
| PORTRFD | PORT REFUND 640 | 0.0000000000 | $830,890 | $569,600 | $0.00 | | |
| PORTWWGEN | PORT OF WW 640 | 0.2460186015 | $830,890 | $569,600 | $140.13 | | |
| SD250BOND | SD #250 BOND 773 | 0.0000000000 | $830,890 | $0 | $0.00 | | |
| SD250GEN | SD #250 GENERAL 770 | 0.0000000000 | $830,890 | $0 | $0.00 | | |
| ST2 | STATE SCHOOL PART 2 600 | 0.0000000000 | $830,890 | $0 | $0.00 | | |
| STATESCHL | STATE SCHOOL 600 | 1.5158548041 | $830,890 | $569,600 | $863.43 | | |
| STREFUND | STATE REFUND LEVY 603 | 0.0000000000 | $830,890 | $569,600 | $0.00 | | |
| COROAD | COUNTY ROAD 115 | 1.6549953990 | $830,890 | $569,600 | $942.69 | | |
| CRPRD | COUNTY ROAD REFUND 115 | 0.0000000000 | $830,890 | $569,600 | $0.00 | | |
| | Total Tax Rate: | 6.1090227739 | | | | | |
| | | | | Taxes w/Current Exemptions: | $3,479.72 | | |
| | | | | Taxes w/o Exemptions: | $8,945.61 | | |
Improvement / Building
| Improvement #1: | RESIDENTIAL | State Code: | 11 | 2181.0 sqft | Value: | $705,010 |
| Exterior Wall: | HARDBOARD | Heating/Cooling: | REV-HEAT-PUMP-W/DUCT | | Number of Bathrooms: | 3.5 | Number of Bedrooms: | 2 | | Plumbing: | 17 | Roof Covering: | COMP SHINGLE |
|
| | Type | Description | Class CD | Sub Class CD | Year Built | Area |
| | MA | Main Area | 1 | 35 | 2007 | 2181.0 |
| | BONU | BONUS ROOM W/FINISH | 1 | 35 | 2008 | 312.0 |
| | FBAT | FULL BATH | 1 | 35 | 2008 | 1.0 |
| | GFP | GAS FIREPLACE | 1 | 35 | 2007 | 1.0 |
| | RPC | OPEN PORCH W/ROOF , CEILED | 1 | 35 | 2007 | 117.0 |
| | SI1 | SITE IMPROVEMENT | 1 | 35 | 2007 | 5.5 |
| | SMP | SWIMMING POOL | 1 | 35 | 2008 | 1.0 |
| | WDR | WOOD DECK W/ROOF | 1 | 35 | 2008 | 192.0 |
| | BASE | BASEMENT | 1 | 35 | 2007 | 2073.0 |
| | ATG | Attached Garage | 1 | 35 | 2008 | 588.0 |
| | ATG | Attached Garage | 1 | 35 | 2007 | 624.0 |
| | BPF | BASEMENT -PARTITIONED FINISH | 1 | 35 | 2007 | 1100.0 |
| | SWP | Solid Wall Porch | 1 | 35 | 2007 | 1874.0 |
Sketch
Property Image
Land
| 1 | RES 1 | Converted: Residential | 2.1000 | 91476.00 | 0.00 | 0.00 | 1.00 | $125,880 | $0 |
Roll Value History
| 2026 | N/A | N/A | N/A | N/A | N/A |
| 2025 | $810,760 | $125,880 | $0 | $936,640 | $499,600 |
| 2024 | $705,010 | $125,880 | $0 | $830,890 | $499,600 |
| 2023 | $705,010 | $125,880 | $0 | $830,890 | $569,600 |
| 2022 | $705,010 | $125,880 | $0 | $830,890 | $569,600 |
| 2021 | $503,580 | $125,880 | $0 | $629,460 | $569,600 |
| 2020 | $503,580 | $90,000 | $0 | $593,580 | $593,580 |
| 2019 | $503,580 | $90,000 | $0 | $593,580 | $569,600 |
| 2018 | $503,580 | $90,000 | $0 | $593,580 | $569,600 |
| 2017 | $503,580 | $90,000 | $0 | $593,580 | $569,600 |
| 2016 | $479,600 | $90,000 | $0 | $569,600 | $569,600 |
| 2015 | $479,600 | $90,000 | $0 | $569,600 | $569,600 |
| 2014 | $479,600 | $90,000 | $0 | $569,600 | $569,600 |
| 2013 | $479,600 | $90,000 | $0 | $569,600 | $569,600 |
| 2012 | $434,600 | $135,000 | $0 | $0 | $0 |
| 2011 | $434,600 | $135,000 | $0 | $0 | $0 |
| 2010 | $414,600 | $155,000 | $0 | $0 | $0 |
| 2009 | $197,600 | $155,000 | $0 | $0 | $0 |
| 2008 | $282,600 | $70,000 | $0 | $0 | $0 |
| 2007 | $137,700 | $70,000 | $0 | $0 | $0 |
Deed and Sales History
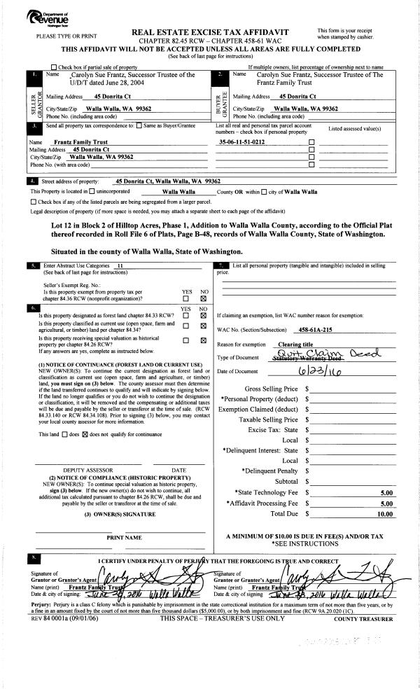
| 1 | 06/23/2016 | QCD | QUIT CLAIM DEED | FRANTZ SUE TRUSTEE OF THE U/D/T | FRANTZ FAMILY TRUST | | | $0.00 | 130499 | 2016-04952 |
| 2 | 06/27/2016 | DEATH CERT | DEATH CERTIFICATE | FRANTZ ARMAND WAYNE | | | | | 0 | 2016-04951 |
| 3 | 05/13/2015 | QCD | QUIT CLAIM DEED | FRANTZ ARMAND WAYNE | FRANTZ FAMILY TRUST | | | $0.00 | 127959 | 2015-04036 |
| 4 | 08/26/2005 | WARRANTY D | WARRANTY DEED | "SUMMERS, JAY & JUNE" | | | | | 86447 | 2005--10601 |
| 5 | 10/26/2004 | WARRANTY D | WARRANTY DEED | GRAND VISTA ESTATE DEV LLC | FRANTZ, ARMAND WAYNE | | | $86,000.00 | 106040 | 2004-12303 |
Payout Agreement
| No payout information available.. |