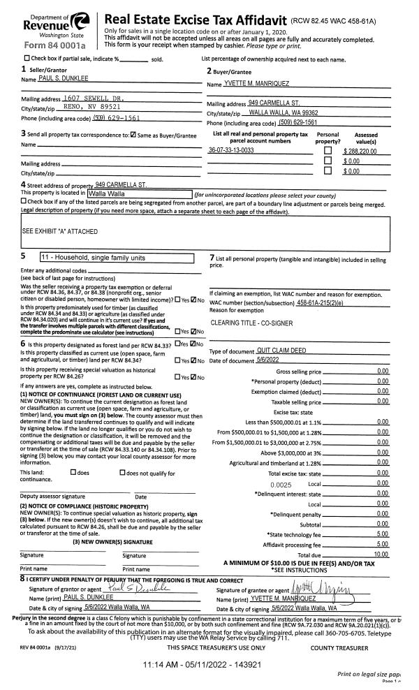
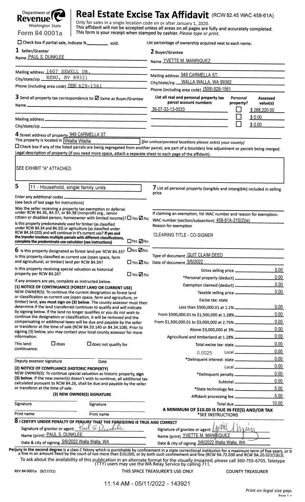
Property
Account |
| Property ID: | 15731 | Abbreviated Legal Description: | 33-7-36 LOT 3 OF SHORT PLAT (PTN LOT 41 ABBOTT ACRE TRACTS PLUSNLY PTN TAX 5 IN SW1/4NE1/4) |
| Parcel Number: | 360733130033 | Agent Code: | |
| Type: | Real | | |
| Tax Area: | 1 - OL-140-F | Land Use Code | 11 |
| Open Space: | N | DFL | N |
| Historic Property: | N | Remodel Property: | N |
| Multi-Family Redevelopment: | N | | |
| Township: | 7 | Section: | 33 |
| Range: | 36 |
Location |
| Address: | 949 CARMELLA ST WALLA WALLA, WA 99362 | Mapsco: | |
| Neighborhood: | A Res | Map ID: | |
| Neighborhood CD: | 613011 |
Owner |
| Name: | MANRIQUEZ YVETTE M | Owner ID: | 71608 |
| Mailing Address: | 949 CARMELLA ST WALLA WALLA, WA 99362 | % Ownership: | 100.0000000000% |
| | | Exemptions: | |
Taxes and Assessment Details
Values
| (+) Improvement Homesite Value: | + | $0 | |
| (+) Improvement Non-Homesite Value: | + | $333,160 | |
| (+) Land Homesite Value: | + | $0 | |
| (+) Land Non-Homesite Value: | + | $90,000 | |
| (+) Curr Use (HS): | + | $0 | $0 |
| (+) Curr Use (NHS): | + | $0 | $0 |
| | | -------------------------- | |
| (=) Market Value: | = | $423,160 | |
| (–) Productivity Loss: | – | $0 | |
| | | -------------------------- | |
| (=) Subtotal: | = | $423,160 | |
| (+) Senior Appraised Value: | + | $0 | |
| (+) Non-Senior Appraised Value: | + | $423,160 | |
| | | -------------------------- | |
| (=) Total Appraised Value: | = | $423,160 | |
| (–) Senior Exemption Loss: | – | $0 | |
| (–) Exemption Loss: | – | $0 | |
| | | -------------------------- | |
| (=) Taxable Value: | = | $423,160 | |
Taxing Jurisdiction
| Owner: | MANRIQUEZ YVETTE M | | |
| % Ownership: | 100.0000000000% | | |
| Total Value: | $423,160 | | |
| Tax Area: | 1 - OL-140-F |
| CERFD | CURRENT EXPENSE REFUND 010 | 0.0000000000 | $423,160 | $423,160 | $0.00 | | |
| CURREXP | CURRENT EXPENSE 010 | 1.0175366760 | $423,160 | $423,160 | $430.58 | | |
| HUMNSERV | HUMAN SERVICES 119 | 0.0250000000 | $423,160 | $423,160 | $10.58 | | |
| SLDREL | SOLDIERS RELIEF 121 | 0.0155990005 | $423,160 | $423,160 | $6.60 | | |
| EMERGSER | EMS 147 | 0.3792580840 | $423,160 | $423,160 | $160.49 | | |
| EMSRFD | EMS REFUND 147 | 0.0000000000 | $423,160 | $423,160 | $0.00 | | |
| PORTRFD | PORT REFUND 640 | 0.0000000000 | $423,160 | $423,160 | $0.00 | | |
| PORTWWGEN | PORT OF WW 640 | 0.2460186015 | $423,160 | $423,160 | $104.11 | | |
| SD140BOND | SD #140 BOND 764 | 0.8342371393 | $423,160 | $423,160 | $353.02 | | |
| SD140GEN | SD #140 GENERAL 760 | 2.0646500647 | $423,160 | $423,160 | $873.68 | | |
| ST2 | STATE SCHOOL PART 2 600 | 0.8131451643 | $423,160 | $423,160 | $344.09 | | |
| STATESCHL | STATE SCHOOL 600 | 1.5158548041 | $423,160 | $423,160 | $641.45 | | |
| STREFUND | STATE REFUND LEVY 603 | 0.0000000000 | $423,160 | $423,160 | $0.00 | | |
| CWWBOND | C OF WW BOND 643 | 0.2760494372 | $423,160 | $423,160 | $116.81 | | |
| CWWGEN | CITY OF WW 631 | 1.6100204973 | $423,160 | $423,160 | $681.30 | | |
| CWWRFD | CITY OF WALLA WALLA REFUND 631 | 0.0000000000 | $423,160 | $423,160 | $0.00 | | |
| | Total Tax Rate: | 8.7973694689 | | | | | |
| | | | | Taxes w/Current Exemptions: | $3,722.71 | | |
| | | | | Taxes w/o Exemptions: | $3,722.71 | | |
Improvement / Building
| Improvement #1: | RESIDENTIAL | State Code: | 11 | 1600.0 sqft | Value: | $333,160 |
| Exterior Wall: | PLYWOOD | Heating/Cooling: | WARM & COOLED AIR | | Number of Bathrooms: | 2 | Number of Bedrooms: | 3 | | Plumbing: | 9 | Roof Covering: | COMP SHINGLE |
|
| | Type | Description | Class CD | Sub Class CD | Year Built | Area |
| | MA | Main Area | 1 | 35 | 2006 | 1600.0 |
| | SI1 | SITE IMPROVEMENT | 1 | 35 | 2006 | 3.5 |
| | ATG | Attached Garage | 1 | 35 | 2006 | 704.0 |
| | PRC | PORCH W STEPS, ROOF,CEILED | 1 | 35 | 2006 | 114.0 |
| | GFP | GAS FIREPLACE | 1 | 35 | 2006 | 1.0 |
Sketch
Property Image
Land
| 1 | RES 1 | Converted: Residential | 0.2204 | 9600.00 | 0.00 | 0.00 | 1.00 | $90,000 | $0 |
Roll Value History
| 2026 | N/A | N/A | N/A | N/A | N/A |
| 2025 | $333,270 | $125,000 | $0 | $458,270 | $458,270 |
| 2024 | $333,160 | $90,000 | $0 | $423,160 | $423,160 |
| 2023 | $333,160 | $90,000 | $0 | $423,160 | $423,160 |
| 2022 | $266,530 | $75,000 | $0 | $341,530 | $341,530 |
| 2021 | $213,220 | $75,000 | $0 | $288,220 | $288,220 |
| 2020 | $203,070 | $75,000 | $0 | $278,070 | $278,070 |
| 2019 | $203,070 | $75,000 | $0 | $278,070 | $278,070 |
| 2018 | $184,590 | $50,000 | $0 | $234,590 | $234,590 |
| 2017 | $175,800 | $50,000 | $0 | $225,800 | $225,800 |
| 2016 | $146,500 | $50,000 | $0 | $196,500 | $196,500 |
| 2015 | $146,500 | $50,000 | $0 | $196,500 | $196,500 |
| 2014 | $146,500 | $50,000 | $0 | $196,500 | $196,500 |
| 2013 | $146,500 | $50,000 | $0 | $196,500 | $196,500 |
| 2012 | $140,500 | $50,000 | $0 | $0 | $0 |
| 2011 | $164,100 | $50,000 | $0 | $0 | $0 |
| 2010 | $144,600 | $50,000 | $0 | $0 | $0 |
| 2009 | $166,200 | $50,000 | $0 | $0 | $0 |
| 2008 | $166,200 | $50,000 | $0 | $0 | $0 |
| 2007 | $186,600 | $24,300 | $0 | $0 | $0 |
Deed and Sales History
| 1 | 05/06/2022 | QCD | QUIT CLAIM DEED | DUNKLEE PAUL S | MANRIQUEZ YVETTE M | | | $0.00 | 143921 | 2022-04004 |
| 2 | 06/19/2018 | SWD | STATUTORY WARRANTY DEED | NIEBEL CALVIN & JENNIFER | DUNKLEE PAUL S | | | $283,800.00 | 134947 | 2018-04919 |
| 3 | 11/28/2016 | SWD | STATUTORY WARRANTY DEED | SIMMONS MARCI L ESTATE OF | NIEBEL CALVIN & JENNIFER | | | $259,500.00 | 131488 | 2016-09739 |
| 4 | 08/29/2012 | QCD | QUIT CLAIM DEED | SCHAB, LISA A | SCHAB, MARCI L | | | $0.00 | 122554 | 2012-07570 |
| 5 | 09/11/2009 | WARRANTY D | WARRANTY DEED | AREND, CHRISTOPHER D & WANDA L | SCHAB, MARCI L | | | $222,000.00 | 117324 | 2009-09190 |
| 6 | 02/13/2006 | WARRANTY D | WARRANTY DEED | MAJERUS CONSTRUCTION INC | AREND, CHRISTOPHER D & WANDA L | | | $219,900.00 | 109654 | 2006-01694 |
Payout Agreement
| No payout information available.. |