Property
Account |
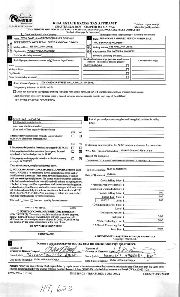
| Property ID: | 15727 | Abbreviated Legal Description: | GREENS 1ST LOT 3 BLK 4 |
| Parcel Number: | 360720620403 | Agent Code: | |
| Type: | Real | | |
| Tax Area: | 1 - OL-140-F | Land Use Code | 11 |
| Open Space: | N | DFL | N |
| Historic Property: | N | Remodel Property: | N |
| Multi-Family Redevelopment: | N | | |
| Township: | 7 | Section: | 20 |
| Range: | 36 |
Location |
| Address: | 1038 VALENCIA ST WA 99362 | Mapsco: | |
| Neighborhood: | A-SFR | Map ID: | |
| Neighborhood CD: | 513011 |
Owner |
| Name: | DAVIS TERA | Owner ID: | 49468 |
| Mailing Address: | 837 WALLOWA DR WALLA WALLA, WA 99362-9398 | % Ownership: | 100.0000000000% |
| | | Exemptions: | |
Taxes and Assessment Details
Values
| (+) Improvement Homesite Value: | + | $0 | |
| (+) Improvement Non-Homesite Value: | + | $142,060 | |
| (+) Land Homesite Value: | + | $0 | |
| (+) Land Non-Homesite Value: | + | $36,560 | |
| (+) Curr Use (HS): | + | $0 | $0 |
| (+) Curr Use (NHS): | + | $0 | $0 |
| | | -------------------------- | |
| (=) Market Value: | = | $178,620 | |
| (–) Productivity Loss: | – | $0 | |
| | | -------------------------- | |
| (=) Subtotal: | = | $178,620 | |
| (+) Senior Appraised Value: | + | $0 | |
| (+) Non-Senior Appraised Value: | + | $178,620 | |
| | | -------------------------- | |
| (=) Total Appraised Value: | = | $178,620 | |
| (–) Senior Exemption Loss: | – | $0 | |
| (–) Exemption Loss: | – | $0 | |
| | | -------------------------- | |
| (=) Taxable Value: | = | $178,620 | |
Taxing Jurisdiction
| Owner: | DAVIS TERA | | |
| % Ownership: | 100.0000000000% | | |
| Total Value: | $178,620 | | |
| Tax Area: | 1 - OL-140-F |
| CERFD | CURRENT EXPENSE REFUND 010 | 0.0000000000 | $178,620 | $178,620 | $0.00 | | |
| CURREXP | CURRENT EXPENSE 010 | 1.0175366760 | $178,620 | $178,620 | $181.75 | | |
| HUMNSERV | HUMAN SERVICES 119 | 0.0250000000 | $178,620 | $178,620 | $4.47 | | |
| SLDREL | SOLDIERS RELIEF 121 | 0.0155990005 | $178,620 | $178,620 | $2.79 | | |
| EMERGSER | EMS 147 | 0.3792580840 | $178,620 | $178,620 | $67.74 | | |
| EMSRFD | EMS REFUND 147 | 0.0000000000 | $178,620 | $178,620 | $0.00 | | |
| PORTRFD | PORT REFUND 640 | 0.0000000000 | $178,620 | $178,620 | $0.00 | | |
| PORTWWGEN | PORT OF WW 640 | 0.2460186015 | $178,620 | $178,620 | $43.94 | | |
| SD140BOND | SD #140 BOND 764 | 0.8342371393 | $178,620 | $178,620 | $149.01 | | |
| SD140GEN | SD #140 GENERAL 760 | 2.0646500647 | $178,620 | $178,620 | $368.79 | | |
| ST2 | STATE SCHOOL PART 2 600 | 0.8131451643 | $178,620 | $178,620 | $145.24 | | |
| STATESCHL | STATE SCHOOL 600 | 1.5158548041 | $178,620 | $178,620 | $270.76 | | |
| STREFUND | STATE REFUND LEVY 603 | 0.0000000000 | $178,620 | $178,620 | $0.00 | | |
| CWWBOND | C OF WW BOND 643 | 0.2760494372 | $178,620 | $178,620 | $49.31 | | |
| CWWGEN | CITY OF WW 631 | 1.6100204973 | $178,620 | $178,620 | $287.58 | | |
| CWWRFD | CITY OF WALLA WALLA REFUND 631 | 0.0000000000 | $178,620 | $178,620 | $0.00 | | |
| | Total Tax Rate: | 8.7973694689 | | | | | |
| | | | | Taxes w/Current Exemptions: | $1,571.38 | | |
| | | | | Taxes w/o Exemptions: | $1,571.38 | | |
Improvement / Building
| Improvement #1: | RESIDENTIAL | State Code: | 11 | 960.0 sqft | Value: | $142,060 |
| Exterior Wall: | SIDING | Heating/Cooling: | FORCED AIR | | Number of Bathrooms: | 1 | Number of Bedrooms: | 2 | | Plumbing: | 7 | Roof Covering: | COMP SHINGLE |
|
| | Type | Description | Class CD | Sub Class CD | Year Built | Area |
| | MA | Main Area | 1 | 25 | 1923 | 960.0 |
| | SI1 | SITE IMPROVEMENT | 1 | 25 | 1923 | 1.0 |
| | BASE | BASEMENT | 1 | 25 | 1923 | 768.0 |
| | OPS | OPEN PORCH W/STEPS | 1 | 25 | 1923 | 50.0 |
Sketch
Property Image
Land
| 1 | RES 1 | Converted: Residential | 0.1343 | 5850.00 | 0.00 | 0.00 | 1.00 | $36,560 | $0 |
Roll Value History
| 2026 | N/A | N/A | N/A | N/A | N/A |
| 2025 | $218,960 | $58,500 | $0 | $277,460 | $277,460 |
| 2024 | $208,530 | $58,500 | $0 | $267,030 | $267,030 |
| 2023 | $142,060 | $36,560 | $0 | $178,620 | $178,620 |
| 2022 | $142,060 | $36,560 | $0 | $178,620 | $178,620 |
| 2021 | $109,280 | $36,560 | $0 | $145,840 | $145,840 |
| 2020 | $54,640 | $36,560 | $0 | $91,200 | $91,200 |
| 2019 | $54,640 | $36,560 | $0 | $91,200 | $91,200 |
| 2018 | $54,640 | $36,560 | $0 | $91,200 | $91,200 |
| 2017 | $55,770 | $23,400 | $0 | $79,170 | $79,170 |
| 2016 | $50,700 | $23,400 | $0 | $74,100 | $74,100 |
| 2015 | $50,700 | $23,400 | $0 | $74,100 | $74,100 |
| 2014 | $50,700 | $23,400 | $0 | $74,100 | $74,100 |
| 2013 | $50,700 | $23,400 | $0 | $74,100 | $74,100 |
| 2012 | $50,000 | $23,400 | $0 | $0 | $0 |
| 2011 | $50,000 | $23,400 | $0 | $0 | $0 |
| 2010 | $50,000 | $23,400 | $0 | $0 | $0 |
| 2009 | $58,100 | $23,400 | $0 | $0 | $0 |
| 2008 | $44,500 | $23,400 | $0 | $0 | $0 |
| 2007 | $44,500 | $23,400 | $0 | $0 | $0 |
Deed and Sales History
| 1 | 01/20/2011 | QCD | QUIT CLAIM DEED | SPRYS, TERA L (NKA TERA DAVIS) | DAVIS, TERA | | | | 119623 | 2011-00634 |
| 2 | 03/09/2009 | WARRANTY D | WARRANTY DEED | "SPRYS, ANDREW" | | | | | 116439 | 2009-02269 |
| 3 | 02/27/2009 | WARRANTY D | WARRANTY DEED | SPRYS, ANDREW | SPRYS TERA L | | | | 0 | CC #08-3-00307-2 |
| 4 | 02/28/2006 | WARRANTY D | WARRANTY DEED | US BANK NATIONAL ASSOCIATION | SPRYS, ANDREW & TERA | | | $69,900.00 | 109734 | 2006-02264 |
| 5 | 02/06/2006 | WARRANTY D | WARRANTY DEED | WHELAN, VICTORIA A | US BANK NATIONAL ASSOCIATION | | | | 109613 | 2006-01460 |
| 6 | 08/23/1999 | WARRANTY D | WARRANTY DEED | | | | | $64,500.00 | 93445 | 2889-909790 |
Payout Agreement
| No payout information available.. |