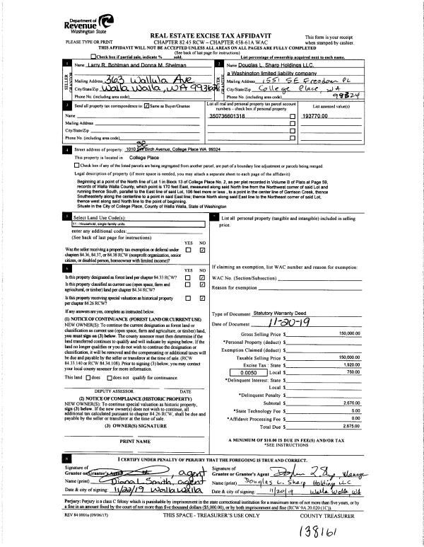
Property
Account |
| Property ID: | 15705 | Abbreviated Legal Description: | CP #2 N OF GARRISON CK PORTION LOT 1 BLK 13; LESS TAX 3 |
| Parcel Number: | 350736601318 | Agent Code: | |
| Type: | Real | | |
| Tax Area: | 75 - CP 250 | Land Use Code | 11 |
| Open Space: | N | DFL | N |
| Historic Property: | N | Remodel Property: | N |
| Multi-Family Redevelopment: | N | | |
| Township: | 7 | Section: | 36 |
| Range: | 35 |
Location |
| Address: | 1010 SE BIRCH AVE WA 99324 | Mapsco: | |
| Neighborhood: | A SFR | Map ID: | |
| Neighborhood CD: | 113011 |
Owner |
| Name: | DOUGLAS L SHARP HOLDINGS LLC | Owner ID: | 66332 |
| Mailing Address: | 1551 SE FREEDOM PL COLLEGE PLACE, WA 99324 | % Ownership: | 100.0000000000% |
| | | Exemptions: | |
Taxes and Assessment Details
Values
| (+) Improvement Homesite Value: | + | $0 | |
| (+) Improvement Non-Homesite Value: | + | $103,520 | |
| (+) Land Homesite Value: | + | $0 | |
| (+) Land Non-Homesite Value: | + | $64,370 | |
| (+) Curr Use (HS): | + | $0 | $0 |
| (+) Curr Use (NHS): | + | $0 | $0 |
| | | -------------------------- | |
| (=) Market Value: | = | $167,890 | |
| (–) Productivity Loss: | – | $0 | |
| | | -------------------------- | |
| (=) Subtotal: | = | $167,890 | |
| (+) Senior Appraised Value: | + | $0 | |
| (+) Non-Senior Appraised Value: | + | $167,890 | |
| | | -------------------------- | |
| (=) Total Appraised Value: | = | $167,890 | |
| (–) Senior Exemption Loss: | – | $0 | |
| (–) Exemption Loss: | – | $0 | |
| | | -------------------------- | |
| (=) Taxable Value: | = | $167,890 | |
Taxing Jurisdiction
| Owner: | DOUGLAS L SHARP HOLDINGS LLC | | |
| % Ownership: | 100.0000000000% | | |
| Total Value: | $167,890 | | |
| Tax Area: | 75 - CP 250 |
| CERFD | CURRENT EXPENSE REFUND 010 | 0.0000000000 | $167,890 | $167,890 | $0.00 | | |
| CURREXP | CURRENT EXPENSE 010 | 1.0175366760 | $167,890 | $167,890 | $170.83 | | |
| HUMNSERV | HUMAN SERVICES 119 | 0.0250000000 | $167,890 | $167,890 | $4.20 | | |
| SLDREL | SOLDIERS RELIEF 121 | 0.0155990005 | $167,890 | $167,890 | $2.62 | | |
| COLLPLBOND | C OF CP BOND 644 | 0.4374241808 | $167,890 | $167,890 | $73.44 | | |
| COLLPLGEN | CITY OF CP 632 | 1.4453819216 | $167,890 | $167,890 | $242.67 | | |
| EMERGSER | EMS 147 | 0.3792580840 | $167,890 | $167,890 | $63.67 | | |
| EMSRFD | EMS REFUND 147 | 0.0000000000 | $167,890 | $167,890 | $0.00 | | |
| RURALLIB | RURAL LIBRARY 623 | 0.3710609029 | $167,890 | $167,890 | $62.30 | | |
| PORTRFD | PORT REFUND 640 | 0.0000000000 | $167,890 | $167,890 | $0.00 | | |
| PORTWWGEN | PORT OF WW 640 | 0.2460186015 | $167,890 | $167,890 | $41.30 | | |
| SD250BOND | SD #250 BOND 773 | 1.4560608159 | $167,890 | $167,890 | $244.46 | | |
| SD250GEN | SD #250 GENERAL 770 | 2.3880724087 | $167,890 | $167,890 | $400.93 | | |
| ST2 | STATE SCHOOL PART 2 600 | 0.8131451643 | $167,890 | $167,890 | $136.52 | | |
| STATESCHL | STATE SCHOOL 600 | 1.5158548041 | $167,890 | $167,890 | $254.50 | | |
| STREFUND | STATE REFUND LEVY 603 | 0.0000000000 | $167,890 | $167,890 | $0.00 | | |
| | Total Tax Rate: | 10.1104125603 | | | | | |
| | | | | Taxes w/Current Exemptions: | $1,697.44 | | |
| | | | | Taxes w/o Exemptions: | $1,697.44 | | |
Improvement / Building
| Improvement #1: | RESIDENTIAL | State Code: | 11 | 1050.0 sqft | Value: | $103,520 |
| Exterior Wall: | SIDING | Heating/Cooling: | BASEBOARD ELECTRIC | | Number of Bathrooms: | 2 | Number of Bedrooms: | 2 | | Plumbing: | 10 | Roof Covering: | COMP SHINGLE |
|
| | Type | Description | Class CD | Sub Class CD | Year Built | Area |
| | MA | Main Area | 1 | 25 | 1942 | 1050.0 |
| | SI1 | SITE IMPROVEMENT | 1 | 25 | 1942 | 1.5 |
| | BASE | BASEMENT | 1 | 25 | 1942 | 247.0 |
| | BPF | BASEMENT -PARTITIONED FINISH | 1 | 25 | 1942 | 247.0 |
| | DTG | Detached Garage | 1 | 25 | 1942 | 400.0 |
| | S1F | Single One Story Fireplace | 1 | 25 | 1942 | 1.0 |
| | RPS | PORCH W/STEPS,ROOF | 1 | 25 | 1942 | 100.0 |
| | TOOL | TOOL SHED | 1 | 25 | 1942 | 200.0 |
| | TOOL | TOOL SHED | 1 | 25 | 1942 | 300.0 |
| | CPCG | CARPORT/ GABLE ROOF | 1 | 25 | 1942 | 462.0 |
Sketch
Property Image
Land
| 1 | RES 1 | Converted: Residential | 0.3544 | 15437.00 | 0.00 | 0.00 | 1.00 | $64,370 | $0 |
Roll Value History
| 2026 | N/A | N/A | N/A | N/A | N/A |
| 2025 | $103,520 | $97,410 | $0 | $200,930 | $200,930 |
| 2024 | $103,520 | $64,370 | $0 | $167,890 | $167,890 |
| 2023 | $103,520 | $64,370 | $0 | $167,890 | $167,890 |
| 2022 | $103,520 | $64,370 | $0 | $167,890 | $167,890 |
| 2021 | $103,520 | $64,370 | $0 | $167,890 | $167,890 |
| 2020 | $129,400 | $64,370 | $0 | $193,770 | $193,770 |
| 2019 | $142,070 | $51,700 | $0 | $193,770 | $193,770 |
| 2018 | $109,290 | $51,700 | $0 | $160,990 | $160,990 |
| 2017 | $95,030 | $51,700 | $0 | $146,730 | $146,730 |
| 2016 | $82,640 | $51,700 | $0 | $134,340 | $134,340 |
| 2015 | $78,700 | $51,700 | $0 | $130,400 | $130,400 |
| 2014 | $78,700 | $51,700 | $0 | $130,400 | $130,400 |
| 2013 | $78,700 | $51,700 | $0 | $130,400 | $130,400 |
| 2012 | $93,200 | $51,700 | $0 | $0 | $0 |
| 2011 | $93,200 | $51,700 | $0 | $0 | $0 |
| 2010 | $86,300 | $51,700 | $0 | $0 | $0 |
| 2009 | $101,600 | $51,700 | $0 | $0 | $0 |
| 2008 | $58,700 | $29,600 | $0 | $0 | $0 |
| 2007 | $58,700 | $29,600 | $0 | $0 | $0 |
Deed and Sales History
| 1 | 11/26/2019 | SWD | STATUTORY WARRANTY DEED | BOHLMAN LARRY R | DOUGLAS L SHARP HOLDINGS LLC | | | $150,000.00 | 138161 | 2019-09817 |
| 2 | 01/27/2006 | QCD | QUIT CLAIM DEED | BOHLMAN, RAY A & ALTA M | BOHLMAN, LARRY R | | | | 109561 | 2006-01081 |
| 3 | 07/05/1978 | WARRANTY D | WARRANTY DEED | | | | | $36,500.00 | 0 | 1488-501138 |
Payout Agreement
| No payout information available.. |