Property
Account |
| Property ID: | 15694 | Abbreviated Legal Description: | NIEMEYERS EASTVIEW LOT 6 BLK 1 |
| Parcel Number: | 360732660106 | Agent Code: | |
| Type: | Real | | |
| Tax Area: | 1 - OL-140-F | Land Use Code | 11 |
| Open Space: | N | DFL | N |
| Historic Property: | N | Remodel Property: | N |
| Multi-Family Redevelopment: | N | | |
| Township: | 7 | Section: | 32 |
| Range: | 36 |
Location |
| Address: | 53 IMPERIAL ST WA 99362 | Mapsco: | |
| Neighborhood: | A Res | Map ID: | |
| Neighborhood CD: | 613011 |
Owner |
| Name: | ASHBECK JERAD P & HEATHER R | Owner ID: | 57508 |
| Mailing Address: | 53 W IMPERIAL ST WALLA WALLA, WA 99362 | % Ownership: | 100.0000000000% |
| | | Exemptions: | |
Taxes and Assessment Details
Property Tax Information as of
02/21/2026
Click on "Statement Details" to expand or collapse a tax statement.
* Please enter a valid date ** Please enter a valid date *
Statement Details |
| | TOTAL: | $0.00 | $0.00 | $0.00 | $0.00 | $0.00 | $0.00 |
|
| | $0.00 | $0.00 | $0.00 | $0.00 | $0.00 | $0.00 |
Values
| (+) Improvement Homesite Value: | + | $0 | |
| (+) Improvement Non-Homesite Value: | + | $338,230 | |
| (+) Land Homesite Value: | + | $0 | |
| (+) Land Non-Homesite Value: | + | $91,570 | |
| (+) Curr Use (HS): | + | $0 | $0 |
| (+) Curr Use (NHS): | + | $0 | $0 |
| | | -------------------------- | |
| (=) Market Value: | = | $429,800 | |
| (–) Productivity Loss: | – | $0 | |
| | | -------------------------- | |
| (=) Subtotal: | = | $429,800 | |
| (+) Senior Appraised Value: | + | $0 | |
| (+) Non-Senior Appraised Value: | + | $429,800 | |
| | | -------------------------- | |
| (=) Total Appraised Value: | = | $429,800 | |
| (–) Senior Exemption Loss: | – | $0 | |
| (–) Exemption Loss: | – | $0 | |
| | | -------------------------- | |
| (=) Taxable Value: | = | $429,800 | |
Taxing Jurisdiction
| Owner: | ASHBECK JERAD P & HEATHER R | | |
| % Ownership: | 100.0000000000% | | |
| Total Value: | $429,800 | | |
| Tax Area: | 1 - OL-140-F |
| CERFD | CURRENT EXPENSE REFUND 010 | 0.0000000000 | $429,800 | $429,800 | $0.00 | | |
| CURREXP | CURRENT EXPENSE 010 | 1.0175366760 | $429,800 | $429,800 | $437.34 | | |
| HUMNSERV | HUMAN SERVICES 119 | 0.0250000000 | $429,800 | $429,800 | $10.75 | | |
| SLDREL | SOLDIERS RELIEF 121 | 0.0155990005 | $429,800 | $429,800 | $6.70 | | |
| EMERGSER | EMS 147 | 0.3792580840 | $429,800 | $429,800 | $163.01 | | |
| EMSRFD | EMS REFUND 147 | 0.0000000000 | $429,800 | $429,800 | $0.00 | | |
| PORTRFD | PORT REFUND 640 | 0.0000000000 | $429,800 | $429,800 | $0.00 | | |
| PORTWWGEN | PORT OF WW 640 | 0.2460186015 | $429,800 | $429,800 | $105.74 | | |
| SD140BOND | SD #140 BOND 764 | 0.8342371393 | $429,800 | $429,800 | $358.56 | | |
| SD140GEN | SD #140 GENERAL 760 | 2.0646500647 | $429,800 | $429,800 | $887.39 | | |
| ST2 | STATE SCHOOL PART 2 600 | 0.8131451643 | $429,800 | $429,800 | $349.49 | | |
| STATESCHL | STATE SCHOOL 600 | 1.5158548041 | $429,800 | $429,800 | $651.51 | | |
| STREFUND | STATE REFUND LEVY 603 | 0.0000000000 | $429,800 | $429,800 | $0.00 | | |
| CWWBOND | C OF WW BOND 643 | 0.2760494372 | $429,800 | $429,800 | $118.65 | | |
| CWWGEN | CITY OF WW 631 | 1.6100204973 | $429,800 | $429,800 | $691.99 | | |
| CWWRFD | CITY OF WALLA WALLA REFUND 631 | 0.0000000000 | $429,800 | $429,800 | $0.00 | | |
| | Total Tax Rate: | 8.7973694689 | | | | | |
| | | | | Taxes w/Current Exemptions: | $3,781.13 | | |
| | | | | Taxes w/o Exemptions: | $3,781.13 | | |
Improvement / Building
| Improvement #1: | RESIDENTIAL | State Code: | 11 | 1520.0 sqft | Value: | $338,230 |
| Exterior Wall: | PLYWOOD | Heating/Cooling: | HEAT PUMP | | Number of Bathrooms: | 3 | Number of Bedrooms: | 4 | | Plumbing: | 12 | Roof Covering: | COMP SHINGLE |
|
| | Type | Description | Class CD | Sub Class CD | Year Built | Area |
| | MA | Main Area | 1 | 30 | 1977 | 1520.0 |
| | SI1 | SITE IMPROVEMENT | 1 | 30 | 1977 | 2.0 |
| | BASE | BASEMENT | 1 | 30 | 1977 | 1520.0 |
| | BRF | BASEMENT - REC FINISH | 1 | 30 | 1977 | 760.0 |
| | ATG | Attached Garage | 1 | 30 | 1977 | 444.0 |
| | RPO | OPEN PORCH W/ROOF | 1 | 30 | 1977 | 16.0 |
| | CPC | COVERED CARPORT/PATIO | 1 | 30 | 1977 | 264.0 |
| | S1F | Single One Story Fireplace | 1 | 30 | 1977 | 1.0 |
Sketch
Property Image
Land
| 1 | RES 1 | Converted: Residential | 0.2773 | 12080.00 | 0.00 | 0.00 | 1.00 | $91,570 | $0 |
Roll Value History
| 2026 | N/A | N/A | N/A | N/A | N/A |
| 2025 | $346,230 | $111,980 | $0 | $458,210 | $458,210 |
| 2024 | $338,230 | $91,570 | $0 | $429,800 | $429,800 |
| 2023 | $338,230 | $91,570 | $0 | $429,800 | $429,800 |
| 2022 | $281,860 | $73,570 | $0 | $355,430 | $355,430 |
| 2021 | $256,240 | $73,570 | $0 | $329,810 | $329,810 |
| 2020 | $213,530 | $73,570 | $0 | $287,100 | $287,100 |
| 2019 | $213,530 | $73,570 | $0 | $287,100 | $287,100 |
| 2018 | $199,650 | $48,900 | $0 | $248,550 | $248,550 |
| 2017 | $199,650 | $48,900 | $0 | $248,550 | $248,550 |
| 2016 | $181,500 | $48,900 | $0 | $230,400 | $230,400 |
| 2015 | $181,500 | $48,900 | $0 | $230,400 | $230,400 |
| 2014 | $181,500 | $48,900 | $0 | $230,400 | $230,400 |
| 2013 | $181,500 | $48,900 | $0 | $230,400 | $230,400 |
| 2012 | $181,500 | $48,900 | $0 | $0 | $0 |
| 2011 | $181,500 | $48,900 | $0 | $0 | $0 |
| 2010 | $170,500 | $48,900 | $0 | $0 | $0 |
| 2009 | $194,900 | $48,900 | $0 | $0 | $0 |
| 2008 | $194,900 | $48,900 | $0 | $0 | $0 |
| 2007 | $148,100 | $26,400 | $0 | $0 | $0 |
Deed and Sales History
| 1 | 09/14/2015 | QCD | QUIT CLAIM DEED | ASHBECK JERAD P & HEATHER R | ASHBECK JERAD P & HEATHER R | | | $0.00 | 128855 | 2015-08209 |
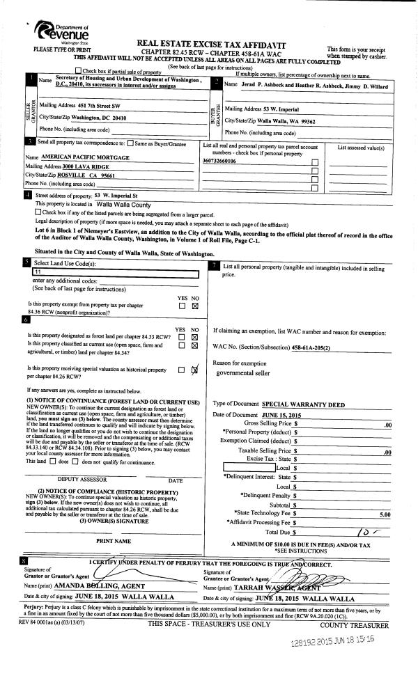
| 2 | 06/15/2015 | WARRANTY D | WARRANTY DEED | SECRETARY OF HOUSING & URBAN DEV | ASHBECK JERAD P & HEATHER R | | | | 128192 | 2015-05136 |
| 3 | 01/08/2015 | WARRANTY D | WARRANTY DEED | OCWEN LOAN SERVICING LLC | SECRETARY OF HOUSING & URBAN DEV | | | $0.00 | 127385 | 2015-01017 |
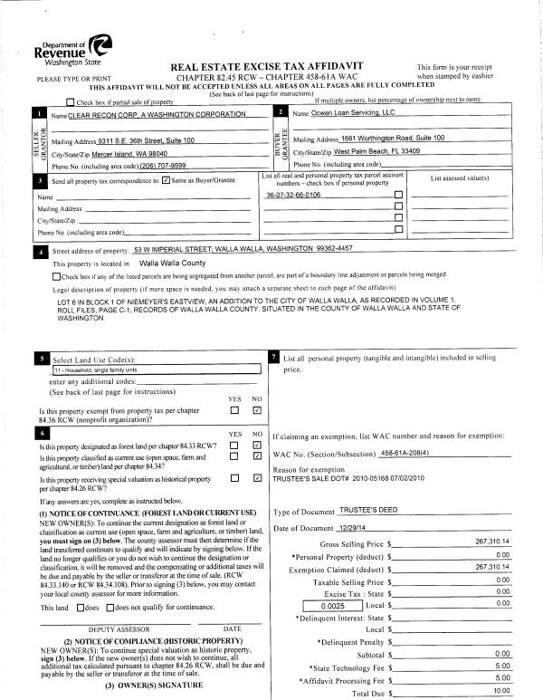
| 4 | 01/28/2015 | TRUSTEES D | TRUSTEE'S DEED | FLAA JEFFREY D & JULIA A | OCWEN LOAN SERVICING LLC | | | $267,310.00 | 127331 | 2015-00690 |
| 5 | 01/27/2006 | WARRANTY D | WARRANTY DEED | GREENVILLE, RICHARD | FLAA, JEFFREY D & JULIA A | | | $244,900.00 | 109553 | 2006-01067 |
| 6 | 12/30/1981 | WARRANTY D | WARRANTY DEED | | | | | $78,500.00 | 0 | 1318-109927 |
Payout Agreement
| No payout information available.. |