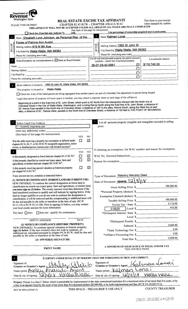
Property
Account |
| Property ID: | 15645 | Abbreviated Legal Description: | 29-7-36 TAX 177B |
| Parcel Number: | 360729420061 | Agent Code: | |
| Type: | Real | | |
| Tax Area: | 1 - OL-140-F | Land Use Code | 11 |
| Open Space: | N | DFL | N |
| Historic Property: | N | Remodel Property: | N |
| Multi-Family Redevelopment: | N | | |
| Township: | 7 | Section: | 29 |
| Range: | 36 |
Location |
| Address: | 1065 ST JOHN ST WA 99362 | Mapsco: | |
| Neighborhood: | A Res | Map ID: | |
| Neighborhood CD: | 613011 |
Owner |
| Name: | OLSON SHARON R | Owner ID: | 67290 |
| Mailing Address: | 1065 ST JOHN ST WALLA WALLA, WA 99362 | % Ownership: | 100.0000000000% |
| | | Exemptions: | |
Taxes and Assessment Details
Values
| (+) Improvement Homesite Value: | + | $0 | |
| (+) Improvement Non-Homesite Value: | + | $213,210 | |
| (+) Land Homesite Value: | + | $0 | |
| (+) Land Non-Homesite Value: | + | $54,000 | |
| (+) Curr Use (HS): | + | $0 | $0 |
| (+) Curr Use (NHS): | + | $0 | $0 |
| | | -------------------------- | |
| (=) Market Value: | = | $267,210 | |
| (–) Productivity Loss: | – | $0 | |
| | | -------------------------- | |
| (=) Subtotal: | = | $267,210 | |
| (+) Senior Appraised Value: | + | $0 | |
| (+) Non-Senior Appraised Value: | + | $267,210 | |
| | | -------------------------- | |
| (=) Total Appraised Value: | = | $267,210 | |
| (–) Senior Exemption Loss: | – | $0 | |
| (–) Exemption Loss: | – | $0 | |
| | | -------------------------- | |
| (=) Taxable Value: | = | $267,210 | |
Taxing Jurisdiction
| Owner: | OLSON SHARON R | | |
| % Ownership: | 100.0000000000% | | |
| Total Value: | $267,210 | | |
| Tax Area: | 1 - OL-140-F |
| CERFD | CURRENT EXPENSE REFUND 010 | 0.0000000000 | $267,210 | $267,210 | $0.00 | | |
| CURREXP | CURRENT EXPENSE 010 | 1.0175366760 | $267,210 | $267,210 | $271.90 | | |
| HUMNSERV | HUMAN SERVICES 119 | 0.0250000000 | $267,210 | $267,210 | $6.68 | | |
| SLDREL | SOLDIERS RELIEF 121 | 0.0155990005 | $267,210 | $267,210 | $4.17 | | |
| EMERGSER | EMS 147 | 0.3792580840 | $267,210 | $267,210 | $101.34 | | |
| EMSRFD | EMS REFUND 147 | 0.0000000000 | $267,210 | $267,210 | $0.00 | | |
| PORTRFD | PORT REFUND 640 | 0.0000000000 | $267,210 | $267,210 | $0.00 | | |
| PORTWWGEN | PORT OF WW 640 | 0.2460186015 | $267,210 | $267,210 | $65.74 | | |
| SD140BOND | SD #140 BOND 764 | 0.8342371393 | $267,210 | $267,210 | $222.92 | | |
| SD140GEN | SD #140 GENERAL 760 | 2.0646500647 | $267,210 | $267,210 | $551.70 | | |
| ST2 | STATE SCHOOL PART 2 600 | 0.8131451643 | $267,210 | $267,210 | $217.28 | | |
| STATESCHL | STATE SCHOOL 600 | 1.5158548041 | $267,210 | $267,210 | $405.05 | | |
| STREFUND | STATE REFUND LEVY 603 | 0.0000000000 | $267,210 | $267,210 | $0.00 | | |
| CWWBOND | C OF WW BOND 643 | 0.2760494372 | $267,210 | $267,210 | $73.76 | | |
| CWWGEN | CITY OF WW 631 | 1.6100204973 | $267,210 | $267,210 | $430.21 | | |
| CWWRFD | CITY OF WALLA WALLA REFUND 631 | 0.0000000000 | $267,210 | $267,210 | $0.00 | | |
| | Total Tax Rate: | 8.7973694689 | | | | | |
| | | | | Taxes w/Current Exemptions: | $2,350.75 | | |
| | | | | Taxes w/o Exemptions: | $2,350.75 | | |
Improvement / Building
| Improvement #1: | RESIDENTIAL | State Code: | 11 | 816.0 sqft | Value: | $213,210 |
| Exterior Wall: | METAL/STEEL | Heating/Cooling: | WARM & COOLED AIR | | Number of Bathrooms: | 1 | Number of Bedrooms: | 2 | | Plumbing: | 7 | Roof Covering: | COMP SHINGLE |
|
| | Type | Description | Class CD | Sub Class CD | Year Built | Area |
| | MA | Main Area | 1 | 25 | 1948 | 816.0 |
| | SI1 | SITE IMPROVEMENT | 1 | 25 | 1948 | 1.0 |
| | DTG | Detached Garage | 1 | 25 | 1948 | 267.0 |
| | RPS | PORCH W/STEPS,ROOF | 1 | 25 | 1948 | 27.0 |
| | CPCS | CARPORT/SHED OR FLAT ROOF | 1 | 25 | 1948 | 200.0 |
Sketch
Property Image
Land
| 1 | RES 1 | Converted: Residential | 0.1377 | 6000.00 | 0.00 | 0.00 | 1.00 | $54,000 | $0 |
Roll Value History
| 2026 | N/A | N/A | N/A | N/A | N/A |
| 2025 | $197,100 | $66,000 | $0 | $263,100 | $263,100 |
| 2024 | $213,210 | $54,000 | $0 | $267,210 | $267,210 |
| 2023 | $213,210 | $54,000 | $0 | $267,210 | $267,210 |
| 2022 | $203,050 | $43,500 | $0 | $246,550 | $246,550 |
| 2021 | $150,410 | $43,500 | $0 | $193,910 | $193,910 |
| 2020 | $115,700 | $43,500 | $0 | $159,200 | $159,200 |
| 2019 | $115,700 | $43,500 | $0 | $159,200 | $159,200 |
| 2018 | $97,490 | $36,000 | $0 | $133,490 | $78,850 |
| 2017 | $92,850 | $36,000 | $0 | $128,850 | $78,850 |
| 2016 | $80,740 | $36,000 | $0 | $116,740 | $116,740 |
| 2015 | $80,740 | $36,000 | $0 | $116,740 | $116,740 |
| 2014 | $73,400 | $36,000 | $0 | $109,400 | $109,400 |
| 2013 | $73,400 | $36,000 | $0 | $109,400 | $109,400 |
| 2012 | $70,600 | $36,000 | $0 | $0 | $0 |
| 2011 | $70,600 | $36,000 | $0 | $0 | $0 |
| 2010 | $70,600 | $36,000 | $0 | $0 | $0 |
| 2009 | $82,400 | $36,000 | $0 | $0 | $0 |
| 2008 | $82,400 | $36,000 | $0 | $0 | $0 |
| 2007 | $55,300 | $12,000 | $0 | $0 | $0 |
Deed and Sales History
| 1 | 06/11/2020 | SWP | Special Warranty Deed | LONAI KALMAN ESTATE OF | OLSON SHARON R | | | $211,500.00 | 139256 | 2020-05227 |
| 2 | 12/04/2018 | SWD | STATUTORY WARRANTY DEED | AUSTIN PATRICIA ESTATE OF | LONAI KALMAN ESTATE OF | | | $165,000.00 | 136031 | 2018-10016 |
| 3 | 07/02/2013 | WARRANTY D | WARRANTY DEED | GEISSEL, TYSON G | AUSTIN, PATRICIA | | | $121,500.00 | 124230 | 2013-06612 |
| 4 | 12/16/2005 | WARRANTY D | WARRANTY DEED | BASTA, JOSEPH R ESTATE OF | GEISSEL, TYSON G | | | $117,000.00 | 109262 | 2005-15750 |
| 5 | 01/01/1956 | WARRANTY D | WARRANTY DEED | | | | | $0.00 | 0 | 2770-586195 |
Payout Agreement
| No payout information available.. |