| 1 | 07/10/2025 | SWD | STATUTORY WARRANTY DEED | ANDREWS BRIAN H & AMRAH S | KLINEFELTER KATIE & KALEM | | | $425,000.00 | 149647 | 2025-03913 |
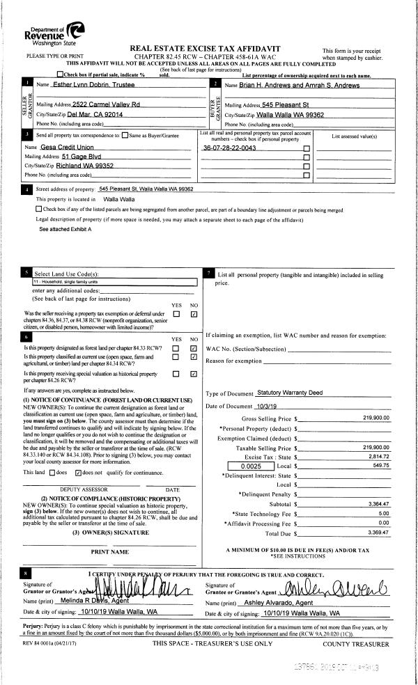
| 2 | 10/11/2019 | SWD | STATUTORY WARRANTY DEED | DOBRIN ANTHONY G & ESTHER L TRUSTEES OF THE | ANDREWS BRIAN H & AMRAH S | | | $219,900.00 | 137861 | 2019-08138 |
| 3 | 01/10/2006 | QCD | QUIT CLAIM DEED | DOBRIN, ANTHONY G & ESTHER L | DOBRIN, ANTHONY G & ESTHER L~T | | | | 109439 | 2006-00349 |
| 4 | 12/31/2003 | WARRANTY D | WARRANTY DEED | MC CORMMACH, ALBERT L | DOBRIN, ANTHONY G & ESTHER L | | | $107,000.00 | 103847 | 2003-19618 |
| 5 | 11/14/1988 | WARRANTY D | WARRANTY DEED | | | | | $39,000.00 | 0 | 1738-807574 |