Property
Account |
| Property ID: | 15631 | Abbreviated Legal Description: | BROWNS N 62.71' OF LOT 22 BLK 2 LESS W 6' |
| Parcel Number: | 360721520222 | Agent Code: | |
| Type: | Real | | |
| Tax Area: | 1 - OL-140-F | Land Use Code | 91 |
| Open Space: | N | DFL | N |
| Historic Property: | N | Remodel Property: | N |
| Multi-Family Redevelopment: | N | | |
| Township: | 7 | Section: | 21 |
| Range: | 36 |
Location |
| Address: | WA 99362 | Mapsco: | |
| Neighborhood: | A-SFR Contig | Map ID: | |
| Neighborhood CD: | 513097 |
Owner |
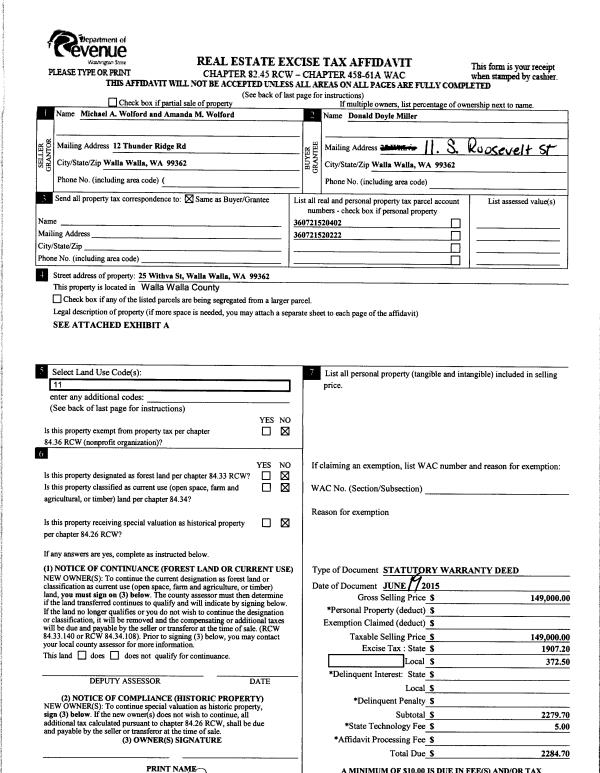
| Name: | MILLER DONALD D | Owner ID: | 49395 |
| Mailing Address: | 11 S ROOSEVELT ST WALLA WALLA, WA 99362 | % Ownership: | 100.0000000000% |
| | | Exemptions: | |
Taxes and Assessment Details
Values
| (+) Improvement Homesite Value: | + | $0 | |
| (+) Improvement Non-Homesite Value: | + | $0 | |
| (+) Land Homesite Value: | + | $0 | |
| (+) Land Non-Homesite Value: | + | $9,790 | |
| (+) Curr Use (HS): | + | $0 | $0 |
| (+) Curr Use (NHS): | + | $0 | $0 |
| | | -------------------------- | |
| (=) Market Value: | = | $9,790 | |
| (–) Productivity Loss: | – | $0 | |
| | | -------------------------- | |
| (=) Subtotal: | = | $9,790 | |
| (+) Senior Appraised Value: | + | $0 | |
| (+) Non-Senior Appraised Value: | + | $9,790 | |
| | | -------------------------- | |
| (=) Total Appraised Value: | = | $9,790 | |
| (–) Senior Exemption Loss: | – | $0 | |
| (–) Exemption Loss: | – | $0 | |
| | | -------------------------- | |
| (=) Taxable Value: | = | $9,790 | |
Taxing Jurisdiction
| Owner: | MILLER DONALD D | | |
| % Ownership: | 100.0000000000% | | |
| Total Value: | $9,790 | | |
| Tax Area: | 1 - OL-140-F |
| CERFD | CURRENT EXPENSE REFUND 010 | 0.0000000000 | $9,790 | $9,790 | $0.00 | | |
| CURREXP | CURRENT EXPENSE 010 | 1.0175366760 | $9,790 | $9,790 | $9.96 | | |
| HUMNSERV | HUMAN SERVICES 119 | 0.0250000000 | $9,790 | $9,790 | $0.24 | | |
| SLDREL | SOLDIERS RELIEF 121 | 0.0155990005 | $9,790 | $9,790 | $0.15 | | |
| EMERGSER | EMS 147 | 0.3792580840 | $9,790 | $9,790 | $3.71 | | |
| EMSRFD | EMS REFUND 147 | 0.0000000000 | $9,790 | $9,790 | $0.00 | | |
| PORTRFD | PORT REFUND 640 | 0.0000000000 | $9,790 | $9,790 | $0.00 | | |
| PORTWWGEN | PORT OF WW 640 | 0.2460186015 | $9,790 | $9,790 | $2.41 | | |
| SD140BOND | SD #140 BOND 764 | 0.8342371393 | $9,790 | $9,790 | $8.17 | | |
| SD140GEN | SD #140 GENERAL 760 | 2.0646500647 | $9,790 | $9,790 | $20.21 | | |
| ST2 | STATE SCHOOL PART 2 600 | 0.8131451643 | $9,790 | $9,790 | $7.96 | | |
| STATESCHL | STATE SCHOOL 600 | 1.5158548041 | $9,790 | $9,790 | $14.84 | | |
| STREFUND | STATE REFUND LEVY 603 | 0.0000000000 | $9,790 | $9,790 | $0.00 | | |
| CWWBOND | C OF WW BOND 643 | 0.2760494372 | $9,790 | $9,790 | $2.70 | | |
| CWWGEN | CITY OF WW 631 | 1.6100204973 | $9,790 | $9,790 | $15.76 | | |
| CWWRFD | CITY OF WALLA WALLA REFUND 631 | 0.0000000000 | $9,790 | $9,790 | $0.00 | | |
| | Total Tax Rate: | 8.7973694689 | | | | | |
| | | | | Taxes w/Current Exemptions: | $86.11 | | |
| | | | | Taxes w/o Exemptions: | $86.11 | | |
Improvement / Building
Sketch
| No sketches available for this property. |
Property Image
Land
| 1 | RES 1 | Converted: Residential | 0.0360 | 1567.00 | 0.00 | 0.00 | 1.00 | $9,790 | $0 |
Roll Value History
| 2026 | N/A | N/A | N/A | N/A | N/A |
| 2025 | $0 | $15,670 | $0 | $15,670 | $15,670 |
| 2024 | $0 | $15,670 | $0 | $15,670 | $15,670 |
| 2023 | $0 | $9,790 | $0 | $9,790 | $9,790 |
| 2022 | $0 | $9,790 | $0 | $9,790 | $9,790 |
| 2021 | $0 | $9,790 | $0 | $9,790 | $9,790 |
| 2020 | $0 | $9,790 | $0 | $9,790 | $9,790 |
| 2019 | $0 | $9,790 | $0 | $9,790 | $9,790 |
| 2018 | $0 | $9,790 | $0 | $9,790 | $9,790 |
| 2017 | $0 | $6,300 | $0 | $6,300 | $6,300 |
| 2016 | $0 | $6,300 | $0 | $6,300 | $6,300 |
| 2015 | $0 | $6,300 | $0 | $6,300 | $6,300 |
| 2014 | $0 | $6,300 | $0 | $6,300 | $6,300 |
| 2013 | $0 | $6,300 | $0 | $6,300 | $6,300 |
| 2012 | $0 | $6,300 | $0 | $0 | $0 |
| 2011 | $0 | $6,300 | $0 | $0 | $0 |
| 2010 | $0 | $6,300 | $0 | $0 | $0 |
| 2009 | $0 | $6,300 | $0 | $0 | $0 |
| 2008 | $0 | $6,300 | $0 | $0 | $0 |
| 2007 | $0 | $6,300 | $0 | $0 | $0 |
Deed and Sales History
| 1 | 06/22/2015 | SWD | STATUTORY WARRANTY DEED | WOLFORD MICHAEL A & AMANDA M | MILLER DONALD D | | 2-PARCELS | $149,000.00 | 128209 | 2015-05211 |
|   | |
| 2 | 12/05/2005 | WARRANTY D | WARRANTY DEED | BOGGS, WILLIAM H | WOLFORD MICHAEL A & AMANDA M | | | $123,000.00 | 109173 | 2005-15185 |
|   | |
| 3 | 12/03/2004 | WARRANTY D | WARRANTY DEED | MAHERAS, ANDY | BOGGS WILLIAM H | | | $95,000.00 | 106326 | 2004-13912 |
|   | |
| 4 | 09/03/1998 | WARRANTY D | WARRANTY DEED | | | | | | 91178 | 2729-810182 |
Payout Agreement
| No payout information available.. |