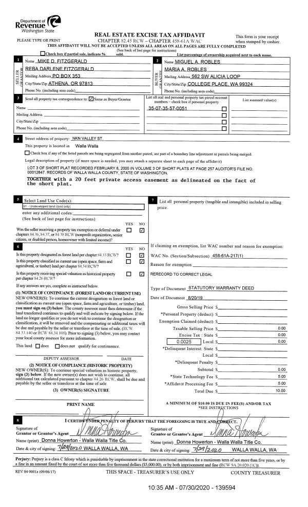
| 1 | 07/30/2020 | WARRANTY D | WARRANTY DEED | FITZGERALD MIKE D & REBA DARLENE | ROBLES MIGUEL A & MARIA A | | | | 139594 | 2020-07351 |
| 2 | 08/21/2019 | SWD | STATUTORY WARRANTY DEED | FITZGERALD MIKE D & REBA DARLENE | ROBLES MIGUEL A & MARIA A | | | $140,000.00 | 137533 | 2019-06406 |
| 3 | 01/10/2006 | WARRANTY D | WARRANTY DEED | MORTON, GREGORY & DEBRA | FITZGERALD, MIKE D & REBA DARL | | | | 109412 | 2006-00308 |
| 4 | 01/05/2006 | WARRANTY D | WARRANTY DEED | MORTON, GREGORY L & DEBRA L | FITZGERALD, MIKE D & REBA DARL | | | $85,000.00 | 109412 | 2006-00154 |
| 5 | 11/10/2004 | WARRANTY D | WARRANTY DEED | WATERBROOK, JOHN L | MORTON, GREGORY L & DEBRA L | | | $54,900.00 | 106159 | 2004-12972 |