Property
Account |
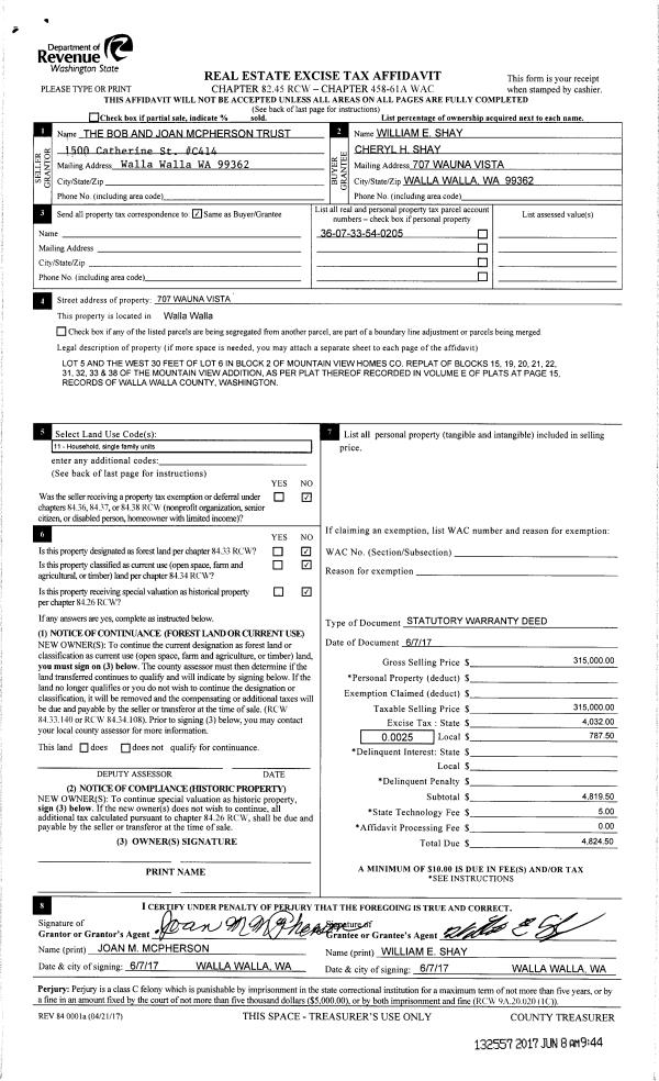
| Property ID: | 15592 | Abbreviated Legal Description: | MT VIEW REPLAT LOT 5 BLK 2; W 30' OF LOT 6 BLK 2 |
| Parcel Number: | 360733540205 | Agent Code: | |
| Type: | Real | | |
| Tax Area: | 1 - OL-140-F | Land Use Code | 11 |
| Open Space: | N | DFL | N |
| Historic Property: | N | Remodel Property: | N |
| Multi-Family Redevelopment: | N | | |
| Township: | 7 | Section: | 33 |
| Range: | 36 |
Location |
| Address: | 707 WAUNA VISTA DR WA 99362 | Mapsco: | |
| Neighborhood: | G Res | Map ID: | |
| Neighborhood CD: | 614011 |
Owner |
| Name: | SHAY WILLIAM E & CHERYL H | Owner ID: | 61041 |
| Mailing Address: | 707 WAUNA VISTA DR WALLA WALLA, WA 99362 | % Ownership: | 100.0000000000% |
| | | Exemptions: | |
Taxes and Assessment Details
Property Tax Information as of
02/21/2026
Click on "Statement Details" to expand or collapse a tax statement.
* Please enter a valid date ** Please enter a valid date *
Statement Details |
| | TOTAL: | $0.00 | $0.00 | $0.00 | $0.00 | $0.00 | $0.00 |
|
| | $0.00 | $0.00 | $0.00 | $0.00 | $0.00 | $0.00 |
Values
| (+) Improvement Homesite Value: | + | $0 | |
| (+) Improvement Non-Homesite Value: | + | $357,700 | |
| (+) Land Homesite Value: | + | $0 | |
| (+) Land Non-Homesite Value: | + | $123,970 | |
| (+) Curr Use (HS): | + | $0 | $0 |
| (+) Curr Use (NHS): | + | $0 | $0 |
| | | -------------------------- | |
| (=) Market Value: | = | $481,670 | |
| (–) Productivity Loss: | – | $0 | |
| | | -------------------------- | |
| (=) Subtotal: | = | $481,670 | |
| (+) Senior Appraised Value: | + | $0 | |
| (+) Non-Senior Appraised Value: | + | $481,670 | |
| | | -------------------------- | |
| (=) Total Appraised Value: | = | $481,670 | |
| (–) Senior Exemption Loss: | – | $0 | |
| (–) Exemption Loss: | – | $0 | |
| | | -------------------------- | |
| (=) Taxable Value: | = | $481,670 | |
Taxing Jurisdiction
| Owner: | SHAY WILLIAM E & CHERYL H | | |
| % Ownership: | 100.0000000000% | | |
| Total Value: | $481,670 | | |
| Tax Area: | 1 - OL-140-F |
| CERFD | CURRENT EXPENSE REFUND 010 | 0.0000000000 | $481,670 | $481,670 | $0.00 | | |
| CURREXP | CURRENT EXPENSE 010 | 1.0175366760 | $481,670 | $481,670 | $490.12 | | |
| HUMNSERV | HUMAN SERVICES 119 | 0.0250000000 | $481,670 | $481,670 | $12.04 | | |
| SLDREL | SOLDIERS RELIEF 121 | 0.0155990005 | $481,670 | $481,670 | $7.51 | | |
| EMERGSER | EMS 147 | 0.3792580840 | $481,670 | $481,670 | $182.68 | | |
| EMSRFD | EMS REFUND 147 | 0.0000000000 | $481,670 | $481,670 | $0.00 | | |
| PORTRFD | PORT REFUND 640 | 0.0000000000 | $481,670 | $481,670 | $0.00 | | |
| PORTWWGEN | PORT OF WW 640 | 0.2460186015 | $481,670 | $481,670 | $118.50 | | |
| SD140BOND | SD #140 BOND 764 | 0.8342371393 | $481,670 | $481,670 | $401.83 | | |
| SD140GEN | SD #140 GENERAL 760 | 2.0646500647 | $481,670 | $481,670 | $994.48 | | |
| ST2 | STATE SCHOOL PART 2 600 | 0.8131451643 | $481,670 | $481,670 | $391.67 | | |
| STATESCHL | STATE SCHOOL 600 | 1.5158548041 | $481,670 | $481,670 | $730.14 | | |
| STREFUND | STATE REFUND LEVY 603 | 0.0000000000 | $481,670 | $481,670 | $0.00 | | |
| CWWBOND | C OF WW BOND 643 | 0.2760494372 | $481,670 | $481,670 | $132.96 | | |
| CWWGEN | CITY OF WW 631 | 1.6100204973 | $481,670 | $481,670 | $775.50 | | |
| CWWRFD | CITY OF WALLA WALLA REFUND 631 | 0.0000000000 | $481,670 | $481,670 | $0.00 | | |
| | Total Tax Rate: | 8.7973694689 | | | | | |
| | | | | Taxes w/Current Exemptions: | $4,237.43 | | |
| | | | | Taxes w/o Exemptions: | $4,237.43 | | |
Improvement / Building
| Improvement #1: | RESIDENTIAL | State Code: | 11 | 2512.0 sqft | Value: | $357,700 |
| Exterior Wall: | PLYWOOD | Foundation: | SLAB FOUNDATION | | Heating/Cooling: | WARM & COOLED AIR | Number of Bathrooms: | 3 | | Number of Bedrooms: | 4 | Plumbing: | 13 | | Roof Covering: | COMP SHINGLE |   |   |
|
| | Type | Description | Class CD | Sub Class CD | Year Built | Area |
| | MA | Main Area | 3 | 40 | 1973 | 2512.0 |
| | SI1 | SITE IMPROVEMENT | 3 | 40 | 1973 | 4.0 |
| | UPFL | Upper Floor (included in main area) | 3 | 40 | 1973 | 768.0 |
| | ATG | Attached Garage | 3 | 40 | 1973 | 598.0 |
| | WOD | Wood Deck | 3 | 40 | 1973 | 396.0 |
| | S1F | Single One Story Fireplace | 3 | 40 | 1973 | 1.0 |
| | RPC | OPEN PORCH W/ROOF , CEILED | 3 | 40 | 1973 | 152.0 |
| | BLW | WOOD BALCONIES | 3 | 40 | 1973 | 52.0 |
Sketch
Property Image
Land
| 1 | RES 1 | Converted: Residential | 0.3696 | 16100.00 | 0.00 | 0.00 | 1.00 | $123,970 | $0 |
Roll Value History
| 2026 | N/A | N/A | N/A | N/A | N/A |
| 2025 | $387,270 | $147,480 | $0 | $534,750 | $534,750 |
| 2024 | $357,700 | $123,970 | $0 | $481,670 | $481,670 |
| 2023 | $357,700 | $123,970 | $0 | $481,670 | $481,670 |
| 2022 | $357,700 | $101,750 | $0 | $459,450 | $459,450 |
| 2021 | $238,460 | $101,750 | $0 | $340,210 | $340,210 |
| 2020 | $198,720 | $101,750 | $0 | $300,470 | $300,470 |
| 2019 | $198,720 | $101,750 | $0 | $300,470 | $300,470 |
| 2018 | $247,080 | $52,300 | $0 | $299,380 | $299,380 |
| 2017 | $224,620 | $52,300 | $0 | $276,920 | $276,920 |
| 2016 | $204,200 | $52,300 | $0 | $256,500 | $256,500 |
| 2015 | $204,200 | $52,300 | $0 | $256,500 | $256,500 |
| 2014 | $204,200 | $52,300 | $0 | $256,500 | $256,500 |
| 2013 | $204,200 | $52,300 | $0 | $256,500 | $256,500 |
| 2012 | $204,200 | $52,300 | $0 | $0 | $0 |
| 2011 | $204,200 | $52,300 | $0 | $0 | $0 |
| 2010 | $204,200 | $52,300 | $0 | $0 | $0 |
| 2009 | $232,700 | $52,300 | $0 | $0 | $0 |
| 2008 | $232,700 | $52,300 | $0 | $0 | $0 |
| 2007 | $173,500 | $29,800 | $0 | $0 | $0 |
Deed and Sales History
| 1 | 06/08/2017 | SWD | STATUTORY WARRANTY DEED | MC PHERSON ROBERT D TRUSTEE OF THE | SHAY WILLIAM E & CHERYL H | | | $315,000.00 | 132557 | 2017-04364 |
| 2 | 01/06/2006 | WARRANTY D | WARRANTY DEED | MC PHERSON, ROBERT D | MC PHERSON, ROBERT D TRUSTEE O | | | | 109419 | 2006-00187 |
| 3 | 05/28/1971 | WARRANTY D | WARRANTY DEED | | | | | $2,000.00 | 0 | 3400-514392 |
Payout Agreement
| No payout information available.. |