Property
Account |
| Property ID: | 15586 | Abbreviated Legal Description: | HATCH N1/2 LOT 2 BLK 2; LESS E 61' |
| Parcel Number: | 360728590211 | Agent Code: | |
| Type: | Real | | |
| Tax Area: | 1 - OL-140-F | Land Use Code | 11 |
| Open Space: | N | DFL | N |
| Historic Property: | N | Remodel Property: | N |
| Multi-Family Redevelopment: | N | | |
| Township: | 7 | Section: | 28 |
| Range: | 36 |
Location |
| Address: | 1240 DAKOTA ST WA 99362 | Mapsco: | |
| Neighborhood: | A Res | Map ID: | |
| Neighborhood CD: | 613011 |
Owner |
| Name: | ARTZ BARBARA A | Owner ID: | 67962 |
| Mailing Address: | 1240 DAKOTA ST WALLA WALLA, WA 99362 | % Ownership: | 100.0000000000% |
| | | Exemptions: | |
Taxes and Assessment Details
Values
| (+) Improvement Homesite Value: | + | $0 | |
| (+) Improvement Non-Homesite Value: | + | $267,320 | |
| (+) Land Homesite Value: | + | $0 | |
| (+) Land Non-Homesite Value: | + | $76,680 | |
| (+) Curr Use (HS): | + | $0 | $0 |
| (+) Curr Use (NHS): | + | $0 | $0 |
| | | -------------------------- | |
| (=) Market Value: | = | $344,000 | |
| (–) Productivity Loss: | – | $0 | |
| | | -------------------------- | |
| (=) Subtotal: | = | $344,000 | |
| (+) Senior Appraised Value: | + | $0 | |
| (+) Non-Senior Appraised Value: | + | $344,000 | |
| | | -------------------------- | |
| (=) Total Appraised Value: | = | $344,000 | |
| (–) Senior Exemption Loss: | – | $0 | |
| (–) Exemption Loss: | – | $0 | |
| | | -------------------------- | |
| (=) Taxable Value: | = | $344,000 | |
Taxing Jurisdiction
| Owner: | ARTZ BARBARA A | | |
| % Ownership: | 100.0000000000% | | |
| Total Value: | $344,000 | | |
| Tax Area: | 1 - OL-140-F |
| CERFD | CURRENT EXPENSE REFUND 010 | 0.0000000000 | $344,000 | $344,000 | $0.00 | | |
| CURREXP | CURRENT EXPENSE 010 | 1.0175366760 | $344,000 | $344,000 | $350.03 | | |
| HUMNSERV | HUMAN SERVICES 119 | 0.0250000000 | $344,000 | $344,000 | $8.60 | | |
| SLDREL | SOLDIERS RELIEF 121 | 0.0155990005 | $344,000 | $344,000 | $5.37 | | |
| EMERGSER | EMS 147 | 0.3792580840 | $344,000 | $344,000 | $130.46 | | |
| EMSRFD | EMS REFUND 147 | 0.0000000000 | $344,000 | $344,000 | $0.00 | | |
| PORTRFD | PORT REFUND 640 | 0.0000000000 | $344,000 | $344,000 | $0.00 | | |
| PORTWWGEN | PORT OF WW 640 | 0.2460186015 | $344,000 | $344,000 | $84.63 | | |
| SD140BOND | SD #140 BOND 764 | 0.8342371393 | $344,000 | $344,000 | $286.98 | | |
| SD140GEN | SD #140 GENERAL 760 | 2.0646500647 | $344,000 | $344,000 | $710.24 | | |
| ST2 | STATE SCHOOL PART 2 600 | 0.8131451643 | $344,000 | $344,000 | $279.72 | | |
| STATESCHL | STATE SCHOOL 600 | 1.5158548041 | $344,000 | $344,000 | $521.45 | | |
| STREFUND | STATE REFUND LEVY 603 | 0.0000000000 | $344,000 | $344,000 | $0.00 | | |
| CWWBOND | C OF WW BOND 643 | 0.2760494372 | $344,000 | $344,000 | $94.96 | | |
| CWWGEN | CITY OF WW 631 | 1.6100204973 | $344,000 | $344,000 | $553.85 | | |
| CWWRFD | CITY OF WALLA WALLA REFUND 631 | 0.0000000000 | $344,000 | $344,000 | $0.00 | | |
| | Total Tax Rate: | 8.7973694689 | | | | | |
| | | | | Taxes w/Current Exemptions: | $3,026.29 | | |
| | | | | Taxes w/o Exemptions: | $3,026.29 | | |
Improvement / Building
| Improvement #1: | RESIDENTIAL | State Code: | 11 | 882.0 sqft | Value: | $267,320 |
| Exterior Wall: | SHINGLE | Heating/Cooling: | WARM & COOLED AIR | | Number of Bathrooms: | 1 | Number of Bedrooms: | 3 | | Plumbing: | 6 | Roof Covering: | COMP SHINGLE |
|
| | Type | Description | Class CD | Sub Class CD | Year Built | Area |
| | MA | Main Area | 1 | 30 | 1950 | 882.0 |
| | SI1 | SITE IMPROVEMENT | 1 | 30 | 1950 | 1.0 |
| | BASE | BASEMENT | 1 | 30 | 1950 | 882.0 |
| | BPF | BASEMENT -PARTITIONED FINISH | 1 | 30 | 1950 | 440.0 |
| | D1F | Double 1 Story Fireplace | 1 | 30 | 1950 | 1.0 |
| | PRC | PORCH W STEPS, ROOF,CEILED | 1 | 30 | 1950 | 36.0 |
| | CPC | COVERED CARPORT/PATIO | 1 | 30 | 1950 | 144.0 |
| | DTG | Detached Garage | 1 | 30 | 1950 | 336.0 |
Sketch
Property Image
Land
| 1 | RES 1 | Converted: Residential | 0.1956 | 8520.00 | 0.00 | 0.00 | 1.00 | $76,680 | $0 |
Roll Value History
| 2026 | N/A | N/A | N/A | N/A | N/A |
| 2025 | $251,100 | $93,720 | $0 | $344,820 | $344,820 |
| 2024 | $267,320 | $76,680 | $0 | $344,000 | $344,000 |
| 2023 | $267,320 | $76,680 | $0 | $344,000 | $344,000 |
| 2022 | $205,630 | $61,770 | $0 | $267,400 | $267,400 |
| 2021 | $171,360 | $61,770 | $0 | $233,130 | $233,130 |
| 2020 | $126,930 | $61,770 | $0 | $188,700 | $188,700 |
| 2019 | $126,930 | $61,770 | $0 | $188,700 | $188,700 |
| 2018 | $117,290 | $45,900 | $0 | $163,190 | $163,190 |
| 2017 | $117,290 | $45,900 | $0 | $163,190 | $163,190 |
| 2016 | $111,700 | $45,900 | $0 | $157,600 | $157,600 |
| 2015 | $111,700 | $45,900 | $0 | $157,600 | $157,600 |
| 2014 | $111,700 | $45,900 | $0 | $157,600 | $157,600 |
| 2013 | $111,700 | $45,900 | $0 | $157,600 | $157,600 |
| 2012 | $111,700 | $45,900 | $0 | $0 | $0 |
| 2011 | $111,700 | $45,900 | $0 | $0 | $0 |
| 2010 | $91,100 | $45,900 | $0 | $0 | $0 |
| 2009 | $106,300 | $45,900 | $0 | $0 | $0 |
| 2008 | $106,300 | $45,900 | $0 | $0 | $0 |
| 2007 | $74,600 | $23,400 | $0 | $0 | $0 |
Deed and Sales History
| 1 | 09/17/2020 | SWD | STATUTORY WARRANTY DEED | ERBENICH MELISSA NICHOLE | ARTZ BARBARA A | | | $250,000.00 | 139932 | 2020-09517 |
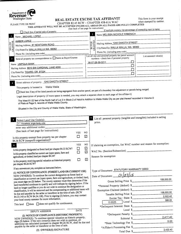
| 2 | 01/09/2015 | SWD | STATUTORY WARRANTY DEED | LOPEZ MICHAEL & AMBER | ERBENICH MELISSA NICHOLE | | | $158,000.00 | 127247 | 2015-00228 |
| 3 | 12/30/2005 | WARRANTY D | WARRANTY DEED | TELSTAD, MARTIN J | LOPEZ, MICHAEL & AMBER | | | $153,000.00 | 109373 | 2005-16349 |
| 4 | 09/03/2003 | WARRANTY D | WARRANTY DEED | SCOTT, JENNIFER K | TELSTAD, MARTIN J | | | $105,000.00 | 102927 | 2003-13404 |
| 5 | 04/02/2003 | WARRANTY D | WARRANTY DEED | PEITERSEN, JAMES R & JILL M | SCOTT, JENNIFER K | | | $98,900.00 | 101753 | 2003-004617 |
| 6 | 11/03/1998 | WARRANTY D | WARRANTY DEED | | | | | $82,000.00 | 91563 | 2759-812656 |
Payout Agreement
| No payout information available.. |