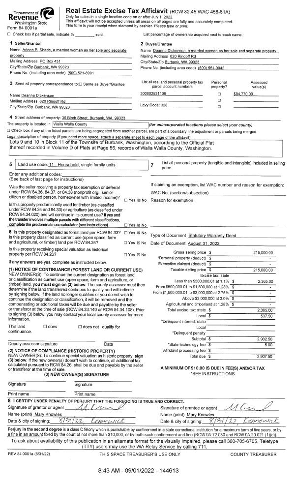
Property
Account |
| Property ID: | 1558 | Abbreviated Legal Description: | BURBANK LOTS 9 & 10 BLK 11 |
| Parcel Number: | 300802531109 | Agent Code: | |
| Type: | Real | | |
| Tax Area: | 328 - 400-M-5 | Land Use Code | 11 |
| Open Space: | N | DFL | N |
| Historic Property: | N | Remodel Property: | N |
| Multi-Family Redevelopment: | N | | |
| Township: | 8 | Section: | 2 |
| Range: | 30 |
Location |
| Address: | 36 BIRCH ST WA 99323 | Mapsco: | |
| Neighborhood: | Burbank F SFR | Map ID: | |
| Neighborhood CD: | 212711 |
Owner |
| Name: | DICKENSON DEANNA LAVERNE | Owner ID: | 72207 |
| Mailing Address: | 620 RINGHOFF RD BURBANK, WA 99323 | % Ownership: | 100.0000000000% |
| | | Exemptions: | |
Taxes and Assessment Details
Property Tax Information as of
02/21/2026
Click on "Statement Details" to expand or collapse a tax statement.
* Please enter a valid date ** Please enter a valid date *
Statement Details |
| | TOTAL: | $0.00 | $0.00 | $0.00 | $0.00 | $0.00 | $0.00 |
|
| | $0.00 | $0.00 | $0.00 | $0.00 | $0.00 | $0.00 |
Values
| (+) Improvement Homesite Value: | + | $0 | |
| (+) Improvement Non-Homesite Value: | + | $141,180 | |
| (+) Land Homesite Value: | + | $0 | |
| (+) Land Non-Homesite Value: | + | $47,710 | |
| (+) Curr Use (HS): | + | $0 | $0 |
| (+) Curr Use (NHS): | + | $0 | $0 |
| | | -------------------------- | |
| (=) Market Value: | = | $188,890 | |
| (–) Productivity Loss: | – | $0 | |
| | | -------------------------- | |
| (=) Subtotal: | = | $188,890 | |
| (+) Senior Appraised Value: | + | $0 | |
| (+) Non-Senior Appraised Value: | + | $188,890 | |
| | | -------------------------- | |
| (=) Total Appraised Value: | = | $188,890 | |
| (–) Senior Exemption Loss: | – | $0 | |
| (–) Exemption Loss: | – | $0 | |
| | | -------------------------- | |
| (=) Taxable Value: | = | $188,890 | |
Taxing Jurisdiction
| Owner: | DICKENSON DEANNA LAVERNE | | |
| % Ownership: | 100.0000000000% | | |
| Total Value: | $188,890 | | |
| Tax Area: | 328 - 400-M-5 |
| CERFD | CURRENT EXPENSE REFUND 010 | 0.0000000000 | $188,890 | $188,890 | $0.00 | | |
| CURREXP | CURRENT EXPENSE 010 | 1.0175366760 | $188,890 | $188,890 | $192.20 | | |
| HUMNSERV | HUMAN SERVICES 119 | 0.0250000000 | $188,890 | $188,890 | $4.72 | | |
| SLDREL | SOLDIERS RELIEF 121 | 0.0155990005 | $188,890 | $188,890 | $2.95 | | |
| EMERGSER | EMS 147 | 0.3792580840 | $188,890 | $188,890 | $71.64 | | |
| EMSRFD | EMS REFUND 147 | 0.0000000000 | $188,890 | $188,890 | $0.00 | | |
| FD5EXP | FD #5 EXPENSE 689 | 1.2045331840 | $188,890 | $188,890 | $227.52 | | |
| RLBRFD | RURAL LIBRARY REFUND 623 | 0.0000000000 | $188,890 | $188,890 | $0.00 | | |
| RURALLIB | RURAL LIBRARY 623 | 0.3710609029 | $188,890 | $188,890 | $70.09 | | |
| PORTRFD | PORT REFUND 640 | 0.0000000000 | $188,890 | $188,890 | $0.00 | | |
| PORTWWGEN | PORT OF WW 640 | 0.2460186015 | $188,890 | $188,890 | $46.47 | | |
| SD400BOND | SD #400 BOND 793 | 0.0000000000 | $188,890 | $188,890 | $0.00 | | |
| SD400CAP | SD #400 CP 792 | 0.3443722657 | $188,890 | $188,890 | $65.05 | | |
| SD400GEN | SD #400 GENERAL 790 | 1.9278469916 | $188,890 | $188,890 | $364.15 | | |
| ST2 | STATE SCHOOL PART 2 600 | 0.8131451643 | $188,890 | $188,890 | $153.59 | | |
| STATESCHL | STATE SCHOOL 600 | 1.5158548041 | $188,890 | $188,890 | $286.33 | | |
| STREFUND | STATE REFUND LEVY 603 | 0.0000000000 | $188,890 | $188,890 | $0.00 | | |
| COROAD | COUNTY ROAD 115 | 1.6549953990 | $188,890 | $188,890 | $312.61 | | |
| CRPRD | COUNTY ROAD REFUND 115 | 0.0000000000 | $188,890 | $188,890 | $0.00 | | |
| | Total Tax Rate: | 9.5152210736 | | | | | |
| | | | | Taxes w/Current Exemptions: | $1,797.32 | | |
| | | | | Taxes w/o Exemptions: | $1,797.32 | | |
Improvement / Building
| Improvement #1: | RESIDENTIAL | State Code: | 11 | 704.0 sqft | Value: | $141,180 |
| Exterior Wall: | PLYWOOD | Heating/Cooling: | BASEBOARD ELECTRIC | | Number of Bathrooms: | 1 | Number of Bedrooms: | 1 | | Plumbing: | 6 | Roof Covering: | COMP SHINGLE |
|
| | Type | Description | Class CD | Sub Class CD | Year Built | Area |
| | MA | Main Area | 1 | 20 | 1960 | 704.0 |
| | SI1 | SITE IMPROVEMENT | 1 | 20 | 1960 | 1.0 |
| | CPC | COVERED CARPORT/PATIO | 1 | 20 | 1960 | 192.0 |
| | POL2 | POLE BUILDING-CONCRETE | 1 | 20 | 1960 | 720.0 |
| | TOOL | TOOL SHED | 1 | 20 | 1960 | 240.0 |
Sketch
Property Image
Land
| 1 | RES 1 | Converted: Residential | 0.2376 | 10350.00 | 0.00 | 0.00 | 1.00 | $47,710 | $0 |
Roll Value History
| 2026 | N/A | N/A | N/A | N/A | N/A |
| 2025 | $170,480 | $47,710 | $0 | $218,190 | $218,190 |
| 2024 | $148,240 | $47,710 | $0 | $195,950 | $195,950 |
| 2023 | $141,180 | $47,710 | $0 | $188,890 | $188,890 |
| 2022 | $70,590 | $47,710 | $0 | $118,300 | $118,300 |
| 2021 | $47,060 | $47,710 | $0 | $94,770 | $94,770 |
| 2020 | $44,040 | $21,700 | $0 | $65,740 | $65,740 |
| 2019 | $44,040 | $21,700 | $0 | $65,740 | $65,740 |
| 2018 | $44,040 | $21,700 | $0 | $65,740 | $65,740 |
| 2017 | $40,040 | $21,700 | $0 | $61,740 | $61,740 |
| 2016 | $36,400 | $21,700 | $0 | $58,100 | $58,100 |
| 2015 | $36,400 | $21,700 | $0 | $58,100 | $58,100 |
| 2014 | $36,400 | $21,700 | $0 | $58,100 | $58,100 |
| 2013 | $36,400 | $21,700 | $0 | $58,100 | $58,100 |
| 2012 | $36,400 | $21,700 | $0 | $0 | $0 |
| 2011 | $36,400 | $21,700 | $0 | $0 | $0 |
| 2010 | $36,400 | $21,700 | $0 | $0 | $0 |
| 2009 | $43,100 | $15,500 | $0 | $0 | $0 |
| 2008 | $43,100 | $15,500 | $0 | $0 | $0 |
| 2007 | $43,100 | $15,500 | $0 | $0 | $0 |
Deed and Sales History
| 1 | 09/01/2022 | QCD | QUIT CLAIM DEED | DICKENSON RANDY | DICKENSON DEANNA LAVERNE | | | | 144614 | 2022-07344 |
| 2 | 09/01/2022 | SWD | STATUTORY WARRANTY DEED | SHADE ARLEEN B | DICKENSON DEANNA LAVERNE | | | $215,000.00 | 144613 | 2022-07343 |
| 3 | 05/31/2022 | QCD | QUIT CLAIM DEED | SHADE FRANK & ARLEEN | SHADE ARLEEN B | | | $0.00 | 144051 | 2022-04633 |
| 4 | 09/29/1989 | WARRANTY D | WARRANTY DEED | | | | | $10,500.00 | 0 | 1788-906258 |
Payout Agreement
| No payout information available.. |