Property
Account |
| Property ID: | 15555 | Abbreviated Legal Description: | GARDEN CREEK CONDO'S UNIT #220 |
| Parcel Number: | 360722600008 | Agent Code: | |
| Type: | Real | | |
| Tax Area: | 1 - OL-140-F | Land Use Code | 14 |
| Open Space: | N | DFL | N |
| Historic Property: | N | Remodel Property: | N |
| Multi-Family Redevelopment: | N | | |
| Township: | 7 | Section: | 22 |
| Range: | 36 |
Location |
| Address: | 220 GARDEN DR WA 99362 | Mapsco: | |
| Neighborhood: | CONDO | Map ID: | |
| Neighborhood CD: | 413041 |
Owner |
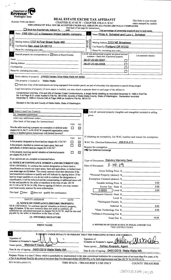
| Name: | SCHIEBEL PHILIP A & LUCY L | Owner ID: | 63599 |
| Mailing Address: | 508 CATHERINE ST WALLA WALLA, WA 99362 | % Ownership: | 100.0000000000% |
| | | Exemptions: | |
Taxes and Assessment Details
Values
| (+) Improvement Homesite Value: | + | N/A | |
| (+) Improvement Non-Homesite Value: | + | N/A | |
| (+) Land Homesite Value: | + | N/A | |
| (+) Land Non-Homesite Value: | + | N/A | Ag / Timber Use Value |
| (+) Curr Use (HS): | + | N/A | N/A |
| (+) Curr Use (NHS): | + | N/A | N/A |
| | | -------------------------- | |
| (=) Market Value: | = | N/A | |
| (–) Productivity Loss: | – | N/A | |
| | | -------------------------- | |
| (=) Subtotal: | = | N/A | |
| (+) Senior Appraised Value: | + | N/A | |
| (+) Non-Senior Appraised Value: | + | N/A | |
| | | -------------------------- | |
| (=) Total Appraised Value: | = | N/A | |
| (–) Senior Exemption Loss: | – | N/A | |
| (–) Exemption Loss: | – | N/A | |
| | | -------------------------- | |
| (=) Taxable Value: | = | N/A | |
Taxing Jurisdiction
| Owner: | SCHIEBEL PHILIP A & LUCY L | | |
| % Ownership: | 100.0000000000% | | |
| Total Value: | N/A | | |
| Tax Area: | 1 - OL-140-F |
| CERFD | CURRENT EXPENSE REFUND 010 | N/A | N/A | N/A | N/A | | |
| CURREXP | CURRENT EXPENSE 010 | N/A | N/A | N/A | N/A | | |
| HUMNSERV | HUMAN SERVICES 119 | N/A | N/A | N/A | N/A | | |
| SLDREL | SOLDIERS RELIEF 121 | N/A | N/A | N/A | N/A | | |
| EMERGSER | EMS 147 | N/A | N/A | N/A | N/A | | |
| EMSRFD | EMS REFUND 147 | N/A | N/A | N/A | N/A | | |
| PORTRFD | PORT REFUND 640 | N/A | N/A | N/A | N/A | | |
| PORTWWGEN | PORT OF WW 640 | N/A | N/A | N/A | N/A | | |
| SD140BOND | SD #140 BOND 764 | N/A | N/A | N/A | N/A | | |
| SD140GEN | SD #140 GENERAL 760 | N/A | N/A | N/A | N/A | | |
| ST2 | STATE SCHOOL PART 2 600 | N/A | N/A | N/A | N/A | | |
| STATESCHL | STATE SCHOOL 600 | N/A | N/A | N/A | N/A | | |
| STREFUND | STATE REFUND LEVY 603 | N/A | N/A | N/A | N/A | | |
| CWWBOND | C OF WW BOND 643 | N/A | N/A | N/A | N/A | | |
| CWWGEN | CITY OF WW 631 | N/A | N/A | N/A | N/A | | |
| CWWRFD | CITY OF WALLA WALLA REFUND 631 | N/A | N/A | N/A | N/A | | |
| | Total Tax Rate: | N/A | | | | | |
| | | | | Taxes w/Current Exemptions: | N/A | | |
| | | | | Taxes w/o Exemptions: | N/A | | |
Improvement / Building
| Improvement #1: | RESIDENTIAL | State Code: | 14 | 988.0 sqft | Value: | N/A |
| Exterior Wall: | PLYWOOD | Heating/Cooling: | WARM & COOLED AIR | | Number of Bathrooms: | 2 | Number of Bedrooms: | 2 | | Plumbing: | 9 | Roof Covering: | COMP SHINGLE |
|
| | Type | Description | Class CD | Sub Class CD | Year Built | Area |
| | MA | Main Area | 4 | 30 | 1975 | 988.0 |
| | SI1 | SITE IMPROVEMENT | 4 | 30 | 0 | 2.0 |
| | ATG | Attached Garage | 4 | 30 | 1975 | 286.0 |
| | UPFL | Upper Floor (included in main area) | 4 | 30 | 1975 | 442.0 |
Sketch
Property Image
Land
No land segments exist for this property.
Roll Value History
| 2026 | N/A | N/A | N/A | N/A | N/A |
| 2025 | $141,120 | $0 | $0 | $141,120 | $141,120 |
| 2024 | $141,120 | $0 | $0 | $141,120 | $141,120 |
| 2023 | $141,120 | $0 | $0 | $141,120 | $141,120 |
| 2022 | $126,350 | $0 | $0 | $126,350 | $126,350 |
| 2021 | $101,080 | $0 | $0 | $101,080 | $101,080 |
| 2020 | $96,260 | $0 | $0 | $96,260 | $96,260 |
| 2019 | $96,260 | $0 | $0 | $96,260 | $96,260 |
| 2018 | $80,220 | $0 | $0 | $80,220 | $80,220 |
| 2017 | $80,220 | $0 | $0 | $80,220 | $80,220 |
| 2016 | $80,220 | $0 | $0 | $80,220 | $80,220 |
| 2015 | $80,220 | $0 | $0 | $80,220 | $80,220 |
| 2014 | $76,400 | $0 | $0 | $76,400 | $76,400 |
| 2013 | $76,400 | $0 | $0 | $76,400 | $76,400 |
| 2012 | $76,400 | $0 | $0 | $0 | $0 |
| 2011 | $81,000 | $0 | $0 | $0 | $0 |
| 2010 | $81,000 | $0 | $0 | $0 | $0 |
| 2009 | $81,000 | $0 | $0 | $0 | $0 |
| 2008 | $81,000 | $0 | $0 | $0 | $0 |
| 2007 | $81,000 | $0 | $0 | $0 | $0 |
Deed and Sales History
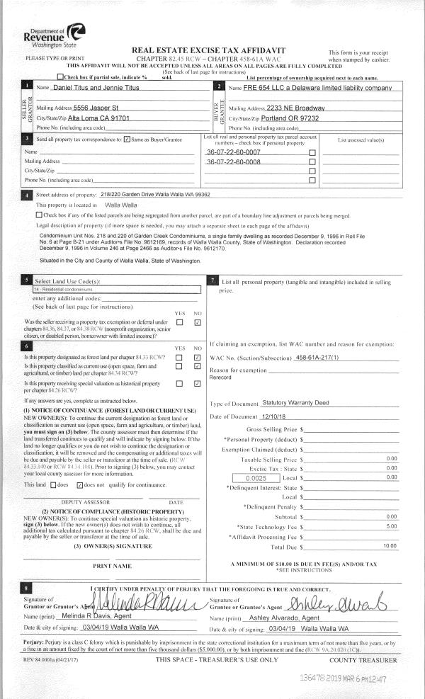
| 1 | 03/14/2019 | SWD | STATUTORY WARRANTY DEED | FRE 654 LLC | SCHIEBEL PHILIP A & LUCY L | | | $0.00 | 136593 | 2019-02037 |
| 2 | 03/10/2019 | SWD | STATUTORY WARRANTY DEED | TITUS DANIEL & JENNIE | FRE 654 LLC | | | $0.00 | 136478 | 2019-01450 |
| 3 | 12/11/2018 | SWD | STATUTORY WARRANTY DEED | TITUS DANIEL & JENNIE | SCHIEBEL PHILIP A & LUCY L | | 2-PARCELS | $199,000.00 | 136069 | 2018-10244 |
|   | |
| 4 | 11/28/2005 | WARRANTY D | WARRANTY DEED | GURR, DAVE & MARLA | TITUS DANIEL & JENNIE | | | $163,000.00 | 109123 | 2005-14902 |
|   | |
| 5 | 09/26/2002 | WARRANTY D | WARRANTY DEED | "MILSTEIN, BERT" | | | | | 100455 | 2002-108140 |
Payout Agreement
| No payout information available.. |