Property
Account |
| Property ID: | 15552 | Abbreviated Legal Description: | GARDEN CREEK CONDO'S UNIT #206 |
| Parcel Number: | 360722600001 | Agent Code: | |
| Type: | Real | | |
| Tax Area: | 1 - OL-140-F | Land Use Code | 14 |
| Open Space: | N | DFL | N |
| Historic Property: | N | Remodel Property: | N |
| Multi-Family Redevelopment: | N | | |
| Township: | 7 | Section: | 22 |
| Range: | 36 |
Location |
| Address: | 206 GARDEN DR WA 99362 | Mapsco: | |
| Neighborhood: | CONDO | Map ID: | |
| Neighborhood CD: | 413041 |
Owner |
| Name: | MASFERRER ROBERTO & MIREYA | Owner ID: | 64083 |
| Mailing Address: | 220 HAVERSHAM DR COLORADO SPRINGS, CO 80906 | % Ownership: | 100.0000000000% |
| | | Exemptions: | |
Taxes and Assessment Details
Values
| (+) Improvement Homesite Value: | + | $0 | |
| (+) Improvement Non-Homesite Value: | + | $135,520 | |
| (+) Land Homesite Value: | + | $0 | |
| (+) Land Non-Homesite Value: | + | $0 | |
| (+) Curr Use (HS): | + | $0 | $0 |
| (+) Curr Use (NHS): | + | $0 | $0 |
| | | -------------------------- | |
| (=) Market Value: | = | $135,520 | |
| (–) Productivity Loss: | – | $0 | |
| | | -------------------------- | |
| (=) Subtotal: | = | $135,520 | |
| (+) Senior Appraised Value: | + | $0 | |
| (+) Non-Senior Appraised Value: | + | $135,520 | |
| | | -------------------------- | |
| (=) Total Appraised Value: | = | $135,520 | |
| (–) Senior Exemption Loss: | – | $0 | |
| (–) Exemption Loss: | – | $0 | |
| | | -------------------------- | |
| (=) Taxable Value: | = | $135,520 | |
Taxing Jurisdiction
| Owner: | MASFERRER ROBERTO & MIREYA | | |
| % Ownership: | 100.0000000000% | | |
| Total Value: | $135,520 | | |
| Tax Area: | 1 - OL-140-F |
| CERFD | CURRENT EXPENSE REFUND 010 | 0.0000000000 | $135,520 | $135,520 | $0.00 | | |
| CURREXP | CURRENT EXPENSE 010 | 0.9851088983 | $135,520 | $135,520 | $133.50 | | |
| HUMNSERV | HUMAN SERVICES 119 | 0.0250000000 | $135,520 | $135,520 | $3.39 | | |
| SLDREL | SOLDIERS RELIEF 121 | 0.0155990000 | $135,520 | $135,520 | $2.11 | | |
| EMERGSER | EMS 147 | 0.3676811629 | $135,520 | $135,520 | $49.83 | | |
| EMSRFD | EMS REFUND 147 | 0.0000000000 | $135,520 | $135,520 | $0.00 | | |
| PORTRFD | PORT REFUND 640 | 0.0000000000 | $135,520 | $135,520 | $0.00 | | |
| PORTWWGEN | PORT OF WW 640 | 0.2344301070 | $135,520 | $135,520 | $31.77 | | |
| SD140BOND | SD #140 BOND 764 | 0.8032434458 | $135,520 | $135,520 | $108.86 | | |
| SD140CAP | SD #140 CAP 762 | 0.3840034221 | $135,520 | $135,520 | $52.04 | | |
| SD140GEN | SD #140 GENERAL 760 | 2.4999999996 | $135,520 | $135,520 | $338.80 | | |
| ST2 | STATE SCHOOL PART 2 600 | 0.8853714103 | $135,520 | $135,520 | $119.99 | | |
| STATESCHL | STATE SCHOOL 600 | 1.6424571473 | $135,520 | $135,520 | $222.59 | | |
| STREFUND | STATE REFUND LEVY 603 | 0.0000000000 | $135,520 | $135,520 | $0.00 | | |
| CWWBOND | C OF WW BOND 643 | 0.2642134255 | $135,520 | $135,520 | $35.81 | | |
| CWWGEN | CITY OF WW 631 | 1.6110494978 | $135,520 | $135,520 | $218.33 | | |
| CWWRFD | CITY OF WALLA WALLA REFUND 631 | 0.0000000000 | $135,520 | $135,520 | $0.00 | | |
| | Total Tax Rate: | 9.7181575166 | | | | | |
| | | | | Taxes w/Current Exemptions: | $1,317.02 | | |
| | | | | Taxes w/o Exemptions: | $1,317.02 | | |
Improvement / Building
| Improvement #1: | RESIDENTIAL | State Code: | 14 | 845.0 sqft | Value: | $135,520 |
| Exterior Wall: | PLYWOOD | Heating/Cooling: | WARM & COOLED AIR | | Number of Bathrooms: | 1 | Number of Bedrooms: | 2 | | Plumbing: | 6 | Roof Covering: | COMP SHINGLE |
|
| | Type | Description | Class CD | Sub Class CD | Year Built | Area |
| | MA | Main Area | 1 | 30 | 1975 | 845.0 |
| | SI1 | SITE IMPROVEMENT | 1 | 30 | 0 | 1.0 |
| | ATG | Attached Garage | 1 | 30 | 1975 | 273.0 |
Sketch
Property Image
Land
No land segments exist for this property.
Roll Value History
| 2026 | N/A | N/A | N/A | N/A | N/A |
| 2025 | $135,520 | $0 | $0 | $135,520 | $135,520 |
| 2024 | $135,520 | $0 | $0 | $135,520 | $135,520 |
| 2023 | $135,520 | $0 | $0 | $135,520 | $135,520 |
| 2022 | $118,710 | $0 | $0 | $118,710 | $118,710 |
| 2021 | $94,960 | $0 | $0 | $94,960 | $94,960 |
| 2020 | $90,440 | $0 | $0 | $90,440 | $90,440 |
| 2019 | $90,440 | $0 | $0 | $90,440 | $90,440 |
| 2018 | $78,650 | $0 | $0 | $78,650 | $78,650 |
| 2017 | $78,650 | $0 | $0 | $78,650 | $78,650 |
| 2016 | $78,650 | $0 | $0 | $78,650 | $78,650 |
| 2015 | $78,650 | $0 | $0 | $78,650 | $78,650 |
| 2014 | $74,900 | $0 | $0 | $74,900 | $74,900 |
| 2013 | $74,900 | $0 | $0 | $74,900 | $74,900 |
| 2012 | $74,900 | $0 | $0 | $0 | $0 |
| 2011 | $82,000 | $0 | $0 | $0 | $0 |
| 2010 | $82,000 | $0 | $0 | $0 | $0 |
| 2009 | $82,000 | $0 | $0 | $0 | $0 |
| 2008 | $82,000 | $0 | $0 | $0 | $0 |
| 2007 | $82,000 | $0 | $0 | $0 | $0 |
Deed and Sales History
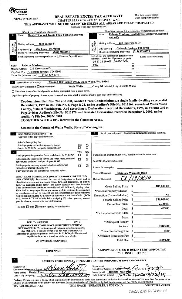
| 1 | 01/24/2019 | SWD | STATUTORY WARRANTY DEED | TITUS DANIEL & JENNIE | MASFERRER ROBERTO & MIREYA | | 2-PARCELS | $186,000.00 | 136290 | 2019-00484 |
|   | |
| 2 | 11/28/2005 | WARRANTY D | WARRANTY DEED | GURR DAVE & MARLA | TITUS DANIEL & JENNIE | | | $165,000.00 | 109125 | 2005-14900 |
|   | |
| 3 | 09/26/2002 | WARRANTY D | WARRANTY DEED | "MILSTEIN, BERT" | | | | | 100455 | 2002-108140 |
| 4 | | WARRANTY D | WARRANTY DEED | GURR, DAVE & MARLA | | | | | 0 | 2002-10814 |
Payout Agreement
| No payout information available.. |