Property
Account |
| Property ID: | 15545 | Abbreviated Legal Description: | VILLAGES OF GARRISON CRK PHASE VI LOT 77 LESS NELY STRIP |
| Parcel Number: | 350736960046 | Agent Code: | |
| Type: | Real | | |
| Tax Area: | 77 - CP-250-F | Land Use Code | 11 |
| Open Space: | N | DFL | N |
| Historic Property: | N | Remodel Property: | N |
| Multi-Family Redevelopment: | N | | |
| Township: | 7 | Section: | 36 |
| Range: | 35 |
Location |
| Address: | 1086 SE GARRISON VILLAGE WAY WA 99324 | Mapsco: | |
| Neighborhood: | G Inferior SFR | Map ID: | |
| Neighborhood CD: | 114111 |
Owner |
| Name: | ZISKA JEANNE E | Owner ID: | 5517 |
| Mailing Address: | 1086 SE GARRISON VILLAGE WAY COLLEGE PLACE, WA 99324 | % Ownership: | 100.0000000000% |
| | | Exemptions: | |
Taxes and Assessment Details
Property Tax Information as of
02/21/2026
Click on "Statement Details" to expand or collapse a tax statement.
* Please enter a valid date ** Please enter a valid date *
Statement Details |
| | TOTAL: | $0.00 | $0.00 | $0.00 | $0.00 | $0.00 | $0.00 |
|
| | $0.00 | $0.00 | $0.00 | $0.00 | $0.00 | $0.00 |
Values
| (+) Improvement Homesite Value: | + | $0 | |
| (+) Improvement Non-Homesite Value: | + | $286,350 | |
| (+) Land Homesite Value: | + | $0 | |
| (+) Land Non-Homesite Value: | + | $60,000 | |
| (+) Curr Use (HS): | + | $0 | $0 |
| (+) Curr Use (NHS): | + | $0 | $0 |
| | | -------------------------- | |
| (=) Market Value: | = | $346,350 | |
| (–) Productivity Loss: | – | $0 | |
| | | -------------------------- | |
| (=) Subtotal: | = | $346,350 | |
| (+) Senior Appraised Value: | + | $0 | |
| (+) Non-Senior Appraised Value: | + | $346,350 | |
| | | -------------------------- | |
| (=) Total Appraised Value: | = | $346,350 | |
| (–) Senior Exemption Loss: | – | $0 | |
| (–) Exemption Loss: | – | $0 | |
| | | -------------------------- | |
| (=) Taxable Value: | = | $346,350 | |
Taxing Jurisdiction
| Owner: | ZISKA JEANNE E | | |
| % Ownership: | 100.0000000000% | | |
| Total Value: | $346,350 | | |
| Tax Area: | 77 - CP-250-F |
| CERFD | CURRENT EXPENSE REFUND 010 | 0.0000000000 | $346,350 | $346,350 | $0.00 | | |
| CURREXP | CURRENT EXPENSE 010 | 1.0175366760 | $346,350 | $346,350 | $352.42 | | |
| HUMNSERV | HUMAN SERVICES 119 | 0.0250000000 | $346,350 | $346,350 | $8.66 | | |
| SLDREL | SOLDIERS RELIEF 121 | 0.0155990005 | $346,350 | $346,350 | $5.40 | | |
| COLLPLBOND | C OF CP BOND 644 | 0.4374241808 | $346,350 | $346,350 | $151.50 | | |
| COLLPLGEN | CITY OF CP 632 | 1.4453819216 | $346,350 | $346,350 | $500.61 | | |
| EMERGSER | EMS 147 | 0.3792580840 | $346,350 | $346,350 | $131.36 | | |
| EMSRFD | EMS REFUND 147 | 0.0000000000 | $346,350 | $346,350 | $0.00 | | |
| RURALLIB | RURAL LIBRARY 623 | 0.3710609029 | $346,350 | $346,350 | $128.52 | | |
| PORTRFD | PORT REFUND 640 | 0.0000000000 | $346,350 | $346,350 | $0.00 | | |
| PORTWWGEN | PORT OF WW 640 | 0.2460186015 | $346,350 | $346,350 | $85.21 | | |
| SD250BOND | SD #250 BOND 773 | 1.4560608159 | $346,350 | $346,350 | $504.31 | | |
| SD250GEN | SD #250 GENERAL 770 | 2.3880724087 | $346,350 | $346,350 | $827.11 | | |
| ST2 | STATE SCHOOL PART 2 600 | 0.8131451643 | $346,350 | $346,350 | $281.63 | | |
| STATESCHL | STATE SCHOOL 600 | 1.5158548041 | $346,350 | $346,350 | $525.02 | | |
| STREFUND | STATE REFUND LEVY 603 | 0.0000000000 | $346,350 | $346,350 | $0.00 | | |
| | Total Tax Rate: | 10.1104125603 | | | | | |
| | | | | Taxes w/Current Exemptions: | $3,501.75 | | |
| | | | | Taxes w/o Exemptions: | $3,501.75 | | |
Improvement / Building
| Improvement #1: | RESIDENTIAL | State Code: | 11 | 1596.0 sqft | Value: | $286,350 |
| Exterior Wall: | PLYWOOD | Heating/Cooling: | REV-HEAT-PUMP-W/DUCT | | Number of Bathrooms: | 2.5 | Number of Bedrooms: | 3 | | Plumbing: | 13 | Roof Covering: | COMP SHINGLE |
|
| | Type | Description | Class CD | Sub Class CD | Year Built | Area |
| | MA | Main Area | 4 | 40 | 2006 | 1596.0 |
| | UPFL | Upper Floor (included in main area) | 4 | 40 | 2006 | 351.0 |
| | SI1 | SITE IMPROVEMENT | 4 | 40 | 0 | 2.5 |
| | ATG | Attached Garage | 4 | 40 | 2006 | 420.0 |
| | RPC | OPEN PORCH W/ROOF , CEILED | 4 | 40 | 2006 | 45.0 |
| | GFP | GAS FIREPLACE | 4 | 40 | 2006 | 1.0 |
Sketch
Property Image
Land
| 1 | RES 1 | Converted: Residential | 0.0643 | 2801.00 | 0.00 | 0.00 | 1.00 | $60,000 | $0 |
Roll Value History
| 2026 | N/A | N/A | N/A | N/A | N/A |
| 2025 | $229,080 | $110,000 | $0 | $339,080 | $339,080 |
| 2024 | $286,350 | $60,000 | $0 | $346,350 | $346,350 |
| 2023 | $286,350 | $60,000 | $0 | $346,350 | $346,350 |
| 2022 | $301,420 | $60,000 | $0 | $361,420 | $361,420 |
| 2021 | $223,280 | $60,000 | $0 | $283,280 | $283,280 |
| 2020 | $171,750 | $60,000 | $0 | $231,750 | $231,750 |
| 2019 | $186,750 | $45,000 | $0 | $231,750 | $231,750 |
| 2018 | $186,750 | $45,000 | $0 | $231,750 | $231,750 |
| 2017 | $162,390 | $45,000 | $0 | $207,390 | $207,390 |
| 2016 | $147,630 | $45,000 | $0 | $192,630 | $192,630 |
| 2015 | $140,600 | $45,000 | $0 | $185,600 | $185,600 |
| 2014 | $140,600 | $45,000 | $0 | $185,600 | $185,600 |
| 2013 | $140,600 | $45,000 | $0 | $185,600 | $185,600 |
| 2012 | $165,100 | $45,000 | $0 | $0 | $0 |
| 2011 | $165,100 | $45,000 | $0 | $0 | $0 |
| 2010 | $165,100 | $45,000 | $0 | $0 | $0 |
| 2009 | $176,200 | $45,000 | $0 | $0 | $0 |
| 2008 | $196,500 | $17,900 | $0 | $0 | $0 |
| 2007 | $62,000 | $17,900 | $0 | $0 | $0 |
Deed and Sales History
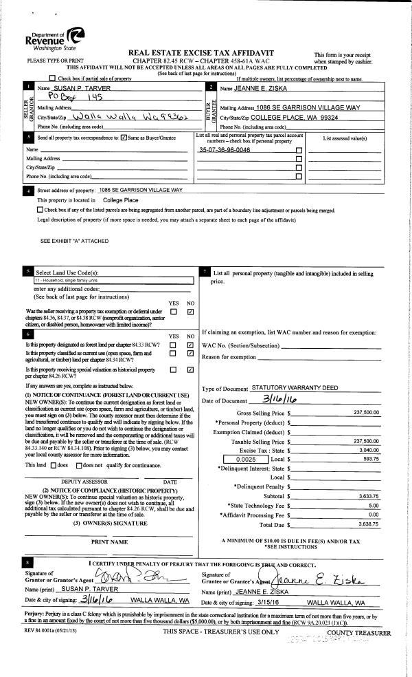
| 1 | 03/17/2016 | SWD | STATUTORY WARRANTY DEED | TARVER SUSAN P | ZISKA JEANNE E | | | $237,500.00 | 129847 | 2016-02001 |
| 2 | 12/05/2006 | WARRANTY D | WARRANTY DEED | PHASE FIVE DEVELOPMENT LLC | TARVER, SUSAN P | | | $233,000.00 | 111822 | 2006-14525 |
| 3 | 12/05/2006 | QCD | QUIT CLAIM DEED | ELSTROM, TOM | TARVER, SUSAN P | | | | 111821 | 2006-14524 |
Payout Agreement
| No payout information available.. |