Property
Account |
| Property ID: | 15510 | Abbreviated Legal Description: | 27-7-36 LOT 2 OF SHORT PLAT (NWLY PTN TAX 21 WITHIN SE1/4NW1/4) |
| Parcel Number: | 360727240080 | Agent Code: | |
| Type: | Real | | |
| Tax Area: | 1 - OL-140-F | Land Use Code | 11 |
| Open Space: | N | DFL | N |
| Historic Property: | N | Remodel Property: | N |
| Multi-Family Redevelopment: | N | | |
| Township: | 7 | Section: | 27 |
| Range: | 36 |
Location |
| Address: | 1025 SCHOOL AVE WA 99362 | Mapsco: | |
| Neighborhood: | G+ Res | Map ID: | |
| Neighborhood CD: | 414211 |
Owner |
| Name: | MENDOZA JAKE & SHARA ANN | Owner ID: | 65884 |
| Mailing Address: | 1025 SCHOOL AVE WALLA WALLA, WA 99362 | % Ownership: | 100.0000000000% |
| | | Exemptions: | |
Taxes and Assessment Details
Property Tax Information as of
02/21/2026
Click on "Statement Details" to expand or collapse a tax statement.
* Please enter a valid date ** Please enter a valid date *
Statement Details |
| | TOTAL: | $0.00 | $0.00 | $0.00 | $0.00 | $0.00 | $0.00 |
|
| | $0.00 | $0.00 | $0.00 | $0.00 | $0.00 | $0.00 |
Values
| (+) Improvement Homesite Value: | + | $0 | |
| (+) Improvement Non-Homesite Value: | + | $256,950 | |
| (+) Land Homesite Value: | + | $0 | |
| (+) Land Non-Homesite Value: | + | $72,000 | |
| (+) Curr Use (HS): | + | $0 | $0 |
| (+) Curr Use (NHS): | + | $0 | $0 |
| | | -------------------------- | |
| (=) Market Value: | = | $328,950 | |
| (–) Productivity Loss: | – | $0 | |
| | | -------------------------- | |
| (=) Subtotal: | = | $328,950 | |
| (+) Senior Appraised Value: | + | $0 | |
| (+) Non-Senior Appraised Value: | + | $328,950 | |
| | | -------------------------- | |
| (=) Total Appraised Value: | = | $328,950 | |
| (–) Senior Exemption Loss: | – | $0 | |
| (–) Exemption Loss: | – | $0 | |
| | | -------------------------- | |
| (=) Taxable Value: | = | $328,950 | |
Taxing Jurisdiction
| Owner: | MENDOZA JAKE & SHARA ANN | | |
| % Ownership: | 100.0000000000% | | |
| Total Value: | $328,950 | | |
| Tax Area: | 1 - OL-140-F |
| CERFD | CURRENT EXPENSE REFUND 010 | 0.0000000000 | $328,950 | $328,950 | $0.00 | | |
| CURREXP | CURRENT EXPENSE 010 | 1.0175366760 | $328,950 | $328,950 | $334.72 | | |
| HUMNSERV | HUMAN SERVICES 119 | 0.0250000000 | $328,950 | $328,950 | $8.22 | | |
| SLDREL | SOLDIERS RELIEF 121 | 0.0155990005 | $328,950 | $328,950 | $5.13 | | |
| EMERGSER | EMS 147 | 0.3792580840 | $328,950 | $328,950 | $124.76 | | |
| EMSRFD | EMS REFUND 147 | 0.0000000000 | $328,950 | $328,950 | $0.00 | | |
| PORTRFD | PORT REFUND 640 | 0.0000000000 | $328,950 | $328,950 | $0.00 | | |
| PORTWWGEN | PORT OF WW 640 | 0.2460186015 | $328,950 | $328,950 | $80.93 | | |
| SD140BOND | SD #140 BOND 764 | 0.8342371393 | $328,950 | $328,950 | $274.42 | | |
| SD140GEN | SD #140 GENERAL 760 | 2.0646500647 | $328,950 | $328,950 | $679.17 | | |
| ST2 | STATE SCHOOL PART 2 600 | 0.8131451643 | $328,950 | $328,950 | $267.48 | | |
| STATESCHL | STATE SCHOOL 600 | 1.5158548041 | $328,950 | $328,950 | $498.64 | | |
| STREFUND | STATE REFUND LEVY 603 | 0.0000000000 | $328,950 | $328,950 | $0.00 | | |
| CWWBOND | C OF WW BOND 643 | 0.2760494372 | $328,950 | $328,950 | $90.81 | | |
| CWWGEN | CITY OF WW 631 | 1.6100204973 | $328,950 | $328,950 | $529.62 | | |
| CWWRFD | CITY OF WALLA WALLA REFUND 631 | 0.0000000000 | $328,950 | $328,950 | $0.00 | | |
| | Total Tax Rate: | 8.7973694689 | | | | | |
| | | | | Taxes w/Current Exemptions: | $2,893.90 | | |
| | | | | Taxes w/o Exemptions: | $2,893.90 | | |
Improvement / Building
| Improvement #1: | RESIDENTIAL | State Code: | 11 | 978.0 sqft | Value: | $256,950 |
| Exterior Wall: | SIDING | Heating/Cooling: | WARM & COOLED AIR | | Number of Bathrooms: | 2 | Number of Bedrooms: | 2 | | Plumbing: | 9 | Roof Covering: | COMP SHINGLE |
|
| | Type | Description | Class CD | Sub Class CD | Year Built | Area |
| | MA | Main Area | 1 | 35 | 1947 | 978.0 |
| | CPC | COVERED CARPORT/PATIO | 1 | 35 | 0 | 340.0 |
| | SI1 | SITE IMPROVEMENT | 1 | 35 | 0 | 2.5 |
| | BASE | BASEMENT | 1 | 35 | 1947 | 850.0 |
| | BPF | BASEMENT -PARTITIONED FINISH | 1 | 35 | 1947 | 850.0 |
| | DTG | Detached Garage | 1 | 35 | 1947 | 420.0 |
| | RPO | OPEN PORCH W/ROOF | 1 | 35 | 1947 | 48.0 |
Sketch
Property Image
Land
| 1 | RES 1 | Converted: Residential | 0.1653 | 7200.00 | 0.00 | 0.00 | 1.00 | $72,000 | $0 |
Roll Value History
| 2026 | N/A | N/A | N/A | N/A | N/A |
| 2025 | $269,800 | $72,000 | $0 | $341,800 | $341,800 |
| 2024 | $256,950 | $72,000 | $0 | $328,950 | $328,950 |
| 2023 | $256,950 | $72,000 | $0 | $328,950 | $328,950 |
| 2022 | $252,250 | $60,000 | $0 | $312,250 | $312,250 |
| 2021 | $194,040 | $60,000 | $0 | $254,040 | $254,040 |
| 2020 | $129,360 | $60,000 | $0 | $189,360 | $189,360 |
| 2019 | $129,360 | $60,000 | $0 | $189,360 | $189,360 |
| 2018 | $129,360 | $60,000 | $0 | $189,360 | $189,360 |
| 2017 | $123,200 | $60,000 | $0 | $183,200 | $183,200 |
| 2016 | $123,200 | $60,000 | $0 | $183,200 | $183,200 |
| 2015 | $123,200 | $60,000 | $0 | $183,200 | $183,200 |
| 2014 | $123,200 | $60,000 | $0 | $183,200 | $183,200 |
| 2013 | $123,200 | $60,000 | $0 | $183,200 | $183,200 |
| 2012 | $123,200 | $60,000 | $0 | $0 | $0 |
| 2011 | $134,000 | $60,000 | $0 | $0 | $0 |
| 2010 | $134,000 | $60,000 | $0 | $0 | $0 |
| 2009 | $155,500 | $60,000 | $0 | $0 | $0 |
| 2008 | $172,300 | $43,200 | $0 | $0 | $0 |
| 2007 | $68,400 | $21,600 | $0 | $0 | $0 |
Deed and Sales History
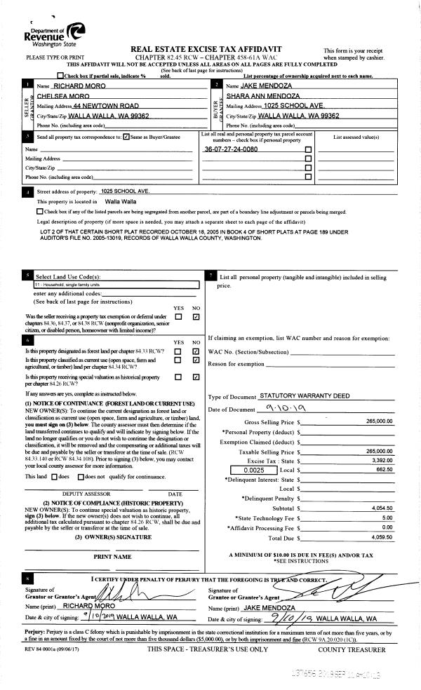
| 1 | 09/11/2019 | SWD | STATUTORY WARRANTY DEED | MORO RICHARD & CHELSEA | MENDOZA JAKE & SHARA ANN | | | $265,000.00 | 137656 | 2019-07053 |
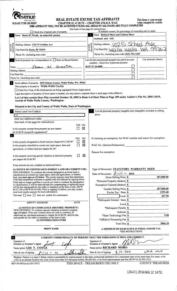
| 2 | 08/11/2014 | SWD | STATUTORY WARRANTY DEED | NOVAK DAWN M | MORO RICHARD & CHELSEA | | | $187,000.00 | 126431 | 2014-05772 |
| 3 | 12/30/2011 | WARRANTY D | WARRANTY DEED | SMITH, CODY M P | NOVAK, DAWN M | | | $180,000.00 | 121206 | 2011-10349 |
| 4 | 03/26/2007 | WARRANTY D | WARRANTY DEED | WATTS, GERALD A & SHARON L | SMITH, CODY M P | | | $220,000.00 | 112458 | 2007-03317 |
Payout Agreement
| No payout information available.. |