Property
Account |
| Property ID: | 15505 | Abbreviated Legal Description: | TABLEROCK SUBDIVISION II LOT 51 |
| Parcel Number: | 360604590051 | Agent Code: | |
| Type: | Real | | |
| Tax Area: | 5 - OL-140 | Land Use Code | 11 |
| Open Space: | N | DFL | N |
| Historic Property: | N | Remodel Property: | N |
| Multi-Family Redevelopment: | N | | |
| Township: | 6 | Section: | 4 |
| Range: | 36 |
Location |
| Address: | 228 THUNDER RIDGE RD WA 99362 | Mapsco: | |
| Neighborhood: | VG Res Rural/City Inf | Map ID: | |
| Neighborhood CD: | 615012 |
Owner |
| Name: | JEAN-FRANCOIS JAMES & KERRY | Owner ID: | 63005 |
| Mailing Address: | 913 W EMERSON ST SEATTLE, WA 98119 | % Ownership: | 100.0000000000% |
| | | Exemptions: | |
Taxes and Assessment Details
Values
| (+) Improvement Homesite Value: | + | $0 | |
| (+) Improvement Non-Homesite Value: | + | $624,180 | |
| (+) Land Homesite Value: | + | $0 | |
| (+) Land Non-Homesite Value: | + | $120,000 | |
| (+) Curr Use (HS): | + | $0 | $0 |
| (+) Curr Use (NHS): | + | $0 | $0 |
| | | -------------------------- | |
| (=) Market Value: | = | $744,180 | |
| (–) Productivity Loss: | – | $0 | |
| | | -------------------------- | |
| (=) Subtotal: | = | $744,180 | |
| (+) Senior Appraised Value: | + | $0 | |
| (+) Non-Senior Appraised Value: | + | $744,180 | |
| | | -------------------------- | |
| (=) Total Appraised Value: | = | $744,180 | |
| (–) Senior Exemption Loss: | – | $0 | |
| (–) Exemption Loss: | – | $0 | |
| | | -------------------------- | |
| (=) Taxable Value: | = | $744,180 | |
Taxing Jurisdiction
| Owner: | JEAN-FRANCOIS JAMES & KERRY | | |
| % Ownership: | 100.0000000000% | | |
| Total Value: | $744,180 | | |
| Tax Area: | 5 - OL-140 |
| CERFD | CURRENT EXPENSE REFUND 010 | 0.0000000000 | $744,180 | $744,180 | $0.00 | | |
| CURREXP | CURRENT EXPENSE 010 | 1.0175366760 | $744,180 | $744,180 | $757.23 | | |
| HUMNSERV | HUMAN SERVICES 119 | 0.0250000000 | $744,180 | $744,180 | $18.60 | | |
| SLDREL | SOLDIERS RELIEF 121 | 0.0155990005 | $744,180 | $744,180 | $11.61 | | |
| EMERGSER | EMS 147 | 0.3792580840 | $744,180 | $744,180 | $282.24 | | |
| EMSRFD | EMS REFUND 147 | 0.0000000000 | $744,180 | $744,180 | $0.00 | | |
| PORTRFD | PORT REFUND 640 | 0.0000000000 | $744,180 | $744,180 | $0.00 | | |
| PORTWWGEN | PORT OF WW 640 | 0.2460186015 | $744,180 | $744,180 | $183.08 | | |
| SD140BOND | SD #140 BOND 764 | 0.8342371393 | $744,180 | $744,180 | $620.82 | | |
| SD140GEN | SD #140 GENERAL 760 | 2.0646500647 | $744,180 | $744,180 | $1,536.47 | | |
| ST2 | STATE SCHOOL PART 2 600 | 0.8131451643 | $744,180 | $744,180 | $605.13 | | |
| STATESCHL | STATE SCHOOL 600 | 1.5158548041 | $744,180 | $744,180 | $1,128.07 | | |
| STREFUND | STATE REFUND LEVY 603 | 0.0000000000 | $744,180 | $744,180 | $0.00 | | |
| CWWBOND | C OF WW BOND 643 | 0.2760494372 | $744,180 | $744,180 | $205.43 | | |
| CWWGEN | CITY OF WW 631 | 1.6100204973 | $744,180 | $744,180 | $1,198.15 | | |
| CWWRFD | CITY OF WALLA WALLA REFUND 631 | 0.0000000000 | $744,180 | $744,180 | $0.00 | | |
| | Total Tax Rate: | 8.7973694689 | | | | | |
| | | | | Taxes w/Current Exemptions: | $6,546.83 | | |
| | | | | Taxes w/o Exemptions: | $6,546.83 | | |
Improvement / Building
| Improvement #1: | RESIDENTIAL | State Code: | 11 | 3069.0 sqft | Value: | $624,180 |
| Exterior Wall: | STUCCO | Heating/Cooling: | WARM & COOLED AIR | | Number of Bathrooms: | 2.5 | Number of Bedrooms: | 3 | | Plumbing: | 15 | Roof Covering: | COMP SHINGLE |
|
| | Type | Description | Class CD | Sub Class CD | Year Built | Area |
| | MA | Main Area | 4 | 50 | 2006 | 3069.0 |
| | SI1 | SITE IMPROVEMENT | 4 | 50 | 2006 | 5.5 |
| | UPFL | Upper Floor (included in main area) | 4 | 50 | 2006 | 1162.0 |
| | ATG | Attached Garage | 4 | 50 | 2006 | 858.0 |
| | GFP | GAS FIREPLACE | 4 | 50 | 2006 | 1.0 |
| | RPC | OPEN PORCH W/ROOF , CEILED | 4 | 50 | 2006 | 224.0 |
| | RPC | OPEN PORCH W/ROOF , CEILED | 4 | 50 | 2006 | 64.0 |
| | RPC | OPEN PORCH W/ROOF , CEILED | 4 | 50 | 2006 | 28.0 |
Sketch
Property Image
Land
| 1 | RES 1 | Converted: Residential | 0.3660 | 15945.00 | 0.00 | 0.00 | 1.00 | $120,000 | $0 |
Roll Value History
| 2026 | N/A | N/A | N/A | N/A | N/A |
| 2025 | $616,510 | $180,000 | $0 | $796,510 | $796,510 |
| 2024 | $624,180 | $120,000 | $0 | $744,180 | $744,180 |
| 2023 | $624,180 | $120,000 | $0 | $744,180 | $744,180 |
| 2022 | $624,180 | $95,000 | $0 | $719,180 | $719,180 |
| 2021 | $462,360 | $95,000 | $0 | $557,360 | $557,360 |
| 2020 | $402,050 | $95,000 | $0 | $497,050 | $497,050 |
| 2019 | $402,050 | $95,000 | $0 | $497,050 | $497,050 |
| 2018 | $392,370 | $50,000 | $0 | $442,370 | $442,370 |
| 2017 | $392,370 | $50,000 | $0 | $442,370 | $442,370 |
| 2016 | $392,370 | $50,000 | $0 | $442,370 | $442,370 |
| 2015 | $392,370 | $50,000 | $0 | $442,370 | $442,370 |
| 2014 | $356,700 | $50,000 | $0 | $406,700 | $406,700 |
| 2013 | $356,700 | $50,000 | $0 | $406,700 | $406,700 |
| 2012 | $359,100 | $65,000 | $0 | $0 | $0 |
| 2011 | $366,400 | $80,000 | $0 | $0 | $0 |
| 2010 | $366,400 | $80,000 | $0 | $0 | $0 |
| 2009 | $392,300 | $80,000 | $0 | $0 | $0 |
| 2008 | $392,300 | $80,000 | $0 | $0 | $0 |
| 2007 | $397,800 | $75,000 | $0 | $0 | $0 |
Deed and Sales History
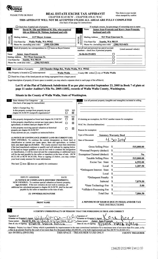
| 1 | 05/02/2018 | SWD | STATUTORY WARRANTY DEED | ELLS DAVID M | JEAN-FRANCOIS JAMES & KERRY | | | $515,000.00 | 134628 | 2018-03464 |
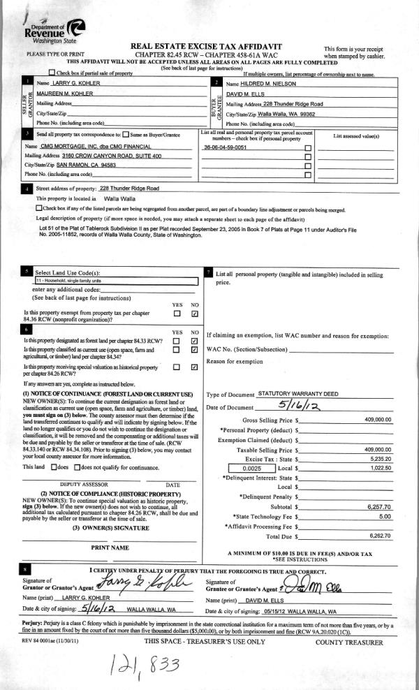
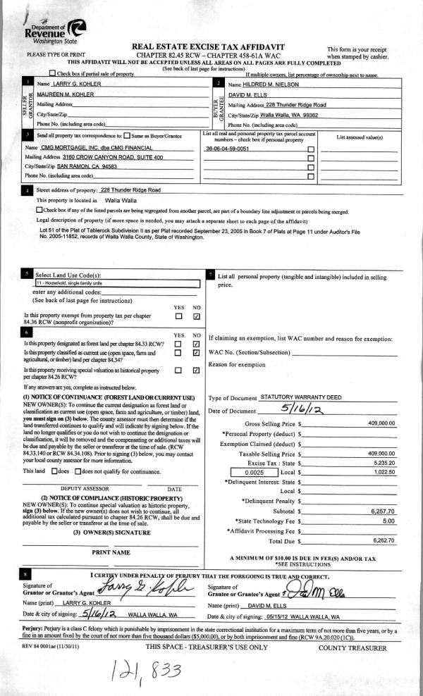
| 2 | 05/17/2012 | WARRANTY D | WARRANTY DEED | KOHLER, LARRY G & MAUREEN M | ELLS, DAVID M | | | $409,000.00 | 121833 | 2012-04037 |
| 3 | 10/06/2005 | WARRANTY D | WARRANTY DEED | GATEWOOD, W PAUL & CAROL | KOHLER, LARRY G & MAUREEN M | | | $75,000.00 | 108696 | 2005-12500 |
Payout Agreement
| No payout information available.. |